Projecten
Producten
Bedrijven
Vacatures
Agenda
Awards
Podcasts
more_horiz
Videos
Magazine
Thema's
Favorieten
Profiel
Uitloggen
Copyright: Buro/S Architects
Copyright: Buro/S Architects
Copyright: Buro/S Architects
Copyright: Buro/S Architects
Copyright: Buro/S Architects
Copyright: Buro/S Architects
Copyright: Buro/S Architects
Copyright: Buro/S Architects
Copyright: Buro/S Architects
Copyright: Buro/S Architects
Copyright: Buro/S Architects
Copyright: Buro/S Architects
Copyright: Buro/S Architects
Copyright: Buro/S Architects
Copyright: Buro/S Architects
Copyright: Buro/S Architects
Copyright: Buro/S Architects
Copyright: Buro/S Architects
Copyright: Buro/S Architects
Copyright: Buro/S Architects
Voormalige basisschool in Echt getransformeerd tot tandartspraktijk
27 juli 2021, 12:24
In het Limburgse Echt heeft
Buro/S Architects
een voormalige basisschool getransformeerd tot een tandartspraktijk. Het bureau veranderde het pand in een modern en licht onderkomen voor de tandartsen, zonder dat de basis en constructie van het uit 1961 stammend gebouw ingrijpend werden gewijzigd.
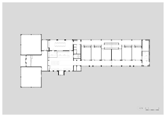
De officiële richtlijnen voor tandartspraktijken vragen in verband met de hygiëne om een strikt gescheiden routing voor medewerkers en patiënten, meldt Buro/S. In de praktijk in Echt zijn de zes behandelkamers in de voormalige klaslokalen ondergebracht en werd de oude schoolgang de route voor patiënten.
Aan de andere kant van de behandelkamers is een tweede gang gemaakt die alleen door de medewerkers wordt gebruikt en toegang geeft tot de kantoren, kantine, sterilisatieruimte en kleedruimte. Op deze manier is de praktijk op logische wijze en met optimaal gebruik van de bestaande structuur opgesplitst in twee zones.
Grote nieuwe ramen in de behandelkamers zorgen voor ruime daglichttoetreding in de praktijk. Om de benodigde privacy van de patiënten te garanderen hebben de ramen een zeefdruk gekregen van lichtdoorlatend materiaal in een gradueel verlopend patroon, dat zich op ooghoogte verdicht. Zo kunnen voorbijgangers niet in de behandelkamers kijken.
Verrassende accenten
Het interieur van de praktijk is zo eenvoudig mogelijk ontworpen met witte en grijze tinten als de rustige basis, terwijl contrasterende materialen en kleuren zorgen voor verrassende accenten. Door de hele praktijk zijn kaders van brons geanodiseerd aluminium toegepast die overgangen tussen ruimtes en functies markeren: van binnen naar buiten, van wachtruimte naar de patiëntengang, tussen de gang en de behandelkamers.
Gedurende de dag en afhankelijk van de lichtinval veranderen de kaders subtiel van kleur. Ze brengen zo een dynamisch element in het interieur en helpen bezoekers ook bij de oriëntatie.
Overzichtelijkheid en rust
In de lichte en ruime wachtruimte zorgen de essenhouten balie en de houten banken voor warme accenten. Er is een directe zichtlijn gecreëerd naar de patiëntengang en behandelkamers, wat zorgt voor overzichtelijkheid en rust. De sterilisatieruimte is volledig in het zicht geplaatst. Het was een uitdrukkelijke wens van de opdrachtgever om deze belangrijke plek meer bij de praktijk te betrekken en zo te laten zien met hoeveel zorg en aandacht dit werk wordt uitgevoerd, meldt Buro/S.
Trefwoorden
buro/s architects
basisschool
zorg
transformatie
echt
tandartpraktijk
Locatie
Best gelezen
1
Singelbloktoren Amsterdam-Noord biedt ook bewoners tussenwoningen overhoeks zicht
maandag, 16 februari
2
Leren van Santos
dinsdag, 17 februari
3
Bouwstart voor zestig seniorenwoningen in groen landschap Hoorn
vrijdag, 13 februari
4
Gerestaureerd Tramhuis op Eendrachtsplein fungeert nu als kiosk voor stadswandelingen
maandag, 16 februari
5
Woongemeenschap van Woonwerk Architecten in Winkelsteeg speelt in op maatschappelijke opgaven
vrijdag, 13 februari
Gerelateerde nieuwsberichten
Buro/S transformeert monument in centrum Wassenaar tot moderne orthodontistenpraktijk
6 mei 2025
i29 ontwerpt interieur en identiteit voor tandheelkundige kliniek
4 januari 2022
Constructie en structuur bedrijfspand vormen basis voor nieuw gezondheidscentrum
20 januari
Verschoven volumes verbijzonderen Kampense tandartspraktijk
31 mei 2022
Buro/S transformeert monument in centrum Wassenaar tot moderne orthodontistenpraktijk
6 mei 2025
i29 ontwerpt interieur en identiteit voor tandheelkundige kliniek
4 januari 2022
Constructie en structuur bedrijfspand vormen basis voor nieuw gezondheidscentrum
20 januari
Verschoven volumes verbijzonderen Kampense tandartspraktijk
31 mei 2022
Toon alles
Andere nieuwsberichten
Purmerend kiest ontwerp Vendrig Leegwater en Hans van der Heijden voor Schapenmarkt
Gisteren, 11:04
Inwoners van Purmerend hebben het ontwerp van Vendrig Leegwater Architecten en Hans van der Heijden Architecten gekozen voor de herontwikkeling van de Schapenmarkt.
AG NOVA ontwerpt woon-zorggebouw voor kwetsbare ouderen op Centrumeiland
18 februari, 3:15
Het pand is bestemd voor bewoners die complexe zorg nodig hebben en met ondersteuning in de stad kunnen blijven wonen.
Team van Nederlandse en Oekraïense architecten ontwikkelt open-source bouwsysteem voor publieke voorzieningen in Oekraïne
18 februari, 1:57
Een team van Orange Architects, NOVA en ReThink heeft samen met een verschillende vastgoed en productontwikkelaars op het gebied van modulair bouwen een schaalbaar, open-source bouwsysteem voor publieke voorzieningen in Oekraïne ontwikkeld.
Expositie toont mogelijkheden voor nieuwe woonruimte in bestaande Rotterdamse wijken
18 februari, 11:05
Hoe kun je in Rotterdam honderdduizend nieuwe woningen realiseren zonder nieuwe wijken te hoeven aanleggen? In een tentoonstelling bij OMI laten Platform Woonopgave en Recht op de Stad zien op welke manieren dat kan.
Noord-Holland geeft ontheffing voor bouw datacenter in Aalsmeer
Gisteren, 14:09
De voorbereidingen op de bouw van een datacenter op het terrein van een voormalige bloemenveiling in Aalsmeer kunnen doorgaan.
Nederland en België onderzoeken treinverbinding Eindhoven-Brussel
Gisteren, 12:02
Het kan gaan om nieuw spoor, maar ook om een nieuwe treindienst over bestaand spoor.
Nieuwe minister VRO: nieuwe steden bouwen zal moeten
Gisteren, 10:03
De vraag waar die nieuwe steden zouden moeten komen, wilde Elanor Boekholt-O'Sullivan nog niet beantwoorden.
Ridderkerk hoeft voorlopig niet samen te werken bij verdeling huurwoningen
18 februari, 4:29
De provincie Zuid-Holland mag Ridderkerk voorlopig niet dringen om hierbij samen te werken met elf andere gemeenten.
Zichtbaar verduurzaamde huizen leveren meer op bij verkoop
18 februari, 11:59
Cijfers wijzen uit dat in het derde kwartaal van vorig jaar bijna 4700 euro per vierkante meter werd betaald voor woningen met een energielabel A of beter.
Noord-Brabant verdeelt vijftig miljoen euro over regio-Moerdijk
18 februari, 9:09
Het geld dient om de leefbaarheid op peil te houden in het gebied waar de komende jaren diverse energieprojecten worden uitgevoerd.
Ga naar het nieuws-archief
Ronnie Weessies
Redacteur
1
0
0
0
Voor een optimale gebruikservaring plaatst Architectenweb functionele cookies. Wat de verschillende cookies precies doen leggen we uit in een
overzicht
. Cookies van social media kun je optioneel
aanzetten
.
Akkoord
Instellingen
Annuleren
OK
Sluiten
Doorgaan
Inloggen
Maak een gratis persoonlijk account aan
Feedback
Feedback
Wij horen graag jouw feedback. Laat je reactie achter en eventueel jouw e-mail adres.
Reactie
Verstuur