Projecten
Producten
Bedrijven
Vacatures
Agenda
Awards
Podcasts
more_horiz
Videos
Magazine
Favorieten
Profiel
Uitloggen
Abonneer je nu op onze nieuwsbrieven!
Abonneren
Nee, bedankt
Ja, denk met me mee rond de
materialisering van mijn project
Copyright: Jeroen Musch
Copyright: Jeroen Musch
Copyright: Jeroen Musch
Copyright: Jeroen Musch
Copyright: Jeroen Musch
Copyright: Jeroen Musch
Copyright: Jeroen Musch
Copyright: Jeroen Musch
Copyright: Jeroen Musch
Copyright: Jeroen Musch
Copyright: Jeroen Musch
Copyright: Jeroen Musch
Copyright: Jeroen Musch
Copyright: Jeroen Musch
Copyright: Jeroen Musch
Situatie
Copyright: NEXT architects
Noordgevel
Copyright: NEXT architects
Zuidgevel
Copyright: NEXT architects
Oostgevel
Copyright: NEXT architects
Westgevel
Copyright: NEXT architects
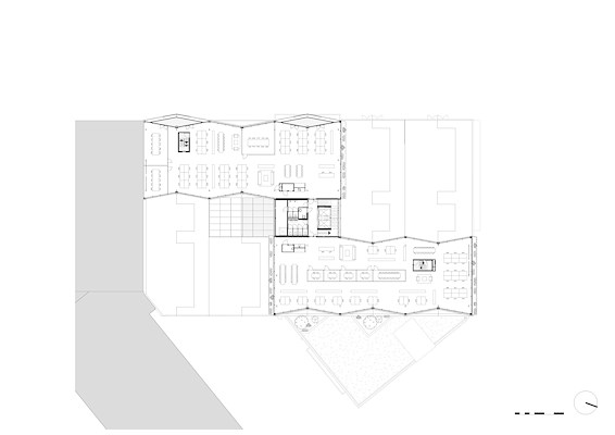
Begane grond
Copyright: NEXT architects
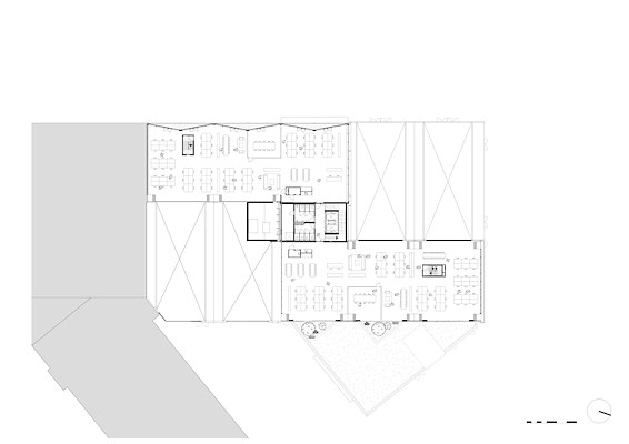
Eerste verdieping
Copyright: NEXT architects
Tweede verdieping
Copyright: NEXT architects
Derde verdieping
Copyright: NEXT architects
Vierde verdieping
Copyright: NEXT architects
Vijfde verdieping
Copyright: NEXT architects
Voormalige productiehallen Kauwgomballenkwartier getransformeerd tot KBF Warehouse
11 oktober 2024, 14:32
Naar ontwerp van
NEXT architects
zijn de voormalige productiehallen in het Kauwgomballenkwartier in Amsterdam getransformeerd tot een kantoorgebouw voor creatieve ondernemers. Op de bestaande stenen bebouwing is een transparant volume gebouwd. De structuur van de voormalige productiehallen is deels behouden gebleven en tot onderdeel van het nieuwe kantoorgebouw gemaakt.
Sinds het begin van de transformatie van de Kauwgomballenfabriek in 2008 (naar een ontwerp van Mei architects and planners) is het omliggende bedrijventerrein in ontwikkeling, met onder meer ruimte voor creatieve bedrijven en een hotel. KBF Warehouse, zoals het door NEXT architects ontworpen kantoorgebouw heet, is een nieuwe toevoeging aan het gebied.
De oorspronkelijke stenen bebouwing van de productiehallen heeft een opbouw gekregen met een grotendeels glazen volume van vijf verdiepingen. De gevels van het kantoorgebouw kenmerken zich door de hoekige structuur die gebaseerd is op de originele daken en aansluit bij vormentaal van de originele structuur van het pand.
Het kantoorgebouw bestaat uit twee delen die met elkaar verbonden worden door een lichte kern waarin het trappenhuis gevestigd is. Op elke verdieping kunnen de twee delen zowel samen als apart van elkaar gebruikt worden. Het centrale trappenhuis, die bestemd is voor alle gebruikers van KBF Warehouse, is volledig in hout bekleed.
De glazen gevel en de aanwezigheid van natuurlijke materialen moeten bijdragen aan een lichte en aangename werkplek. De buitenruimtes van het pand zijn ingericht met verschillende soorten groen. Er zijn onder meer een ‘pocketpark’, inpandige groene patio’s, balkons met plantenbakken, verticaal groen aan de gevels en een gedeeltelijk mossedumdak.
KBF Warehouse behoort tot de
genomineerden voor Kantoorgebouw van het Jaar
bij de Architectenweb Awards 2024.
Locatie
Best gelezen
1
Nominaties Rotterdam Architectuurprijs 2026 bekend
maandag, 20 april
2
Rotterdam zoekt ontwerper voor permanente Luchtsingel
woensdag, 22 april
3
Twaalf lessen rond het ontwerpen van autovrije buurten
dinsdag, 21 april
4
Winnaars verkiezing Beste Bossche Gebouw 2020–2025 bekend
vrijdag, 17 april
5
OMA gebruikt bestaand gebouw als canvas bij renovatie Edo-Tokyo Museum
vrijdag, 17 april
Gerelateerde nieuwsberichten
Marc Koehler Associates ontwerpt twee woongebouwen in Kauwgomballenkwartier
12 november 2025
Andere nieuwsberichten
Maas Lawrence presenteert architectuurjaarboek NL25
38 minuten geleden
In het boek heeft uitgeverij Maas Lawrence een alomvattend beeld van de Nederlandse architectuur proberen te schetsen, door liefst 143 opgeleverde projecten op een rij te zetten.
Maarten Baas en Powerhouse Company werken samen bij cultureel cluster in Den Bosch
4 uur geleden
Op de Tramkade in Den Bosch zal voor kavel 9 een nieuw mixed-use cultureel cluster ontwikkeld worden.
Vijfde 'icoon' voor Roombeek mengt continuïteit met verstoring
Vandaag, 14:29
In de wijk Roombeek in Enschede is woongebouw De Weverij opgeleverd. Het door Tangram Architekten ontworpen gebouw met 116 appartementen is het vijfde en laatste ‘icoon’ binnen het stedenbouwkundig plan van Pi de Bruijn.
Betonvereniging organiseert symposium Omdenken
Vandaag, 10:32
Het symposium op de Pier van Scheveningen is gericht op de transformatie van bestaande gebouwen en de overgang naar circulair materiaalgebruik, met name bij beton. Tot de sprekers behoren Arjan Dingste (UNS) en Jouke Hennipman (Re:Born Real Estate).
Warmtefonds wil 140 miljoen extra voor behoud gunstige leningen
3 uur geleden
Als het extra geld uitblijft, kan dat over een aantal jaren mogelijk niet meer, zegt bestuursvoorzitter Ernst-Jan Boers.
BINX Smartility gekozen als aannemer voor Centrale Bibliotheek Rotterdam
4 uur geleden
De vernieuwing van de iconische Centrale Bibliotheek Rotterdam kan starten. Na een aanbestedingsprocedure koos de gemeente Rotterdam BINX Smartility.
Woningcorporaties vrezen financieel vast te lopen
Vandaag, 11:45
Om jaarlijks tienduizenden sociale huurwoningen te kunnen bouwen, steken ze zich in de schulden.
Ontwerpwedstrijd voor nieuwe 'jas' Utrechtse elektriciteitshuisjes
Gisteren, 15:18
In Utrecht worden de komende vijftien jaar zo’n achthonderd elektriciteitshuisjes geplaatst.
Provincies willen snel crisisaanpak voor overvol stroomnet
Gisteren, 12:01
Het Interprovinciaal Overleg (IPO) roept de regering onder meer op meer geld uit te trekken voor warmtenetten en waterstof om de gevolgen van netcongestie beter op te vangen.
Synchroon en BPD ontwikkelen meer dan vierhonderd woningen in Sloterdijk I
Gisteren, 10:14
Team V architectuur is aangesteld voor het ontwerp, in de uitwerking van de plannen worden waarschijnlijk nog andere architecten bij het project betrokken.
Ga naar het nieuws-archief
Ronnie Weessies
Redacteur
0
0
0
0
Voor een optimale gebruikservaring plaatst Architectenweb functionele cookies. Wat de verschillende cookies precies doen leggen we uit in een
overzicht
. Cookies van social media kun je optioneel
aanzetten
.
Akkoord
Instellingen
Annuleren
OK
Sluiten
Doorgaan
Inloggen
Maak een gratis persoonlijk account aan
Feedback
Feedback
Wij horen graag jouw feedback. Laat je reactie achter en eventueel jouw e-mail adres.
Reactie
Verstuur