Projecten
Producten
Bedrijven
Vacatures
Agenda
Awards
Podcasts
more_horiz
Videos
Magazine
Favorieten
Profiel
Uitloggen
Abonneer je nu op onze nieuwsbrieven!
Abonneren
Nee, bedankt
Ja, denk met me mee rond de
materialisering van mijn project
Kubus Katrijp, Amsterdam Noord, westhoek
Copyright: Moke Architecten
Kubus Katrijp, Amsterdam Noord, park
Copyright: Moke Architecten
Kubus Katrijp, Amsterdam Noord, bouwdeel Stadgenoot
Copyright: Moke Architecten
Kubus Katrijp, Amsterdam Noord, hof
Copyright: Moke Architecten
Kubus Katrijp, Amsterdam Noord, entree Werengouw
Copyright: Moke Architecten
Kubus Katrijp, Amsterdam Noord, margezone
Copyright: Moke Architecten
Kubus Katrijp, Amsterdam Noord, situatie
Copyright: Moke Architecten
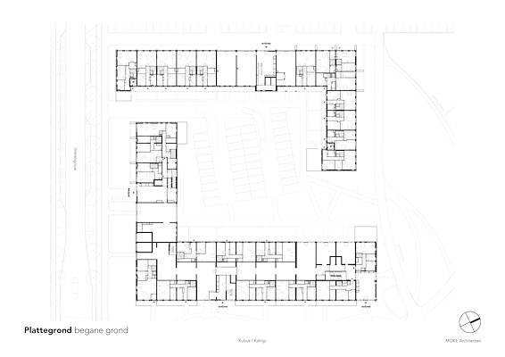
Kubus Katrijp, Amsterdam Noord, plattegrond begane grond
Copyright: Moke Architecten
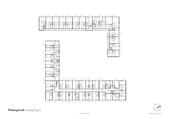
Kubus Katrijp, Amsterdam Noord, plattegrond tweede verdieping
Copyright: Moke Architecten
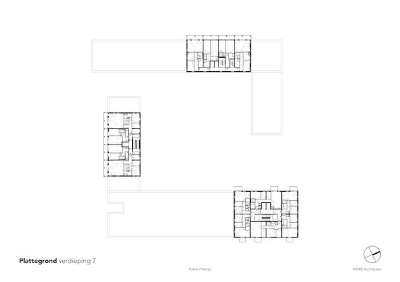
Kubus Katrijp, Amsterdam Noord, plattegrond zevende verdieping
Copyright: Moke Architecten
Moke Architecten draagt bij aan vernieuwing Waterlandpleinbuurt
28 mei 2024, 13:30
Het project Kubus Katrijp van
Moke Architecten
vormt de laatste fase van een nieuw stedenbouwkundig plan voor het Waterlandplein in Amsterdam Noord. De ontwikkeling is onderdeel van de algemene stadsvernieuwing in Waterlandpleinbuurt. In de omgeving van het Waterlandplein worden daarbij woningen toegevoegd, gerenoveerd en vervangen.
In datzelfde kader werd, bijvoorbeeld, in 2020 ook het project Breehoorn (drie woonblokken) langs de IJdoornlaan van LEVS architecten gerealiseerd. Ook de woontoren (in aanbouw) in het Entreegebied in de Waterlandpleinbuurt naar ontwerp van WE architecten maakt deel uit van deze buurtontwikkeling. Verder won Happel Cornelisse Verhoeven architecten al in 2020 de architectenselectie voor de ontwikkeling van de naastgelegen IJdoornlocatie (Ymere). De eerste mijlpaal in deze bredere buurtontwikkeling was overigens de oplevering van het vernieuwde Waterlandplein in 2013 met zes woontorens en een gerenoveerd winkelgebied volgens een stedenbouwkundig plan van de Architekten Cie. en met gebouwen naar ontwerp van Atelier PRO, Hans van Heeswijk Architecten en de Cie. Kubus Katrijp van Moke Architecten verrijst direct naast dit complex.
Context
De structuur van de Waterlandpleinbuurt is die van een tuinstad en bestaat grotendeels naoorlogse appartementenblokken. Het zijn veelal gebouwen in de vorm van stroken of haken, met bergingen in de plint en de buitenruimtes die georiënteerd zijn op het zuiden of westen. In het oorspronkelijk stedenbouwkundig plan vormt de oostgevel van Kubus Katrijp de westelijke pleinwand. Het Waterlandplein zelf heeft een structuur die afwijkt van die van de wijk. Het complex wordt gekenmerkt door een plint (basement) met daarin winkels, buurtvoorzieningen (o.a. Huis van de Wijk, Openbare bibliotheek) en entrees naar de bovenliggende woningen. De acht torens daarboven variëren in hoogte; met de Noordertoren van ruim 60 meter als hoogste. Ook de kleurstellingen van het Waterlandplein wijken duidelijk af van die van de omliggende buurt. De toegepaste horizontale metselwerk banden zijn donker in de onderste lagen en worden naar boven toe steeds lichter. Hierdoor steken de torens licht af boven de overwegend lagere bebouwing en het groen van Amsterdam Noord.
Overgangsblok
Moke heeft Kubus Katrijp opgevat als een overgangsblok of tussenblok tussen de buurt en het Waterlandplein. De ambitie is om het Waterlandplein sterker te hechten aan de omliggende buurt. Dit wordt bereikt door bewuste keuzes in structuur en de bouwhoogte van het bouwblok. Kubus Katrijp bestaat uit twee haken, waarvan de koppen iets uitsteken. Daarboven zijn een aantal hoogteaccenten gemaakt. Het hoogteaccent aan de zijde van het Waterlandplein is het hoogst, terwijl de twee accenten aan de buurtzijde lager zijn. Zo wordt een betere relatie met de omliggende tuinstadstructuur gezocht. Met de hoogteaccenten wordt de bestaande hoogte van het Waterlandplein stapsgewijs afgebouwd naar de omliggende buurt.
Groene omgeving
Tussen het Waterlandplein en Kubus Katrijp wordt de groenstructuur doorgetrokken die vanaf het Baanakkerspark via een groene zoom richting het park Schellingwouderbreekpark loopt. Zo wordt een van de voor Amsterdam Noord kenmerkende groene lijnen weer hersteld. Het nieuwe gebouw sluit daarmee aan de noord- en oostzijde aan op een parkachtig gebied. Het hof tussen twee haken is openbaar en is aan de zuidzijde verbonden met de buurt Werengouw en aan de noordzijde, via twee paden, met de groene zoom. De zuidelijke verbinding biedt tevens een doorgang voor auto’s naar een klein parkeerveld. Het hof blijft eigendom van en wordt ingericht in opdracht van de gemeente (naar ontwerp van Sant en Co). Daarmee is slechts een deel van de private buitenruimtes onderdeel van het plan.
Entrees
Om de openbare ruimte rond het complex te activeren spelen de entrees een belangrijke rol. De woningen op de begane grond hebben alle een eigen entree. Daarnaast bieden dubbelhoge lobby’s toegang tot de bovenliggende woningen. Ook de fietsenstallingen hebben een toegang aan de straatzijde, alsmede een doorgang naar de lobby. Door middel van grote puien en een goede inrichting dragen deze stallingen ook bij aan de nagestreefde kwaliteit van de openbare ruimte.
Ontsluitingen
Moke Architecten heeft voor het project gekozen voor drie typen ontsluiting. De torens hebben een kernontsluiting. Het oostelijke blok heeft een corridor met aan beide zijden woningen. De westelijke en zuidelijke vleugels hebben een galerijontsluiting. Deze mix weerspiegelt ook de beoogde variatie aan woningtypes en divers woonmilieus. De laagbouw (Stadgenoot) biedt woonruimte voor jongeren in de leeftijdscategorieën tot 23 jaar en tussen 23 en 28 jaar. Hier is ook een woongroep voor psychotische bewoners voorzien. De woongroep beschikt op de derde verdieping over een gemeenschappelijke woonkamer met een terras.
Uitstraling
De gevels kenmerken zich door een metselwerk structuur van bakstenen, horizontale penanten en verticale banden. Er is gekozen voor geelachtige steen met een rustige uitstraling. Afwisselende gevelopeningen en baksteen vlakken vormen de invulling van de vakken. Op deze plekken is de steenkeuze genuanceerder. In de torens worden de vlakken deels met een meer donkere steen ingevuld. De negge in de plint is verdiept. De torens hebben verder een kroon. Ter plekke van de straat, en bij de hoge toren ook in het hof, verdikt het gebouw zich op de bovenste etages met gebouw brede buitenruimtes. Zo wordt een subtiele verbinding met de vertrappende volumes van het Waterlandplein gezocht.
Installaties
Het oostelijke gebouwdeel (Stadgenoot) heeft een collectieve WTW-installatie die doorgaans voor een aanzienlijke dakopbouw zorgt. Ter plekke van het lage dak houdt een ombouw met lamellen deze installatie uit het zicht. De lamellen hebben de kleur van de metselwerk banden en penanten. Het zuidelijke, oostelijke en noordelijke blok hebben individuele installaties, gecombineerd met stadsverwarming, die een beperkter aantal kanalen en geen substantiële opbouw hebben.
Bron: Moke Architecten
Trefwoorden
amsterdam
amsterdam noord
waterlandplein
buurtontwikkeling
moke architecten
stedelijke vernieuwing
Locatie
Best gelezen
1
Architect Cees Dam op 93-jarige leeftijd overleden
dinsdag, 14 april
2
Powerhouse Company wint aanbesteding voor verbouwing Vista College Maastricht
dinsdag, 14 april
3
Tien bureaus geselecteerd voor tweede ronde nieuwbouw De Meervaart
woensdag, 15 april
4
Voormalig hoofdkantoor Ferro in M4H verbouwd tot bedrijfsverzamelgebouw
woensdag, 15 april
5
QWA heeft A16 boven Rotterdam eigen identiteit gegeven
maandag, 13 april
Gerelateerde nieuwsberichten
Houten woonhuis in Muiden door Moke Architecten en la4sale
24 juli 2024
Uitbreiding en vervangende nieuwbouw voor school en kerk in centrum Leeuwarden
2 april 2024
Voltooid Beninees conferentieoord van Moke Architecten valt in de prijzen
24 februari
Moke Architecten benoemt twee associates
13 maart 2024
Moke Architecten ontwerpt nieuwe havengebouwen tegenover Muiderslot
16 december 2021
Met South Dock is herontwikkeling Pontkade NDSM-terrein voltooid
2 augustus 2023
Moke Architecten presenteert twee torens in Hogekwartier Amersfoort
30 november 2021
Bouw paviljoen van Atelier PUUUR met buurtfunctie en voorzieningen gestart
11 maart
Houten woonhuis in Muiden door Moke Architecten en la4sale
24 juli 2024
Uitbreiding en vervangende nieuwbouw voor school en kerk in centrum Leeuwarden
2 april 2024
Voltooid Beninees conferentieoord van Moke Architecten valt in de prijzen
24 februari
Moke Architecten benoemt twee associates
13 maart 2024
Moke Architecten ontwerpt nieuwe havengebouwen tegenover Muiderslot
16 december 2021
Met South Dock is herontwikkeling Pontkade NDSM-terrein voltooid
2 augustus 2023
Moke Architecten presenteert twee torens in Hogekwartier Amersfoort
30 november 2021
Bouw paviljoen van Atelier PUUUR met buurtfunctie en voorzieningen gestart
11 maart
Toon alles
Andere nieuwsberichten
OMA gebruikt bestaand gebouw als canvas bij renovatie Edo-Tokyo Museum
Gisteren, 15:55
Na een renovatie van bijna vier jaar is het Edo-Tokyo Museum in de Japanse hoofdstad Tokio heropend. OMA nam het uit 1993 stammende gebouw, dat is ontworpen door de Metabolist Kiyonori Kikutake, onder handen.
Winnaars verkiezing Beste Bossche Gebouw 2020–2025 bekend
Gisteren, 14:16
De vakjury en het publiek wezen elk in drie categorieën een winnaar aan. Daarnaast kende vakjury nog een wildcard toe aan een project.
Appartementengebouwen door MIX architectuur vormen sluitstuk Noorderhaven Zutphen
Gisteren, 12:29
In de nieuwe buurt Noorderhaven in Zutphen zijn drie appartementengebouwen naar ontwerp van MIX architectuur opgeleverd. De gebouwen met in totaal tachtig woningen vormen het sluitstuk van de gebiedsontwikkeling.
EUmies Award naar renovatie congrescentrum in Charleroi en tijdelijke ruimtes Sloveens theater
Gisteren, 10:54
Donderdag zijn de winnaars van de EUmies Award 2026 bekendgemaakt. De renovatie van het congrescentrum Charleroi Palais des Expositions won in de belangrijkste categorie architectuur.
Woningbouwzaken krijgen langer voorrang bij Raad van State
Gisteren, 16:49
Om het huizentekort tegen te gaan, blijft de Raad van State woningbouwzaken met voorrang behandelen.
Inspectie positief over verbetering sociale veiligheid TU Delft
Gisteren, 11:36
De TU Delft heeft aanzienlijke stappen gezet om de sociale veiligheid voor medewerkers te verbeteren.
NVM vreest minder nieuwbouw door veranderende voorrang stroomnet
Gisteren, 09:23
Bouwers kunnen, door onzekerheid over welke projecten straks nog maatschappelijke prioriteit krijgen in een bepaalde regio, besluiten om minder nieuwe huizen te bouwen.
Architecten voor restauratie en herbestemming Rivièrahal gekozen
16 april, 12:00
Voor de grootscheepse restauratie en herbestemming van de Rivièrahal in de Rotterdamse Diergaarde Blijdorp zijn Mecanoo en BiermanHenket geselecteerd.
Bewoners aardbevingsgebied Groningen blijven kritisch op herstel
16 april, 10:34
Door de complexiteit en onzekerheid van het jarenlange proces ervaren mensen stress en frustratie.
ING: optoppen en splitsen van woningen steeds minder haalbaar
15 april, 1:22
Het kabinet-Jetten gaat naar verwachting het doel van 15.000 extra woningen per jaar uit verbouwingen niet halen, stelt ING.
Ga naar het nieuws-archief
JaapJan Berg
Redacteur
1
0
0
0
Voor een optimale gebruikservaring plaatst Architectenweb functionele cookies. Wat de verschillende cookies precies doen leggen we uit in een
overzicht
. Cookies van social media kun je optioneel
aanzetten
.
Akkoord
Instellingen
Annuleren
OK
Sluiten
Doorgaan
Inloggen
Maak een gratis persoonlijk account aan
Feedback
Feedback
Wij horen graag jouw feedback. Laat je reactie achter en eventueel jouw e-mail adres.
Reactie
Verstuur