Projecten
Producten
Bedrijven
Vacatures
Agenda
Awards
Podcasts
more_horiz
Videos
Magazine
Thema's
Favorieten
Profiel
Uitloggen
Copyright: Bas Gijselhart
Copyright: Bas Gijselhart
Copyright: Bas Gijselhart
Copyright: Bas Gijselhart
Copyright: Bas Gijselhart
Copyright: Bas Gijselhart
Binnenplaats
Copyright: Houben / Van Mierlo
Ontsluiting woningen
Copyright: Houben / Van Mierlo
Bezonning
Copyright: Houben / Van Mierlo
Situatie
Copyright: Houben / Van Mierlo
Doorsnede
Copyright: Houben / Van Mierlo
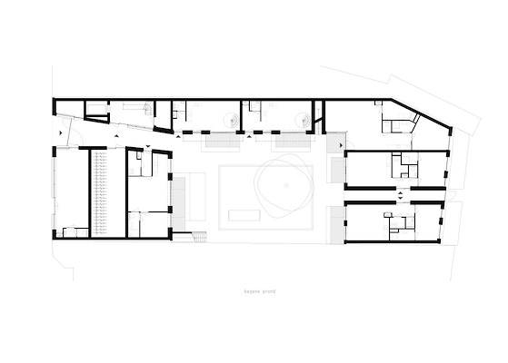
Plattegrond
Copyright: Houben / Van Mierlo
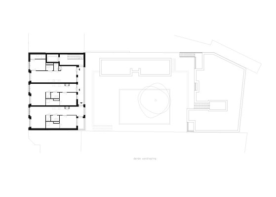
Plattegrond
Copyright: Houben / Van Mierlo
Plattegrond
Copyright: Houben / Van Mierlo
Plattegrond
Copyright: Houben / Van Mierlo
Diep winkelpand vervangen door woningen rond een hofje
29 maart 2023, 14:40
Aan de Woenselse Markt in Eindhoven is een door
Houben / Van Mierlo
ontworpen gebouw met 21 woningen opgeleverd. Het gebouw vervangt een winkelpand, dat net als de meeste panden in de directe omgeving een grote diepte had. De diepte is aangewend om het nieuwe complex rond een hofje te realiseren.
De Woenselse Markt wordt omgeven door panden op diepe kavels met een klassieke opbouw van een winkelplint met bovenwoningen en doorgaans een magazijn aan de achterkant. Mede door de oplopende winkelleegstand werd voor de kavel waarop het nieuwe woongebouw is gerealiseerd een andere oplossing gezocht. Die wordt gevonden door de diepte van de kavel te benutten er een hofje te creëren, waaromheen verschillende typen woningen zijn gebouwd.
De typologie van een winkel met woningen erboven is aan de zijde van de markt gehandhaafd; op de begane grond bevindt zich een nieuwe winkelruimte. Ernaast ligt de poort naar het hofje, waarin ook de brievenbussen en deurbellen van alle woningen zijn opgenomen. Het gebouw heeft een formele voorgevel met een streng ritme van grote vensters en een lichte, staande plastiek.
Binnen in de hof is juist een informele sfeer gecreëerd, met een aantal collectieve tuintjes, (Franse) balkons en een galerij in de openlucht op de verdieping.. Het hofje is bestemd als beschutte plek midden in een drukke stad waar de bewoners elkaar tevens kunnen ontmoeten. Vanaf het maaiveld voeren meanderende trappen de bewoners door het gebouw naar de bovengelegen woningen.
Het woonprogramma bestaat uit appartementen, maisonettes, lofts en studio’s; alle huurwoningen. Ook beschikkende bewoners over een collectieve fietsenstalling. De tuin en groendaken zorgen voor buffering en infiltratie van regenwater en dienen ter voorkoming van hittestress.
Trefwoorden
eindhoven
hofje
woongebouw
houben / van mierlo
woningbouw
Locatie
Best gelezen
1
Houthybride woongebouw langs de A8 in Zaandam opgeleverd
dinsdag, 11 november
2
WillemsenU zinkt villa af in landschap
dinsdag, 11 november
3
Woongebouw voor gezinnen biedt ruime corridor en gekoppelde terrassen met glijbaan
woensdag, 12 november
4
MVRDV ontwerpt bolvormig sportcomplex in Albanese hoofdstad Tirana
maandag, 10 november
5
Groningers kiezen nieuwe invulling voor plek gesloopte parkeergarage in stadscentrum
dinsdag, 11 november
Gerelateerde nieuwsberichten
Collectief Made by NRE presenteert sluitstuk herontwikkeling NRE-terrein
25 mei 2023
Nieuwe woningen op plek voormalige kerk in Eindhoven
21 juli 2023
Acht nominaties voor Dirk Roosenburgprijs 2023
9 oktober 2023
Plan Celsius in wijkververnieuwing Woensel-West afgerond
20 september 2023
Woonblokken De Gebroeders Willem en Lodewijk in Eindhoven opgeleverd
12 oktober 2023
CPO-project met landschappelijke kwaliteiten in Son en Breugel
10 maart 2023
Delva presenteert integraal woon- en natuurplan voor Geestwater Lisse
24 maart 2022
Eerste huurder huis van 3D-geprint beton krijgt sleutel
30 april 2021
Nieuwe buurt op voormalig ALO-terrein Groningen
26 maart 2021
Voormalig Betonson-terrein in Arkel wordt groen woongebied
20 februari 2020
Markant kantoorpand getransformeerd tot woongebouw
14 juni 2019
Collectief Made by NRE presenteert sluitstuk herontwikkeling NRE-terrein
25 mei 2023
Nieuwe woningen op plek voormalige kerk in Eindhoven
21 juli 2023
Acht nominaties voor Dirk Roosenburgprijs 2023
9 oktober 2023
Plan Celsius in wijkververnieuwing Woensel-West afgerond
20 september 2023
Woonblokken De Gebroeders Willem en Lodewijk in Eindhoven opgeleverd
12 oktober 2023
CPO-project met landschappelijke kwaliteiten in Son en Breugel
10 maart 2023
Delva presenteert integraal woon- en natuurplan voor Geestwater Lisse
24 maart 2022
Eerste huurder huis van 3D-geprint beton krijgt sleutel
30 april 2021
Nieuwe buurt op voormalig ALO-terrein Groningen
26 maart 2021
Voormalig Betonson-terrein in Arkel wordt groen woongebied
20 februari 2020
Markant kantoorpand getransformeerd tot woongebouw
14 juni 2019
Toon alles
Andere nieuwsberichten
Nominaties Zuiderkerkprijs en Geurt Brinkgreve Bokaal 2025 bekend
14 november, 12:17
Voor de eerstgenoemde woningbouwprijs van de gemeente Amsterdam zijn tien projecten genomineerd, de bokaal voor het beste initiatief op het gebied van herontwikkeling, transformatie of renovatie leverde zeven nominaties op.
'Architecten kunnen kwaliteit waarborgen bij splitsen en opdelen rijtjeshuizen'
14 november, 11:14
Om het splitsen en opdelen van rijtjeswoningen van de grond te krijgen, dienen het Rijk en gemeenten de regie te nemen. Architecten kunnen hierbij worden ingeschakeld voor de waarborging van de kwaliteit, aldus een vrijdag verschenen rapport.
MVRDV en Buro Happold ontwerpen nieuw theater in Veenendaal
14 november, 10:23
Voor de vernieuwing van Theater De Lampegiet zijn vijf schetsontwerpen gemaakt. Zowel de inwoners van de stad als de jury hebben daarbij voor het ontwerp van MVRDV en Buro Happold gekozen.
Benthem Crouwel Architects plaatst slotstuk in Paleiskwartier van Den Bosch
13 november, 5:00
Benthem Crouwel Architects heeft het stadsblok Palazzo in het Paleiskwartier van Den Bosch opgeleverd
Zuid-Holland verhoogt budget voor restauratie rijksmonumenten
14 november, 2:08
De provincie Zuid-Holland verhoogt het budget voor de restauratie van rijksmonumenten structureel.
Rapport: natuur kan helpen beschermen tegen stijgende zeespiegel
14 november, 9:24
Natuurlijke oplossingen zoals ruim baan geven aan gebieden met eb en vloed kunnen helpen de Nederlandse kustlijn te beschermen tegen de stijgende zeespiegel.
Deltacommissaris: ga nu al in gesprek over toekomst waterbeheer
13 november, 4:03
Nederland moet nu al kijken welke randvoorwaarden nodig zijn om grote waterbeschermingsprogramma's zoals de Deltawerken in de komende jaren uit te voeren.
Gemeentebestuur wil Brabants dorp Moerdijk laten verdwijnen
13 november, 10:23
Het dorp Moerdijk in Noord-Brabant moet verdwijnen om plaats te maken voor uitbreiding van het bestaande haven- en industrieterrein in die plaats.
Iets minder mensen vertrekken uit de Randstad dan in eerdere jaren
12 november, 10:00
Onder andere omdat er in de Randstad meer kinderen worden geboren, groeit de bevolking daar sneller dan in de gebieden eromheen. Netto vertrokken er afgelopen jaar 14.000 mensen.
Woningen en park op plek van rangeerterrein bij Rotterdamse Kuip
12 november, 9:30
Een rangeerterrein voor treinen tegenover stadion De Kuip in Rotterdam verdwijnt. Op de plek worden woningen en een nieuw station gebouwd. Bovendien moet een park naast het spoor worden uitgebreid.
Ga naar het nieuws-archief
Ronnie Weessies
Redacteur
2
0
0
0
Voor een optimale gebruikservaring plaatst Architectenweb functionele cookies. Wat de verschillende cookies precies doen leggen we uit in een
overzicht
. Cookies van social media kun je optioneel
aanzetten
.
Akkoord
Instellingen
Annuleren
OK
Sluiten
Doorgaan
Inloggen
Maak een gratis persoonlijk account aan
Feedback
Feedback
Wij horen graag jouw feedback. Laat je reactie achter en eventueel jouw e-mail adres.
Reactie
Verstuur