Projecten
Producten
Bedrijven
Vacatures
Agenda
Awards
Podcasts
more_horiz
Videos
Magazine
Thema's
Favorieten
Profiel
Uitloggen
Copyright: Bas Gijselhart
Copyright: Bas Gijselhart
Copyright: Bas Gijselhart
Copyright: Bas Gijselhart
Copyright: Bas Gijselhart
Copyright: Bas Gijselhart
Axonometrie
Copyright: Denkkamer
Doorsneden
Copyright: Denkkamer
Begane grond
Copyright: Denkkamer
Verdieping (parkeerdek)
Copyright: Denkkamer
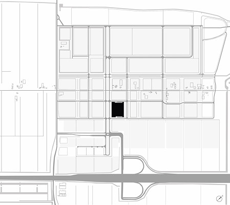
Situatie
Copyright: Denkkamer
Minimaquette
Copyright: Denkkamer
Volumes distributiecentrum opgeknipt om monotonie te doorbreken
12 augustus 2022, 11:23
Op het in ontwikkeling zijnde Schiphol Trade Park bij Hoofddorp is een distributiecentrum naar ontwerp van
Denkkamer
opgeleverd. Vanwege zijn prominente ligging bij de entree van de monotonie van een distributiedoos te doorbreken, is het gebouw met name aan de kant van de snelweg A4 opgeknipt in verschillende volumes.
Het distributiecentrum is opgedeeld in een doosvormige logistieke kern, met daaromheen een schil van kleinere volumes die het aanzicht van buitenaf bepalen. De kantoren zijn ondergebracht in de transparante volumes van de schil. Vanaf de eerste verdieping bieden deze toegang tot enkele daktuinen die op het complex zijn gerealiseerd.
Ondersteunende faciliteiten zoals de traforuimte, sprinklertank en ADR-ruimtes liggen in de gesloten volumes van de schil. Op die manier blijft de rechthoekige logistieke kern van het complex vrij voor zijn basisfunctie. De laaddocks en logistieke verkeersbewegingen liggen aan de achterzijde van het gebouw, met erboven een parkeerdek voor personenauto’s dat bereikbaar is via hellingbanen.
Er is bij het project ook aandacht besteed aan groen en natuurinclusiviteit. De hoger gelegen daken zijn voorzien van kruidenrijke groene en bruine daken en ingericht voor insecten en dakbroedende vogels. De lagergelegen daken, beschut tussen de kantoren, dienen als daktuin, buitenverblijf en pluktuin voor de gebruikers.
De laaddocks zijn door middel van groen afgeschermd van het parkeerdek. Het groen biedt ruimte voor onder meer vlinders, amfibieën en struweelbroedvogels.
Trefwoorden
schiphol trade park
hoofddorp
denkkamer
logistiek
distributiecentrum
Locatie
Best gelezen
1
Den Bosch 'pauzeert' aanbesteding voor ontwerp gebiedsontwikkeling Citadelpoort
maandag, 17 november
2
Expositie in Kunsthal belicht eerdere toeristische periode Rotterdam
dinsdag, 18 november
3
Zelfsluitende Vlotterkering in Steyl vormt tevens 'balkon aan de Maas'
dinsdag, 18 november
4
Het streven naar nieuw is ouderwets
donderdag, 20 november
5
Kleurrijk atrium vormt hart van nieuw internationaal hoofdkantoor NXP
maandag, 17 november
Gerelateerde nieuwsberichten
Outstanding BREEAM-NL certificering voor Schiphol Trade Park
14 juni 2023
Focus on Impact en Qonnected Logistics werken samen aan ontwikkeling stadslogistieke hubs
16 juni
Haarlemmermeer zoekt ontwikkelaars voor grote locaties Hoofddorp-Zuid
13 februari 2024
Nieuw distributiecentrum met aandacht voor natuurinclusief bouwen en schone energie
13 maart 2024
Lichtstad Architecten ontwerpt sporthal in Lincolnpark Hoofddorp
17 juni 2024
Schiphol wordt opgeknapt met 'inhaalslag' van drie miljard euro
2 oktober 2023
Haarlemmermeer zoekt bouwbedrijf voor nieuw deelgebied in Lincolnpark
20 januari
Heembouw Architecten ontwerpt kilometer lang natuurscherm rond distributiecentrum
10 augustus 2022
Distributiecentrum met iets andere uitstraling voor bedrijf Almere
6 december 2021
Distributiecentrum met gestapelde functies voor Schiphol Trade Park
27 november 2020
Eva Klein Schiphorst nieuwe directeur SADC
12 januari 2022
Heembouw verzorgt circulaire renovatie van loods C-Bèta
3 april 2020
Verdichtingsplan voor stationsgebied Hoofddorp goedgekeurd
22 november 2021
Nieuwe wijk met 1.600 woningen voor Hoofddorp
18 november 2021
Bureaus maken visie voor kantorengebied bij station Hoofddorp
4 november 2020
Discussieavond in De Balie over verdozing van het landschap
13 september 2022
Fabrikant raambekleding bouwt hoofdkantoor met distributiecentrum in Enter
30 november 2022
Outstanding BREEAM-NL certificering voor Schiphol Trade Park
14 juni 2023
Focus on Impact en Qonnected Logistics werken samen aan ontwikkeling stadslogistieke hubs
16 juni
Haarlemmermeer zoekt ontwikkelaars voor grote locaties Hoofddorp-Zuid
13 februari 2024
Nieuw distributiecentrum met aandacht voor natuurinclusief bouwen en schone energie
13 maart 2024
Lichtstad Architecten ontwerpt sporthal in Lincolnpark Hoofddorp
17 juni 2024
Schiphol wordt opgeknapt met 'inhaalslag' van drie miljard euro
2 oktober 2023
Haarlemmermeer zoekt bouwbedrijf voor nieuw deelgebied in Lincolnpark
20 januari
Heembouw Architecten ontwerpt kilometer lang natuurscherm rond distributiecentrum
10 augustus 2022
Distributiecentrum met iets andere uitstraling voor bedrijf Almere
6 december 2021
Distributiecentrum met gestapelde functies voor Schiphol Trade Park
27 november 2020
Eva Klein Schiphorst nieuwe directeur SADC
12 januari 2022
Heembouw verzorgt circulaire renovatie van loods C-Bèta
3 april 2020
Verdichtingsplan voor stationsgebied Hoofddorp goedgekeurd
22 november 2021
Nieuwe wijk met 1.600 woningen voor Hoofddorp
18 november 2021
Bureaus maken visie voor kantorengebied bij station Hoofddorp
4 november 2020
Discussieavond in De Balie over verdozing van het landschap
13 september 2022
Fabrikant raambekleding bouwt hoofdkantoor met distributiecentrum in Enter
30 november 2022
Toon alles
Andere nieuwsberichten
Studio for New Realities brengt binnenspel Plaswijckpark onder gevouwen dak
21 november, 2:00
Het Plaswijckpark in het noorden van Rotterdam biedt voor kinderen allerlei mogelijkheden om buiten te spelen. Voor dagen met minder goed weer is er nu een tweede paviljoen gerealiseerd met mogelijkheden om binnen te spelen.
Space&Matter ontwerpt ingetogen houten paviljoen voor BSO in Zeist
21 november, 9:30
Aan de rand van het dorpscentrum van Zeist, in een door woningen omzoomd binnengebied, ontwerpt Space&Matter een nieuwe buitenschoolse opvang (BSO) en gymzaal.
MoederscheimMoonen Architects benoemt vijf associates
21 november, 9:00
Om de basis van het groeiende bureau richting de toekomst te versterken heeft het nu vijf associates benoemd: Aldo Trim, Boy Hoffs, Maarten de Roij, Mike Pennings en Romano van den Dool.
ECHO Urban Design en RoosRos Architecten winnen tender Machinewerf Vlissingen
20 november, 4:30
ECHO Urban Design en RoosRos Architecten zijn samen met partners Leyten, Fullhouse, depart en Steenvlinder door de gemeente Vlissingen geselecteerd als winnende partner voor de ontwikkeling van locatie de Machinewerf in het Scheldekwartier.
Vervoersregio's Rotterdam, Den Haag en Amsterdam willen miljard extra voor OV
21 november, 11:29
Volgens burgemeester Jan van Zanen van Den Haag is 500 miljoen euro extra nodig "om niet achteruit te gaan door indexering en bezuinigingen". En nog eens 500 miljoen euro is nodig "om het OV mee te laten groeien met het aantal inwoners.
Mogelijke proef zelfrijdende pendelbussen tussen station Hoofddorp en Schiphol Trade Park
20 november, 2:15
De provincie Noord-Holland onderzoekt of het zelfrijdende pendelbussen zonder chauffeur kan laten rijden in de buurt van Schiphol. Als dit qua veiligheid en techniek haalbaar is, wil de provincie in 2027 een proef starten.
Fietsflat bij Amsterdam Centraal wordt na 25 jaar gesloopt
20 november, 1:45
Voor de door VMX Architects ontworpen fietsenstalling is geen nieuwe plek gevonden. Daarom wordt de 'fietsflat' nu gesloopt.
Maastricht grootste stijger op lijst van beste steden om te wonen
20 november, 1:15
Op de ranglijst van de Atlas voor Gemeenten steeg Maastricht de afgelopen tien jaar van de 40e naar de 34e plek. Amsterdam staat stevig op de 1e plek van de lijst.
Minder infraprojecten gaan door na bezuinigingen Prinsjesdag
20 november, 10:40
Minder infrastructuurprojecten kunnen doorgaan door bezuinigingen die met Prinsjesdag zijn doorgevoerd. Dat staat in antwoorden op Kamervragen over de begroting van het Mobiliteitsfonds.
Om malafide grondspeculatie tegen te gaan, overweegt het kabinet een bedenktijd voor kopers van grond
20 november, 9:00
Grondhandelaren splitsen landbouwgrond vaker op in kleine stukjes en verkopen die dan door aan particulieren. De kopers kunnen dan ten onrechte denken dat de gemeente op de grond wil bouwen, terwijl dat niet zo is.
Ga naar het nieuws-archief
1
0
0
0
Voor een optimale gebruikservaring plaatst Architectenweb functionele cookies. Wat de verschillende cookies precies doen leggen we uit in een
overzicht
. Cookies van social media kun je optioneel
aanzetten
.
Akkoord
Instellingen
Annuleren
OK
Sluiten
Doorgaan
Inloggen
Maak een gratis persoonlijk account aan
Feedback
Feedback
Wij horen graag jouw feedback. Laat je reactie achter en eventueel jouw e-mail adres.
Reactie
Verstuur