Copyright: Sebastian van Damme
Copyright: Sebastian van Damme
Copyright: Orange Architects
Copyright: Sebastian van Damme
Copyright: Sebastian van Damme
Copyright: Hi-Con
Copyright: Hi-Con
Copyright: Hi-Con
Copyright: Hi-Con
Copyright: Hi-Con
Copyright: Sebastian van Damme
Copyright: Sebastian van Damme
Copyright: Orange Architects
Copyright: Sebastian van Damme
Copyright: Orange Architects
Copyright: Orange Architects
Copyright: Orange Architects
Copyright: Orange Architects
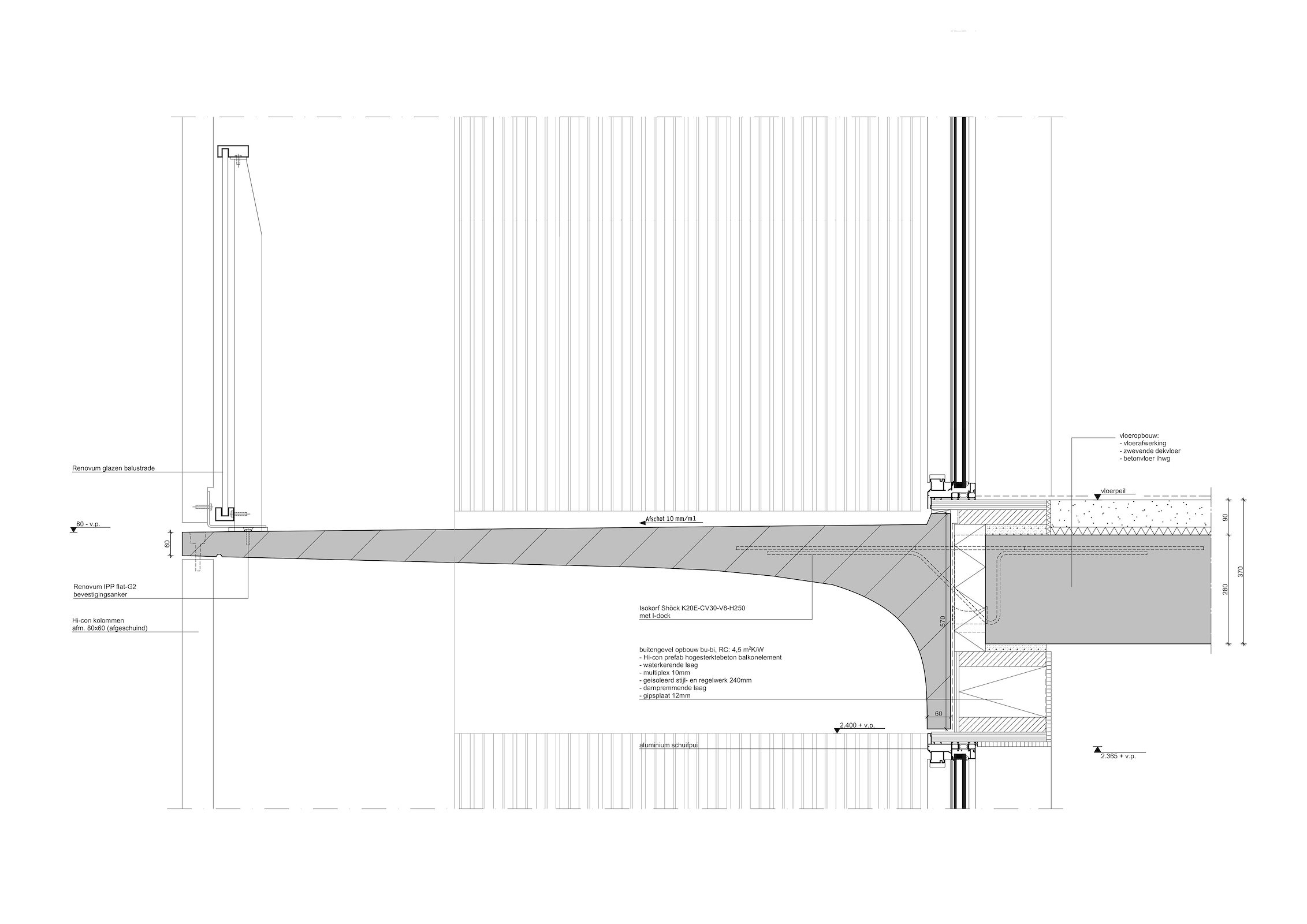
Detail: filigrain raster rond woongebouw The Line 
in hogesterktebeton
Op Overhoeks heeft Orange Architects woongebouw The Line rondom voorzien van een filigrain raster in hogesterktebeton. Hoe is dit raster precies gedetailleerd? Architect Jeroen Schipper van Orange Architects gaf Architectenweb een rondleiding en ging tot in detail in op hoe deze gevel gemaakt is.
“In Overhoeks staan stevige gebouwen in hoge dichtheid bij elkaar”, begint architect Jeroen Schipper van Orange Architects. “Daarom ontstond bij ons het idee om er wat lichtheid in te brengen met rondlopende balkons, waarvan de balkonranden samen met verticale elementen een filigrain raster zouden vormen. Zodat het woongebouw als een soort aangemeerd cruiseschip in de buurt zou komen te liggen.”

“Omdat we ook een stenig gebouw wilden maken, kwamen we al heel vroeg, tijdens het schetsontwerp, uit op hogesterktebeton en hebben we de samenwerking gezocht met Hi-Con”, vervolgt Schipper. Met het ultra hoge sterkte beton (UHSB) van Hi-Con kunnen balkons gemaakt worden met een aanzicht van 60 mm. Daaruit volgend heeft Orange Architects ook de verticale elementen in hun aanzicht die maat van 60 mm gegeven.
Het hier toegepaste hogesterktebeton is voorzien van RVS vezels, waardoor het zo’n zesmaal hogere druksterkte heeft als regulier beton. Ook is aan het beton microsilicon toegevoegd, waardoor nagenoeg alle poriën in het beton gedicht zijn. De technische naam van het hier gebruikte beton is CRCi 2 en daarmee zijn uitkragingen tot zo’n 3,6 meter te maken. Het aanzicht kan daarbij dan 60 mm zijn, al wordt het balkon daarachter natuurlijk wel taps dikker. Dit is ook bij woongebouw The Line het geval, waar ze tot 2 meter uitkragen. Aan de gevel zijn de balkons ook ‘getoogd’, daar buigt het beton af naar het gevelvlak.

Bij het storten van het beton maakt Hi-Con gebruik van houten mallen. Bij het storten van de balkons van The Line is, vanwege de wat complexere vorm daarvan, ervoor gekozen om staande mallen te gebruiken, dus de balkons op hun kant te gieten. Daarbij zijn deze mallen vanaf de getoogde kant ontkist.

Naast de stalen vezels, die zo’n 13 mm lang zijn, zijn de balkons ook voorzien van gewone wapening. Dat maakt het eenvoudiger om ermee te rekenen. En de balkons worden via die wapening ook opgehangen aan de hoofddraagconstructie van het gebouw.
Verticale elementen
“Met deze verticale elementen transformeren de balkons in een soort veranda’s”, vindt Schipper. “Zo zit je net iets beschutter, liggen de balkons toch wat meer in het verlengde van de woning, in plaats van dat je echt in het park tussen de woongebouwen zit.” Daarbij vindt hij het ook interessant dat de balkons zich in het perspectief wat sluiten. Zo heeft het gebouw een gelaagde gevel gekregen.
De verticale elementen, die Schipper ook wel omschrijft als ‘stokjes’, dienen vooral de beleving van het gebouw en hebben verder geen dragende functie. Daarom zijn ze ook opgehangen aan de balkons. In de balkons zijn daarvoor al in de fabriek gaten voorbereid. In ieder gat hangt een schroef in een rubber, aan die schroef hangt dan een verticaal element. Ieder verticaal element heeft daarvoor af fabriek ook al een gat aan zijn bovenzijde gekregen. Op het balkon wordt het gat met een ronde tegel afgedicht. Waar het verticale element het balkon eronder raakt, is dat met met een haak vastgezet. Ook de gaten daarvoor zijn af fabriek al voorbereid.
Net als de balkons zijn ook de verticale elementen, naast de stalen vezels, ook voorzien van reguliere wapening. De afgeronde hoeken van de bekisting voorkomen trouwens dat er stalen vezels uit het beton steken.
Wie echt goed naar het betonnen raster in The Line kijkt, valt het op dat de aanzichten hiervan lichter zijn dan het beton erachter. In het ontwerpproces werd in eerste instantie uitgegaan van productie in Nederland, waarbij het betonnen wat witter zou zijn. Toen later duidelijk werd dat de productie in Denemarken plaats zou vinden, en daarvan een sample was ontvangen, bleek het beton uit die fabriek een wat grijzere kleur te hebben. Simpelweg door de net andere samenstelling van het beton daar. Als compromis is er vervolgens voor gekozen wel dat lichtgrijze beton te gebruiken, maar dit in het aanzicht te voorzien van een wittere coating. “Het is een soort betonvernis”, grapt Schipper. Bij de balkonranden is het aanzicht gecoat, bij de verticale elementen zowel de voorzijden als de zijkanten.

Interessant bij die verticale elementen is nog dat het precies de gekiste zijden zijn die nu gecoat zijn, waardoor de ‘achterzijde’ nu niet alleen ruwer is maar ook net een andere kleur heeft. Schipper: “De coating versterkt zo het effect van die gladdere gekiste zijden tegenover die ruwere achterzijde.”
Ronde gaten in de balkons
Zoals alle gebouwen op Overhoeks – want zo voorgeschreven in het stedenbouwkundige plan door Geurst & Schulze – heeft ook The Line bovenin een drietal setbacks. Binnen de logica van het filigraine raster rond het gebouw, ontstonden hier balkonranden waar niemand overheen zou lopen. Om er hier en daar daglicht doorheen te laten vallen, ontwierp Orange Architects ronde gaten hierin.

“Meestal worden die er in de loop van het ontwerpproces dan weer uitbezuinigd”, vertelt Schipper. “Dat gebeurde hier ook, maar even later kwamen ze ook weer terug, omdat de extra kosten van de sparingen niet opwogen tegen de extra materiaalkosten.” Het hier toegepaste hogesterktebeton is zo’n 30-40% duurder dan regulier beton. Daarmee betaalden de ronde gaten in de balkonranden zich eerder terug.

Een ander interessant detail in de gevel is trouwens dat er geen hemelwaterafvoeren (HWA) in zijn opgenomen. “Het water loopt gewoon van het gebouw af”, vertelt Schipper. Vanwege de hoge dichtheid van het materiaal en het feit dat het nauwelijks poriën heeft, vervuild het beton niet of nauwelijks en kan het water gewoon over het beton heen lopen. Eventuele vervuiling is er zo weer vanaf te vegen. Dat is in ieder geval de theorie, het zal interessant zijn om te zien hoe het gebouw er over tien jaar bij staat.
Open gevelbekleding
“Zoals bij een jas de buitenzijde ook anders kan zijn dan de voering, zo vonden we het hier ook interessant om de gevel achter het filigraine raster een ander karakter te geven”, vertelt Schipper. Om die ‘voering’ een sterk verticale belijning mee te geven, koos Orange Architects ervoor om de dichte delen in deze gevel te voorzien van aluminium T-profieltjes. Deze profieltjes zijn iets los van elkaar gehouden, zodat eigenlijk een open gevel is gerealiseerd.
Hebben jullie een ontwerp gemaakt met een materialisering of detaillering waar een bijzonder verhaal aan verbonden is? Laat het ons weten via redactie@architectenweb.nl. Wie weet kunnen we daar in een volgende detailleringsartikel op inzoomen.

Het bezoek aan The Line waar de redactie van Architectenweb aan deelnam was georganiseerd door Tektoniek – kennisnetwerk voor architectuur in beton.

Gerelateerde nieuwsberichten

Gerelateerde podcasts

Gerelateerde video's

Andere nieuwsberichten

Kraaijvanger Architects aan de slag met renovatie Station Zuidplein

24 december 2025, 9:00

Concrete ontwerpt woongebouw in Philadelphia met gevelkunst door tattoo-artist Henk Schiffmacher

23 december 2025, 12:00

Rotterdamse Academie van Bouwkunst stelt twee curatoren aan om thematische lijnen te ontwikkelen

22 december 2025, 11:20

Den Haag ziet ruimte voor meer woningen in gebied Laakhavens-Hollands Spoor

19 december 2025, 3:15

Fijne feestdagen en een gelukkig, gezond en succesvol 2026!

24 december 2025, 1:00

Provincie Zuid-Holland: stroom van zee via Hoek van Holland naar Rotterdamse haven

23 december 2025, 5:00

DNR geactualiseerd naar hedendaagse praktijk

19 december 2025, 4:03

Inschrijving voor tiende editie Architectuurprijs Nijmegen geopend

19 december 2025, 1:17

Tweede Kamer schuift aanpassing huurwet door naar nieuw kabinet

19 december 2025, 9:13

Faillissement V&D laat nog altijd sporen na in winkelgebieden

18 december 2025, 12:03
Michiel van RaaijHoofdredacteur
ATAG Nederland
KUBUS | Specialist in BIM-software
SAPA
Reynaers Aluminium Nederland
Jansen
SAB-profiel bv
Aliplast Aluminium Systems
Kingspan Light & Air
Hagemeister GmbH & Co. KG
ALUCOBOND®
Caparol
Tarkett BV
Kawneer
Grohe Nederland B.V.
Malaysian Timber Council
OCS | Office Cabling Systems
Swisspearl Nederland
Forster Nederland N.V.
VELUX Commercial Benelux B.V.
Sempergreen
Houthandel van Dam
Aluprof Nederland BV
QbiQ Wall Systems
Forbo Flooring
Schüco Nederland
Cedral
Sto Isoned bv
Triflex bv
Gorter Luiken BV
wienerberger
DUCO Ventilation & Sun Control
BEWI IsoBouw
ROCKWOOL B.V.
Mview+
Rockfon (ROCKWOOL B.V.)
Gira Nederland B.V.
Kingspan Geïsoleerde Panelen
GEZE Benelux  B.V.
Renson
Metaglas Groep
ABB | Busch-Jaeger
Jung | Hateha B.V.
Knauf B.V.
Saint-Gobain Glass Benelux
Faay Vianen B.V.
objectflor
Boon Edam Nederland B.V.
Hunter Douglas Architectural
VOLA Nederland BV
Forbo Eurocol Nederland B.V.
EQUITONE gevelpanelen
Holonite B.V.
AXOR + hansgrohe
Tata Steel Colorcoat®
Architectenweb
Over ons
Contact

© 2002 - 2026 Architectenweb BV / Voorwaarden / Privacy / Disclaimer / Sitemap
Annuleren
OK
Sluiten
Doorgaan
Inloggen
Maak een gratis persoonlijk account aan