Projecten
Producten
Bedrijven
Vacatures
Agenda
Awards
Podcasts
more_horiz
Videos
Magazine
Thema's
Favorieten
Profiel
Uitloggen
Abonneer je nu op onze nieuwsbrieven!
Abonneren
Nee, bedankt
Ja, denk met me mee rond de
materialisering van mijn project
Copyright: Orange Architects
Copyright: Orange Architects
Copyright: Orange Architects
Copyright: Orange Architects
Copyright: Orange Architects
Copyright: Orange Architects
Copyright: Orange Architects
Copyright: Orange Architects
Orange Architects ontwerpt woontoren Limassol
2 januari 2017, 16:38
Orange Architects
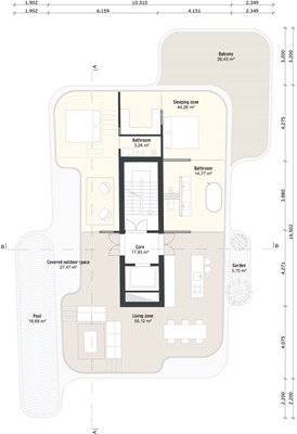
heeft de ontwerpprijsvraag voor een luxueuze woontoren in de Cypriotische stad Limassol gewonnen. Het gebouw telt tien verdiepingen met op elke laag één appartement. Iedere woning krijgt een andere vorm en indeling.
Aan deze opzet ontleent het gebouw zijn vorm, door Orange Architects omschreven als een ‘set van gestapelde wolken’. Met zijn zachte golvende gevels sluit de toren tevens aan op het karakter van het strand, waaraan het gebouw komt te staan. Dankzij de volledig glazen gevels profiteren de bewoners optimaal van het uitzicht over het strand en de zee.
De gevels kunnen volledig worden beglaasd dankzij een constructieve kern met uitkragende dragende vloeren en kolommen. De gevels kunnen bovendien volledig worden geopend, waardoor buitenfuncties als een zwembad, terras en tuin onderdeel worden van het interieur.
Alle woningen hebben een standaard plattegrond, maar door het zwembad, terras en de tuin telkens op andere plekken te positioneren ontstaan de unieke verdiepingsvormen. De appartementen zijn verdeeld in zones met variërende hoogtes, door reliëf aan te brengen in de vloeren (tegen een vlak plafond). Alle woningen hebben minstens één dubbelhoge ruimte, met daarin een splitlevel of mezzanine.
Trefwoorden
limassol
cyprus
orange architects
woontoren
Locatie
Best gelezen
1
PSV presenteert plannen voor uitbreiding Philips Stadion
vrijdag, 20 maart
2
Een verbod op eengezinswoningen
dinsdag, 24 maart
3
Luxe appartementengebouw naast klooster Etten-Leur door Studio AAAN klaar
donderdag, 19 maart
4
KAAN Architecten en De Zwarte Hond winnen tender voor Area 19 TU Eindhoven
vrijdag, 20 maart
5
Houten Stelthuis van Woonpioniers is aardbevings- en klimaatbestendig
woensdag, 18 maart
Gerelateerde nieuwsberichten
Eerste blokken Golden City Sint-Petersburg in aanbouw
10 oktober 2018
Volgende fase Golden City-project van KCAP+Orange
24 juni 2019
Sculpturale woonblokken van Orange Architects in Rietzoom Rotterdam
22 april 2021
Appartementengebouw met een ragfijn gevelraster
25 augustus 2021
Detail: filigrain raster rond woongebouw The Line in hogesterktebeton
23 maart 2022
Orange Architects – genomineerd voor prijs Architect van het Jaar 2022
20 september 2022
Orange Architects
8 september 2022
JSA ontwerpt twee heel verschillende woongebouwen voor Overhoeks
5 april 2018
Orange Architects wint tender voor woongebouw aan haven IJburg
21 juli 2017
Bouw woontoren The Cube in Beiroet gestart
30 juli 2012
Woontoren The Cube (Orange Architects) opgeleverd
2 februari 2016
KCAP en Orange winnen prijsvraag Sint-Petersburg
21 december 2015
Prestigieuze hoogbouwprijs voor The Cube
27 juni 2016
Orange Architects ontwerpt driehoekige torens
9 oktober 2013
Orange en JSA samen verder als Orange Architects
28 mei 2020
Eerste blokken Golden City Sint-Petersburg in aanbouw
10 oktober 2018
Volgende fase Golden City-project van KCAP+Orange
24 juni 2019
Sculpturale woonblokken van Orange Architects in Rietzoom Rotterdam
22 april 2021
Appartementengebouw met een ragfijn gevelraster
25 augustus 2021
Detail: filigrain raster rond woongebouw The Line in hogesterktebeton
23 maart 2022
Orange Architects – genomineerd voor prijs Architect van het Jaar 2022
20 september 2022
Orange Architects
8 september 2022
JSA ontwerpt twee heel verschillende woongebouwen voor Overhoeks
5 april 2018
Orange Architects wint tender voor woongebouw aan haven IJburg
21 juli 2017
Bouw woontoren The Cube in Beiroet gestart
30 juli 2012
Woontoren The Cube (Orange Architects) opgeleverd
2 februari 2016
KCAP en Orange winnen prijsvraag Sint-Petersburg
21 december 2015
Prestigieuze hoogbouwprijs voor The Cube
27 juni 2016
Orange Architects ontwerpt driehoekige torens
9 oktober 2013
Orange en JSA samen verder als Orange Architects
28 mei 2020
Toon alles
Gerelateerde podcasts
Gesprek met Jeroen Schipper en Patrick Meijers over verhalende architectuur die vooral onze samenleving dient
26 februari 2021
Gerelateerde video's
Orange Architects
Nominatie voor de prijs voor Architect van het Jaar 2022
Andere nieuwsberichten
Verbouwing en vergroening van Museum Beelden aan Zee aanstaande
Vandaag, 15:50
Museum Beelden aan Zee heeft een verbouwing en vergroening aangekondigd. Om de werkzaamheden mogelijk te maken sluit het museum tijdelijk haar deuren en is een crowdfunding actie gestart.
Bouw BuurtHaven op NDSM-werf in Amsterdam van start
Vandaag, 14:54
Het project naar ontwerp van Workshop architecten bestaat uit 207 woningen in de sociale en middenhuur, plus een zogeheten buurtkamer. Buurthaven wordt geen gesloten bouwblok, maar opent zich richting het toekomstige Kraanspoor-Ibisplantsoen.
Mecanoo en Bert Plantagie presenteren modulair meubelsysteem tijdens Milan Design Week
Vandaag, 12:21
Macaron bestaat uit een set modules, die verschillende opstellingen en oriëntaties mogelijk maken. Gebruikers kunnen hiermee als het ware ‘scènes’ creëren, passend bij de activiteit van dat moment.
Grosfeld Bekkers van der Velde verfijnt schaal distributiecentrum op detailniveau
Vandaag, 10:32
In het Vlaamse Sint-Katelijne-Waver is een distributiecentrum voor fruitdistributeur Aartsen opgeleverd.
Omzet Ballast Nedam gestegen, ook orderboek groeit
Vandaag, 13:20
Volgens Ballast Nedam klom de omzet naar meer dan 1,6 miljard euro, van ruim 1,2 miljard euro een jaar eerder.
Woningcorporaties bouwden in 2025 meeste huizen in jaren
Vandaag, 11:16
Vorig jaar bouwden woningcorporaties iets minder dan een derde van alle nieuwe huizen.
ACM: meer onderzoek nodig naar overname bouwer VolkerWessels
Gisteren, 13:25
Volgens de toezichthouder zijn er risico's rond de concurrentie door de overname in de grond-, weg- en waterbouw.
Boekholt schrapt wet die voorrang statushouders stopt
Gisteren, 10:19
De minister werkt aan een alternatieve wet, die pas in werking treedt als er genoeg mogelijkheden zijn om statushouders aan een huis te helpen.
Friesland brengt duizenden karakteristieke boerderijen in kaart
20 maart, 2:16
Door alle informatie over de voor het landschap kenmerkende gebouwen op één plek te brengen, moet het makkelijker worden om ze te behouden.
ING: bijna de helft van de huiseigenaren stelt verduurzaming uit
20 maart, 12:18
De meeste mensen vinden dat de overheid te weinig doet om dit te stimuleren.
Ga naar het nieuws-archief
0
0
0
0
Voor een optimale gebruikservaring plaatst Architectenweb functionele cookies. Wat de verschillende cookies precies doen leggen we uit in een
overzicht
. Cookies van social media kun je optioneel
aanzetten
.
Akkoord
Instellingen
Annuleren
OK
Sluiten
Doorgaan
Inloggen
Maak een gratis persoonlijk account aan
Feedback
Feedback
Wij horen graag jouw feedback. Laat je reactie achter en eventueel jouw e-mail adres.
Reactie
Verstuur