Projecten
Producten
Bedrijven
Vacatures
Agenda
Awards
Podcasts
more_horiz
Videos
Magazine
Thema's
Favorieten
Profiel
Uitloggen
Abonneer je nu op onze nieuwsbrieven!
Abonneren
Nee, bedankt
Ja, denk met me mee rond de
materialisering van mijn project
Copyright: WAX
Copyright: WAX
Copyright: WAX
Copyright: Arons en Gelauff architecten
Copyright: Arons en Gelauff architecten
Copyright: Arons en Gelauff architecten
Copyright: Arons en Gelauff architecten
Copyright: Arons en Gelauff architecten
Utrecht Oost krijgt zes woontorens voor starters
21 december 2020, 12:29
Op het voormalige KPN-terrein in Utrecht Oost is de bouw gestart van zes kleurige, slanke torens met starterswoningen. Het ensemble is ontworpen door
Arons en Gelauff architecten
en maakt deel uit van de campus in ontwikkeling De Kwekerij.
De Kwekerij is een ontwikkeling Jebber, dat zich specifiek richt op de realisatie van huisvesting voor studenten en starters. De campus aan de Burgemeester Fockema Andrealaan moet ruimte gaan bieden voor circa 1.000 bewoners. Arons en Gelauff architecten ontwierp zes woontorens met in totaal 244 appartementen.
De plint van de torens biedt plaats aan gemeenschappelijke ruimten, een fietswerkplaats, een klein koude-oorlogsmuseum, een café, een restaurant en een kantoor voor Jebber, vertelt het architectenbureau. Met een wisselende hoogte van de torens zorgt Arons en Gelauff voor een goede bezonning van het terrein.
Gedraaid en afgeschuind
In de vormgeving gebruikt het bureau eenvoudige middelen, legt het uit. Door de torens onderling te draaien en van verschillende kleuren te voorzien ontstaat er een levendig beeld. De gevels sluiten aan bij het landschapsontwerp van TLU. “We kozen de gevelkleuren uit de bloeivormen van de boomsoorten die rondom de gebouwen worden geplant”, aldus Arons en Gelauff.
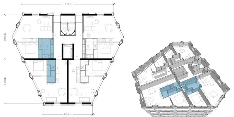
De torens hebben allemaal dezelfde afgeschuinde plattegrond met vier appartementen van 45 m2 per verdieping. Dat maakt elke woning tot een hoekwoning met ochtend-, middag- of avondzon. De hoekligging geeft alle appartementen een luwe zijde, een geveldeel dat vrij is van verkeerslawaai van de omliggende wegen.
Levenscyclus
De torens zijn ontworpen met aandacht de gehele levenscyclus, aldus het architectenbureau. De kleurige gevel is onderhoudsvrij, modulair en demontabel. Het interieur van de woning bestaat uit een geprefabriceerde natte kern, waarin alle noodzakelijke woninginstallaties zijn opgenomen.
De draagconstructie is voorbereid om te kunnen worden doorgebroken, zodat op termijn appartementen kunnen worden samengevoegd. De torens zijn ontworpen zonder installaties in de dragende vloeren en wanden; daardoor kan na sloop van de gebouwen het beton schoon in de grondstoffencyclus worden teruggebracht als betonpuingranulaat, legt Arons en Gelauff uit.
De ondergrondse atoombunker op het voormalige KPN-terrein zet het architectenbureau in voor buffering van regenwater; dit doet het bureau door de deksel van de constructie te lichten. De indeling van de bunker blijft in de vijver afleesbaar. Sommige kamers worden beplant, andere voorzien van een terrasdek. “De bunkervijver wordt het aantrekkelijke hart van de campus”, aldus de architecten
Bouw
De eerste fase in het project De Kwekerij betrof de realisatie van de woontoren Sequoia (vernoemd naar de hoogste boomsoort). Deze toren is een ontwerp van
A3 Architecten
en werd afgelopen september opgeleverd.
De torens naar ontwerp van Arons en Gelauff zijn onlangs door Dura Vermeer in aanbouw genomen; de oplevering staat gepland voor winter 2021. De betrokken partijen rekenen op een bouwtijd van veertien maanden.
Trefwoorden
woningbouw
arons en gelauff architecten
starterswoningen
a3 architecten
woontorens
utrecht
de kwekerij
jebber
Locatie
Best gelezen
1
Kantoorcomplex door Goof Spruit bij station Utrecht krijgt tweede leven als De Nieuwe Tuin
woensdag, 11 maart
2
Woongebouw door van Bergen Kolpa vormt nieuwe markering langs bocht Rotte
dinsdag, 10 maart
3
Gerenoveerd Valkhof Museum heropent deuren op 6 juni
dinsdag, 10 maart
4
Architectenweb symposium: ontwerpen van autovrije buurten
donderdag, 12 maart
5
Weg met de auto?
donderdag, 12 maart
Gerelateerde nieuwsberichten
Start nieuwbouw 265 duurzame appartementen in Woerden
9 augustus 2021
Arons en Gelauff architecten en MORE landscape winnen tender in Nieuwegein
6 september 2023
Kleurrijke woontorens door Arons en Gelauff op campus De Kwekerij
6 oktober 2023
Nieuw ensemble met woningen en kantoren voor Amstel III
20 augustus 2020
Ook woningen met extra hoogte in dubbel woongebouw door Arons en Gelauff
3 juni 2020
Drie gebouwen met een zee van terrassen door Arons en Gelauff
6 december 2019
Arons en Gelauff presenteert volledig opgeleverde Pontsteiger
10 mei 2019
Bouw Blok 26 Zeeburgereiland gestart
6 februari 2019
Arons en Gelauff & Architectuur Maken ontwerpen woonblok Lloydpier
23 februari 2018
Wooncomplex Wiener & Co volgt wervenstructuur
19 juni 2017
Driehoekig blok met uitzicht voor mcg-huis
13 maart 2017
Arons en Gelauff presenteert Funenhof
8 december 2015
Arons en Gelauff ontwerpt terrassenflat voor Zeeburg
30 november 2015
Studententoren op oud KPN-terrein Utrecht
1 mei 2017
Start woningbouw op archeologische schatplaats in Museumkwartier Utrecht
10 februari 2021
Bouw cpo-project Jenga House op Oostenburgereiland van start
15 oktober 2021
Overeenkomst getekend voor woningbouwproject Xylino Almere
21 januari 2022
Vereniging Eigen Huis wil 10.000 betaalbare starterswoningen per jaar
16 augustus 2022
Tjeerd Beemsterboer benoemd tot partner bij Arons en Gelauff
6 december 2022
Start nieuwbouw 265 duurzame appartementen in Woerden
9 augustus 2021
Arons en Gelauff architecten en MORE landscape winnen tender in Nieuwegein
6 september 2023
Kleurrijke woontorens door Arons en Gelauff op campus De Kwekerij
6 oktober 2023
Nieuw ensemble met woningen en kantoren voor Amstel III
20 augustus 2020
Ook woningen met extra hoogte in dubbel woongebouw door Arons en Gelauff
3 juni 2020
Drie gebouwen met een zee van terrassen door Arons en Gelauff
6 december 2019
Arons en Gelauff presenteert volledig opgeleverde Pontsteiger
10 mei 2019
Bouw Blok 26 Zeeburgereiland gestart
6 februari 2019
Arons en Gelauff & Architectuur Maken ontwerpen woonblok Lloydpier
23 februari 2018
Wooncomplex Wiener & Co volgt wervenstructuur
19 juni 2017
Driehoekig blok met uitzicht voor mcg-huis
13 maart 2017
Arons en Gelauff presenteert Funenhof
8 december 2015
Arons en Gelauff ontwerpt terrassenflat voor Zeeburg
30 november 2015
Studententoren op oud KPN-terrein Utrecht
1 mei 2017
Start woningbouw op archeologische schatplaats in Museumkwartier Utrecht
10 februari 2021
Bouw cpo-project Jenga House op Oostenburgereiland van start
15 oktober 2021
Overeenkomst getekend voor woningbouwproject Xylino Almere
21 januari 2022
Vereniging Eigen Huis wil 10.000 betaalbare starterswoningen per jaar
16 augustus 2022
Tjeerd Beemsterboer benoemd tot partner bij Arons en Gelauff
6 december 2022
Toon alles
Gerelateerde podcasts
TechArchitect
Gesprek met Floor Arons over projecten uitwerken in BIM
17 januari 2020
Andere nieuwsberichten
Broekbakema renoveert en verduurzaamt stadhuis Terneuzen
2 uur geleden
Het bekende brutalistische gebouw, dat is ontworpen door medenaamgever van het bureau Jaap Bakema, wordt opgewaardeerd naar energielabel A en moet toegankelijker worden voor inwoners van de Zeeuwse gemeente.
De Urbanisten schetst perspectief voor vitale en aantrekkelijke Rotterdamse binnenstad
13 maart, 4:41
In opdracht van BIZ RotterdamCentrum maakte De Urbanisten een perspectief voor een vitale en aantrekkelijke binnenstad die samengaat met een meer klimaat- en natuursensitieve inrichting
Studio Vinke en Loos van Vliet ontwerpen blok met woningen in haven Lelystad
13 maart, 3:24
In de haven van Lelystad wordt een blok met 160 woningen naar ontwerp van Studio Vinke in samenwerking met Atelier Loos van Vliet gerealiseerd. Bataviahof wordt het middelste van vijf wooncomplexen, waarvan er inmiddels twee zijn gerealiseerd.
Cepezed geselecteerd voor ontwerp Collectiecentrum Overijssel
13 maart, 2:15
Het Delftse bureau won de Europese aanbesteding die was uitgeschreven voor het gebouw, dat een plek krijgt in het Havenkwartier in Deventer.
Onderzoek: bedrijventerreinen slecht voorbereid op wateroverlast
30 minuten geleden
Volgens een analyse van alle 3713 bedrijventerreinen bevat zeventig procent veel gebouwen die kwetsbaar zijn bij extreme regenbuien.
Eerste waterstoffabriek aangesloten op Nederlands netwerk
3 uur geleden
De waterstoffabriek van Shell op de Rotterdamse Maasvlakte is de eerste met een aansluiting op het waterstofnetwerk.
NVM: verkoopgolf huurwoningen vergroot ongelijkheid starters
13 maart, 4:03
Waar een recordaantal starters hun eerste woning kon kopen, zagen anderen hun kansen juist afnemen, zegt de makelaarsorganisatie.
IT-systeem Omgevingswet schiet na twee jaar nog steeds tekort
13 maart, 1:20
Het IT-systeem dat overheden nodig hebben om de Omgevingswet uit te voeren, voldoet nog steeds niet aan minimale eisen.
Eindhoven bouwt 5400 studentenwoningen
13 maart, 11:04
De woningen moeten het tekort aan studentenhuisvesting helpen oplossen.
Experts: versnel energietransitie en hou Gronings gas als airbag
12 maart, 1:58
Dat is nodig om minder afhankelijk te worden van andere landen, stellen 22 experts die gespecialiseerd zijn in veiligheid en energie.
Ga naar het nieuws-archief
Robert Muis
Redacteur
1
0
0
0
Voor een optimale gebruikservaring plaatst Architectenweb functionele cookies. Wat de verschillende cookies precies doen leggen we uit in een
overzicht
. Cookies van social media kun je optioneel
aanzetten
.
Akkoord
Instellingen
Annuleren
OK
Sluiten
Doorgaan
Inloggen
Maak een gratis persoonlijk account aan
Feedback
Feedback
Wij horen graag jouw feedback. Laat je reactie achter en eventueel jouw e-mail adres.
Reactie
Verstuur