Projecten
Producten
Bedrijven
Vacatures
Agenda
Awards
Podcasts
more_horiz
Videos
Magazine
Thema's
Favorieten
Profiel
Uitloggen
Copyright: Triple-D
Copyright: Triple-D
Copyright: Triple-D
Copyright: Triple-D
Copyright: Triple-D
Copyright: Triple-D
Copyright: Arons en Gelauff architecten
Copyright: Arons en Gelauff architecten
Copyright: Arons en Gelauff architecten
Copyright: Arons en Gelauff architecten
Copyright: Arons en Gelauff architecten
Copyright: Arons en Gelauff architecten
Copyright: Arons en Gelauff architecten
Copyright: Arons en Gelauff architecten
Copyright: Arons en Gelauff architecten
Copyright: Arons en Gelauff architecten
Bouw Blok 26 Zeeburgereiland gestart
6 februari 2019, 12:11
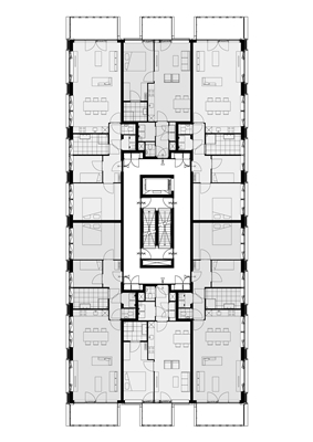
Op het Zeeburgereiland in Amsterdam is gestart met de bouw van Blok 26. Verdeeld over zeven gebouwen bestaat dit project van
Arons en Gelauff architecten
uit 120 woningen. De gebouwen vormen samen een gelaagde compositie, met subtiele variatie in architectonische uitwerking en materialisatie.
Drie grotere gebouwen aan de kant van het
toekomstige park
in de Sportheldenbuurt vormen het ‘front’ van Blok 26, erachter staan twee compacte portiekblokken en twee rijen eengezinswoningen. Rond de gebouwen is een heldere scheiding aangebracht tussen openbare ruimte en privé(tuinen). Onder de tuinen liggen een parkeergarage met honderd parkeerplaatsen en de bergingen van de woningen.
De gebouwen zijn tegelijkertijd verschillend en familiair, onder meer dankzij de materialisatie en de kleurkeuze. De kozijnkleuren variëren per gebouw in verschillende nuance geanodiseerd aluminium. De balkonhekken worden balusterloos uitgevoerd in helder glas. Zes van de zeven gebouwen zijn gemetseld met een gelijk mengsel stenen in genuanceerde kleuren op basis van geel. De stenen staan verticaal in stapelverband.
Hoogeaccent
De bebouwing aan parkzijde bestaat uit twee hoekblokken en een hoogteaccent van veertig meter in het midden. Het centrale gebouw wordt opgetrokken uit witte steen met roze en rode accenten en wordt verder gekenmerkt door banden van wit beton met bamboemotief. Op die manier vallen de naden weg en biedt de structuur van het gebouw een fraai beeld in strijklicht, meldt Arons en Gelauff.
Het middenblok is in de hoogte voorzien van een reeks ‘setbacks’ om de massa te verrijken en het volume te nuanceren. De vertrapping is verdraaid ten opzichte van de hoekblokken. De gebouwen op de hoek zijn verder voorzien van een meanderende wit betonnen lijst rond de ramen en de balkongevels zijn geheel uitgevoerd in licht beton.
De achtergelegen kleinere gebouwen worden gelijkaardig gemetseld, zonder het betonaccent. De portiekblokken De portiekblokken delen een gemeenschappelijk dakterras. De eengezinswoningen hebben een grote woonlaag op de begane grond en twee kleinere slaaplagen erboven. Ze krijgen tuinen en dakterrassen op de eerste en tweede laag.
Woningaanbod
Het woningaanbod loopt uiteen van studio’s en appartementen voor kleine huishoudens tot de reeds genoemde eengezinswoningen met tuin. Naar verwachting wordt het project volgend jaar opgeleverd.
Trefwoorden
arons en gelauff architecten
triple-d
woningbouw
amsterdam
zeeburgereiland
Locatie
Best gelezen
1
Spectaculaire overkapping voor vernieuwd Arnhems busstation Kronenburg
maandag, 3 november
2
Vakwerk Architecten uitgeroepen tot Architect van het Jaar 2025
woensdag, 5 november
3
Groot Egyptisch Museum naar ontwerp van Heneghan Peng en West 8 officieel geopend
maandag, 3 november
4
Fenix, kunstmuseum over migratie, is Publiek gebouw van het Jaar 2025
woensdag, 5 november
5
NOAHH ontwerpt nieuw zwembad in Noordersportpark Haarlem
dinsdag, 4 november
Gerelateerde nieuwsberichten
Ook woningen met extra hoogte in dubbel woongebouw door Arons en Gelauff
3 juni 2020
Naast bebouwing ook veel ruimte in de Sluisbuurt
5 december 2018
Plan De Drie Koningen wint selectie silo's Zeeburgereiland
9 februari 2018
Levendige hoogbouw? Kijk naar het oosten!
30 januari 2018
Zeeburger Zilt gevarieerd maar verwant gebouwenensemble
11 december 2017
Getrapte woongebouwen op Zeeburgereiland door Studioninedots opgeleverd
9 november 2017
College Amsterdam stemt in met plan voor Sluisbuurt
11 september 2017
2016: woningbouw kent veel ambities
23 december 2016
Arons en Gelauff & Architectuur Maken ontwerpen woonblok Lloydpier
23 februari 2018
Arons en Gelauff ontwerpt terrassenflat voor Zeeburg
30 november 2015
Realisatie woongebouw Pontsteiger van start
13 februari 2015
Video: Bouw Woon Leef over Pontsteiger
6 oktober 2017
Bouw blok 22B van WE architecten gestart
13 februari 2019
Huis VT op Zeeburgereiland opgeleverd
28 februari 2019
Organisch en maritiem ontwerp inspiratie voor woning op Zeeburgereiland
4 maart 2019
Drie gebouwen met een zee van terrassen door Arons en Gelauff
6 december 2019
Ontwikkeling Sluisbuurt start met hogeschool en woningen
28 januari 2020
Utrecht Oost krijgt zes woontorens voor starters
21 december 2020
Woningbouwproject Terrazza op Zeeburgereiland klaar
17 augustus 2021
Ook woningen met extra hoogte in dubbel woongebouw door Arons en Gelauff
3 juni 2020
Naast bebouwing ook veel ruimte in de Sluisbuurt
5 december 2018
Plan De Drie Koningen wint selectie silo's Zeeburgereiland
9 februari 2018
Levendige hoogbouw? Kijk naar het oosten!
30 januari 2018
Zeeburger Zilt gevarieerd maar verwant gebouwenensemble
11 december 2017
Getrapte woongebouwen op Zeeburgereiland door Studioninedots opgeleverd
9 november 2017
College Amsterdam stemt in met plan voor Sluisbuurt
11 september 2017
2016: woningbouw kent veel ambities
23 december 2016
Arons en Gelauff & Architectuur Maken ontwerpen woonblok Lloydpier
23 februari 2018
Arons en Gelauff ontwerpt terrassenflat voor Zeeburg
30 november 2015
Realisatie woongebouw Pontsteiger van start
13 februari 2015
Video: Bouw Woon Leef over Pontsteiger
6 oktober 2017
Bouw blok 22B van WE architecten gestart
13 februari 2019
Huis VT op Zeeburgereiland opgeleverd
28 februari 2019
Organisch en maritiem ontwerp inspiratie voor woning op Zeeburgereiland
4 maart 2019
Drie gebouwen met een zee van terrassen door Arons en Gelauff
6 december 2019
Ontwikkeling Sluisbuurt start met hogeschool en woningen
28 januari 2020
Utrecht Oost krijgt zes woontorens voor starters
21 december 2020
Woningbouwproject Terrazza op Zeeburgereiland klaar
17 augustus 2021
Toon alles
Andere nieuwsberichten
Campus met onderwijs en woningen in 's Hertogenbosch officieel geopend
7 november, 2:56
Op de laatste twee bouwkavels van het Paleiskwartier aan de Onderwijsboulevard 300 ontwikkelden Avans Hogeschool en BrabantWonen 20.000 vierkante onderwijsgebouw en 124 studentenwoningen op een parkeergarage.
Voorlopig ontwerp renovatie en verduurzaming provinciehuis Utrecht gepresenteerd
7 november, 11:44
Behalve dat het energielabel van het dertig jaar oude gebouw fors wordt opgekrikt, krijgen de werkplekken, vergaderruimtes en openbare ruimtes een eigentijdse en volgens de provincie uitnodigende inrichting. INBO is verantwoordelijk voor het ontwerp.
Mix van oude en nieuwe werken plus wereldrecordpoging tijdens GLOW 2025
7 november, 9:29
Zaterdag opent de Eindhovense burgemeester Jeroen Dijsselbloem de twintigste editie van GLOW. Tijdens deze jubileumeditie van het lichtkunstfestival zijn nieuwe creaties te zien en worden bekende werken uit het verleden nogmaals getoond.
Foto's uitreiking Architectenweb Awards 2025
6 november, 8:45
Op woensdagavond 5 november 2025 zijn in het Keilepand in Rotterdam de Architectenweb Awards 2025 uitgereikt. Architectuurfotograaf Jan Paul Mioulet / DAPh maakte een beeldverslag van deze feestelijke avond.
Limburgse politiek ondanks zorgen akkoord met energiemaatschappij
7 november, 1:39
De provincie Limburg krijgt een eigen energiemaatschappij.
Provincie Zuid-Holland steekt ‘geen cent extra’ in warmtenetwerk
7 november, 10:28
Het ministerie vroeg om een extra bijdrage voor een ondergronds leidingnetwerk waarmee tienduizenden woningen worden verwarmd met restwarmte uit de Rotterdamse haven.
Provincies focussen op agrarisch natuurbeheer tegen stikstof
6 november, 3:11
De betrokken partijen hebben daarover afspraken gemaakt, maar benadrukken dat steun van de rijksoverheid nodig blijft.
Corporatiewoning harder geraakt door klimaatverandering
6 november, 10:46
Bewoners van de onderzochte woningen hebben bijvoorbeeld vaker last van hittestress door warme nachten en krijgen vaker te maken met wateroverlast bij hevige buien.
Arons en Gelauff benoemt drie associates
4 november, 12:05
Eva Heldeweg, Gijs Beckman en Thom Zijlstra zijn benoemd tot associate partner bij Arons en Gelauff architecten.
DigiBouw 2025 – enkele tips
4 november, 11:14
Op 19 en 20 november 2025 vindt in het Beatrixgebouw van de Jaarbeurs in Utrecht de tweede editie van DigiBouw plaats. Enkele tips voor sessies die voor architecten van toegevoegde waarde zijn.
Ga naar het nieuws-archief
Ronnie Weessies
Redacteur
1
0
0
0
Voor een optimale gebruikservaring plaatst Architectenweb functionele cookies. Wat de verschillende cookies precies doen leggen we uit in een
overzicht
. Cookies van social media kun je optioneel
aanzetten
.
Akkoord
Instellingen
Annuleren
OK
Sluiten
Doorgaan
Inloggen
Maak een gratis persoonlijk account aan
Feedback
Feedback
Wij horen graag jouw feedback. Laat je reactie achter en eventueel jouw e-mail adres.
Reactie
Verstuur