Projecten
Producten
Bedrijven
Vacatures
Agenda
Awards
Podcasts
more_horiz
Videos
Magazine
Thema's
Favorieten
Profiel
Uitloggen
Abonneer je nu op onze nieuwsbrieven!
Abonneren
Nee, bedankt
Ja, denk met me mee rond de
materialisering van mijn project
Copyright: Luuk Kramer
Copyright: Luuk Kramer
Copyright: Luuk Kramer
Copyright: Luuk Kramer
Copyright: Luuk Kramer
Copyright: Luuk Kramer
Copyright: Luuk Kramer
Copyright: Luuk Kramer
Copyright: Luuk Kramer
Copyright: Luuk Kramer
Copyright: Luuk Kramer
Copyright: Luuk Kramer
Copyright: Luuk Kramer
Copyright: Luuk Kramer
Copyright: Luuk Kramer
Copyright: Arons en Gelauff Architecten
Copyright: Arons en Gelauff Architecten
Copyright: Arons en Gelauff Architecten
Copyright: Arons en Gelauff Architecten
Copyright: Arons en Gelauff Architecten
Copyright: Arons en Gelauff Architecten
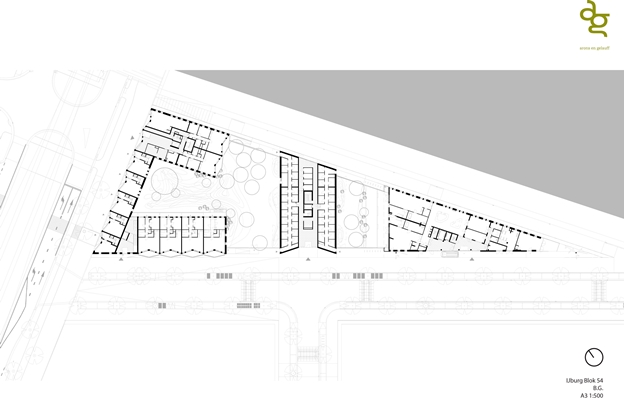
Driehoekig blok met uitzicht voor mcg-huis
13 maart 2017, 17:32
In opdracht van woningcorporatie De Alliantie heeft
Arons en Gelauff Architecten
het project BAAK54 in IJburg, Amsterdam ontworpen. Het project bestaat uit drie bouwblokken, die ruimte bieden aan 97 appartementen en een groepswoning voor gehandicapte kinderen.
De ouders van de meervoudig complex gehandicapte (mcg) kinderen hadden liefst een huis op een open plek in het bos gezien. “We bedachten dat in de boomloze omgeving het uitzicht rondom en de mooie buitenruimte de beste vertolking van de wensen was”, vertelt Arons en Gelauff Architecten.
De kinderen hebben een plek gekregen in de punt van het driehoekige blok. Het zorggebouw beslaat een oppervlak van 2.800 m². Het interieur van dit mcg-huis is ontworpen door This is Jane.
Woonblokken
Het andere eind van de driehoek bevat twee volumes met appartementen. Hierin zijn 38 koop-, 17 huur- en 42 sociale-huurwoningen gerealiseerd. Een toren markeert de overgang van Haven Eiland naar Centrum Eiland.
De eenheid in materialisering maakt de drie blokken tot een geheel. Elk volume heeft horizontale betonstrepen met een bamboetekening, metselwerk in een steen met kleurnuances en champagnekleurige kozijnen.
Buitenruimte
De verschillende vormen van de balkons geven de afzonderlijke volumes een eigen identiteit en ritme. Tussen de blokken liggen gemeenschappelijke tuinen, die een belangrijke rol spelen in de waterhuishouding van het project. Landschapsarchitect van het project is Hollandsgroen.
Trefwoorden
zorg
woningbouw
mcg-huis
amsterdam
baak 54
ijburg
hollandsgroen
arons en gelauff architecten
this is jane
Locatie
Best gelezen
1
Architectenweb symposium: ontwerpen van autovrije buurten
donderdag, 12 maart
2
De Urbanisten schetst perspectief voor vitale en aantrekkelijke Rotterdamse binnenstad
vrijdag, 13 maart
3
Nominaties Amsterdamse Architectuurprijs 2026 bekend
vrijdag, 13 maart
4
Studio Vinke en Loos van Vliet ontwerpen blok met woningen in haven Lelystad
vrijdag, 13 maart
5
Nieuwe woonwijk bij Istanbul omvat bijdragen van BIG, MVRDV en Snøhetta
donderdag, 12 maart
Gerelateerde nieuwsberichten
Ook woningen met extra hoogte in dubbel woongebouw door Arons en Gelauff
3 juni 2020
Arons en Gelauff ontwerpt circulaire en cirkelvormige school in Muiderberg
17 november 2023
IJburg krijgt woonsteigers van Attika Architekten
27 maart 2017
Bouwstart waterwoningen in centrum Amsterdam
12 november 2014
Arons en Gelauff presenteert Funenhof
8 december 2015
Arons en Gelauff ontwerpt terrassenflat voor Zeeburg
30 november 2015
Geïntegreerde contracten: klant wil ontzorgd worden
21 mei 2015
Realisatie woongebouw Pontsteiger van start
13 februari 2015
Drie gebouwen met een zee van terrassen door Arons en Gelauff
6 december 2019
Omgedraaid woonprogramma voor eerste bewoners Centrumeiland
17 juni 2020
Utrecht Oost krijgt zes woontorens voor starters
21 december 2020
20 woongebouwen met bijzondere balkons
14 december 2022
Ook woningen met extra hoogte in dubbel woongebouw door Arons en Gelauff
3 juni 2020
Arons en Gelauff ontwerpt circulaire en cirkelvormige school in Muiderberg
17 november 2023
IJburg krijgt woonsteigers van Attika Architekten
27 maart 2017
Bouwstart waterwoningen in centrum Amsterdam
12 november 2014
Arons en Gelauff presenteert Funenhof
8 december 2015
Arons en Gelauff ontwerpt terrassenflat voor Zeeburg
30 november 2015
Geïntegreerde contracten: klant wil ontzorgd worden
21 mei 2015
Realisatie woongebouw Pontsteiger van start
13 februari 2015
Drie gebouwen met een zee van terrassen door Arons en Gelauff
6 december 2019
Omgedraaid woonprogramma voor eerste bewoners Centrumeiland
17 juni 2020
Utrecht Oost krijgt zes woontorens voor starters
21 december 2020
20 woongebouwen met bijzondere balkons
14 december 2022
Toon alles
Andere nieuwsberichten
Studio AAAN realiseert luxe appartementengebouw naast klooster Etten-Leur
37 minuten geleden
Bij klooster ’t Withof in Etten-Leur is afgelopen jaar woongebouw De Hoogschout opgeleverd. Het door Studio AAAN ontworpen complex bestaat uit veertig ruime appartementen.
Hogeschool InHolland realiseert nieuw hoofdgebouw op campus Alkmaar
Gisteren, 15:38
Het gebouw, dat is ontworpen door BRTArchitecten, moet een plek worden waar studenten, docenten en andere betrokkenen samenkomen om te leren, onderzoeken en samenwerken. Spil in het ontwerp vormt een doorlopende verbindende ruimte.
Houten Stelthuis van Woonpioniers is aardbevings- en klimaatbestendig
Gisteren, 13:26
De houten steltwoning, ontworpen door Woonpioniers, vervangt een door aardbevingsschade getroffen woning in Overschild.
Bouwvergunning voor wooncomplex door SVP in Banne Noord verleend
Gisteren, 11:57
Het blok bestaat uit 107 woningen, te weten seniorenwoningen rond een collectieve binnentuin en appartementen en een woontoren. In de plint komen commerciële functies en een fietsenstalling.
Staten Utrecht willen netcongestie versneld aanpakken
1 uur geleden
De fracties wezen op de noodzaak van het zo snel mogelijk realiseren van een hoogspanningsstation dat essentieel is voor het opsplitsen van het elektriciteitsnetwerk tussen de Flevopolder, Gelderland en Utrecht.
Rotterdam wil woningbouw versnellen met pilot ‘Ontwikkelaar aan Zet’
Gisteren, 16:33
De gemeente Rotterdam start een pilot waarbij projectontwikkelaars een grotere rol krijgen bij de voorbereiding van woningbouwprojecten.
Veel meer financieringsaanvragen Warmtefonds om hogere gasprijzen
Gisteren, 14:31
De gestegen gasprijzen zorgen ervoor dat veel meer huiseigenaren financiering aanvragen voor het energiezuiniger maken van hun woning.
Grondprijs voor landbouwgrond loopt op tot bijna een ton
Gisteren, 09:36
Ook overheden en andere partijen zoeken naar grond voor onder meer woningbouw, natuur en infrastructuur.
ANWB: betrek bewoners beter bij parkeerplannen in de wijk
17 maart, 2:00
Bewoners vinden naast parkeerruimte groen en leefbaarheid in hun wijk ook belangrijk, stelt de organisatie.
Kabinet gaat mogelijk infrastructuurprojecten schrappen
17 maart, 10:42
Miljardentekorten dwingen het kabinet tot nieuwe keuzes in de aanleg en het onderhoud van infrastructuur.
Ga naar het nieuws-archief
Robert Muis
Redacteur
1
0
0
0
Voor een optimale gebruikservaring plaatst Architectenweb functionele cookies. Wat de verschillende cookies precies doen leggen we uit in een
overzicht
. Cookies van social media kun je optioneel
aanzetten
.
Akkoord
Instellingen
Annuleren
OK
Sluiten
Doorgaan
Inloggen
Maak een gratis persoonlijk account aan
Feedback
Feedback
Wij horen graag jouw feedback. Laat je reactie achter en eventueel jouw e-mail adres.
Reactie
Verstuur