Projecten
Producten
Bedrijven
Vacatures
Agenda
Awards
Podcasts
more_horiz
Videos
Magazine
Thema's
Favorieten
Profiel
Uitloggen
Abonneer je nu op onze nieuwsbrieven!
Abonneren
Nee, bedankt
Ja, denk met me mee rond de
materialisering van mijn project
Copyright: MVRDV
Copyright: MVRDV
Copyright: MVRDV
Copyright: MVRDV
Copyright: MVRDV
Copyright: MVRDV
Copyright: MVRDV
Copyright: MVRDV
Copyright: MVRDV
Copyright: MVRDV
Copyright: MVRDV
Copyright: MVRDV
Copyright: MVRDV
Tijdelijk geveldoek tijdens de transformatie
Copyright: Gao Yu
Tijdelijk geveldoek tijdens de transformatie
Copyright: Gao Yu
MVRDV transformeert oude fabriek Shenzhen tot If Factory
18 augustus 2020, 14:24
Naar ontwerp van
MVRDV
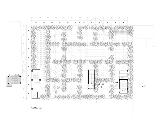
wordt een verlaten fabriek in Shenzhen getransformeerd tot een kantoorgebouw voor creatieve bedrijven. Een nieuwe, deels met hout beklede trap leidt door het gebouw naar een openbaar toegankelijk groen daklandschap. Dit laatgenoemde, multifunctionele ‘groene huis’ bestaat onder meer uit kamers waar kan worden vergaderd, gedanst of op een andere manier gerecreëerd.
De If Factory wordt gerealiseerd in opdracht van het bureau openbare werken van Shenzhen en het Chinese vastgoedbedrijf Vanke. Het fabrieksgebouw in de wijk Nantou was volgens MVRDV rijp voor de sloop, maar wordt nu het grootste project binnen de geplande renovatie van enkele gebouwen in Nantou. Het plan is om de wijk een culturele en creatieve bestemming te geven.
Het geraamte van het bestaande gebouw wordt grondig gerenoveerd, waardoor de sporen van het industriële verleden zichtbaar blijven. De buitenmuren van de nieuwe kantoren zijn naar achteren geplaatst om balkons te creëren. De wanden zijn van glas, terwijl de vloeren van de balkons zijn voorzien van glazen blokken die de entrees van het gebouw markeren.
De nieuwe toegevoegde trap vormt het hart van het gebouw. De trap leidt niet naar de kantoren, maar naar het dak en zal ook voor bezoekers van buiten toegankelijk zijn. Door de trap deels met hout te bekleden contrasteert deze met het beton en de glazen wanden in de rest van het gebouw. Langs de trap zijn ramen ingebouwd, die doorkijkjes bieden naar wat er in de kantoren gebeurt.
Toevoeging van spiegelend glas en neon-bewegwijzering maken de trap levendig en herinneren tegelijk aan de begindagen van de verstedelijking van dit deel van Shenzhen, aldus
MVRDV
.
Op het dak worden bezoekers ontvangen in een bamboelandschap dat is ingericht met verschillende kamers. Elke kamer heeft een eigen identiteit en is ingedeeld naar activiteit, van dans- en eetzaal tot leesruimte. Er zijn meer voorzieningen en activiteiten denkbaar, meldt het bureau.
Een deel van de kantoren is bestemd voor het Urban Research Institute van opdrachtgever Vanke.
Trefwoorden
mvrdv
kantoorgebouw
china
fabriek
transformatie
shenzhen
Best gelezen
1
PSV presenteert plannen voor uitbreiding Philips Stadion
vrijdag, 20 maart
2
Luxe appartementengebouw naast klooster Etten-Leur door Studio AAAN klaar
donderdag, 19 maart
3
Houten Stelthuis van Woonpioniers is aardbevings- en klimaatbestendig
woensdag, 18 maart
4
BureauVanEig verbetert uitstraling Haagse rijtjeswoningen bij verduurzaming
dinsdag, 17 maart
5
KAAN Architecten en De Zwarte Hond winnen tender voor Area 19 TU Eindhoven
vrijdag, 20 maart
Gerelateerde nieuwsberichten
Ontwerp NIO House Chongqing door MVRDV gericht op beleving
7 september 2020
MVRDV ontwerpt nieuwe centrale bibliotheek Wuhan, China
10 januari 2023
Superimpose presenteert alternatief voor reguliere woningbouw in China
12 maart 2021
MVRDV vertaalt badminton-attributen naar ontwerp Chinees sportcentrum
20 september 2024
MVRDV-masterplan voor Karlsruhe met zwevende tuin als blikvanger
3 augustus 2020
MVRDV presenteert zich met expositie in Berlijn
27 juli 2020
'Janus-gebouw' MVRDV in Poolse stad Wroclaw geopend
17 juli 2020
MVRDV blaast 'eigen' paviljoen Expo 2000 nieuw leven in
10 juli 2020
Flexibel café-restaurant voor Depot Boijmans van Beuningen
9 juli 2020
Almere gaat door met Floriade 2022
19 juni 2020
Hoogstraat Rotterdam ingericht voor de 1,5 metersamenleving
16 juni 2020
Rotterdams kantoorpand omgetoverd tot 'mediterrane' patiowoning
12 juni 2020
MVRDV: hoofdopzet Valley tot op de millimeter gelijk gebleven
17 april 2020
MVRDV ontwerpt wijk in Shenzhen als gestapelde terrassen
23 maart 2020
Oud winkelcentrum als 'ruïne' zichtbaar in waterpark MVRDV
11 maart 2020
MVRDV ziet ruimte voor 'vertiports' in stedelijke gebieden voor kleinschalige luchtmobiliteit
28 februari 2020
Uber neemt intrek in herontwikkeld Tripolis-complex
13 februari 2020
MVRDV ontwerpt 'creatief dorp' in centrum Potsdam
7 februari 2020
Luchtbrug doorsnijdt torens in hoogbouwcomplex OMA
13 mei 2020
Demonstratiezone kustbescherming Dapeng van KCAP+Felixx geopend
7 mei 2020
MLA+ maakt winnend plan Banshan Park Belt in Shenzhen
7 april 2020
Frank Havermans toont in Shenzhen een gastvrij kunstwerk
12 februari 2020
Zaha Hadid Architects ontwerpt OPPO-hoofdkantoor in vier torens
28 januari 2020
Tweede project van OMA in Shenzhen opgeleverd
31 augustus 2020
MVRDV ontwerpt complex met 'muurschilderingen' in Detroit
1 oktober 2020
Spel van verhulling en onthulling in Haussmann-pand
29 oktober 2020
Monument uit communistisch verleden Albanië wordt door MVRDV radicaal geopend
19 februari 2021
Eerste fase Chinees project LOLA, Taller en LCC valt in de prijzen
22 februari 2021
Shanghai Xintiandi-atrium door AIM Architecture omgevormd tot binnenplein
28 april 2021
Film over Winy Maas 1 juni in première
17 mei 2021
Bouw gestart van gezonde buurt met hoge dichtheid naar plan MORE
22 juni 2021
MVRDV renoveert een van de oudste torens van Shenzhen
25 juni 2021
Team VenhoevenCS maakt masterplan voor stadsnatuur langs rivier Shenzhen
26 oktober 2021
LOLA en Mecanoo winnen prijsvraag voor wetenschapscampus Shenzhen
5 mei 2023
Ontwerp NIO House Chongqing door MVRDV gericht op beleving
7 september 2020
MVRDV ontwerpt nieuwe centrale bibliotheek Wuhan, China
10 januari 2023
Superimpose presenteert alternatief voor reguliere woningbouw in China
12 maart 2021
MVRDV vertaalt badminton-attributen naar ontwerp Chinees sportcentrum
20 september 2024
MVRDV-masterplan voor Karlsruhe met zwevende tuin als blikvanger
3 augustus 2020
MVRDV presenteert zich met expositie in Berlijn
27 juli 2020
'Janus-gebouw' MVRDV in Poolse stad Wroclaw geopend
17 juli 2020
MVRDV blaast 'eigen' paviljoen Expo 2000 nieuw leven in
10 juli 2020
Flexibel café-restaurant voor Depot Boijmans van Beuningen
9 juli 2020
Almere gaat door met Floriade 2022
19 juni 2020
Hoogstraat Rotterdam ingericht voor de 1,5 metersamenleving
16 juni 2020
Rotterdams kantoorpand omgetoverd tot 'mediterrane' patiowoning
12 juni 2020
MVRDV: hoofdopzet Valley tot op de millimeter gelijk gebleven
17 april 2020
MVRDV ontwerpt wijk in Shenzhen als gestapelde terrassen
23 maart 2020
Oud winkelcentrum als 'ruïne' zichtbaar in waterpark MVRDV
11 maart 2020
MVRDV ziet ruimte voor 'vertiports' in stedelijke gebieden voor kleinschalige luchtmobiliteit
28 februari 2020
Uber neemt intrek in herontwikkeld Tripolis-complex
13 februari 2020
MVRDV ontwerpt 'creatief dorp' in centrum Potsdam
7 februari 2020
Luchtbrug doorsnijdt torens in hoogbouwcomplex OMA
13 mei 2020
Demonstratiezone kustbescherming Dapeng van KCAP+Felixx geopend
7 mei 2020
MLA+ maakt winnend plan Banshan Park Belt in Shenzhen
7 april 2020
Frank Havermans toont in Shenzhen een gastvrij kunstwerk
12 februari 2020
Zaha Hadid Architects ontwerpt OPPO-hoofdkantoor in vier torens
28 januari 2020
Tweede project van OMA in Shenzhen opgeleverd
31 augustus 2020
MVRDV ontwerpt complex met 'muurschilderingen' in Detroit
1 oktober 2020
Spel van verhulling en onthulling in Haussmann-pand
29 oktober 2020
Monument uit communistisch verleden Albanië wordt door MVRDV radicaal geopend
19 februari 2021
Eerste fase Chinees project LOLA, Taller en LCC valt in de prijzen
22 februari 2021
Shanghai Xintiandi-atrium door AIM Architecture omgevormd tot binnenplein
28 april 2021
Film over Winy Maas 1 juni in première
17 mei 2021
Bouw gestart van gezonde buurt met hoge dichtheid naar plan MORE
22 juni 2021
MVRDV renoveert een van de oudste torens van Shenzhen
25 juni 2021
Team VenhoevenCS maakt masterplan voor stadsnatuur langs rivier Shenzhen
26 oktober 2021
LOLA en Mecanoo winnen prijsvraag voor wetenschapscampus Shenzhen
5 mei 2023
Toon alles
Andere nieuwsberichten
PSV presenteert plannen voor uitbreiding Philips Stadion
20 maart, 3:37
De Eindhovense club wil de capaciteit van zijn onderkomen opschroeven met maximaal 25.000 bezoekers. Om dit te bewerkstelligen, komt er een nieuwe schil rond het stadion waarin een derde ring is opgenomen.
Rijkswaterstaat staakt renovatie markante houten Krùsrak-brug in Sneek
20 maart, 11:32
Tijdens de renovatie werd duidelijk dat de constructieve veiligheid van de brug niet langer kan worden verzekerd, laat RWS weten. De uit 2008 stammende Krúsrak-brug over de rijksweg 7 is ontworpen door Onix en Archterbosch Architecten.
KAAN Architecten en De Zwarte Hond winnen tender voor Area 19 TU Eindhoven
20 maart, 10:35
De opdracht omvat het ontwerp van een nieuw onderzoeks- en onderwijsgebouw en de stedenbouwkundige ontwikkeling van een nieuw campusgebied.
Projecten gezocht voor vijfde Adriaan Dessingprijs
19 maart, 2:42
De tweejaarlijkse architectuurprijs vestigt de aandacht op bijzondere, gerealiseerde plannen in de Zuid-Hollandse gemeenten Westland en Midden-Delfland. Het kan gaan om nieuwbouw, restauratie of landschappelijke projecten.
Friesland brengt duizenden karakteristieke boerderijen in kaart
20 maart, 2:16
Door alle informatie over de voor het landschap kenmerkende gebouwen op één plek te brengen, moet het makkelijker worden om ze te behouden.
ING: bijna de helft van de huiseigenaren stelt verduurzaming uit
20 maart, 12:18
De meeste mensen vinden dat de overheid te weinig doet om dit te stimuleren.
Rekenkamer kraakt resultaten EU-innovatiefonds voor verduurzaming
20 maart, 9:25
Het Innovatiefonds van de Europese Unie levert veel minder resultaat op dan verwacht op het gebied van verduurzaming en innovatie.
Provincie schrapt beoogde locaties windturbines in Groene Hart
19 maart, 1:35
De provincie had twaalf plekken op het oog, maar dat leidde tot maatschappelijk en politiek verzet.
Staten Utrecht willen netcongestie versneld aanpakken
19 maart, 9:44
De fracties wezen op de noodzaak van het zo snel mogelijk realiseren van een hoogspanningsstation dat essentieel is voor het opsplitsen van het elektriciteitsnetwerk tussen de Flevopolder, Gelderland en Utrecht.
Rotterdam wil woningbouw versnellen met pilot ‘Ontwikkelaar aan Zet’
18 maart, 4:33
De gemeente Rotterdam start een pilot waarbij projectontwikkelaars een grotere rol krijgen bij de voorbereiding van woningbouwprojecten.
Ga naar het nieuws-archief
Ronnie Weessies
Redacteur
1
0
0
0
Voor een optimale gebruikservaring plaatst Architectenweb functionele cookies. Wat de verschillende cookies precies doen leggen we uit in een
overzicht
. Cookies van social media kun je optioneel
aanzetten
.
Akkoord
Instellingen
Annuleren
OK
Sluiten
Doorgaan
Inloggen
Maak een gratis persoonlijk account aan
Feedback
Feedback
Wij horen graag jouw feedback. Laat je reactie achter en eventueel jouw e-mail adres.
Reactie
Verstuur