Projecten
Producten
Bedrijven
Vacatures
Agenda
Awards
Podcasts
more_horiz
Videos
Magazine
Favorieten
Profiel
Uitloggen
Abonneer je nu op onze nieuwsbrieven!
Abonneren
Nee, bedankt
Ja, denk met me mee rond de
materialisering van mijn project
Copyright: ZZDP Architects
Copyright: Pixelpool
Copyright: Pixelpool
Copyright: Pixelpool
Copyright: Pixelpool
Copyright: Pixelpool
Copyright: ZZDP Architects
Copyright: ZZDP Architects
Copyright: ZZDP Architects
Copyright: ZZDP Architects
Copyright: Architectenbureau Harry Nefkens
Copyright: ZZDP Architects
Copyright: ZZDP Architects
ZZDP transformeert voormalig ministerie in Rijswijk
6 juni 2019, 11:13
De Winston Churchill Tower in Rijswijk zal een transformatie ondergaan van kantoorpand naar woontoren.
ZZDP Architecten
heeft een ontwerp gemaakt dat de hoogte van het gebouw benadrukt en
DELVA Landscape Architecture & Urbanism
ontwierp een groene ruimte rondom de voet.
Het kantoorpand aan de Rijswijkse Sir Winston Churchilllaan is in 1971 gebouwd naar een ontwerp van de architect Harry Nefkens. In 2001 is het kantoorgebouw gerenoveerd en tot op het kale betonskelet gestript. De gevel werd vervolgens voorzien van glas en aluminium panelen.
Het kantoorgebouw was in gebruik bij het ministerie van Volksgezondheid, Welzijn en Sport; tot de laatste huurders behoorden het Shell-pensioenfonds en het Centraal Orgaan opvang Asielzoekers. Sinds 2017 staat de Winston Churchill Tower grotendeels leeg.
De ontwikkelaar Reshape Properties heeft bij de gemeente Rijkwijk een plan ingediend om het pand te transformeren naar appartementengebouw ‘The Minister’.
Balkons en erkers
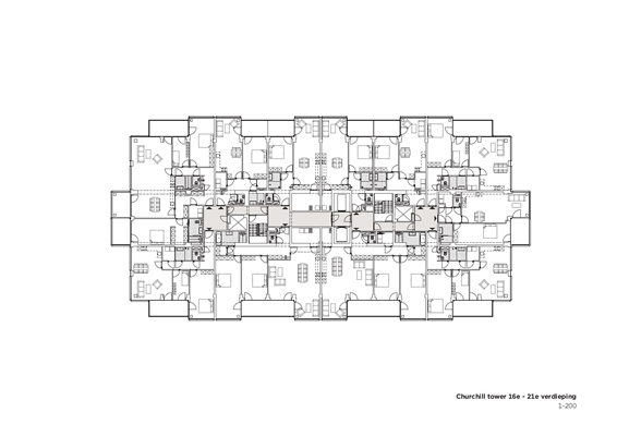
In zijn ontwerp doet ZZDP Architecten een aantal ingrijpende strategische aanpassingen aan het bestaande casco om aantrekkelijke woningen te realiseren. Het bureau voegt erkers en balkons toe, waarmee het de appartementen extra kwaliteit en leefruimte verschaft en tegelijkertijd het aanzicht van de huidige vlakke gevel verandert.
De buitenruimten zijn royaal vormgegeven en de erkers zijn bijzonder transparant, legt ZZDP uit. De erkers verschaffen de gevel een verticale geleding die de hoogte van het gebouw benadrukt. Als gevelbekleding kiest het architectenbureau voor panelen met een textuur die de kleur laat variëren naar gelang de lichtinval.
Extra lagen
Op de top voegt ZZDP drie terugliggende verdiepingen toe als nieuwe beëindiging van het gebouw. Deze nieuwe lagen bieden ruimte aan een aantal penthouses, die zullen profiteren van een weids uitzicht, met zicht op zee.
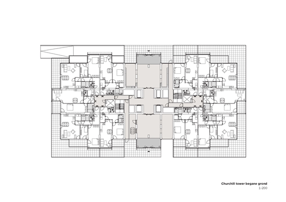
Een ruim vormgegeven entreehal verbindt beide zijden van het woongebouw. Rondom de voet van de toren heeft DELVA Landscape Architecture & Urbanism een groene ruimte ontworpen. De landschappelijke inrichting sluit aan op de bestaande omgeving; de verkeersstructuur binnen de wijk blijft behouden.
Transformatie gebied
Reshape Properties wil in het gebouw 316 woningen, variërend in oppervlakte, realiseren. Daarbij zijn zowel middeldure huur- als koopwoningen bedacht.
De gemeenteraad van Rijswijk heeft begin april het bestemmingsplan van de toren gewijzigd vastgesteld. Het plan voor The Minister ziet de gemeente als een stap in haar ambitie om het gebied als geheel te transformeren tot een levendig woon-, winkel- en verblijfsgebied. Onlangs heeft Rijswijk een Gebiedsvisie gepubliceerd met het oog op een toekomstbestendig stadscentrum.
Trefwoorden
rijswijk
kantoorgebouw
delva landscape architects
architectenbureau harry nefkens
transformatie
zzdp architecten
ministerie
woontoren
Locatie
Best gelezen
1
AM en Amvest zoeken architecten voor herontwikkeling Draka-terrein
dinsdag, 19 mei
2
Woningbouwproject KAAP langs het IJ in Amsterdam voltooid
dinsdag, 19 mei
3
Renovatie station Leeuwarden door Movares afgerond
woensdag, 20 mei
4
Dam & Partners ontwerpt multifunctioneel gebouw in Schinkelhaven
dinsdag, 19 mei
5
Utrechtse flats gerenoveerd volgens 'chassis-carrosseriemethode'
donderdag, 21 mei
Gerelateerde nieuwsberichten
Anterieure overeenkomst getekend voor UrbanParks in Rijswijk
5 januari 2024
Robuust gebouwenensemble markeert entree tot woonbuurt in RijswijkBuiten
26 augustus 2024
Transformatie en nieuwbouw door ZZDP levert 77 woningen op in De Pijp
3 april 2023
Studioninedots en BOOM Landscape maken ontwerp At The Park Rijswijk
8 september 2022
Versteend plein bij winkelcentrum Rijswijk omgetoverd tot stadspark
22 juli 2022
Voormalig belastingkantoor Rijswijk getransformeerd tot woongebouw
21 juli 2021
Gemeente Rijswijk laat zelf woningen bouwen voor middeninkomens
28 juni 2021
Bouw De Koploper RijswijkBuiten van start
14 april 2021
Cepezed transformeert voormalige Shell-campus Rijswijk
7 augustus 2019
Collectiviteit basis voor circulariteit in Ruimtelijk Raamwerk M4H
4 juli 2019
Renovatie voor Utrechts winkelcentrum De Planeet
13 december 2018
Park Inn by Radisson opent designhotel in Ven Amsterdam
4 juli 2018
Hotel Houthavens van ZZDP Architecten voltooid
21 februari 2018
Drie woontorens bij Amsterdam Arena
8 februari 2017
Holland Casino van Schiphol naar Sloterdijk
22 september 2016
Bouw hotelpand Houthavens Amsterdam gestart
10 juni 2016
Woongebouw Kortenaer in Den Haag opgeleverd
27 mei 2016
Anterieure overeenkomst getekend voor UrbanParks in Rijswijk
5 januari 2024
Robuust gebouwenensemble markeert entree tot woonbuurt in RijswijkBuiten
26 augustus 2024
Transformatie en nieuwbouw door ZZDP levert 77 woningen op in De Pijp
3 april 2023
Studioninedots en BOOM Landscape maken ontwerp At The Park Rijswijk
8 september 2022
Versteend plein bij winkelcentrum Rijswijk omgetoverd tot stadspark
22 juli 2022
Voormalig belastingkantoor Rijswijk getransformeerd tot woongebouw
21 juli 2021
Gemeente Rijswijk laat zelf woningen bouwen voor middeninkomens
28 juni 2021
Bouw De Koploper RijswijkBuiten van start
14 april 2021
Cepezed transformeert voormalige Shell-campus Rijswijk
7 augustus 2019
Collectiviteit basis voor circulariteit in Ruimtelijk Raamwerk M4H
4 juli 2019
Renovatie voor Utrechts winkelcentrum De Planeet
13 december 2018
Park Inn by Radisson opent designhotel in Ven Amsterdam
4 juli 2018
Hotel Houthavens van ZZDP Architecten voltooid
21 februari 2018
Drie woontorens bij Amsterdam Arena
8 februari 2017
Holland Casino van Schiphol naar Sloterdijk
22 september 2016
Bouw hotelpand Houthavens Amsterdam gestart
10 juni 2016
Woongebouw Kortenaer in Den Haag opgeleverd
27 mei 2016
Toon alles
Gerelateerde podcasts
Toren van Babel
Gesprek met Adam Smit over de transformatie van hoogbouw
16 maart 2023
Andere nieuwsberichten
SOME architects presenteert resultaten van onderzoek naar woonwensen 55-plussers
Gisteren, 16:09
Publicatie ‘Woontitanen’ biedt inspiratie en handvatten om kloof tussen vraag en aanbod in woningaanbod voor 55-plussers te dichten.
In beeld: inschuiven dakdeel van 2,4 miljoen kilo over Vivaldipassage
Gisteren, 14:43
Bij station Amsterdam Zuid vond afgelopen week een bijzondere inschuifoperatie plaats. Ten oosten van het station werd een nieuw dakdeel met een gewicht van 2,4 miljoen kilo over de toekomstige Vivalipassage geschoven.
Brug van hergebruikte materialen over Papaverkanaal in Buiksloterham
Gisteren, 13:15
Knipscheer Infra en Rademacher / De Vries Architecten hebben de aanbesteding gewonnen voor een brug van hergebruikte materialen in de Amsterdamse wijk Buiksloterham.
OZ transformeert kantoorgebouw achter voormalig hoofdkantoor Shell tot Ypsilon Park
Gisteren, 10:41
OZ transformeert een kantoorgebouw uit de jaren zeventig aan de Wassenaarseweg in Den Haag tot een woongebouw. Ypsilon Park bestaat uit 79 appartementen en penthouses, die in grootte variëren van 75 tot 280 vierkante meter.
Amsterdam wil woningbezitters weren uit sociale huurwoning
Gisteren, 12:23
Het stadsbestuur wil daarmee duidelijk maken dat het onwenselijk is dat huizenbezitters sociale huurwoningen bezet houden.
Mogelijk minder ruimte nodig voor uitbreidingsplannen Moerdijk
Gisteren, 09:47
Het dorp Moerdijk zou in dat geval kunnen blijven bestaan, aldus de gemeente.
Museum Rotterdam ontvangt sleutels van Citykerk Het Steiger
21 mei, 3:01
Citykerk Het Steiger, een wederopbouwmonument in de Rotterdamse binnenstad, ondergaat in de komende jaren een transformatie naar onderkomen voor Museum Rotterdam, alsook naar woon- en kantoorruimte.
Naturalis: Nederlandse natuur verbetert, maar niet snel genoeg
21 mei, 1:50
Het gaat beter met de natuur in Nederland, maar niet snel genoeg om aan afspraken te voldoen.
Bouw van flexwoningen valt tegen, ziet Rekenkamer
21 mei, 9:50
De 948 miljoen euro die sinds 2021 opzij is gezet om meer flexwoningen te bouwen, is pas deels uitgegeven.
Binnenhof al bij voorbaat te klein voor alle organisaties
20 mei, 2:47
Nog voordat de verbouwing van het Binnenhof klaar is, is het complex te klein voor alle organisaties die erin moeten.
Ga naar het nieuws-archief
Robert Muis
Redacteur
1
0
0
0
Voor een optimale gebruikservaring plaatst Architectenweb functionele cookies. Wat de verschillende cookies precies doen leggen we uit in een
overzicht
. Cookies van social media kun je optioneel
aanzetten
.
Akkoord
Instellingen
Annuleren
OK
Sluiten
Doorgaan
Inloggen
Maak een gratis persoonlijk account aan
Feedback
Feedback
Wij horen graag jouw feedback. Laat je reactie achter en eventueel jouw e-mail adres.
Reactie
Verstuur