Projecten
Producten
Bedrijven
Vacatures
Agenda
Awards
Podcasts
more_horiz
Videos
Magazine
Thema's
Favorieten
Profiel
Uitloggen
Abonneer je nu op onze nieuwsbrieven!
Abonneren
Nee, bedankt
Ja, denk met me mee rond de
materialisering van mijn project
Copyright: Marcel van der Burg
Copyright: Marcel van der Burg
Copyright: Marcel van der Burg
Copyright: Marcel van der Burg
Copyright: Marcel van der Burg
Copyright: Marcel van der Burg
Copyright: Marcel van der Burg
Copyright: Marcel van der Burg
Copyright: Marcel van der Burg
Copyright: Marcel van der Burg
Copyright: Marcel van der Burg
Copyright: Marcel van der Burg
Copyright: GAAGA
Copyright: GAAGA
Copyright: GAAGA
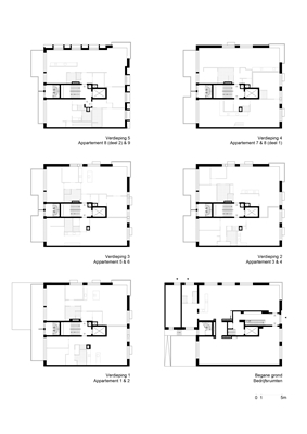
Op maat gemaakt maar aanpasbaar woongebouw bij De Hallen
15 februari 2019, 13:29
Nabij het voormalige tramdepot De Hallen in Amsterdam-West is woongebouw Blok B5 opgeleverd. Voor een bouwgroep ontwierp architectenbureau
GAAGA
een gebouw met negen appartementen, verdeeld over vijf verdiepingen. Ondanks dat de woningen op maat zijn ontworpen, kan het gebouw worden aangepast aan veranderende wensen in de toekomst.
Het gebouw op de hoek van de Bilderdijkkade en de Kwakersstraat valt op door de stalen balkons en de erkers op de hoek die om en om verspringen. Het idee voor de (Franse) balkons is ingegeven door de negentiende-eeuwse omgeving.
Voor de balkons is een zelfdragende constructie bedacht van dunwandig staal rond de gevelopeningen. “Het is eigenlijk dezelfde constructie als waar een scheepsromp zijn stevigheid aan ontleent“, meldt GAAGA.
Het balkon is een op maat gemaakt product. Bij delen waar bewoners dat wilden, steekt het staal uit en vormt het een overdekt balkon. Dankzij de constructiewijze kon de balkonvloer slechts acht centimeter dik worden gehouden, zodat dit onderdeel van de gevel niet al te massief oogt.
Samenhang
De uitdaging voor Blok B5 was om een ontwerp te maken dat ruimte biedt voor de individuele bewonerswensen, zonder daarbij samenhang en eenheid in het gebouw als geheel te verliezen, aldus GAAGA.
Dankzij de toepassing van lichte, niet-dragende scheidingswanden en een strategische positionering van vaste elementen als de installatieschachten, kunnen de woningen in de toekomst worden aangepast aan de wensen van dat moment.
Erkers
De erkers op de hoek van het gebouw zijn zo vormgegeven dat ze aan de binnenkant zijn te gebruiken als zitelement. De royale ramen bieden de bewoners een wijds zicht op de gracht en de bebouwde omgeving.
De begane grond van Blok B5 is geheel bestemd als werkruimte.
Trefwoorden
bouwgroep
woningbouw
woongebouw
erker
balkon
gaaga
de hallen
amsterdam
Locatie
Best gelezen
1
Finalisten presenteren ontwerp voor Shift Landmark in Rotterdam
woensdag, 4 maart
2
Architect Oliver Thill op 55-jarige leeftijd overleden
donderdag, 5 maart
3
Nieuwe Hittekaart Woningmarkt 2026 van BPD toont aanhoudende woningdruk
dinsdag, 3 maart
4
Strijp-S krijgt woonbuurtje met karakteristieken voormalig Philips-terrein
maandag, 2 maart
5
Haagse gemeenteraad stemt in met bouw van 11.400 woningen in nieuw stadscentrum
maandag, 2 maart
Gerelateerde nieuwsberichten
Twee plannen Bosrijk Eindhoven integreren woningen in landschap
24 september 2019
Bouw van wooncomplex op dubbelkavel in Delft gestart
22 november 2018
Bouw demontabel woongebouw Buiksloterham gestart
7 juni 2018
Conservenfabriek getransformeerd tot wooncomplex
12 juni 2017
Woning met buitenruimte en privacy op smalle kavel
10 mei 2017
Particulieren transformeren Leidse fabriek
9 januari 2015
Woning met gestreept stucwerk in Leiden
17 september 2012
Erfgoedprijs voor De Hallen en Vrienden Huis Doorn
14 april 2015
Amsterdamse Prijzen van 2014 uitgereikt
12 december 2014
Twee plannen Bosrijk Eindhoven integreren woningen in landschap
24 september 2019
Bouw van wooncomplex op dubbelkavel in Delft gestart
22 november 2018
Bouw demontabel woongebouw Buiksloterham gestart
7 juni 2018
Conservenfabriek getransformeerd tot wooncomplex
12 juni 2017
Woning met buitenruimte en privacy op smalle kavel
10 mei 2017
Particulieren transformeren Leidse fabriek
9 januari 2015
Woning met gestreept stucwerk in Leiden
17 september 2012
Erfgoedprijs voor De Hallen en Vrienden Huis Doorn
14 april 2015
Amsterdamse Prijzen van 2014 uitgereikt
12 december 2014
Toon alles
Andere nieuwsberichten
André Kempe: ‘Het ging Oliver Thill om het geven van betekenis’
3 uur geleden
Agelopen maandag is architect Oliver Thill overleden. Zijn compagnon André Kempe gedenkt de man met wie hij al meer dan 35 jaar bevriend was en ruim een kwarteeuw geleden Atelier Kempe Thill oprichtte.
TconcepT transformeert voormalig warenhuis in Offenbach tot bibliotheek
Vandaag, 15:54
Het 12.000 vierkante meter omvattende complex gaat in bredere zin fungeren als een cultuur- en educatiecentrum met vele functies. In 2027 moet Station Mitte, zoals het gebouw zijn volgende leven wordt genoemd, klaar zijn.
Werkstatt gaat verder zonder medeoprichter Niels Groeneveld
Vandaag, 14:49
Medeoprichter van Werkstatt Niels Groeneveld stopt als partner bij het bureau, om zich te kunnen richten op zijn gezin en onderwijs. Floor Frings en Raoul Vleugels blijven het Eindhovense bureau leiden.
Binationaal ontwerpteam buigt zich over waterhuishouding Cartagena in Colombia
Vandaag, 13:43
Een Colombiaans-Nederlands ontwerpteam met Felixx Landscape Architects & Planners en Witteveen+Bos moedigt Cartagena aan om haar relatie met water te heroverwegen en na te denken over een veerkrachtige toekomst
Kunstmuseum in Den Haag moet worden verbouwd
Vandaag, 16:32
Daarvoor dient het museum in het Statenkwartier waarschijnlijk een tijd te sluiten.
Coen van Oostrom benoemd tot nieuwe voorzitter VNO-NCW
Vandaag, 12:23
De oprichter van ontwikkelaar Edge volgt in die rol Ingrid Thijssen op, die deze week is begonnen als nieuwe bestuursvoorzitter van de TU Delft.
Rapport: lokaal klimaatbeleid schiet nog tekort
Vandaag, 10:25
De makers van de zogeheten Toekomstmeter hebben het beleid van zeventig gemeenten doorgelicht.
Hardt Hyperloop failliet verklaard door rechtbank
Gisteren, 11:37
Het Rotterdamse bedrijf was bezig met de ontwikkeling van technologie om mensen op hoge snelheid via capsules door een vacuümbuis te vervoeren.
Onderzoek: zeespiegel kustgebieden hoger dan in studies aangenomen
Gisteren, 09:13
De zeespiegel aan de kust is in grote delen van de wereld waarschijnlijk hoger dan in veel wetenschappelijke studies wordt aangenomen.
Gelderland geeft voorrang aan vergunningen met minder stikstof
4 maart, 12:24
De plannen zijn onderdeel van het pakket maatregelen dat het Gelderse bestuur wil nemen om de vergunningverlening voor zaken als de woningbouw weer op gang te krijgen.
Ga naar het nieuws-archief
Ronnie Weessies
Redacteur
0
0
0
0
Voor een optimale gebruikservaring plaatst Architectenweb functionele cookies. Wat de verschillende cookies precies doen leggen we uit in een
overzicht
. Cookies van social media kun je optioneel
aanzetten
.
Akkoord
Instellingen
Annuleren
OK
Sluiten
Doorgaan
Inloggen
Maak een gratis persoonlijk account aan
Feedback
Feedback
Wij horen graag jouw feedback. Laat je reactie achter en eventueel jouw e-mail adres.
Reactie
Verstuur