Projecten
Producten
Bedrijven
Vacatures
Agenda
Awards
Podcasts
more_horiz
Videos
Magazine
Thema's
Favorieten
Profiel
Uitloggen
Copyright: GAAGA
Copyright: GAAGA
Copyright: GAAGA
Copyright: GAAGA
Copyright: GAAGA
Copyright: GAAGA
Copyright: GAAGA
Bouw van wooncomplex op dubbelkavel in Delft gestart
22 november 2018, 15:04
In het Leeuwenhoekkwartier, vlakbij station Delft, is onlangs de bouw gestart van een wooncomplex dat is ontwikkeld met een bouwgroep. Voor architectenbureau
GAAGA
was het de uitdaging om voor de dubbelkavel een woongebouw te ontwerpen dat de indruk van twee afzonderlijke panden geeft.
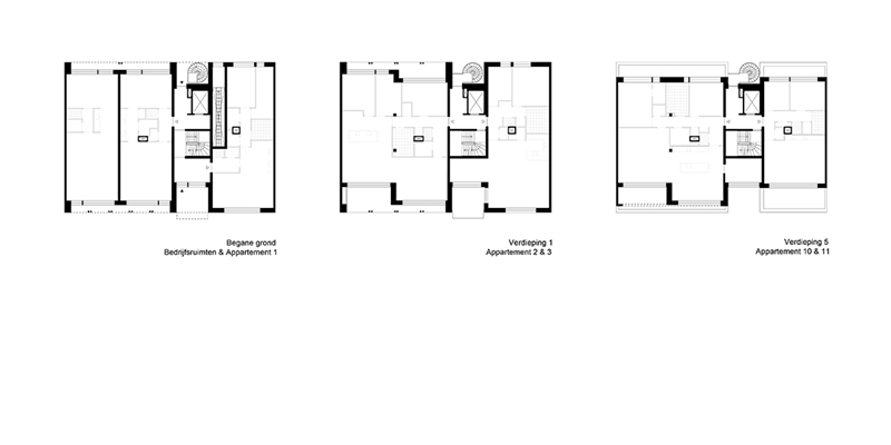
Op twee stadskavels aan de Nieuwe Gracht in Delft verrijst een woongebouw, dat elf woningen en op de begane grond twee werkruimten zal omvatten. Het samenvoegen van de twee kavels bood ruime mogelijkheden voor het creëren van grote gelijkvloerse woningen, hetgeen de bewoners wensten.
Tegelijkertijd zou door de samenvoeging een bredere kavelmaat ontstaan dan het stedenbouwkundig plan toestond. Het verenigen van deze tegenstrijdige uitgangspunten was een belangrijk startpunt in het ontwerp, vertelt GAAGA.
Visuele splitsing
Door op de grens tussen de beide kavels een zone met lift- en trappenhuis te introduceren, heeft het architectenbureau gezorgd voor een vanzelfsprekende scheiding in het gebouw. Per verdieping konden zo twee grote woningen worden ontworpen, steeds aan weerszijden van het lift- en trappenhuis.
Een efficiënt ontsluitingssysteem gaf vervolgens de ruimte om aan de buitenzijde de gevel te laten inspringen, leggen de architecten uit. Daarmee heeft GAAGA het gebouw visueel opgedeeld in twee panden.
Eenheid
Eenheid in detaillering, kleur- en materiaalgebruik zorgt ervoor dat het complex tegelijkertijd als een geheel wordt ervaren. Zo komen stalen elementen in beide panden terug: in het ene gebouw in de vorm van tweelingkolommen en in het andere in de vorm van een getrapte omkadering van de ramen.
Daarnaast bestaan beide gevels uit één uniform hoofdmateriaal, in getemperde grijze tinten met een levendige textuur. Het linkerpand wordt voorzien van glad versus licht gestraald beton; het rechterpand wordt uitgevoerd met vertind en gekaleid metselwerk.
Buitenruimte
Om de appartementen van royale buitenruimtes te voorzien, maar qua gevelbeeld in lijn te blijven met het 'balkon-arme' straatbeeld van de Delftse binnenstad, heeft GAAGA de balkons teruggelegd in de gevel. Grote vierkante balkons, ingeklemd in de holte tussen de panden, en brede inpandige loggia’s met tweelingkolommen en balustrades vormen een rustig en ritmisch straatbeeld.
De plint van het gebouw valt op door de afwijkende hoogte ten opzichte van de overige verdiepingen. In de plint zijn twee bedrijfsruimten gesitueerd. Een parkeersysteem op het binnenterrein maakt het mogelijk om op de begane grond zowel buitenruimtes als parkeerplekken te realiseren, aldus GAAGA.
Blijvende flexibiliteit
De opzet van de hoofdstructuur van het gebouw geeft de bewoners de vrijheid om zelf de indeling van het appartement te bepalen. Deze flexibiliteit is niet eenmalig, volgens de architecten; ook in de toekomst blijven aanpassingen mogelijk, wat de houdbaarheidsdatum van het gebouw flink verlengt.
Trefwoorden
appartementen
delft
woningbouw
woongebouw
gaaga
Best gelezen
1
Spectaculaire overkapping voor vernieuwd Arnhems busstation Kronenburg
maandag, 3 november
2
Vakwerk Architecten uitgeroepen tot Architect van het Jaar 2025
woensdag, 5 november
3
Groot Egyptisch Museum naar ontwerp van Heneghan Peng en West 8 officieel geopend
maandag, 3 november
4
Fenix, kunstmuseum over migratie, is Publiek gebouw van het Jaar 2025
woensdag, 5 november
5
NOAHH ontwerpt nieuw zwembad in Noordersportpark Haarlem
dinsdag, 4 november
Gerelateerde nieuwsberichten
Twee plannen Bosrijk Eindhoven integreren woningen in landschap
24 september 2019
Bouw demontabel woongebouw Buiksloterham gestart
7 juni 2018
Conservenfabriek getransformeerd tot wooncomplex
12 juni 2017
Woning met buitenruimte en privacy op smalle kavel
10 mei 2017
Zes nieuwe CPO’s in Amsterdam-Noord
1 juni 2016
Particulieren transformeren Leidse fabriek
9 januari 2015
Delft zoekt partij voor multifunctioneel kopgebouw
2 maart 2016
Delft wil verder met ontwikkeling spoorzone
7 september 2015
Op maat gemaakt maar aanpasbaar woongebouw bij De Hallen
15 februari 2019
Gebouw met 279 energieneutrale starterswoningen voor Delft
10 april 2019
Tako Postma nieuwe stadsbouwmeester van Delft
27 september 2019
Coendersbuurt in Delft is klaar
23 juli 2020
Twee plannen Bosrijk Eindhoven integreren woningen in landschap
24 september 2019
Bouw demontabel woongebouw Buiksloterham gestart
7 juni 2018
Conservenfabriek getransformeerd tot wooncomplex
12 juni 2017
Woning met buitenruimte en privacy op smalle kavel
10 mei 2017
Zes nieuwe CPO’s in Amsterdam-Noord
1 juni 2016
Particulieren transformeren Leidse fabriek
9 januari 2015
Delft zoekt partij voor multifunctioneel kopgebouw
2 maart 2016
Delft wil verder met ontwikkeling spoorzone
7 september 2015
Op maat gemaakt maar aanpasbaar woongebouw bij De Hallen
15 februari 2019
Gebouw met 279 energieneutrale starterswoningen voor Delft
10 april 2019
Tako Postma nieuwe stadsbouwmeester van Delft
27 september 2019
Coendersbuurt in Delft is klaar
23 juli 2020
Toon alles
Andere nieuwsberichten
Campus met onderwijs en woningen in 's Hertogenbosch officieel geopend
7 november, 2:56
Op de laatste twee bouwkavels van het Paleiskwartier aan de Onderwijsboulevard 300 ontwikkelden Avans Hogeschool en BrabantWonen 20.000 vierkante onderwijsgebouw en 124 studentenwoningen op een parkeergarage.
Voorlopig ontwerp renovatie en verduurzaming provinciehuis Utrecht gepresenteerd
7 november, 11:44
Behalve dat het energielabel van het dertig jaar oude gebouw fors wordt opgekrikt, krijgen de werkplekken, vergaderruimtes en openbare ruimtes een eigentijdse en volgens de provincie uitnodigende inrichting. INBO is verantwoordelijk voor het ontwerp.
Mix van oude en nieuwe werken plus wereldrecordpoging tijdens GLOW 2025
7 november, 9:29
Zaterdag opent de Eindhovense burgemeester Jeroen Dijsselbloem de twintigste editie van GLOW. Tijdens deze jubileumeditie van het lichtkunstfestival zijn nieuwe creaties te zien en worden bekende werken uit het verleden nogmaals getoond.
Foto's uitreiking Architectenweb Awards 2025
6 november, 8:45
Op woensdagavond 5 november 2025 zijn in het Keilepand in Rotterdam de Architectenweb Awards 2025 uitgereikt. Architectuurfotograaf Jan Paul Mioulet / DAPh maakte een beeldverslag van deze feestelijke avond.
Limburgse politiek ondanks zorgen akkoord met energiemaatschappij
7 november, 1:39
De provincie Limburg krijgt een eigen energiemaatschappij.
Provincie Zuid-Holland steekt ‘geen cent extra’ in warmtenetwerk
7 november, 10:28
Het ministerie vroeg om een extra bijdrage voor een ondergronds leidingnetwerk waarmee tienduizenden woningen worden verwarmd met restwarmte uit de Rotterdamse haven.
Provincies focussen op agrarisch natuurbeheer tegen stikstof
6 november, 3:11
De betrokken partijen hebben daarover afspraken gemaakt, maar benadrukken dat steun van de rijksoverheid nodig blijft.
Corporatiewoning harder geraakt door klimaatverandering
6 november, 10:46
Bewoners van de onderzochte woningen hebben bijvoorbeeld vaker last van hittestress door warme nachten en krijgen vaker te maken met wateroverlast bij hevige buien.
Arons en Gelauff benoemt drie associates
4 november, 12:05
Eva Heldeweg, Gijs Beckman en Thom Zijlstra zijn benoemd tot associate partner bij Arons en Gelauff architecten.
DigiBouw 2025 – enkele tips
4 november, 11:14
Op 19 en 20 november 2025 vindt in het Beatrixgebouw van de Jaarbeurs in Utrecht de tweede editie van DigiBouw plaats. Enkele tips voor sessies die voor architecten van toegevoegde waarde zijn.
Ga naar het nieuws-archief
Robert Muis
Redacteur
0
0
0
0
Voor een optimale gebruikservaring plaatst Architectenweb functionele cookies. Wat de verschillende cookies precies doen leggen we uit in een
overzicht
. Cookies van social media kun je optioneel
aanzetten
.
Akkoord
Instellingen
Annuleren
OK
Sluiten
Doorgaan
Inloggen
Maak een gratis persoonlijk account aan
Feedback
Feedback
Wij horen graag jouw feedback. Laat je reactie achter en eventueel jouw e-mail adres.
Reactie
Verstuur