Projecten
Producten
Bedrijven
Vacatures
Agenda
Awards
Podcasts
more_horiz
Videos
Magazine
Favorieten
Profiel
Uitloggen
Abonneer je nu op onze nieuwsbrieven!
Abonneren
Nee, bedankt
Ja, denk met me mee rond de
materialisering van mijn project
Copyright: Lucas van der Wee
Copyright: Lucas van der Wee
Copyright: Lucas van der Wee
Copyright: Lucas van der Wee
Copyright: Lucas van der Wee
Copyright: Lucas van der Wee
Copyright: Lucas van der Wee
Copyright: Lucas van der Wee
Copyright: Lucas van der Wee
Copyright: Lucas van der Wee
Copyright: Lucas van der Wee
Copyright: Lucas van der Wee
Copyright: architectenbureau cepezed
Copyright: architectenbureau cepezed
Technova College Ede officieel geopend
24 oktober 2018, 13:46
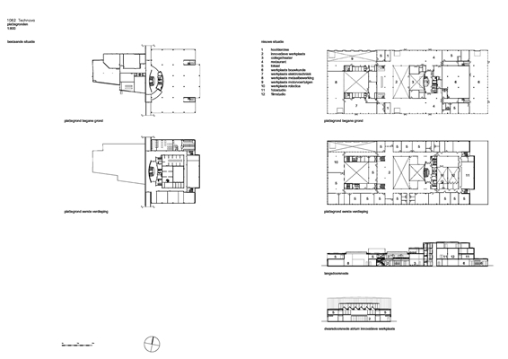
Deze maand is het Technova College in Ede officieel geopend. Het schoolgebouw biedt plaats aan de afdelingen Techniek & Technologie, Media & ICT en Beeld & Geluid van het ROC A12. Het pand is deels nieuw; een van de bestaande gebouwen op het terrein is in de nieuwbouw opgenomen.
Dankzij de nieuwe gevel vormen het bestaande en nieuwe deel een geheel en is het oude gedeelte aan de buitenkant alleen nog te herkennen aan zijn grotere hoogte. Dat meldt
architectenbureau cepezed
, dat samen met
cepezedinterieur
verantwoordelijk is voor het ontwerp.
Het gebouw bestaat uit een mix van theorie- en praktijkruimten. In de plint zijn werkplaatsen opgenomen, die dankzij de transparante gevel zichtbaar zijn van buitenaf. Het hart van het gebouw wordt gevormd door een dubbelhoge ruimte die is aangeduid als ‘innovatieve werkplaats’.
Hier kunnen de opleidingen nieuwe producten presenteren en de gebruikers van het gebouw elkaar ontmoeten. Tevens fungeert de werkplaats als centrale verkeersruimte, met in het midden een receptiebalie.
Collegetheater
Aan de werkplaats grenst het collegetheater. Doordat de tussengelegen wand kan worden verschoven, is het mogelijk beide ruimtes samen te voegen tot een grote zaal. Het hele theater wordt dan podium en de toeschouwers nemen plaats in de werkplaats, meldt cepezed. De verkeersruimte op de verdieping is bij zulke gelegenheden als balkon te gebruiken.
Aan de gevel van de verdieping in het nieuwbouwdeel is een flexibele schil van onderwijsruimten geplaatst. Dankzij de vrij indeelbare plattegrond leent deze zone zich voor functies met uiteenlopende ruimtebehoeften, zoals theorielokalen, praktijklokalen en kantoren.
In het interieurontwerp is ingezet op een stoere en industriële sfeer, met sterke kleuraccenten Er zijn materialen toegepast waar de leerlingen zelf mee werken, zoals hout en staal.
Entreestraat
Het gebouw kent twee entrees, die zijn verbonden door een ‘entreestraat’. Deze straat loopt door in de eveneens door cepezed ontworpen buitenruimte. Aan de zuidzijde van deze buitenruimte staan de andere gebouwen van de campus en aan de noordkant ligt het parkeerterrein.
Het bijna energieneutrale gebouw (BENG) ontleent zijn energie aan een biomassacentrale en is daarnaast voorzien van zonnepanelen. De ventilatie voldoet aan de normen voor de Frisse Scholen-klasse B. Verder treedt dankzij de transparantie van het gebouw veel daglicht binnen en stimuleren watertappunten een gezonde waterconsumptie en beperken ze het gebruik van petflessen.
Trefwoorden
ede
cepezedinterieur
school
cepezed
onderwijs
Best gelezen
1
Architect Cees Dam op 93-jarige leeftijd overleden
dinsdag, 14 april
2
SeARCH en Heutink Groep winnen tender voor woongebouw Sluisbuurt
vrijdag, 10 april
3
Powerhouse Company wint aanbesteding voor verbouwing Vista College Maastricht
dinsdag, 14 april
4
Tien bureaus geselecteerd voor tweede ronde nieuwbouw De Meervaart
woensdag, 15 april
5
QWA heeft A16 boven Rotterdam eigen identiteit gegeven
maandag, 13 april
Gerelateerde nieuwsberichten
Nieuw gebouw voor Utrecht Science Park van cepezed
17 april 2019
Compacter, lichter en ruimtelijker onderkomen voor Dulon College Ede
2 juni 2022
Voormalige kantoorkolos is luxueus woongebouw in het park
24 juni 2020
Ede stemt in met structuurvisie wijk World Food Center
24 maart 2020
Vloeiende lijnen en afgeronde vormen voor woongebouw Ede
23 januari 2020
cepezed realiseert natuurinclusieve nieuwbouw op campus TU Delft
23 september 2019
Cepezed realiseert vierde gebouw op eigen terrein
14 mei 2019
Nieuw busstation Tilburg in gebruik genomen
29 april 2019
cepezed brengt eerste beelden ontwerp VU-onderzoeksgebouw naar buiten
15 april 2019
Cepezed ontwerpt Meldkamer Oost Nederland
10 december 2018
Laatste poging: de Lekbrug als basis voor energieneutrale woningen
21 november 2018
Nieuwe vestiging Graafschap College geopend
16 oktober 2018
Grote verbouwing MECC Maastricht naar ontwerp cepezed
11 oktober 2018
Hoofdkantoor Genmab op Utrecht Science Park geopend
8 augustus 2018
Rijkskantoor De Knoop officieel in gebruik genomen
18 mei 2018
Bouw CollectieCentrum Nederland van start
14 mei 2018
The Green House: een proeftuin voor circulariteit
11 april 2018
Ontwerp A-Pier Schiphol gepresenteerd
19 februari 2018
cepezed ontwerpt Technova College Ede
5 december 2016
Nieuw gebouw voor Utrecht Science Park van cepezed
17 april 2019
Compacter, lichter en ruimtelijker onderkomen voor Dulon College Ede
2 juni 2022
Voormalige kantoorkolos is luxueus woongebouw in het park
24 juni 2020
Ede stemt in met structuurvisie wijk World Food Center
24 maart 2020
Vloeiende lijnen en afgeronde vormen voor woongebouw Ede
23 januari 2020
cepezed realiseert natuurinclusieve nieuwbouw op campus TU Delft
23 september 2019
Cepezed realiseert vierde gebouw op eigen terrein
14 mei 2019
Nieuw busstation Tilburg in gebruik genomen
29 april 2019
cepezed brengt eerste beelden ontwerp VU-onderzoeksgebouw naar buiten
15 april 2019
Cepezed ontwerpt Meldkamer Oost Nederland
10 december 2018
Laatste poging: de Lekbrug als basis voor energieneutrale woningen
21 november 2018
Nieuwe vestiging Graafschap College geopend
16 oktober 2018
Grote verbouwing MECC Maastricht naar ontwerp cepezed
11 oktober 2018
Hoofdkantoor Genmab op Utrecht Science Park geopend
8 augustus 2018
Rijkskantoor De Knoop officieel in gebruik genomen
18 mei 2018
Bouw CollectieCentrum Nederland van start
14 mei 2018
The Green House: een proeftuin voor circulariteit
11 april 2018
Ontwerp A-Pier Schiphol gepresenteerd
19 februari 2018
cepezed ontwerpt Technova College Ede
5 december 2016
Toon alles
Andere nieuwsberichten
EUmies Award naar renovatie congrescentrum in Charleroi en tijdelijke ruimtes Sloveens theater
19 minuten geleden
Donderdag zijn de winnaars van de EUmies Award 2026 bekendgemaakt. De renovatie van het congrescentrum Charleroi Palais des Expositions won in de belangrijkste categorie architectuur.
Anterieure overeenkomst voor bouw woontoren The Four in Eindhoven
Gisteren, 13:26
Naar verwachting wordt begin volgend jaar gestart met de bouw van woontoren The Four in Eindhoven. De door Mecanoo ontworpen toren op de zogeheten Vierlanderlocatie in Fellenoord bestaat uit 306 woningen.
Jury maakt shortlist Prix de Rome Architectuur 2026 bekend
Gisteren, 09:30
Dérive (Hedwig van der Linden and Kevin Westerveld), Maarten Plomp en Iris van der Wal, Namelok (Wiegert Ambagts en Kaj van Boheemen) en Slodka x Zatta (Izabela Slodka en Federica Zatta) zijn de kanshebbers voor deze editie van de prijs.
Woontoren Front vervult meerdere rollen in Hart van de Waalsprong
15 april, 4:31
Vorige week werd de door Monadnock ontworpen woontoren Front onderscheiden met de Architectuurprijs Nijmegen. Het achthoekige gebouw in Lent markeert het centrum van de stadsuitbreiding Hart van de Waalsprong.
NVM vreest minder nieuwbouw door veranderende voorrang stroomnet
1 uur geleden
Bouwers kunnen, door onzekerheid over welke projecten straks nog maatschappelijke prioriteit krijgen in een bepaalde regio, besluiten om minder nieuwe huizen te bouwen.
Architecten voor restauratie en herbestemming Rivièrahal gekozen
Gisteren, 12:00
Voor de grootscheepse restauratie en herbestemming van de Rivièrahal in de Rotterdamse Diergaarde Blijdorp zijn Mecanoo en BiermanHenket geselecteerd.
Bewoners aardbevingsgebied Groningen blijven kritisch op herstel
Gisteren, 10:34
Door de complexiteit en onzekerheid van het jarenlange proces ervaren mensen stress en frustratie.
ING: optoppen en splitsen van woningen steeds minder haalbaar
15 april, 1:22
Het kabinet-Jetten gaat naar verwachting het doel van 15.000 extra woningen per jaar uit verbouwingen niet halen, stelt ING.
Geen rechtszaak over subsidie ministerie aan Van Gogh Museum
15 april, 10:02
De zaak draait om geld dat het museum nodig zegt te hebben voor een renovatie.
AFM: funderingsproblemen bij bijna 220.000 woningen
14 april, 1:25
De huizen van bijna een half miljoen woningeigenaren hebben een hoog risico op funderingsproblemen of een mogelijke kwetsbare fundering.
Ga naar het nieuws-archief
Ronnie Weessies
Redacteur
1
0
0
0
Voor een optimale gebruikservaring plaatst Architectenweb functionele cookies. Wat de verschillende cookies precies doen leggen we uit in een
overzicht
. Cookies van social media kun je optioneel
aanzetten
.
Akkoord
Instellingen
Annuleren
OK
Sluiten
Doorgaan
Inloggen
Maak een gratis persoonlijk account aan
Feedback
Feedback
Wij horen graag jouw feedback. Laat je reactie achter en eventueel jouw e-mail adres.
Reactie
Verstuur