Projecten
Producten
Bedrijven
Vacatures
Agenda
Awards
Podcasts
more_horiz
Videos
Magazine
Thema's
Favorieten
Profiel
Uitloggen
Nieuw
Populair
Toon alles
Architectenweb magazine #14
Architectenweb magazine #13
Publieke gebouwen
Architectenweb magazine #12
Kantoren
Architectenweb magazine #11
Scholen
Architectenweb magazine #10
Zorg
Architectenweb magazine #14
Architectenweb magazine #10
Zorg
Architectenweb magazine #12
Kantoren
Architectenweb magazine #13
Publieke gebouwen
Architectenweb magazine #6
Transformatie en Renovatie
Om direct naar je favorieten te kunnen gaan is het nodig om eerst in te loggen.
Nieuw
Architectenweb Awards 2025
Architectenweb Awards 2024
Architectenweb Awards 2023
Architectenweb Awards 2022
Architectenweb Awards 2021
Architectenweb Awards 2020
Architectenweb Awards 2019
Architectenweb Awards 2018
Om direct naar je favorieten te kunnen gaan is het nodig om eerst in te loggen.
Nieuw
Populair
Favorieten
Toon alles
Vakwerk Architecten
Nominatie voor de prijs voor Architect van het Jaar 2025
Sanne van Manen
Nominatie voor de prijs voor Architect van het Jaar 2025
KSA
Nominatie voor de prijs voor Architect van het Jaar 2025
KRFT
Nominatie voor de prijs voor Architect van het Jaar 2025
Joost Ector
Nominatie voor de prijs voor Architect van het Jaar 2025
Prijsuitreiking Architectenweb Awards 2024
Impressie van een feestelijke avond
Martens, Willems & Humblé Architecten
Nominatie voor de prijs voor Architect van het Jaar 2024
Uitreiking van Architectenweb Awards 2020
Impressie van de prijsuitreiking via Zoom
De Zwarte Hond
Nominatie voor de prijs voor Architect van het Jaar 2024
Avond met De Zwarte Hond
Symposium
Om direct naar je favorieten te kunnen gaan is het nodig om eerst in te loggen.
Nieuw
Populair
Categorieën
Favorieten
Toon alles
ST1centrum
Dé specialist op het gebied van gevelstenen en dakpannen met showrooms in Amsterdam en Meppel
Studio Massimo
Architecture & Nature
Brandpreventie Academy BV
HoutPro+
Cay Circulaire Keukens
Circulaire keukens en pantry's
Studio Kirsten Reith
Interieurontwerp
Interior & Co
Cay Circulaire Keukens
Circulaire keukens en pantry's
Orange Automatic Doors
Studio175
Interieuradvies in regio Utrecht
Studio Kirsten Reith
Interieurontwerp
Brandpreventie Academy BV
Architecten
Architectuur
Mobiliteit en infrastructuur
Stedenbouw en landschapsarchitectuur
Leveranciers
Gevels
Daken
Ramen en deuren
Trappen, liften en balustrades
Binnenwanden
Vloeren
Plafonds
Verlichting
Sanitair
Projectinrichting
Installaties
Constructies
Buitenruimte
Software
Adviseurs
Bestekschrijvers
Bouwmanagement
Installatie adviseurs E
Bouwfysica
Calculators
Installatie adviseurs G/W
Bouwkundig tekenwerk
Constructeurs
Lichtadviseurs
Adviseur beveiliging
Juristen
Intermediairs, Payrolling
Aannemers
Overig
Presentatie
Instellingen / onderwijs
Overig
Om direct naar je favorieten te kunnen gaan is het nodig om eerst in te loggen.
Nieuw
Populair
Favorieten
Toon alles
Gesprek met Stephan Sliepenbeek over hoogbouw in Amstel III
Gesprek met Ellen van Bueren over gebiedsontwikkeling en hoogbouw
Gesprek met Ma Yansong over ontwerpen die emotie oproepen
Gesprek met Paul de Ruiter over innovatieve en duurzame hoogbouw
Gesprek met Pi de Bruijn over zijn ontwerpen voor de Tweede Kamer toen en nu
Gesprek met Ellen van Bueren over gebiedsontwikkeling en hoogbouw
Gesprek met Oresti Sarafopoulos over het ontwerpen van een kantoorgebouw met bijna geen installaties
Gesprek met Stijn Steenbakkers over verdichting en hoogbouw in Eindhoven
Gesprek met Pi de Bruijn over zijn ontwerpen voor de Tweede Kamer toen en nu
Gesprek met Paul de Ruiter over innovatieve en duurzame hoogbouw
Om direct naar je favorieten te kunnen gaan is het nodig om eerst in te loggen.
Nieuw
Populair
Categorieën
Favorieten
Toon alles
Smart Lighting voor kantoorcampus Tripolis Park
700 modulaire lichtstraten gebruikt Icône kantoor
Duurzaam logistiek centrum vol daglicht
Renovatie parkeergarage WTC Beursplein, Rotterdam
MBO-school Firda in stadion van Cambuur
Boekweitkamp, Den Haag
Exclusieve wooneenheden
De Grote Zwaan, Nijmegen
Renovatieproject Ockenburghstraat
ASML Gebouw 3
Architectuur
Woningbouw
Zorg
Hotels
Restaurants en café’s
Winkels
Sportgebouwen
Culturele gebouwen
Overheidsgebouwen
Scholen
Kantoren
Bedrijfsgebouwen
Paviljoens en kunst
Overig
Mobiliteit en infrastructuur
Trein- en metrostations
Luchthavens
Busstations
Parkeergarages
Fietsparkeren
Wegen
Bruggen
Water
Energie
Tankstations en laadstations
Waterzuivering en afvalverwerking
Overig
Stedenbouw en landschapsarchitectuur
Regionale visies
Gebiedsvisies
Plannen stedelijk weefsel
Amusementsparken en dierentuinen
Lichtontwerpen
Openbare ruimte
Pleinen
Parken
Tuinen
Speelplaatsen
Uitkijktorens
Overige (bijv. begraafplaatsen)
Om direct naar je favorieten te kunnen gaan is het nodig om eerst in te loggen.
Nieuw
Populair
Categorieën
Favorieten
Toon alles
DINrail Zigbee dimmer
Centrale dimoplossing voor slimme verlichting
De nieuwe Gira G1.
Sneller. Groter. Sterker.
HomeComfort
Create your ambiance in a touch
Next Generation USB C opladers
De Next Generation USB C opladers: snel, compact and efficiënt
D31TDV- en D31TDH IP-video deurintercom systemen
Innovatie voor appartementencomplexen en grote gebouwen
StoTherm Wood: cementvrij gevelsysteem met houtvezelisolatie
Biobased gevelisolatie met natuurlijke prestaties
StoTherm Wood: cementvrij gevelsysteem met houtvezelisolatie
Biobased gevelisolatie met natuurlijke prestaties
StoTherm Wood: cementvrij gevelsysteem met houtvezelisolatie
Biobased gevelisolatie met natuurlijke prestaties
Akoestisch kussen.
Ervaar de ultime natuurlijke oplossing voor akoestiek problemen.
Akoestisch kussen.
Ervaar de ultime natuurlijke oplossing voor akoestiek problemen.
Akoestisch kussen.
Ervaar de ultime natuurlijke oplossing voor akoestiek problemen.
Knauf MaxSpace
Minder wand, méér ruimte. Het ideale profiel voor meer winst per m²
Knauf MaxSpace
Minder wand, méér ruimte. Het ideale profiel voor meer winst per m²
Knauf MaxSpace
Minder wand, méér ruimte. Het ideale profiel voor meer winst per m²
Lumiglaze – Het vlakglas van VELUX Commercial
Een nieuw tijdperk in daglichtontwerp – minimalistisch, functioneel en klaar voor de toekomst.
Lumiglaze – Het vlakglas van VELUX Commercial
Een nieuw tijdperk in daglichtontwerp – minimalistisch, functioneel en klaar voor de toekomst.
Lumiglaze – Het vlakglas van VELUX Commercial
Een nieuw tijdperk in daglichtontwerp – minimalistisch, functioneel en klaar voor de toekomst.
Veelzijdig straatmeubilair
Van openbare ruimte naar (be)leefomgeving
Veelzijdig straatmeubilair
Van openbare ruimte naar (be)leefomgeving
Veelzijdig straatmeubilair
Van openbare ruimte naar (be)leefomgeving
Gevels
Gevelbekleding
Vliesgevels
Zonwering buiten
Isolatie
Gevelconstructies
Signing
Overig
Daken
Dakafwerkingen
Dakisolatie
Dakconstructies
Dakranden, dakgoten en HWA's
Dakramen
Lichtkoepels
Lichtstraten
Schoorstenen
Overig
Dakluiken
Ramen en deuren
Raam- en deursystemen / kozijnen
Vliesgevels
Hang- en sluitwerk
Beveiliging en luiken
Dorpels en vensterbanken
Lateien
Roosters
Glas
Dakramen
Dakkoepels
Lichtstraten
Zonwering buiten
Zonwering binnen
Buitendeuren
Binnendeuren
Postvakken en brievenbussen
Overig
Dakluiken
Trappen, liften en balustrades
Trappen
Roltrappen
Liften
Balustrades en hekwerken
Galerijen
Binnenwanden
Binnenwanden
Wandafwerking
Vloeren
Constructieve vloeren
Verhoogde vloeren
Vloerafwerkingen
Overig
Plafonds
Tegels
Lineair
Grill
Open en roosters
Naadloos
Eilanden en baffles
Plafondafwerkingen
Ophangsystemen
Overig
Klimaatplafonds
Verlichting
Binnenverlichting
Buitenverlichting
Sanitair
Kranen en douchesets
Wastafels
Douchewanden en douchebakken
Baden
Waterclosets
Accessoires
Overig
Projectinrichting
Stoelen
Banken
Tafels
Kasten
Balies
Vrijstaande wanden
Keukens
Accessoires
Overig
Cabines
Interieurbeplanting
Stoffering
Installaties
Verwarming, koeling en ventilatie
Elektrotechnische installaties
Schakelmateriaal
Domotica
Deurcommunicatie
Beveiliging
Liften
Onderhoudsinstallaties
Overig
Brandbeveiliging
Constructies
Draagconstructies
Funderingen en kelders
Overig
Brandbeveiliging
Buitenruimte
Bestratingen en verhardingen
Afwateringen
Terreinafscheidingen en geluidsschermen
Buitenmeubilair
Fietsparkeren
Terrassen
Terrasoverkappingen
Bruggen
Accessoires
Overig
Beplanting
Sport- en speeltoestellen
Software
Tekenen 2D
Modelleren 3D / BIM
Visualisatie / rendering
Parametrisch ontwerpen
Bouwfysica
Draagconstructie
Overig
Virtual Reality
Cloudoplossingen
Om direct naar je favorieten te kunnen gaan is het nodig om eerst in te loggen.
Nieuw
Populair
Favorieten
Toon alles
Prefab beurs - 7 t/m 9 oktober 2025
Brabanthallen 's-Hertogenbosch
Boekpresentatie en panelgesprek met Floor Milikowsky
Prins Hendrikkade 600, 1011 VX Amsterdam
Architects Table ’25: Lunch & Inspiratie in HAUT Amsterdam
ATAG LIVE – HAUT gebouw, Spaklerweg 10F, 1096 BA Amsterdam (tegenover metrostation Spaklerweg)
Inspiratiedag @ Sempergreen – Gevelgroen
Defensieweg 1, 3984 LR Odijk
Architectenweb symposium: klein maar fijn wonen?
Pakhuis de Zwijger
Ontdek het seminarieprogramma van Architect@Work Amsterdam
De Kromhouthal, Gedempt Hamerkanaal 231, Amsterdam
Prefab beurs - 7 t/m 9 oktober 2025
Brabanthallen 's-Hertogenbosch
Architects Table ’25: Lunch & Inspiratie in HAUT Amsterdam
ATAG LIVE – HAUT gebouw, Spaklerweg 10F, 1096 BA Amsterdam (tegenover metrostation Spaklerweg)
DigiBouw 2025 – hét event voor digitalisering in de bouwsector
Expozaal van het Beatrixgebouw in Utrecht
Boekpresentatie en panelgesprek met Floor Milikowsky
Prins Hendrikkade 600, 1011 VX Amsterdam
Om direct naar je favorieten te kunnen gaan is het nodig om eerst in te loggen.
Nieuw
Toon alles
Design
Duurzaamheid
Gevel
Infrastructuur
Interieur
Kantoren
Leisure
Openbare ruimte
Publieke gebouwen
Scholen
Transformatie en Renovatie
Woningbouw
Zorg
Om direct naar je favorieten te kunnen gaan is het nodig om eerst in te loggen.
Nieuw
Populair
Toon alles
Medior Architect
Assistent Ontwerper (Junior Architect)
Ervaren Bouwkundig Tekenaar
9graden architectuur Amersfoort zoekt een bouwkundig modelleur
SVP zoekt bureauondersteuner
SVP zoekt medior stedenbouwkundige
Junior Architect (NL/EN)
De Academie van Bouwkunst Amsterdam zoekt twee onderzoekers voor lectoraat
Architect
Site Practice zoekt medior architect met 4-6 jaar ervaring (Amsterdam)
Junior Ontwerper
Studio Nauta zoekt projectleider
Om direct naar je favorieten te kunnen gaan is het nodig om eerst in te loggen.
Copyright: Atelier Kempe Thill
Copyright: Atelier Kempe Thill
Copyright: Atelier Kempe Thill
Copyright: Atelier Kempe Thill
Copyright: Atelier Kempe Thill
Copyright: Atelier Kempe Thill
Copyright: Atelier Kempe Thill
Copyright: Atelier Kempe Thill
Copyright: Atelier Kempe Thill
Copyright: Atelier Kempe Thill
Copyright: Atelier Kempe Thill
Atelier Kempe Thill wint prijsvraag voor kantoorgebouw in Parijs
10 november 2017, 10:15
Binnen de serie van prijsvragen ‘Inventons la Metropole de Grand Paris’, die momenteel in Parijs georganiseerd wordt, en waarbinnen een team van RAU, SeARCH en karres+brands onlangs ook al een prijsvraag won, heeft nu ook
Atelier Kempe Thill
een prijsvraag gewonnen: voor een nieuw kantoorgebouw aan de Péripherique.
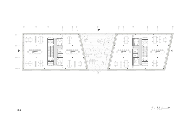
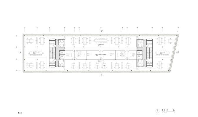
Het kantoorgebouw dat Atelier Kempe Thill heeft ontworpen komt ter hoogte van Porte d’Italie langs de Boulevard Périphérique te staan en zal het hoofdkantoor vormen voor Group Pichet. Het gebouw zal flexibele kantoorruimtes bieden voor bedrijven, ateliers en fablabs, en ook een café/restaurant bevatten. Op het dak moet stadslandbouw gaan plaatsvinden.
De gevel van het kantoorgebouw wordt gekarakteriseerd door bijna verdiepingshoge bandramen die in verband met de geluidsbelasting die de Parijse ringweg met zich meebrengt uitgevoerd zullen worden als een dubbele gevel. De dichte delen in de gevels zullen voorzien worden van groen, wat het gebouw een uiterst vriendelijke uitstraling geeft.
Het nieuwe kantoorgebouw komt te staan in het ZAC Paul Bourget-gebied, dat de komende periode getransformeerd wordt tot gemengd stedelijk gebied met zowel nieuwe woningbouw als kantoorgebouwen. Het kantoorgebouw naar ontwerp van Atelier Kempe Thill moet in 2021 opgeleverd worden.
Trefwoorden
parijs
atelier kempe thill
Locatie
Best gelezen
1
Architectenweb symposium: klein maar fijn wonen?
donderdag, 2 oktober
2
Plan Spot belooft Lelystad bruisend centrumgebied
vrijdag, 3 oktober
3
‘NDSM-werf en Buiksloterham zijn júíst inspirerende voorbeelden voor de stad van morgen’
vrijdag, 3 oktober
4
Nominaties Publiek gebouw van het Jaar 2025 bekend
woensdag, 8 oktober
5
Realisatieovereenkomst voor hoogbouwcomplex De Sax op Wilhelminapier getekend
maandag, 6 oktober
Gerelateerde nieuwsberichten
Atelier Kempe Thill en Atelier 56S ontwerpen omvangrijk complex in Rennes
8 november 2018
Winnend ontwerp Maritiem Museum Antwerpen van team Atelier Kempe Thill
25 juni 2018
Centraal blok voor nieuwe Antwerpse stadswijk in aanbouw
21 december 2017
Nieuw woongebouw Kempe Thill in Antwerpen
4 maart 2014
Atelier Kempe Thill ontwerpt parlementsgebouw
28 oktober 2008
Ondergrondse koepel van Atelier Kempe Thill
23 maart 2010
Kempe Thill ontwerpt faculteitsgebouw Hasselt
16 december 2016
Atelier Kempe Thill ontwerpt parlementsgebouw
29 oktober 2008
Kempe Thill wint tender woonproject Brussel
5 februari 2015
Atelier Kempe Thill wint Detail Preis 2009
20 januari 2009
Atelier Kempe Thill wint prijsvraag voor klooster
2 september 2013
Project van Kempe Thill in Parijs van start
8 september 2014
Atelier Kempe Thill is Architect van het Jaar
12 december 2011
Atelier Kempe Thill herontwikkelt militair terrein
25 september 2013
Kempe Thill ontwerpt kunstencampus Antwerpen
13 juni 2016
Kempe Thill ontwerpt T2-campus Genk
20 mei 2015
Atelier Kempe Thill vernieuwt 'nazihotel' Rügen
4 december 2008
Atelier Kempe Thill bouwt concertgebouw Oostenrijk
1 februari 2005
Zeevaartschool Antwerpen kiest Kempe Thill
4 juli 2014
Opleidingscentrum bovenop een tunnel voor spoorbeheerder
19 september 2018
Winnend plan voor herontwerp omgeving Eiffeltoren bekend
24 mei 2019
T2-campus in Genk is flexibele onderwijsfabriek
7 augustus 2019
Rigoureuze renovatie van brutalistische flats in Antwerpen
22 oktober 2019
Atriumhaus van Atelier Kempe Thill biedt nieuwe woningtypologie in Duitsland
4 februari 2020
Atelier Kempe Thill ontwerpt nieuw baken langs de Elbe in Hamburg
7 april 2020
Gebouw Zuiderplein van Atelier Kempe Thill in Antwerpen klaar
18 september 2020
Ruime en flexibele studentenwoningen in gebouw Atelier Kempe Thill
16 oktober 2020
Atelier Kempe Thill wint prijsvraag Duitse gezondheidscampus
28 oktober 2020
Ruimtelijk en representatief woongebouw door Atelier Kempe Thill
18 november 2020
Ouderenwoningen in landelijke omgeving van Heist-op-den-Berg
3 december 2020
Atelier Kempe Thill en Atelier 56S ontwerpen omvangrijk complex in Rennes
8 november 2018
Winnend ontwerp Maritiem Museum Antwerpen van team Atelier Kempe Thill
25 juni 2018
Centraal blok voor nieuwe Antwerpse stadswijk in aanbouw
21 december 2017
Nieuw woongebouw Kempe Thill in Antwerpen
4 maart 2014
Atelier Kempe Thill ontwerpt parlementsgebouw
28 oktober 2008
Ondergrondse koepel van Atelier Kempe Thill
23 maart 2010
Kempe Thill ontwerpt faculteitsgebouw Hasselt
16 december 2016
Atelier Kempe Thill ontwerpt parlementsgebouw
29 oktober 2008
Kempe Thill wint tender woonproject Brussel
5 februari 2015
Atelier Kempe Thill wint Detail Preis 2009
20 januari 2009
Atelier Kempe Thill wint prijsvraag voor klooster
2 september 2013
Project van Kempe Thill in Parijs van start
8 september 2014
Atelier Kempe Thill is Architect van het Jaar
12 december 2011
Atelier Kempe Thill herontwikkelt militair terrein
25 september 2013
Kempe Thill ontwerpt kunstencampus Antwerpen
13 juni 2016
Kempe Thill ontwerpt T2-campus Genk
20 mei 2015
Atelier Kempe Thill vernieuwt 'nazihotel' Rügen
4 december 2008
Atelier Kempe Thill bouwt concertgebouw Oostenrijk
1 februari 2005
Zeevaartschool Antwerpen kiest Kempe Thill
4 juli 2014
Opleidingscentrum bovenop een tunnel voor spoorbeheerder
19 september 2018
Winnend plan voor herontwerp omgeving Eiffeltoren bekend
24 mei 2019
T2-campus in Genk is flexibele onderwijsfabriek
7 augustus 2019
Rigoureuze renovatie van brutalistische flats in Antwerpen
22 oktober 2019
Atriumhaus van Atelier Kempe Thill biedt nieuwe woningtypologie in Duitsland
4 februari 2020
Atelier Kempe Thill ontwerpt nieuw baken langs de Elbe in Hamburg
7 april 2020
Gebouw Zuiderplein van Atelier Kempe Thill in Antwerpen klaar
18 september 2020
Ruime en flexibele studentenwoningen in gebouw Atelier Kempe Thill
16 oktober 2020
Atelier Kempe Thill wint prijsvraag Duitse gezondheidscampus
28 oktober 2020
Ruimtelijk en representatief woongebouw door Atelier Kempe Thill
18 november 2020
Ouderenwoningen in landelijke omgeving van Heist-op-den-Berg
3 december 2020
Toon alles
Gerelateerde video's
Spijkerkwartier Arnhem
Atelier Kempe Thill
Andere nieuwsberichten
Nog twee dagen om jouw stem uit te brengen voor de Architect van het Jaar 2025!
54 minuten geleden
De nominaties voor de prijs voor Architect van het Jaar 2025 zijn: Joost Ector, KSA, KRFT, Sanne van Manen en Vakwerk Architecten. Bekijk nu de video’s waarin de genomineerden zich voorstellen en breng jouw stem uit!
bureau SLA ontdekt, transformeert en gebruikt rijksmonumentale werkplaats
1 uur geleden
Woon-werkruimte op Hembrugterrein in Zaandam toont radicale vernieuwing in erfgoedbeheer en duurzame bouw
Zoetmulder vernieuwt Maastrichts herenhuis met eigentijdse uitbouw
Gisteren, 15:07
In Maastricht heeft Zoetmulder een herenhuis verbouwd en uitgebreid met een uitbouw. Waar de gevel aan de voorzijde in de originele staat is behouden om het huis te blijven laten passen in het straatbeeld, is de achterzijde geheel vernieuwd.
Vier genomineerden voor de Abe Bonnema Architectuurprijs 2025
Gisteren, 13:00
Volgens de jury zijn de nominaties een toonbeeld van het jaarthema ‘ambitie’ en leveren zij een inspirerende bijdrage aan de ontwikkeling van een nieuwe bouwcultuur.
Do Janne Vermeulen verzorgt Rietveldlezing 2025
Gisteren, 11:28
De medeoprichter en directeur van Team V Architectuur spreekt op 13 november over de (houten) stad van morgen.
Eneco onderzoekt verkoop warmtenetten om nieuwe wet
Gisteren, 10:41
Door een eerder dit jaar aangenomen wet is het voor het bedrijf onzeker of investeringen zich nog terugverdienen.
Uitwerking van plannen voor Nedersaksenlijn kan beginnen
7 oktober, 12:17
Maandag is het startsein gegeven voor de eerste onderzoeken die uiteindelijk moeten leiden tot de spoorlijn die Groningen en Twente met elkaar verbindt.
Mona Keijzer lonkt naar investeerders op vastgoedbeurs in München
7 oktober, 10:02
"We moeten 1,6 miljoen woningen bouwen. Daarvoor hebben we buitenlandse investeerders nodig", stelt de demissionair minister.
Jongeren debatteren in het Nieuwe Instituut met Kamerleden over wonen
6 oktober, 2:26
Tot de thema’s die worden besproken, behoren betaalbaarheid, het creëren van meer woningen en de betrokkenheid van jongeren bij deze plannen.
GL-PvdA wil komende tien jaar 36 miljard uitgeven aan woningbouw
6 oktober, 10:10
Het grootste deel van het geld, 33 miljard euro, moet gaan naar publieke investeringen in de woningbouw.
Ga naar het nieuws-archief
0
0
0
0
Voor een optimale gebruikservaring plaatst Architectenweb functionele cookies. Wat de verschillende cookies precies doen leggen we uit in een
overzicht
. Cookies van social media kun je optioneel
aanzetten
.
Akkoord
Instellingen
Annuleren
OK
Sluiten
Doorgaan
Inloggen
Maak een gratis persoonlijk account aan
Feedback
Feedback
Wij horen graag jouw feedback. Laat je reactie achter en eventueel jouw e-mail adres.
Reactie
Verstuur