Projecten
Producten
Bedrijven
Vacatures
Agenda
Awards
Podcasts
more_horiz
Videos
Magazine
Thema's
Favorieten
Profiel
Uitloggen
Abonneer je nu op onze nieuwsbrieven!
Abonneren
Nee, bedankt
Ja, denk met me mee rond de
materialisering van mijn project
Copyright: grafie Filip Dujardin
Copyright: grafie Filip Dujardin
Copyright: grafie Filip Dujardin
Copyright: grafie Filip Dujardin
Copyright: grafie Filip Dujardin
Copyright: grafie Filip Dujardin
Copyright: grafie Filip Dujardin
Copyright: grafie Filip Dujardin
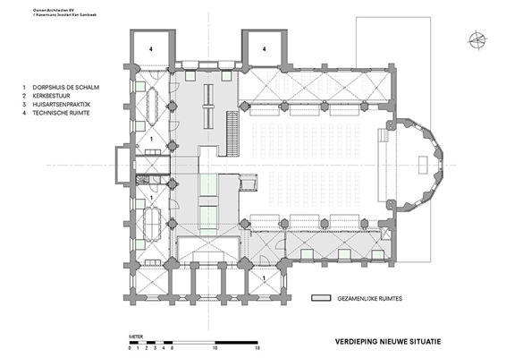
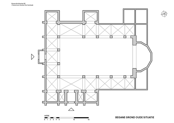
Tekening: Oomen Architecten
Tekening: Oomen Architecten
Tekening: Oomen Architecten
Tekening: Oomen Architecten
Oomen: ‘verkort proces levert soms meer op’
13 februari 2013, 18:20
In een ‘extreem kort’ proces heeft
Oomen Architecten
de St. Gertrudis van Nijvelkerk in Heerle, een dorp in de gemeente Roosendaal, getransformeerd tot dorpshuis/huisartsenpraktijk/kerk.
Tekst Michiel van Raaij
Zeven maanden. Meer zat er niet tussen de verstrekking van de ontwerpopdracht en de oplevering van de getransformeerde kerk in het dorpshart van Heerle. Architect Sander van Sambeek, partner bij Oomen Architecten: “We hebben echt een extreem kort proces doorlopen.” Met succes.
De stok achter de deur: op 1 januari 2013 verviel de subsidie die de provincie Noord-Brabant had gereserveerd voor de herbestemming van de kerk. Deze subsidie had de provincie verstrekt in het kader van een programma om het voorzieningenniveau in de Brabantse dorpen op peil te houden. De kerk huisvest naast het kerkbestuur nu ook een dorpshuis en een huisartsenpraktijk.
Aan het trefzekere ontwerp van Oomen Architecten is het korte proces niet af te zien. Het ontwerp kon er volgens de architect juist zijn sterkte door behouden. De subsidiedeadline stimuleerde alle betrokken partijen om snel te schakelen. “Het gevolg was dat we dichtbij ons concept zijn gebleven”, zegt Van Sambeek. “Een verkort proces levert zo soms dus meer op dan een regulier proces.”
Neogotiek
De St. Gertrudis van Nijvelkerk heeft een dubbele oorsprong. In 1864 werd naar ontwerp van architect J. van Mansveld een neogotische kerk gerealiseerd. In 1924 is haaks op het middenschip van deze kerk een nieuw, groter middenschip met een nieuw koor naar ontwerp van Dom Paul Bellot gebouwd.
“De kerk heeft zo dus twee assen”, legt Van Sambeek uit. Het ontwerp uit 1864 volgt een oost-west as, het ontwerp uit 1924 volgt een noord-zuid as. Beide delen hebben daarbij ook een eigen architectuur. De kerk uit 1864 heeft een wit gestuukt interieur. Stukadoorsgotiek noemt Van Sambeek het. De toevoeging uit 1924 kenmerkt zich door gedetailleerd metselwerk. Waar Dom Paul Bellot zelden neogotische vormen in zijn werk gebruikte, deed hij dat in dit ontwerp wel. Het is met name hierom dat de kerk tot rijksmonument is verklaard.
Het idee om het middendeel van de kerk vrij te houden had de architect vanaf de start van het proces. “Daarmee blijft het karakter van de kerk overeind”, zegt Van Sambeek. “Maar het was ook een manier om het programma te organiseren.” Rond het open gelaten middenschip van de kerk krijgen de verschillende gebruikers logisch hun plek.
Doosjes
Het volume dat Oomen in de kerk heeft geïntroduceerd, is overal los gehouden van de bestaande constructie. De ingreep kan daarmee in de toekomst weer ongedaan gemaakt worden. Het ontwerp is reversibel, zoals dat heet. “Ook dat was vanaf het begin onderdeel van ons concept”, benadrukt de architect.
“Door de materialisering in hout en vormgeving van de doosjes ziet de ingreep er ook uit alsof het er weer uitgehaald kan worden”, gaat Van Sambeek verder. Dat heeft de gesprekken met de gemeentelijke monumentencommissie en rijksmonumentencommissie zeker versoepeld, denkt hij.
Het los houden van de doosjes van de bestaande constructie heeft ook een belangrijk bouwfysisch voordeel. Zo konden de nieuwe ruimtes eenvoudiger geïsoleerd worden. Het open gelaten middenschip wordt – wel zo duurzaam – alleen verwarmd wanneer deze gebruikt wordt.
Om de ingreep in de kerk zo bescheiden mogelijk te houden, heeft Van Sambeek de doosjes zo laag mogelijk gehouden. De lichte kleur heeft de architect afgeleid van het witte stukwerk van het negentiende-eeuwse deel van de kerk.
Contact
“Met ons werk proberen wij het contact tussen de verschillende gebruikers van een gebouw altijd te stimuleren”, zegt Van Sambeek. Bij de transformatie van de St. Gertrudis van Nijvelkerk heeft de architect hiervoor naar een zo groot mogelijk transparantie gestreefd. Deze ambitie komt het best tot uitdrukking in de manier waarop de gebruikers zich aan de binnenruimte presenteren. De wanden zijn hier niet alleen volledig beglaasd, de gebruikers kunnen ook letterlijk hun deuren naar elkaar openen. Samen kunnen ze van de kerk weer één grote open ruimte maken.
Ter plaatse van de hoge ramen van de kerk is het ‘dak’ van het lage volume voorzien van beloopbare, glazen delen. Zo komt daglicht diep de ruimte in. Maar zo wordt de hoogte van de kerk in het lage volume ook beleefbaar gemaakt. Op de as van het negentiende-eeuwse deel gaat Oomen nog een stap verder: een lange strook van glas biedt hier zicht op het oude rozetraam.
Trefwoorden
kerk
oomen architecten
michiel van raaij
transformatie
Locatie
Best gelezen
1
Finalisten presenteren ontwerp voor Shift Landmark in Rotterdam
woensdag, 4 maart
2
Architect Oliver Thill op 55-jarige leeftijd overleden
donderdag, 5 maart
3
Nieuwe Hittekaart Woningmarkt 2026 van BPD toont aanhoudende woningdruk
dinsdag, 3 maart
4
Strijp-S krijgt woonbuurtje met karakteristieken voormalig Philips-terrein
maandag, 2 maart
5
Haagse gemeenteraad stemt in met bouw van 11.400 woningen in nieuw stadscentrum
maandag, 2 maart
Gerelateerde nieuwsberichten
Uitbreiding heilige kapel goed ontvangen
4 juli 2013
Oomen ontwerpt gelaagd kantoorgebouw voor QNP in Breda
3 juli 2018
Sylvia Pijnenborg: “Slopen kan altijd nog”
12 maart 2013
Ontbijten over transformatie kantoren en gebieden
25 februari 2013
Kerk getransformeerd tot multifunctioneel gebouw
27 februari 2013
Het Grote Transformatiecongres is uitverkocht
4 april 2013
Pand voor ICT-bedrijf drukt connectiviteit uit
12 januari 2017
Krachtige vorm met een licht interieur
23 maart 2016
'Mooiste kerktoren staat in Nijkerk'
15 oktober 2012
Kerk van Cuypers op Ameland afgebrand
5 februari 2013
Nieuwe kerk annex buurthuis voor Woerden
4 september 2012
Officieel startsein bouw Van GoghHuis gegeven
1 juni 2007
Nederlandse kerk Livorno op restauratielijst
1 augustus 2012
Kerken kunnen veel energie besparen
25 september 2012
Tijdelijke vervanging in kerk voor 't Speelhuis
11 oktober 2012
Sint-Janskerk Arnhem wordt 'memorarium'
11 oktober 2012
Restauratie Eusebiuskerk kan voor 34 miljoen
7 mei 2012
Wonen en winkelen rond kerk Berkel en Rodenrijs
29 mei 2012
Kerkgebouw Amersfoort getransformeerd
17 september 2012
Kathedraal van het Noorderlicht ingewijd
11 februari 2013
Kartonnen kathedraal Christchurch in aanbouw
17 april 2012
Nijmegen zoekt toch naar subsidie Stevenskerk
10 juli 2012
Architectenweb houdt Het Grote Transformatiecongres
13 maart 2013
Beeldverslag uitreiking Architectenweb Awards 2018
9 november 2018
Stoer en open gebouw voor softwareontwikkelaar
9 januari 2020
Uitbreiding heilige kapel goed ontvangen
4 juli 2013
Oomen ontwerpt gelaagd kantoorgebouw voor QNP in Breda
3 juli 2018
Sylvia Pijnenborg: “Slopen kan altijd nog”
12 maart 2013
Ontbijten over transformatie kantoren en gebieden
25 februari 2013
Kerk getransformeerd tot multifunctioneel gebouw
27 februari 2013
Het Grote Transformatiecongres is uitverkocht
4 april 2013
Pand voor ICT-bedrijf drukt connectiviteit uit
12 januari 2017
Krachtige vorm met een licht interieur
23 maart 2016
'Mooiste kerktoren staat in Nijkerk'
15 oktober 2012
Kerk van Cuypers op Ameland afgebrand
5 februari 2013
Nieuwe kerk annex buurthuis voor Woerden
4 september 2012
Officieel startsein bouw Van GoghHuis gegeven
1 juni 2007
Nederlandse kerk Livorno op restauratielijst
1 augustus 2012
Kerken kunnen veel energie besparen
25 september 2012
Tijdelijke vervanging in kerk voor 't Speelhuis
11 oktober 2012
Sint-Janskerk Arnhem wordt 'memorarium'
11 oktober 2012
Restauratie Eusebiuskerk kan voor 34 miljoen
7 mei 2012
Wonen en winkelen rond kerk Berkel en Rodenrijs
29 mei 2012
Kerkgebouw Amersfoort getransformeerd
17 september 2012
Kathedraal van het Noorderlicht ingewijd
11 februari 2013
Kartonnen kathedraal Christchurch in aanbouw
17 april 2012
Nijmegen zoekt toch naar subsidie Stevenskerk
10 juli 2012
Architectenweb houdt Het Grote Transformatiecongres
13 maart 2013
Beeldverslag uitreiking Architectenweb Awards 2018
9 november 2018
Stoer en open gebouw voor softwareontwikkelaar
9 januari 2020
Toon alles
Andere nieuwsberichten
André Kempe: ‘Het ging Oliver Thill om het geven van betekenis’
Gisteren, 19:15
Agelopen maandag is architect Oliver Thill overleden. Zijn compagnon André Kempe gedenkt de man met wie hij al meer dan 35 jaar bevriend was en ruim een kwarteeuw geleden Atelier Kempe Thill oprichtte.
TconcepT transformeert voormalig warenhuis in Offenbach tot bibliotheek
Gisteren, 15:54
Het 12.000 vierkante meter omvattende complex gaat in bredere zin fungeren als een cultuur- en educatiecentrum met vele functies. In 2027 moet Station Mitte, zoals het gebouw zijn volgende leven wordt genoemd, klaar zijn.
Werkstatt gaat verder zonder medeoprichter Niels Groeneveld
Gisteren, 14:49
Medeoprichter van Werkstatt Niels Groeneveld stopt als partner bij het bureau, om zich te kunnen richten op zijn gezin en onderwijs. Floor Frings en Raoul Vleugels blijven het Eindhovense bureau leiden.
Binationaal ontwerpteam buigt zich over waterhuishouding Cartagena in Colombia
Gisteren, 13:43
Een Colombiaans-Nederlands ontwerpteam met Felixx Landscape Architects & Planners en Witteveen+Bos moedigt Cartagena aan om haar relatie met water te heroverwegen en na te denken over een veerkrachtige toekomst
Kunstmuseum in Den Haag moet worden verbouwd
Gisteren, 16:32
Daarvoor dient het museum in het Statenkwartier waarschijnlijk een tijd te sluiten.
Coen van Oostrom benoemd tot nieuwe voorzitter VNO-NCW
Gisteren, 12:23
De oprichter van ontwikkelaar Edge volgt in die rol Ingrid Thijssen op, die deze week is begonnen als nieuwe bestuursvoorzitter van de TU Delft.
Rapport: lokaal klimaatbeleid schiet nog tekort
Gisteren, 10:25
De makers van de zogeheten Toekomstmeter hebben het beleid van zeventig gemeenten doorgelicht.
Hardt Hyperloop failliet verklaard door rechtbank
5 maart, 11:37
Het Rotterdamse bedrijf was bezig met de ontwikkeling van technologie om mensen op hoge snelheid via capsules door een vacuümbuis te vervoeren.
Onderzoek: zeespiegel kustgebieden hoger dan in studies aangenomen
5 maart, 9:13
De zeespiegel aan de kust is in grote delen van de wereld waarschijnlijk hoger dan in veel wetenschappelijke studies wordt aangenomen.
Gelderland geeft voorrang aan vergunningen met minder stikstof
4 maart, 12:24
De plannen zijn onderdeel van het pakket maatregelen dat het Gelderse bestuur wil nemen om de vergunningverlening voor zaken als de woningbouw weer op gang te krijgen.
Ga naar het nieuws-archief
0
0
0
0
Voor een optimale gebruikservaring plaatst Architectenweb functionele cookies. Wat de verschillende cookies precies doen leggen we uit in een
overzicht
. Cookies van social media kun je optioneel
aanzetten
.
Akkoord
Instellingen
Annuleren
OK
Sluiten
Doorgaan
Inloggen
Maak een gratis persoonlijk account aan
Feedback
Feedback
Wij horen graag jouw feedback. Laat je reactie achter en eventueel jouw e-mail adres.
Reactie
Verstuur