Projecten
Producten
Bedrijven
Vacatures
Agenda
Awards
Podcasts
more_horiz
Videos
Magazine
Favorieten
Profiel
Uitloggen
Abonneer je nu op onze nieuwsbrieven!
Abonneren
Nee, bedankt
Ja, denk met me mee rond de
materialisering van mijn project
Copyright: grafie Norbert van Onna
Copyright: grafie Norbert van Onna
Copyright: grafie Norbert van Onna
Copyright: grafie Norbert van Onna
Copyright: grafie Norbert van Onna
Copyright: grafie Norbert van Onna
Copyright: grafie Norbert van Onna
Copyright: Wijnen Architectuur
Copyright: Wijnen Architectuur
Copyright: Wijnen Architectuur
Copyright: Wijnen Architectuur
Copyright: Wijnen Architectuur
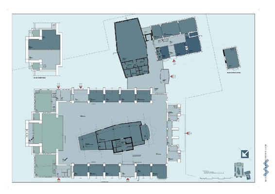
Kerk getransformeerd tot multifunctioneel gebouw
27 februari 2013, 9:41
In Eindhoven is onlangs het multifunctioneel gebouw Elf13 in gebruik genomen. Het programma met onder meer een buurtvereniging en een huisartspraktijk is gehuisvest in een voormalige kerk. Om alle nieuwe functies een plaats te kunnen bieden, heeft
Wijnen Architectuur
in het middenschip een vrijstaand object geplaatst.
Deze ‘spie’, zoals het bouwwerk wordt genoemd, biedt dankzij zijn vorm diverse ruimtelijke en functionele mogelijkheden. Er is bijvoorbeeld een open ‘plein’, maar ook hebben sommige ruimtes een steegachtig karakter. De verdiepingen, waarover onder andere vijftig flexplekken zijn verdeeld, bieden dankzij borstweringen zicht op de kerkruimte.
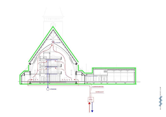
Om het karakter van de uit 1929 stammende kerk te behouden, zijn verschillende maatregelen getroffen. Zo zijn de technische oplossingen zo veel mogelijk uit het zicht geplaatst en is de klassieke glas-in-loodverlichting uit gronden van duurzaamheid vervangen door andere middelen.
Via helder geïsoleerd glas in de vensters komt daglicht binnen, terwijl energiezuinige ledlampen de ruimte op karakteristieke wijze aanlichten. Meer duurzaamheid is bewerkstelligd door het dak en de vloer te isoleren en energie op te wekken via een wko-installatie, in combinatie met warmteterugwinning.
Akoestiek
Ter verbetering van de akoestiek en het reduceren van nagalm is geluidsabsorberend materiaal verwerkt in de wanden en plafonds van de spie en in de puien van de zijbeuken. Ook zijn tussen de steunberen baffles opgehangen, die meelopen met de vorm van de gewelven. De gebruikte materialen zijn eveneens duurzaam, zegt Wijnen Architectuur.
“In dit geval heeft dit onder meer geleid tot het toepassen van bamboe beplating, cradle-to-cradle-tegels en een plat dak voorzien van sedumbegroeiing. Voorzieningen aan dakranden, een speciale vleermuizenkelder en speciale kastjes opgehangen tijdens de bouw zorgen, ervoor dat de oorspronkelijke bewoners, gierzwaluwen en vleermuizen, ook in de toekomst hun thuis kunnen behouden”, zegt het bureau uit ’s-Hertogenbosch.
Nieuw volume
De voormalige pastorie is gehandhaafd en biedt ruimte aan onder meer een huisarts en tandarts. Tussen dit gebouw en de kerk is een nieuw volume geplaatst, dat dienst doet als entree en een gymzaal huisvest. De vorm en de hoekverdraaiing van dit ‘tussenlid’ moet voor een natuurlijke overgang tussen de pastorie en kerk zorgen.
Trefwoorden
transformatie
eindhoven
multifunctioneel gebouw
wijnen architectuur
kerk
Locatie
Best gelezen
1
Woontoren Front door Monadnock wint tiende Architectuurprijs Nijmegen
donderdag, 9 april
2
Spoorwegverleden inspireert ontwerp woonblok Wisselspoor 10 in Utrecht
woensdag, 8 april
3
Rotterdam mag woningen gaan bouwen aan de Parkhaven
woensdag, 8 april
4
RED Company vraagt vergunning aan voor productie- en onderzoeksfaciliteit Lilly
dinsdag, 7 april
5
KOW wint met Marker Woods tender voor nieuwe wijk Eschmarkerveld
woensdag, 8 april
Gerelateerde nieuwsberichten
Naar de huisarts of fysio in een oude kerk
18 februari 2016
Heringerichte Nieuwe Kerk Zierikzee opent
7 april 2014
Van Rijn opent gerestaureerde barak Kamp Vught
15 november 2013
Dirk Roosenburgprijs 2013 voor Gerard en Anton
28 oktober 2013
Gouden kubus voor Groninger kerk
13 mei 2013
Multifunctionele schuurkerk in Kockengen
5 maart 2013
Video: leegstaande kerken
1 maart 2013
Oomen: ‘verkort proces levert soms meer op’
13 februari 2013
Tijdelijk theater Helmond in gebruik genomen
11 februari 2013
Kathedraal van het Noorderlicht ingewijd
11 februari 2013
Kerken kunnen veel energie besparen
25 september 2012
Kerkgebouw Amersfoort getransformeerd
17 september 2012
Nieuwe kerk annex buurthuis voor Woerden
4 september 2012
Naar de huisarts of fysio in een oude kerk
18 februari 2016
Heringerichte Nieuwe Kerk Zierikzee opent
7 april 2014
Van Rijn opent gerestaureerde barak Kamp Vught
15 november 2013
Dirk Roosenburgprijs 2013 voor Gerard en Anton
28 oktober 2013
Gouden kubus voor Groninger kerk
13 mei 2013
Multifunctionele schuurkerk in Kockengen
5 maart 2013
Video: leegstaande kerken
1 maart 2013
Oomen: ‘verkort proces levert soms meer op’
13 februari 2013
Tijdelijk theater Helmond in gebruik genomen
11 februari 2013
Kathedraal van het Noorderlicht ingewijd
11 februari 2013
Kerken kunnen veel energie besparen
25 september 2012
Kerkgebouw Amersfoort getransformeerd
17 september 2012
Nieuwe kerk annex buurthuis voor Woerden
4 september 2012
Toon alles
Andere nieuwsberichten
Restauratie Atlasbeeld op dak Koninklijk Paleis Amsterdam afgerond
Gisteren, 15:38
Het beeld op het fronton van het paleis was in juli van zijn plek gehaald voor een uitgebreide onderhoudsbeurt in Antwerpen.
Nieuw zitgebied Lounge 2 Schiphol geïnspireerd door overgangsfase in oeuvre Mondriaan
Gisteren, 14:16
Op luchthaven Schiphol is de derde en laatste fase van door Beyond Space ontworpen zitgebieden opgeleverd. Net als de eerste twee fases van het project is dit gedeelte geïnspireerd door het werk van Mondriaan, maar dan uit een eerdere periode.
SeARCH en Heutink Groep winnen tender voor woongebouw Sluisbuurt
Gisteren, 11:15
Gebouw Radius biedt plek aan zo’n honderd appartementen, een stadskamer, een binnentuin, daktuinen en andere gemeenschappelijke ruimtes. Het gebouw wordt gerealiseerd van natuurlijke materialen als hout, stampleem en leemsteen.
Woontoren Front door Monadnock wint tiende Architectuurprijs Nijmegen
9 april, 10:00
“Front is een optimistisch icoon, gemaakt met lef, dat ambachtelijkheid en vakmanschap uitstraalt”, stelt de jury in zijn rapport.
Grote en kleine gemeenten balen van bouwregels Zuid-Holland
Gisteren, 16:31
Grote en kleine gemeenten in Zuid-Holland hebben hun zorgen geuit over nieuwe regels van de provincie, die volgens hen de woningbouw belemmeren.
Twijfels in Zuid-Holland over halen van doelen landelijk gebied
Gisteren, 12:18
De meeste partijen in de Zuid-Hollandse politiek hebben twijfels over de plannen die in zestien deelgebieden zijn gemaakt voor de aanpak van het landelijk gebied.
Huurprijzen stijgen harder dan koopwoningprijzen
Gisteren, 09:31
Volgens Huurwoningen.nl en Pararius moesten nieuwe huurders in het eerste kwartaal gemiddeld 21,12 euro per vierkante meter per maand neerleggen.
ABN AMRO: investeringen defensie vergroten druk op bouwcapaciteit
9 april, 12:29
Kazernes, opslagplaatsen en oefenterreinen dingen om dezelfde aannemers, ingenieurs en installateurs die ook nodig zijn voor bijvoorbeeld woningbouw.
Europa kent 831 miljoen euro subsidie toe aan Utrechtse projecten
9 april, 9:27
Het gaat onder meer om projecten tegen oververhitting van gebouwen, slimmer gebruik van energie en het hergebruik van materialen en grondstoffen.
Rotterdam mag woningen gaan bouwen aan de Parkhaven
8 april, 3:38
De Raad van State maakte woensdag bekend dat alle bezwaren tegen het bestemmingsplan zijn verworpen.
Ga naar het nieuws-archief
0
0
0
0
Voor een optimale gebruikservaring plaatst Architectenweb functionele cookies. Wat de verschillende cookies precies doen leggen we uit in een
overzicht
. Cookies van social media kun je optioneel
aanzetten
.
Akkoord
Instellingen
Annuleren
OK
Sluiten
Doorgaan
Inloggen
Maak een gratis persoonlijk account aan
Feedback
Feedback
Wij horen graag jouw feedback. Laat je reactie achter en eventueel jouw e-mail adres.
Reactie
Verstuur