Projecten
Producten
Bedrijven
Vacatures
Agenda
Awards
Podcasts
more_horiz
Videos
Magazine
Thema's
Favorieten
Profiel
Uitloggen
Copyright: Jussi Tianen
Copyright: Pan Weijun
Copyright: Kari Palsila
Copyright: Jussi Tianen
Copyright: Jussi Tianen
Copyright: Kari Palsila
Copyright: Kari Palsila
Copyright: Kari Palsila
Copyright: PES-Architects
Copyright: PES-Architects
Copyright: PES-Architects
Copyright: PES-Architects
‘Sydney Opera House’ voor Chinese stad
30 augustus 2012, 16:11
De Chinese stad Wuxi heeft zijn eigen ‘Sydney Opera House’. Op een kunstmatig schiereiland nabij een brug staat sinds dit jaar een nieuwe opera en theater. Al gelang het type voorstelling dat er plaats vindt, kan het gebouw van kleur veranderen.
Het Finse
PES-Architects
, dat in 2008 de prijsvraag voor het ontwerp won, realiseerde het gebouw in een soortgelijke omgeving als waar het
beroemde operahuis in Sydney
staat. Het bureau besloot aan het water, nabij de genoemde brug, een even groot architectonisch gebaar te maken als Jorn Utzon eind jaren vijftig deed.
De enorme dakbladen van het vijftig meter hoge gebouw geven het complex volgens de architecten het voorkomen van een vlinder, maar van een afstand gezien zou het theater evengoed een oude Chinese tempel kunnen zijn.
De bladen zijn aan de onderkant doorschijnend, en kunnen daar met behulp van LED’s verschillende kleuren licht geven. Rond en in het gebouw zijn nog een vijftig eveneens lichtgevende palen verspreid. Op het voorplein verwelkomen ze de bezoekers, terwijl ze in de entreelobby het dak ondersteunen en tot in het achtergelegen meer doorlopen.
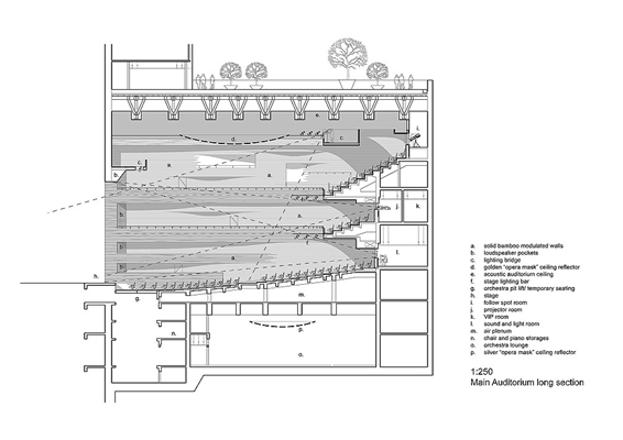
Het traditionele Chinese bouwmateriaal bamboe is op vele plaatsen verwerkt in het gebouw. Met behulp van nieuwe productiemethoden zijn er 15.000 massieve blokken van bamboe gemaakt, waarmee de grote zaal is aangekleed. De blokken zijn alle geschapen naar de akoestische en vormtechnische vereisten van de zaal.
Trefwoorden
china
opera
theater
wuxi
pes-architects
Best gelezen
1
Houthybride woongebouw langs de A8 in Zaandam opgeleverd
dinsdag, 11 november
2
WillemsenU zinkt villa af in landschap
dinsdag, 11 november
3
Woongebouw voor gezinnen biedt ruime corridor en gekoppelde terrassen met glijbaan
woensdag, 12 november
4
MVRDV ontwerpt bolvormig sportcomplex in Albanese hoofdstad Tirana
maandag, 10 november
5
Benthem Crouwel Architects plaatst slotstuk in Paleiskwartier van Den Bosch
donderdag, 13 november
Gerelateerde nieuwsberichten
3XN ontwerpt toren nabij Sydney Opera House
25 september 2014
Chinees operagebouw Zaha Hadid voltooid
4 maart 2011
Nationaal theater China in gebruik genomen
2 oktober 2007
Andere nieuwsberichten
Nominaties Zuiderkerkprijs en Geurt Brinkgreve Bokaal 2025 bekend
14 november, 12:17
Voor de eerstgenoemde woningbouwprijs van de gemeente Amsterdam zijn tien projecten genomineerd, de bokaal voor het beste initiatief op het gebied van herontwikkeling, transformatie of renovatie leverde zeven nominaties op.
'Architecten kunnen kwaliteit waarborgen bij splitsen en opdelen rijtjeshuizen'
14 november, 11:14
Om het splitsen en opdelen van rijtjeswoningen van de grond te krijgen, dienen het Rijk en gemeenten de regie te nemen. Architecten kunnen hierbij worden ingeschakeld voor de waarborging van de kwaliteit, aldus een vrijdag verschenen rapport.
MVRDV en Buro Happold ontwerpen nieuw theater in Veenendaal
14 november, 10:23
Voor de vernieuwing van Theater De Lampegiet zijn vijf schetsontwerpen gemaakt. Zowel de inwoners van de stad als de jury hebben daarbij voor het ontwerp van MVRDV en Buro Happold gekozen.
Benthem Crouwel Architects plaatst slotstuk in Paleiskwartier van Den Bosch
13 november, 5:00
Benthem Crouwel Architects heeft het stadsblok Palazzo in het Paleiskwartier van Den Bosch opgeleverd
Vlaanderen aansprakelijk voor Limburgse schade in tramdebacle
1 uur geleden
De Vlaamse regering is aansprakelijk voor de miljoenen euro's aan kosten die zijn gemaakt rond de afgeblazen tramlijn tussen Maastricht en het Belgische Hasselt.
Zuid-Holland verhoogt budget voor restauratie rijksmonumenten
14 november, 2:08
De provincie Zuid-Holland verhoogt het budget voor de restauratie van rijksmonumenten structureel.
Rapport: natuur kan helpen beschermen tegen stijgende zeespiegel
14 november, 9:24
Natuurlijke oplossingen zoals ruim baan geven aan gebieden met eb en vloed kunnen helpen de Nederlandse kustlijn te beschermen tegen de stijgende zeespiegel.
Deltacommissaris: ga nu al in gesprek over toekomst waterbeheer
13 november, 4:03
Nederland moet nu al kijken welke randvoorwaarden nodig zijn om grote waterbeschermingsprogramma's zoals de Deltawerken in de komende jaren uit te voeren.
Gemeentebestuur wil Brabants dorp Moerdijk laten verdwijnen
13 november, 10:23
Het dorp Moerdijk in Noord-Brabant moet verdwijnen om plaats te maken voor uitbreiding van het bestaande haven- en industrieterrein in die plaats.
Iets minder mensen vertrekken uit de Randstad dan in eerdere jaren
12 november, 10:00
Onder andere omdat er in de Randstad meer kinderen worden geboren, groeit de bevolking daar sneller dan in de gebieden eromheen. Netto vertrokken er afgelopen jaar 14.000 mensen.
Ga naar het nieuws-archief
0
0
0
0
Voor een optimale gebruikservaring plaatst Architectenweb functionele cookies. Wat de verschillende cookies precies doen leggen we uit in een
overzicht
. Cookies van social media kun je optioneel
aanzetten
.
Akkoord
Instellingen
Annuleren
OK
Sluiten
Doorgaan
Inloggen
Maak een gratis persoonlijk account aan
Feedback
Feedback
Wij horen graag jouw feedback. Laat je reactie achter en eventueel jouw e-mail adres.
Reactie
Verstuur