Projecten
Producten
Bedrijven
Vacatures
Agenda
Awards
Podcasts
more_horiz
Videos
Magazine
Thema's
Favorieten
Profiel
Uitloggen
Impressie: CIIID/ Cees van Giessen
Impressie: CIIID/ Cees van Giessen
Impressie: DP6
Impressie: DP6
Impressie: DP6
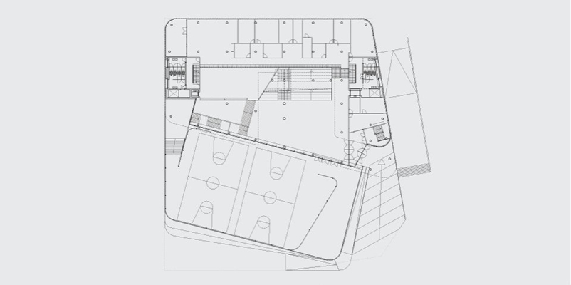
‘Ruimtelijke’ school voor Beethovengebied
9 november 2010, 10:25
In Amsterdam is gestart met de bouw van het Sint-Nicolaaslyceum. De door
DP6
ontworpen middelbare school moet een icoon worden voor het gebied tussen de Zuidas en de Stadionkade. De verschillende functies zijn op speelse wijze geïntegreerd.
Zo bevindt zich op de half verdiepte sportzaal een sportveld in de open lucht. Het sportgedeelte is ten opzichte van het schoolgebouw een kwartslag gedraaid. De entree is op subtiele wijze verscholen en kan via een trap naast de sporthal worden bereikt. Deze trap zorgt er volgens DP6 voor dat het voorgelegen plein als podium kan worden gebruikt.
In het 12.000 vierkante meter omvattende gebouw zijn behalve de onderwijsvoorzieningen ook wetenschap- en cultuurfuncties zichtbaar. Alle ruimten zijn verbonden door het atrium, het hart van de school dat zelf ook weer ontmoetingsplaatsen, werkplekken en theatermogelijkheden bevat.
De buitenruimte speelt een essentiële rol in het gebouw, zegt DP6. Het vormt namelijk de verbindende schakel tussen de school en het omringende Beethovengebied, zoals het gedeelte direct boven de Zuidas genoemd wordt.
“Het atrium richt zich naar park en plein, twee richtingen die elkaar ontmoeten en ruimtelijkheid opleveren. Buitenruimtes ‘waaieren’ door het gebouw en kunnen sportveld, stadsbalkon, proeftuin, lesruimte, experimentendak worden.”
Bijna drie jaar geleden won het Delftse bureau
de prijsvraag voor het ontwerp
. In 2011 moet het Sint-Nicolaaslyceam worden opgeleverd.
Trefwoorden
schoolgebouw
amsterdam
dp6 architectuurstudio
Best gelezen
1
Den Bosch 'pauzeert' aanbesteding voor ontwerp gebiedsontwikkeling Citadelpoort
maandag, 17 november
2
Expositie in Kunsthal belicht eerdere toeristische periode Rotterdam
dinsdag, 18 november
3
MVRDV en Buro Happold ontwerpen nieuw theater in Veenendaal
vrijdag, 14 november
4
Nominaties Zuiderkerkprijs en Geurt Brinkgreve Bokaal 2025 bekend
vrijdag, 14 november
5
Zelfsluitende Vlotterkering in Steyl vormt tevens 'balkon aan de Maas'
dinsdag, 18 november
Gerelateerde nieuwsberichten
Uitdagend schoolgebouw voor St. Nicolaaslyceum
17 december 2012
Multifunctionele waterkering voor Katwijk
15 juni 2011
SeARCH ontwerpt 197 woningen op Zuidas
29 april 2013
B4o en DP6 ontwerpen uitbreiding AZC
14 juli 2011
Woongebouw Lloydpier opgeleverd
12 januari 2011
Richelle de Jong derde partner DP6
1 juli 2010
CineMec winnaar Architectuurprijs Ede 2009
10 december 2009
Scheepvaart- en Transportcollege kiest DP6
16 oktober 2009
DP6 ontwerpt Stedelijk College Eindhoven
28 januari 2010
DP6 ontwerpt opleidingscentrum Vietnam
17 september 2010
DP6 ontwerpt Sint-Nicolaaslyceum Amsterdam
12 december 2007
Nieuwe brug Erasmusgracht maakt nachtrit
14 mei 2010
Bos en Lommer heeft eigen 'Erasmusbrug'
15 juli 2010
Uitdagend schoolgebouw voor St. Nicolaaslyceum
17 december 2012
Multifunctionele waterkering voor Katwijk
15 juni 2011
SeARCH ontwerpt 197 woningen op Zuidas
29 april 2013
B4o en DP6 ontwerpen uitbreiding AZC
14 juli 2011
Woongebouw Lloydpier opgeleverd
12 januari 2011
Richelle de Jong derde partner DP6
1 juli 2010
CineMec winnaar Architectuurprijs Ede 2009
10 december 2009
Scheepvaart- en Transportcollege kiest DP6
16 oktober 2009
DP6 ontwerpt Stedelijk College Eindhoven
28 januari 2010
DP6 ontwerpt opleidingscentrum Vietnam
17 september 2010
DP6 ontwerpt Sint-Nicolaaslyceum Amsterdam
12 december 2007
Nieuwe brug Erasmusgracht maakt nachtrit
14 mei 2010
Bos en Lommer heeft eigen 'Erasmusbrug'
15 juli 2010
Toon alles
Andere nieuwsberichten
ECHO Urban Design en RoosRos Architecten winnen tender Machinewerf Vlissingen
1 uur geleden
ECHO Urban Design en RoosRos Architecten zijn samen met partners Leyten, Fullhouse, depart en Steenvlinder door de gemeente Vlissingen geselecteerd als winnende partner voor de ontwikkeling van locatie de Machinewerf in het Scheldekwartier.
Atelier PUUUR voegt The Rock toe aan de Weespertrekvaartbuurt
4 uur geleden
Nieuw huurcomplex van Atelier PUUUR in Amsterdam omvat appartementen, jongerenwoningen en ruimte voor jeugdhulp en jeugdgezondheidszorg.
MoederscheimMoonen Architects ontwerpt eigen kantoor in historische vertrekhal Oranjelijn Rotterdam
Gisteren, 16:40
MoederscheimMoonen Architects levert nieuw, duurzame hoofdkantoor van moedermaatschappij TBP Group op.
Restauratie Bakenessertoren Haarlem bekroond met Lieven de Key Penning 2025
Gisteren, 15:56
De restauratie van de Bakenessertoren in Haarlem is onderscheiden met de Lieven de Key Penning 2025. De publieksprijs werd toegekend aan de verbouwing en uitbreiding van het Stedelijk Gymnasium.
Mogelijke proef zelfrijdende pendelbussen tussen station Hoofddorp en Schiphol Trade Park
4 uur geleden
De provincie Noord-Holland onderzoekt of het zelfrijdende pendelbussen zonder chauffeur kan laten rijden in de buurt van Schiphol. Als dit qua veiligheid en techniek haalbaar is, wil de provincie in 2027 een proef starten.
Fietsflat bij Amsterdam Centraal wordt na 25 jaar gesloopt
4 uur geleden
Voor de door VMX Architects ontworpen fietsenstalling is geen nieuwe plek gevonden. Daarom wordt de 'fietsflat' nu gesloopt.
Maastricht grootste stijger op lijst van beste steden om te wonen
Vandaag, 13:15
Op de ranglijst van de Atlas voor Gemeenten steeg Maastricht de afgelopen tien jaar van de 40e naar de 34e plek. Amsterdam staat stevig op de 1e plek van de lijst.
Minder infraprojecten gaan door na bezuinigingen Prinsjesdag
Vandaag, 10:40
Minder infrastructuurprojecten kunnen doorgaan door bezuinigingen die met Prinsjesdag zijn doorgevoerd. Dat staat in antwoorden op Kamervragen over de begroting van het Mobiliteitsfonds.
Om malafide grondspeculatie tegen te gaan, overweegt het kabinet een bedenktijd voor kopers van grond
Vandaag, 09:00
Grondhandelaren splitsen landbouwgrond vaker op in kleine stukjes en verkopen die dan door aan particulieren. De kopers kunnen dan ten onrechte denken dat de gemeente op de grond wil bouwen, terwijl dat niet zo is.
Gemeenteraad Moerdijk stemt in met verdwijnen van dorp
Vandaag, 08:00
De gemeente onderzocht jarenlang alternatieven, maar concludeert dat het dorp moet verdwijnen voor de uitbreiding van het haven- en industrieterrein
Ga naar het nieuws-archief
0
0
0
0
Voor een optimale gebruikservaring plaatst Architectenweb functionele cookies. Wat de verschillende cookies precies doen leggen we uit in een
overzicht
. Cookies van social media kun je optioneel
aanzetten
.
Akkoord
Instellingen
Annuleren
OK
Sluiten
Doorgaan
Inloggen
Maak een gratis persoonlijk account aan
Feedback
Feedback
Wij horen graag jouw feedback. Laat je reactie achter en eventueel jouw e-mail adres.
Reactie
Verstuur