Projecten
Producten
Bedrijven
Vacatures
Agenda
Awards
Podcasts
more_horiz
Videos
Magazine
Thema's
Favorieten
Profiel
Uitloggen
Copyright: grafie Rob 't Hart
Copyright: grafie Rob 't Hart
Copyright: grafie Rob 't Hart
Copyright: grafie Rob 't Hart
Woongebouw Lloydpier opgeleverd
12 januari 2011, 10:12
Op de Lloydpier in Rotterdam is het eerste van twee woongebouwen opgeleverd naar ontwerp van
DP6
architectuurstudio. De golvende balkons in het ontwerp vormen een verwijzing naar de Maas.
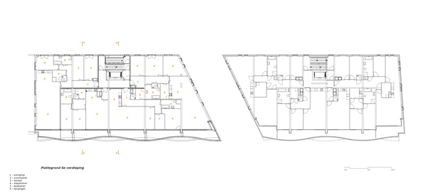
De Lloydpier in Rotterdam wordt getransformeerd van havengebied naar woongebied. Binnen het stedenbouwkundig plan van Rijnboutt zijn door DP6 twee woonblokken op een parkeergarage ontworpen. Het eerste blok is nu opgeleverd, aan de bouw van het tweede blok moet nog begonnen worden.
Aan de Lloydkade heeft DP6 stadswoningen ontworpen. De woongebouwen zijn opgebouwd als ‘vierspanners’: er zijn vier woningen gegroepeerd rond een kern. Op de bovenste verdieping liggen penthouses. Grote poorten in de blokken brengen licht in de gemeenschappelijke binnentuinen.
Golvende balkons
Het centrale thema van het ontwerp is volgens DP6 de buitenruimtes op het zuiden met uitzicht op de rivier: “De golvende plattegrond van de balkons zorgt voor voldoende maat en bezonning en geeft een dynamisch en bij de rivier passend beeld.”
Het ontwerp is tot stand gekomen in overleg met de supervisor en de architecten die de naastgelegen woongebouwen hebben ontworpen: De Zwarte Hond, Claus en Kaan Architecten, Rijnboutt en Geurst & Schulze Architecten.
Trefwoorden
claus en kaan
geurst & schulze architecten
rijnboutt
dp6 architectuurstudio
de zwarte hond
lloydpier
rotterdam
Locatie
Best gelezen
1
Buikslotermeerplein in Amsterdam-Noord krijgt zeventig meter hoge woontoren
woensdag, 22 oktober
2
Gedetailleerde 3D-geprinte maquette toont ruimtelijke ontwikkeling Amsterdam
vrijdag, 17 oktober
3
Woongebouwen door VdpArchitecten vormen nieuwe 'voorkant' Groningse Oosterparkwijk
vrijdag, 17 oktober
4
Nieuw woongebouw op plek befaamde elektronicazaak Rotterdam-Noord
maandag, 20 oktober
5
De Louise van De Zwarte Hond combineert sociale woningbouw met kwaliteit en duurzaamheid
maandag, 20 oktober
Gerelateerde nieuwsberichten
Paul de Ruiter Architects, WE Architecten en ZUS ontwerpen woonblok op Lloydpier
14 februari 2020
DP6 presenteert woonhuis Makkinga
21 januari 2015
Schenk wordt nieuwe BNA-voorzitter
31 augustus 2011
Uitdagend schoolgebouw voor St. Nicolaaslyceum
17 december 2012
Vijf partijen werken visie gezinsappartementen uit
9 maart 2016
Theater en bieb worden 'huiskamer van Oosterhout'
10 januari 2013
Le Medi wint Kleur Buiten Prijs 2010
11 februari 2011
Arons en Gelauff & Architectuur Maken ontwerpen woonblok Lloydpier
23 februari 2018
Laurens Boodt wint prijsvraag Gezinsappartementen
10 oktober 2016
Multifunctionele waterkering voor Katwijk
15 juni 2011
Zwarte Hond wint selectie MFA Barendrecht
2 december 2011
Eerste bewoners Lloydtoren De Zwarte Hond
3 maart 2011
B4o en DP6 ontwerpen uitbreiding AZC
14 juli 2011
DP6 ontwerpt Hele Dag School Utrecht
8 juni 2012
Rotterdam: woningen op Lloydpier en naast Dakpark
7 juni 2016
Universiteitsgebouw van DP6 geopend
14 juli 2009
DP6 ontwerpt opleidingscentrum Vietnam
17 september 2010
Scheepvaart- en Transportcollege kiest DP6
16 oktober 2009
‘Ruimtelijke’ school voor Beethovengebied
9 november 2010
DP6 ontwerpt Stedelijk College Eindhoven
28 januari 2010
Geurst & Schulze
30 augustus 2020
Geurst & Schulze – genomineerd voor de Architect van het Jaar-prijs
7 september 2020
Paul de Ruiter Architects, WE Architecten en ZUS ontwerpen woonblok op Lloydpier
14 februari 2020
DP6 presenteert woonhuis Makkinga
21 januari 2015
Schenk wordt nieuwe BNA-voorzitter
31 augustus 2011
Uitdagend schoolgebouw voor St. Nicolaaslyceum
17 december 2012
Vijf partijen werken visie gezinsappartementen uit
9 maart 2016
Theater en bieb worden 'huiskamer van Oosterhout'
10 januari 2013
Le Medi wint Kleur Buiten Prijs 2010
11 februari 2011
Arons en Gelauff & Architectuur Maken ontwerpen woonblok Lloydpier
23 februari 2018
Laurens Boodt wint prijsvraag Gezinsappartementen
10 oktober 2016
Multifunctionele waterkering voor Katwijk
15 juni 2011
Zwarte Hond wint selectie MFA Barendrecht
2 december 2011
Eerste bewoners Lloydtoren De Zwarte Hond
3 maart 2011
B4o en DP6 ontwerpen uitbreiding AZC
14 juli 2011
DP6 ontwerpt Hele Dag School Utrecht
8 juni 2012
Rotterdam: woningen op Lloydpier en naast Dakpark
7 juni 2016
Universiteitsgebouw van DP6 geopend
14 juli 2009
DP6 ontwerpt opleidingscentrum Vietnam
17 september 2010
Scheepvaart- en Transportcollege kiest DP6
16 oktober 2009
‘Ruimtelijke’ school voor Beethovengebied
9 november 2010
DP6 ontwerpt Stedelijk College Eindhoven
28 januari 2010
Geurst & Schulze
30 augustus 2020
Geurst & Schulze – genomineerd voor de Architect van het Jaar-prijs
7 september 2020
Toon alles
Gerelateerde video's
Geurst & Schulze
Nominatie voor de prijs voor Architect van het Jaar 2020
Andere nieuwsberichten
Tentoonstelling Optimistic Activism van De Zwarte Hond opent bij Aedes in Berlijn
4 minuten geleden
De Zwarte Hond heeft een tentoonstelling samengesteld over haar werkwijze en een bijhorende selectie van twaalf projecten
Bouw van The Circle op plek café De Omval gaat van start
1 uur geleden
In november wordt aan de kop van de Weespertrekvaart in Amsterdam gestart met de bouw van The Circle. Het gebouw, dat is ontworpen door Space & Matter, verrijst op de plek waar vroeger het befaamde café De Omval stond.
BNLA breidt woonhuis uit met uitbouw en 'verborgen schatten' in de tuin
3 uur geleden
In Amstelveen heeft BNLA architecten een jarendertigwoning verbouwd en uitgebreid met onder meer een moderne uitbouw en een verdiept tuinhuis. Achter het tuinhuis zijn als ‘verborgen schatten’ nog een zwembad, buitenkeuken en terras gerealiseerd.
Schimmelstraat Amsterdam loopt niet langer dood dankzij woongebouw voor 55-plussers
Gisteren, 16:36
Aan de Tweede Kostverlorenkade in Amsterdam-West is deze zomer een appartementengebouw voor 55-plussers opgeleverd. Het gebouw met 38 sociale huurwoningen is in opdracht van Rochdale ontworpen door INBO.
Provincies: bouw van half miljoen woningen dreigt stil te vallen
56 minuten geleden
De bouw van ongeveer 500.000 woningen dreigt de komende jaren vast te lopen, vooral door de stikstofimpasse en het overvolle elektriciteitsnet.
Maquette als onderdeel van expositie Amsterdam in Motion wordt geopend
Vandaag, 10:35
De maquette, onderdeel van de permanente tentoonstelling Amsterdam in Motion, is een cadeau aan de 750-jarige stad.
Provincies zetten in op natuurherstel tegen stikstofimpasse
Gisteren, 13:27
In 2030 moet zeventig procent van die natuurgebieden op orde zijn, vijf jaar later moet dat voor negentig procent gelden.
Renovatie Prinsenhof Delft kost negen miljoen meer dan eerder begroot
Gisteren, 09:33
Dat komt onder meer doordat bouwmaterialen en energie duurder zijn geworden en door ‘schaarste aan gespecialiseerd vakmanschap’, meldt de gemeente.
Oproep aan nieuw kabinet: maak topprioriteit van schoon water
21 oktober, 12:26
De Unie van Waterschappen vindt dat het volgende kabinet hiervoor moet zorgen om de Europese doelen voor schoon en gezond water te halen.
Zuid-Holland draagt elf locaties Groene Hart aan voor windturbines
21 oktober, 10:45
Uit een verkennend onderzoek bleek al dat in het open polderlandschap ruimte is voor maximaal 67 turbines van 240 meter.
Ga naar het nieuws-archief
0
0
0
0
Voor een optimale gebruikservaring plaatst Architectenweb functionele cookies. Wat de verschillende cookies precies doen leggen we uit in een
overzicht
. Cookies van social media kun je optioneel
aanzetten
.
Akkoord
Instellingen
Annuleren
OK
Sluiten
Doorgaan
Inloggen
Maak een gratis persoonlijk account aan
Feedback
Feedback
Wij horen graag jouw feedback. Laat je reactie achter en eventueel jouw e-mail adres.
Reactie
Verstuur