Projecten
Producten
Bedrijven
Vacatures
Agenda
Awards
Podcasts
more_horiz
Videos
Magazine
Thema's
Favorieten
Profiel
Uitloggen
Nieuw
Populair
Toon alles
Architectenweb magazine #14
Architectenweb magazine #13
Publieke gebouwen
Architectenweb magazine #12
Kantoren
Architectenweb magazine #11
Scholen
Architectenweb magazine #10
Zorg
Architectenweb magazine #14
Architectenweb magazine #10
Zorg
Architectenweb magazine #12
Kantoren
Architectenweb magazine #13
Publieke gebouwen
Architectenweb magazine #6
Transformatie en Renovatie
Om direct naar je favorieten te kunnen gaan is het nodig om eerst in te loggen.
Nieuw
Architectenweb Awards 2025
Architectenweb Awards 2024
Architectenweb Awards 2023
Architectenweb Awards 2022
Architectenweb Awards 2021
Architectenweb Awards 2020
Architectenweb Awards 2019
Architectenweb Awards 2018
Om direct naar je favorieten te kunnen gaan is het nodig om eerst in te loggen.
Nieuw
Populair
Favorieten
Toon alles
Vakwerk Architecten
Nominatie voor de prijs voor Architect van het Jaar 2025
Sanne van Manen
Nominatie voor de prijs voor Architect van het Jaar 2025
KSA
Nominatie voor de prijs voor Architect van het Jaar 2025
KRFT
Nominatie voor de prijs voor Architect van het Jaar 2025
Joost Ector
Nominatie voor de prijs voor Architect van het Jaar 2025
Prijsuitreiking Architectenweb Awards 2024
Impressie van een feestelijke avond
Martens, Willems & Humblé Architecten
Nominatie voor de prijs voor Architect van het Jaar 2024
Uitreiking van Architectenweb Awards 2020
Impressie van de prijsuitreiking via Zoom
De Zwarte Hond
Nominatie voor de prijs voor Architect van het Jaar 2024
Avond met De Zwarte Hond
Symposium
Om direct naar je favorieten te kunnen gaan is het nodig om eerst in te loggen.
Nieuw
Populair
Categorieën
Favorieten
Toon alles
ST1centrum
Dé specialist op het gebied van gevelstenen en dakpannen
Studio Massimo
Architecture & Nature
Brandpreventie Academy BV
Cay Circulaire Keukens
Circulaire keukens en pantry's
Studio Kirsten Reith
Interieurontwerp
Studio175
Interieuradvies in regio Utrecht
Interior & Co
Studio175
Interieuradvies in regio Utrecht
Cay Circulaire Keukens
Circulaire keukens en pantry's
Brandpreventie Academy BV
Orange Automatic Doors
Studio Kirsten Reith
Interieurontwerp
Architecten
Architectuur
Mobiliteit en infrastructuur
Stedenbouw en landschapsarchitectuur
Leveranciers
Gevels
Daken
Ramen en deuren
Trappen, liften en balustrades
Binnenwanden
Vloeren
Plafonds
Verlichting
Sanitair
Projectinrichting
Installaties
Constructies
Buitenruimte
Software
Adviseurs
Bestekschrijvers
Bouwmanagement
Installatie adviseurs E
Bouwfysica
Calculators
Installatie adviseurs G/W
Bouwkundig tekenwerk
Constructeurs
Lichtadviseurs
Adviseur beveiliging
Juristen
Intermediairs, Payrolling
Aannemers
Overig
Presentatie
Instellingen / onderwijs
Overig
Om direct naar je favorieten te kunnen gaan is het nodig om eerst in te loggen.
Nieuw
Populair
Favorieten
Toon alles
Gesprek met Stephan Sliepenbeek over hoogbouw in Amstel III
Gesprek met Ellen van Bueren over gebiedsontwikkeling en hoogbouw
Gesprek met Ma Yansong over ontwerpen die emotie oproepen
Gesprek met Paul de Ruiter over innovatieve en duurzame hoogbouw
Gesprek met Pi de Bruijn over zijn ontwerpen voor de Tweede Kamer toen en nu
Gesprek met Ellen van Bueren over gebiedsontwikkeling en hoogbouw
Gesprek met Oresti Sarafopoulos over het ontwerpen van een kantoorgebouw met bijna geen installaties
Gesprek met Stijn Steenbakkers over verdichting en hoogbouw in Eindhoven
Gesprek met Pi de Bruijn over zijn ontwerpen voor de Tweede Kamer toen en nu
Gesprek met Paul de Ruiter over innovatieve en duurzame hoogbouw
Om direct naar je favorieten te kunnen gaan is het nodig om eerst in te loggen.
Nieuw
Populair
Categorieën
Favorieten
Toon alles
Hoofdkantoor We Enable Climbers
Renovatie met respect voor oorspronkelijke ontwerp
Øbro-Hallen
ITO Toren Amsterdam
Natuurlijk modern bedrijfsgebouw
Boekweitkamp, Den Haag
Exclusieve wooneenheden
Kantoorinterieur: van Rest tot Ruimte
De Grote Zwaan, Nijmegen
Renovatieproject Ockenburghstraat
Architectuur
Woningbouw
Zorg
Hotels
Restaurants en café’s
Winkels
Sportgebouwen
Culturele gebouwen
Overheidsgebouwen
Scholen
Kantoren
Bedrijfsgebouwen
Paviljoens en kunst
Overig
Mobiliteit en infrastructuur
Trein- en metrostations
Luchthavens
Busstations
Parkeergarages
Fietsparkeren
Wegen
Bruggen
Water
Energie
Tankstations en laadstations
Waterzuivering en afvalverwerking
Overig
Stedenbouw en landschapsarchitectuur
Regionale visies
Gebiedsvisies
Plannen stedelijk weefsel
Amusementsparken en dierentuinen
Lichtontwerpen
Openbare ruimte
Pleinen
Parken
Tuinen
Speelplaatsen
Uitkijktorens
Overige (bijv. begraafplaatsen)
Om direct naar je favorieten te kunnen gaan is het nodig om eerst in te loggen.
Nieuw
Populair
Categorieën
Favorieten
Toon alles
Akoestische scheidingswand met print
Een oplossing met print waar je stil van wordt
Palazzo Collection
De Collectie waar alle sterke punten van onze gevelstenen samenkomen!
WoodFrame Slim Meranti
Profielen uit post-consumer meranti hardhout uit Nederlandse sloopprojecten, FSC Recycled
Nieuw! Circus Zitelementen stelen de show
Duurzaam en uitnodigend straatmeubilair voor elke buitenruimte
Naturoll 031 (nieuw!)
Betere prestaties, meer rendement.
Akoestisch kussen.
Ervaar de ultime natuurlijke oplossing voor akoestiek problemen.
StoTherm Wood: cementvrij gevelsysteem met houtvezelisolatie
Biobased gevelisolatie met natuurlijke prestaties
Lumiglaze – Het vlakglas van VELUX Commercial
Een nieuw tijdperk in daglichtontwerp – minimalistisch, functioneel en klaar voor de toekomst.
Veelzijdig straatmeubilair
Van openbare ruimte naar (be)leefomgeving
Knauf MaxSpace
Minder wand, méér ruimte. Het ideale profiel voor meer winst per m²
Gevels
Gevelbekleding
Vliesgevels
Zonwering buiten
Isolatie
Gevelconstructies
Signing
Overig
Daken
Dakafwerkingen
Dakisolatie
Dakconstructies
Dakranden, dakgoten en HWA's
Dakramen
Lichtkoepels
Lichtstraten
Schoorstenen
Overig
Dakluiken
Ramen en deuren
Raam- en deursystemen / kozijnen
Vliesgevels
Hang- en sluitwerk
Beveiliging en luiken
Dorpels en vensterbanken
Lateien
Roosters
Glas
Dakramen
Dakkoepels
Lichtstraten
Zonwering buiten
Zonwering binnen
Buitendeuren
Binnendeuren
Postvakken en brievenbussen
Overig
Dakluiken
Trappen, liften en balustrades
Trappen
Roltrappen
Liften
Balustrades en hekwerken
Galerijen
Binnenwanden
Binnenwanden
Wandafwerking
Vloeren
Constructieve vloeren
Verhoogde vloeren
Vloerafwerkingen
Overig
Plafonds
Tegels
Lineair
Grill
Open en roosters
Naadloos
Eilanden en baffles
Plafondafwerkingen
Ophangsystemen
Overig
Klimaatplafonds
Verlichting
Binnenverlichting
Buitenverlichting
Sanitair
Kranen en douchesets
Wastafels
Douchewanden en douchebakken
Baden
Waterclosets
Accessoires
Overig
Projectinrichting
Stoelen
Banken
Tafels
Kasten
Balies
Vrijstaande wanden
Keukens
Accessoires
Overig
Cabines
Interieurbeplanting
Stoffering
Installaties
Verwarming, koeling en ventilatie
Elektrotechnische installaties
Schakelmateriaal
Domotica
Deurcommunicatie
Beveiliging
Liften
Onderhoudsinstallaties
Overig
Brandbeveiliging
Constructies
Draagconstructies
Funderingen en kelders
Overig
Brandbeveiliging
Buitenruimte
Bestratingen en verhardingen
Afwateringen
Terreinafscheidingen en geluidsschermen
Buitenmeubilair
Fietsparkeren
Terrassen
Terrasoverkappingen
Bruggen
Accessoires
Overig
Beplanting
Sport- en speeltoestellen
Software
Tekenen 2D
Modelleren 3D / BIM
Visualisatie / rendering
Parametrisch ontwerpen
Bouwfysica
Draagconstructie
Overig
Virtual Reality
Cloudoplossingen
Om direct naar je favorieten te kunnen gaan is het nodig om eerst in te loggen.
Nieuw
Populair
Favorieten
Toon alles
Prefab beurs - 7 t/m 9 oktober 2025
Brabanthallen 's-Hertogenbosch
Boekpresentatie en panelgesprek met Floor Milikowsky
Prins Hendrikkade 600, 1011 VX Amsterdam
Architects Table ’25: Lunch & Inspiratie in HAUT Amsterdam
ATAG LIVE – HAUT gebouw, Spaklerweg 10F, 1096 BA Amsterdam (tegenover metrostation Spaklerweg)
Inspiratiedag @ Sempergreen – Gevelgroen
Defensieweg 1, 3984 LR Odijk
Architectenweb symposium: klein maar fijn wonen?
Pakhuis de Zwijger
Architects Table ’25: Lunch & Inspiratie in HAUT Amsterdam
ATAG LIVE – HAUT gebouw, Spaklerweg 10F, 1096 BA Amsterdam (tegenover metrostation Spaklerweg)
Ontdek het seminarieprogramma van Architect@Work Amsterdam
De Kromhouthal, Gedempt Hamerkanaal 231, Amsterdam
DigiBouw 2025 – hét event voor digitalisering in de bouwsector
Expozaal van het Beatrixgebouw in Utrecht
Prefab beurs - 7 t/m 9 oktober 2025
Brabanthallen 's-Hertogenbosch
Boekpresentatie en panelgesprek met Floor Milikowsky
Prins Hendrikkade 600, 1011 VX Amsterdam
Om direct naar je favorieten te kunnen gaan is het nodig om eerst in te loggen.
Nieuw
Toon alles
Design
Duurzaamheid
Gevel
Infrastructuur
Interieur
Kantoren
Leisure
Openbare ruimte
Publieke gebouwen
Scholen
Transformatie en Renovatie
Woningbouw
Zorg
Om direct naar je favorieten te kunnen gaan is het nodig om eerst in te loggen.
Nieuw
Populair
Toon alles
9graden architectuur Amersfoort zoekt een bouwkundig modelleur
SVP zoekt bureauondersteuner
SVP zoekt medior stedenbouwkundige
Mulderblauw zoekt een architect
Mulderblauw zoekt een projectleider
WE zoekt senior architect
Junior Architect (NL/EN)
Architect
Studio Nauta zoekt projectleider
Junior Ontwerper
De Academie van Bouwkunst Amsterdam zoekt twee onderzoekers voor lectoraat
Site Practice zoekt medior architect met 4-6 jaar ervaring (Amsterdam)
Om direct naar je favorieten te kunnen gaan is het nodig om eerst in te loggen.
Producten
Situatie
Copyright: 9graden architectuur
9graden architectuur - Artemis
Copyright: Stijn Poelstra
Volume concept
Copyright: 9graden architectuur
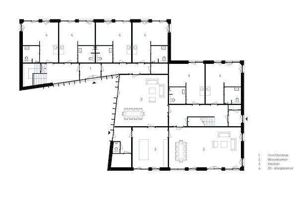
Plattegrond begane grond
Copyright: 9graden architectuur
9graden architectuur - Artemis
Copyright: Stijn Poelstra
9graden architectuur - Artemis
Copyright: Stijn Poelstra
9graden architectuur - Artemis
Copyright: Stijn Poelstra
9graden architectuur - Artemis
Copyright: Stijn Poelstra
9graden architectuur - Artemis
Copyright: Stijn Poelstra
9graden architectuur - Artemis
Copyright: Stijn Poelstra
9graden architectuur - Artemis
Copyright: Stijn Poelstra
9graden architectuur - Artemis
Copyright: Stijn Poelstra
9graden architectuur - Artemis
Copyright: Stijn Poelstra
9graden architectuur - Artemis
Copyright: Stijn Poelstra
9graden architectuur - Artemis
Copyright: Stijn Poelstra
9graden architectuur - Artemis
Copyright: Stijn Poelstra
Doorsnede
Copyright: 9graden architectuur
Producttags
AAN
UIT
Eigentijdse woonzorgboerderij
30 mei 2023
0
0
0
0
Woonzorgboerderij Artemis is één van de buitenlocaties van de Raphaëlstichting. De nieuwe woonzorgboerderij is schitterend gelegen, direct achter de dijk aan het Ijsselmeer vlakbij het dorp Warder. De locatie biedt zowel woonruimte als dagbesteding voor mensen met een zorgvraag.
De bestaande stolpboerderij op het erf voldeed niet meer aan de vragen van deze tijd. Daarnaast is het gebouw zodanig verzakt dat herstel niet meer mogelijk was. Om die reden is de boerderij gesloopt, waarna de nieuwbouw gerealiseerd kon worden. In opdracht van de Raphaëlstichting heeft 9graden architectuur het ontwerp gemaakt voor de nieuwbouw van het woonzorghuis. De nieuwbouw is uitgevoerd door Bouwbedrijf Tuin.
Wonen, werken, zorgen
Op het erf zijn een moestuin, een houtwerkplaats en vele boerderijdieren aanwezig. Overdag biedt de locatie dagbesteding aan in de vorm van werkzaamheden op de boerderij. Bewoners helpen met de dierenverzorging, het verbouwen van groenten en allerlei onderhoudswerkzaamheden. De 18 bewoners leven in twee van elkaar gescheiden woongroepen van 9 personen. Elke groep heeft een ruime woonkamer die verbonden is aan de gemeenschappelijke keuken. Hier worden dagelijks alle maaltijden voor de bewoners bereid.
Iedere bewoner heeft naast de gemeenschappelijke voorzieningen een privévertrek van ongeveer 25m² (20m² zit-slaapkamer, 5m² sanitair). De appartementen zijn voornamelijk naar buiten georiënteerd, richting het omliggende landschap, terwijl de woonkamers zich juist richten op het erf.
Vorm, massa, materiaal
Het ontwerp voor de nieuwbouw doet recht aan de vormgeving van de bestaande stolpboerderij. De nieuwbouw is een versmelting van de stolpboerderij- en de schuurtypologie. De twee gebouwvormen schuiven in elkaar, waardoor er een sculpturale massa ontstaat met een Z-vormige plattegrond. De architectonische massa krijgt een duidelijk hoofd- en bijgebouw die op een aangename wijze het plein omsluiten.
Eigentijdse vakwerk
Het ontwerp is geïnspireerd op oorspronkelijke elementen zoals het houten vakwerk. De bestaande elementen zijn vertaald naar een eigentijds ontwerp dat zich zorgvuldig voegt in de oorspronkelijke bebouwing aan de IJsselmeerdijk. Op de gevels is een gebintenstructuur zichtbaar van blank Accoya hout. De gebintvakken zijn gevuld met grote ramen en/of zwarte latten die aansluiten bij de zwarte keramische dakpan. Het dak en de gevel versmelten doordat de dakpan over de gevel doorloopt en stopt ter hoogte van het Accoya raamwerk.
In de kom van het gebouw is de Z-vormige relatie tot het plein versterkt door een uitsnede uit de massa. Er ontstaat een plein waar bewoners elkaar ontmoeten. Hier zijn blanke Accoya latten toegepast met grote verticale Accoya lamellen. De Accoya lamellen dienen als zonwering en accentueren het terugkerende verticale patroon.
Stel jezelf kort voor! Dan weet het betreffende bedrijf wie hun model gedownload heeft.
Wil je niet bij elke download jouw gegevens in hoeven voeren?
Klik dan hier om in te loggen
.
Heb je nog geen account?
Maak dan hier een gratis account aan
.
Voornaam
Achternaam
E-mailadres
Downloaden
Wanneer je modellen downloadt op Architectenweb.nl worden relevante gegevens van jou – zoals jouw naam en e-mailadres – met het betreffende bedrijf gedeeld. Meer hierover lees je in ons
privacybeleid
.
Locatie
Trefwoorden
woonzorgcentrum
zorg
woonzorgboerderij
warder
schuur
boerderij
stolpboerderij
9graden architectuur
9graden architectuur
Neem contact op
Projectdata
Staat van realisatie
Voltooid
Start ontwerpproces
2018
Start bouw
2020
Oplevering
2022
Ingebruikname
2022
Plaats
Warder
Kosten
3122
Meewerkende partijen
Architect
9 graden architectuur
Projectarchitect
Yaike Dunselman
Ontwerpteam
Yvette van Bakel, sander van ginkel, Wilbert Steenhuis
Opdrachtgever
Raphaëlstichting
Aannemer
Bouwbedrijf tuin
Constructeur
Ingenieursbureau Rijnders & De Groot
Adviseurs installaties E & W
Van Duin Installatiemanagement
Fotograaf
Stijn Poelstra
Leveranciers
Overig
Accoya
Neem contact op met
9graden architectuur
Je bent momenteel niet ingelogd. Hierdoor is het alleen mogelijk om meer informatie per e-mail op te vragen. Wil je liever gebeld worden of documentatie per post ontvangen?
Klik dan hier om in te loggen
.
Heb je nog geen account?
Maak dan hier een gratis account aan
.
Voornaam
Achternaam
E-mailadres
Opmerkingen
Bij iedere aanvraag worden relevante gegevens van jou gedeeld met het betreffende bedrijf. Meer hierover lees je in ons
privacybeleid
.
Ja, denk met me mee rond de
materialisering van mijn project
Meer projecten van 9graden architectuur
Renovatie Vrije School Vredehof
9graden architectuur
Nieuwbouw woonhuis Lichtenberg
9graden architectuur
Renovatie Geert Groote School, Amsterdam
9graden architectuur
Kindcentrum Rijnvliet
9graden architectuur
Nieuwbouw Woonzorghuis De Vijfsprong
9graden architectuur
Van Dam Huis
9graden architectuur
Woonhuis Culemborg
9graden architectuur
Agrarisch Zorgbedrijf Noorderhoeve
9graden architectuur
KDC Rozemarijn
9graden architectuur
Woonzorghuis Hermes Huis
9graden architectuur
Vrije School de Vuurvogel
9graden architectuur
Woon Werkproject Oosterdel
9graden architectuur
Renovatie Vrije School Vredehof
9graden architectuur
Nieuwbouw woonhuis Lichtenberg
9graden architectuur
Renovatie Geert Groote School, Amsterdam
9graden architectuur
Kindcentrum Rijnvliet
9graden architectuur
Nieuwbouw Woonzorghuis De Vijfsprong
9graden architectuur
Van Dam Huis
9graden architectuur
Woonhuis Culemborg
9graden architectuur
Agrarisch Zorgbedrijf Noorderhoeve
9graden architectuur
KDC Rozemarijn
9graden architectuur
Woonzorghuis Hermes Huis
9graden architectuur
Vrije School de Vuurvogel
9graden architectuur
Woon Werkproject Oosterdel
9graden architectuur
Toon alles
Andere Projecten
Hoofdkantoor We Enable Climbers
Intermontage B.V.
Renovatie met respect voor oorspronkelijke ontwerp
Caparol
Center Parcs De Vossemeren
Alprokon
SPOT belooft Lelystad bruisend centrumgebied
GROOSMAN
ITO Toren Amsterdam
Van Wylick
Waalstaete Arnhem
opZoom architecten
Natuurlijk modern bedrijfsgebouw
HUIBERS bureau voor architectuur
Overbos Arnhem
opZoom architecten
parkeerdak Air Offices
Van Wylick
Øbro-Hallen
VELUX Commercial Benelux B.V.
The Valley
Van Wylick
Wonderwoods
Van Wylick
Ga naar het projecten-overzicht
Voor een optimale gebruikservaring plaatst Architectenweb functionele cookies. Wat de verschillende cookies precies doen leggen we uit in een
overzicht
. Cookies van social media kun je optioneel
aanzetten
.
Akkoord
Instellingen
Annuleren
OK
Sluiten
Doorgaan
Inloggen
Maak een gratis persoonlijk account aan
Feedback
Feedback
Wij horen graag jouw feedback. Laat je reactie achter en eventueel jouw e-mail adres.
Reactie
Verstuur