Projecten
Producten
Bedrijven
Vacatures
Agenda
Awards
Podcasts
more_horiz
Videos
Magazine
Thema's
Favorieten
Profiel
Uitloggen
Abonneer je nu op onze nieuwsbrieven!
Abonneren
Nee, bedankt
Ja, denk met me mee rond de
materialisering van mijn project
Producten
Copyright: archimage
Copyright: archimage
Copyright: archimage
Copyright: archimage
Copyright: archimage
Copyright: archimage
Copyright: archimage
Copyright: archimage
Copyright: archimage
Copyright: archimage
Copyright: archimage
Copyright: archimage
Copyright: archimage
Copyright: archimage
Copyright: archimage
Copyright: archimage
Copyright: archimage
Copyright: negen graden architectuur
Copyright: negen graden architectuur
Copyright: negen graden architectuur
Copyright: negen graden architectuur
Copyright: negen graden architectuur
Copyright: negen graden architectuur
Producttags
AAN
UIT
Kindcentrum Rijnvliet
29 juni 2021
3
0
0
0
In de nieuwe eetbare woonwijk Rijnvliet in Utrecht heeft 9graden architectuur een energieneutraal kindcentrum ontworpen grenzend aan een voedselbos. Het kindcentrum huisvest een basisschool voor stichting Primair Onderwijs Utrecht, een kinderdagverblijf voor KMN Kind & Co en een openbare gymzaal.
Programma van Eisen
Een innovatief concept met als motto: ‘Rijnvliet, het avontuur begint’ was de basis voor dit gebouw, het eerste IKC van Utrecht. De nieuwbouw sluit naadloos aan op het Programma van Eisen dat is opgesteld door de gebruikers. Het avontuurlijke karakter van het IKC komt terug in de verbinding tussen binnen en buiten, de relatie met het voedselbos en de vele speel- en leerplekken zowel binnen als buiten de klas. Het gebouw stelt kinderen in staat om te ontdekken en te experimenteren, nieuwe dingen te doen en fouten te maken. Het hoort allemaal bij het onderwijskundige en pedagogische concept van het IKC. Het gebouw vertaalt dit in gangen waar kinderen slidings kunnen maken, drie ateliers om te experimenteren en leerpleinen om samen te kunnen werken.
Stedenbouwkundige inpassing
De schoolkavel bevindt zich als prominente beëindiging aan de zuidzijde van het stedenbouwkundige bouwblok. De noordzijde van het gebouw sluit aan op de aangrenzende bebouwing, terwijl de zuidzijde van het gebouw de oriëntatie van de archeologische opgravingen van de Limes, oude romeinse handelsroute, volgt. Het gebouw kenmerkt zich door ronde hoeken en warme materialisatie met genuanceerd zandkleurig metselwerk en houtaccenten. Hiermee sluit het in gebouw materialisering aan op de toekomstige aangrenzende bebouwing.
Architectonische compositie
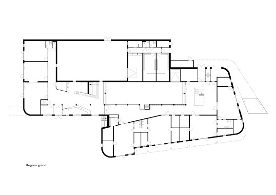
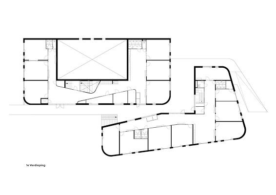
De basiscompositie van het gebouw bestaat uit twee in elkaar grijpende volumes met een hoogteaccent. Beide volumes worden op de eerste verdieping ontsloten door een meanderende openbare route die de wijk met het voedselbos verbindt. Door middel van de vele gevelopeningen langs deze route presenteert het gebouw zich als etalage aan de wijk. De hellingbaan aan de zuid-oostzijde van de kavel vormt de start van deze route. Een brede tribunetrap, vormt de verbinding vanaf het bovenbouwplein naar het dek met de route naar het voedselbos. In het verlengde van deze route wordt het kunstwerk “Dichterbij de boom” van Anouk Vogel gerealiseerd. Dit kunstwerk bestaat uit een boomkroonpad waarvan je straks voedsel direct uit de boomkronen kunt plukken. Hier wordt het concept ‘eetbare woonwijk’ voor de kinderen tastbaar.
Organisatie
In het hoge volume, grenzend aan het voedselbos, bevindt zich het onderwijsprogramma van het domein voor kinderen van zeven tot en met twaalf jaar. In het lagere volume bevindt zich het gebied voor jongere kinderen van vier tot en met zes jaar. Grenzend aan de route tussen beide volumes liggen de leerpleinen die uitnodigen tot buitenonderwijs en natuureducatie. Op de begane grond is het kinderdagverblijf gevestigd. In het hart van de school, waar de volumes elkaar snijden, liggen twee speellokalen als ruimtelijke verbinding tussen het kinderdagverblijf en de basisschool. Dit vormt de ontmoetingsplek voor de verschillende gebruikers. Door de open verbinding van de centrale entree met de speellokalen en de centrale trap ontstaat hier een ruimtelijke dynamiek. Vanuit de centrale hal zijn doorzichten naar de openbare gymzaal gerealiseerd.
Duurzaam en energieneutraal
Vanuit de gemeente Utrecht wordt enkel een Bijna Energieneutraal Gebouw bekostigd uit de normvergoeding voor scholenbouw. Om de ambitie van een volledig energieneutraal gebouw (ENG) te halen, heeft SPO Utrecht extra investeringen gedaan uit eigen middelen. Dit op basis van een onderliggende business case. Tijdens het ontwerpproces heeft het ontwerpteam een integraal pakket van bouwkundige en installatietechnische maatregelen samengesteld. De gebouwschil heeft een hoge isolatiewaarde gekregen en er is o.a. drievoudig glas toegepast in combinatie met gestuurde zonwering. Het installatieconcept bestaat onder meer uit een zeer energiezuinige warmtepompinstallatie die zijn warmte en koude onttrekt aan de bodem. Met dit pakket van maatregelen wordt voldaan aan de hoge comforteisen en is een gezond, energieneutraal, duurzaam en comfortabel kindcentrum gerealiseerd.
Het gebouw is op 21 juni feestelijk geopend door de Utrechtse wethouder Anke Klein.
Stel jezelf kort voor! Dan weet het betreffende bedrijf wie hun model gedownload heeft.
Wil je niet bij elke download jouw gegevens in hoeven voeren?
Klik dan hier om in te loggen
.
Heb je nog geen account?
Maak dan hier een gratis account aan
.
Voornaam
Achternaam
E-mailadres
Downloaden
Wanneer je modellen downloadt op Architectenweb.nl worden relevante gegevens van jou – zoals jouw naam en e-mailadres – met het betreffende bedrijf gedeeld. Meer hierover lees je in ons
privacybeleid
.
Locatie
Trefwoorden
energieneutraal
eng
kindcentrum
kinderdagverblijf
hout
metselwerk
gymzaal
basisschool
brug
9graden architectuur
Neem contact op
Projectdata
Staat van realisatie
Voltooid
Start ontwerpproces
2017
Start bouw
2020
Oplevering
2021
Ingebruikname
2021
Plaats
Utrecht
Bruto m
2
3345
Netto m
2
3050
m
3
12744
Meewerkende partijen
Architect
9graden architectuur
Interieurarchitect
9graden architectuur
Projectarchitect
Yaike Dunselman, Wilbert Steenhuis
Ontwerpteam
Yaike Dunselman, Wilbert Steenhuis, Raymond van Rossum, Sander van Ginkel, Yvette van Bakel
Opdrachtgever
SPO Utrecht
Aannemer
Aannemersbedrijf Kormelink B.V
Constructeur
H4D
Adviseurs installaties E & W
Merosch
Fotograaf
Meike Hansen Archimage
Projectmanagement
ICS Adviseurs
Adviseur brandveiligheid
Peutz
Beeldend kunstenaar
Anouk Vogel
Leveranciers
Overig
Platowood
,
Reynaers Aluminium Nederland
,
Forbo Flooring
, Meike Hansen Archimage
Neem contact op met
9graden architectuur
Je bent momenteel niet ingelogd. Hierdoor is het alleen mogelijk om meer informatie per e-mail op te vragen. Wil je liever gebeld worden of documentatie per post ontvangen?
Klik dan hier om in te loggen
.
Heb je nog geen account?
Maak dan hier een gratis account aan
.
Voornaam
Achternaam
E-mailadres
Opmerkingen
Bij iedere aanvraag worden relevante gegevens van jou gedeeld met het betreffende bedrijf. Meer hierover lees je in ons
privacybeleid
.
Ja, denk met me mee rond de
materialisering van mijn project
Meer projecten van 9graden architectuur
Renovatie Vrije School Vredehof
9graden architectuur
Eigentijdse woonzorgboerderij
9graden architectuur
Nieuwbouw woonhuis Lichtenberg
9graden architectuur
Renovatie Geert Groote School, Amsterdam
9graden architectuur
Nieuwbouw Woonzorghuis De Vijfsprong
9graden architectuur
Van Dam Huis
9graden architectuur
Woonhuis Culemborg
9graden architectuur
Agrarisch Zorgbedrijf Noorderhoeve
9graden architectuur
KDC Rozemarijn
9graden architectuur
Woonzorghuis Hermes Huis
9graden architectuur
Renovatie Vrije School Vredehof
9graden architectuur
Eigentijdse woonzorgboerderij
9graden architectuur
Nieuwbouw woonhuis Lichtenberg
9graden architectuur
Renovatie Geert Groote School, Amsterdam
9graden architectuur
Nieuwbouw Woonzorghuis De Vijfsprong
9graden architectuur
Van Dam Huis
9graden architectuur
Woonhuis Culemborg
9graden architectuur
Agrarisch Zorgbedrijf Noorderhoeve
9graden architectuur
KDC Rozemarijn
9graden architectuur
Woonzorghuis Hermes Huis
9graden architectuur
Toon alles
Andere Projecten
Kooi stadion - SC Cambuur
Houthandel van Dam
Veilige daktoegang voor Aan de Molenwerf
Gorter Luiken BV
Veilige daktoegang voor nieuw gemeentehuis
Gorter Luiken BV
Ziekenhuiscomplex Rijeka in Susak, Kroatië
ULMA Architectural Solutions
Luxe Vingui Noir houten uitbouw
Houthandel van Dam
BMV Heerlerbaan - Heerlen
Houthandel van Dam
Watervilla's in de haven van Kortenhoef
Houthandel van Dam
Beatrixhof
Houthandel van Dam
Madonna Antwerpen - Akoestiek als smaakmaker
OWA Benelux - Akoestiek & Design
Renovatie zorginstelling dementie en alzheimer
Storax
Ontwikkeling van Circulair Energielandschap
Buro De Haan
ROCKWOOL LM Klima: efficiënter isoleren bij Xplore
ROCKWOOL B.V.
Ga naar het projecten-overzicht
Voor een optimale gebruikservaring plaatst Architectenweb functionele cookies. Wat de verschillende cookies precies doen leggen we uit in een
overzicht
. Cookies van social media kun je optioneel
aanzetten
.
Akkoord
Instellingen
Annuleren
OK
Sluiten
Doorgaan
Inloggen
Maak een gratis persoonlijk account aan
Feedback
Feedback
Wij horen graag jouw feedback. Laat je reactie achter en eventueel jouw e-mail adres.
Reactie
Verstuur