Abonneer je nu op onze nieuwsbrieven!
Abonneren
Nee, bedankt
Ja, denk met me mee rond de
materialisering van mijn project
Producten
Voorgevel
Copyright: archimages.de
Entree begane grond
Copyright: archimages.de
Hal 1e verdieping
Copyright: archimages.de
Hal 1e verdieping
Copyright: archimages.de
Trap naar 2e verdieping
Copyright: archimages.de
Voorgevel
Copyright: archimages.de
Zijgevel
Copyright: archimages.de
Detail gevel
Copyright: archimages.de
Achtergevel
Copyright: archimages.de
Situatie
Copyright: negen graden architectuur
Plattegrond Begane grond
Copyright: negen graden architectuur
Plattegrond 1e verdieping
Copyright: negen graden architectuur
Plattegrond 2e verdieping
Copyright: negen graden architectuur
Plattegrond 3e verdieping
Copyright: negen graden architectuur
ProducttagsAANUIT

Van Dam Huis

9 juli 2019
De aankoop van een kavel op het Prinsenbolwerk in Haarlem bracht een langgekoesterde wens van de opdrachtgever binnen bereik: een markant gebouw met eigen gezicht waar de Antroposofische Vereniging en de Antroposofische gezondheidszorg hun krachten konden bundelen. Ook het interieur moest de gezamenlijke visie weerspiegelen. Gevraagd werd een beschuttend bouwwerk waar alle onderdelen een heldere, aangename en gezondheid-bevorderende eenheid zouden vormen – terwijl elke ruimte ook moest voldoen voor specifiek gebruik. 

Voor bouwen op deze zichtlocatie golden speciale eisen. Al in 1820 is het oorspronkelijk stenen bolwerk door J.D. Zocher heringericht tot park. De schaarse bebouwing telt uitsluitend statige ‘villa’s.’ De nieuwbouw is hierop afgestemd: de hoofdvorm is aan de drukke stadskant duidelijk verwant met zijn negentiende-eeuwse buurpand: hoge plint, rechthoekige vorm, zware dakpartij. Maar aan de achterkant, de parkzijde, waaiert het pand uit in rondere vormen, passend in het groen.

Speciale bouwmaterialen geven het gebouw zijn eigenheid, en herkenbare eigentijdsheid. Zo is gekozen voor baksteen en pannen van hetzelfde materiaal, zodanig toegepast dat alle overgangen (binnen-buiten, muur-dak, plint-baksteen) worden verzacht.

Licht en ruimte 
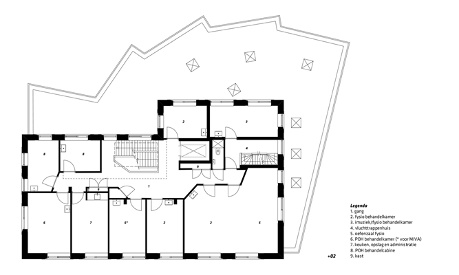
Het programma omvatte circa 40 afsluitbare behandelruimten, wat binnen het gegeven volume vlug hokkerigheid geeft. De opdrachtgever wenste echter juist transparantie en het ‘ervaren van het gebouw als eenheid’. Gekozen is daarom voor een open structuur die direct bij binnenkomst ervaarbaar is. In de ruime entreehal, geflankeerd door publieksfuncties, dient een centrale trap als anker. Beneden is deze trap veeleer een trapeziumvormig meubelstuk: twee zijden dienen als respectievelijk zitbank en uitstalkast. De eigenlijke trap bevindt zich aan de zijde die vrijwel haaks op de ingang staat. Dat maakt de hal méér dan een doorgangsruimte - namelijk rustpunt, ontvangsthal.

Ook boven is de trap de spil van het gebouw die alles tot een eenheid smeed. Hij is op alle etages omgeven door open ruimten met ook balies en wachtruimten. Alle behandelkamers liggen aan korte gangen die in verschillende hoekverdraaiiingen uitkomen op die centrale trap.

Rond de trap zijn steeds lange zichtlijnen over meerdere etages. Het hele interieur is daardoor uitgesproken licht. De materialen versterken dit: uitsluitend wit gestucte wanden, houten plafonds, linoleum vloeren, stroken ledverlichting (altijd indirect).

Functionele indeling
Bij de verticale functieverdeling waren ‘de hoeveelheid geluid’ en de ‘gevraagde intimiteit’ richtinggevend. Op de begane grond is het meeste rumoer: een winkel, een informatiecentrum, een theaterzaal, een consultatiebureau. Op éénhoog bevinden zich vier huisartsenpraktijken. Daarboven was nog meer beschutting gewenst, voor fysiotherapie en verwante behandelruimten. Onder het dak – waarbij de plafondhoogte de 3.80 meter haalt, naast schuine dakgedeelten die extra beschutting geven - huizen psychiatrie en gesprekstherapie.

Groenverklaring
Op duurzaamheid en energiebesparing is hoog ingezet. Dit is het eerste gezondheidscentrum dat een ministeriele Groenverklaring kreeg. De binnentemperatuur wordt geregeld met een warmtepomp en (per vertrek gespecificeerde) betonkernactivering. Er zijn zonnepanelen, een CO2 gestuurd ventilatiesysteem (Climarad), doorloopboilers en led-licht. Uitsluitend natuurlijke materialen zijn toegepast en alle hout (kozijnen, vloeren, deuren, meubilair) heeft een FSC keurmerk.

Stel jezelf kort voor! Dan weet het betreffende bedrijf wie hun model gedownload heeft.
Wil je niet bij elke download jouw gegevens in hoeven voeren?
Klik dan hier om in te loggen.

Heb je nog geen account? Maak dan hier een gratis account aan.
Voornaam
Achternaam
E-mailadres
Downloaden
Wanneer je modellen downloadt op Architectenweb.nl worden relevante gegevens van jou – zoals jouw naam en e-mailadres – met het betreffende bedrijf gedeeld. Meer hierover lees je in ons privacybeleid.

Locatie

Trefwoorden

gezondheidscentrum

Neem contact op met 9graden architectuur

Je bent momenteel niet ingelogd. Hierdoor is het alleen mogelijk om meer informatie per e-mail op te vragen. Wil je liever gebeld worden of documentatie per post ontvangen? Klik dan hier om in te loggen.
Heb je nog geen account? Maak dan hier een gratis account aan.
Voornaam
Achternaam
E-mailadres
Opmerkingen
Bij iedere aanvraag worden relevante gegevens van jou gedeeld met het betreffende bedrijf. Meer hierover lees je in ons privacybeleid.
Ja, denk met me mee rond de
materialisering van mijn project

Meer projecten van 9graden architectuur

ATAG Nederland
KUBUS | Specialist in Archicad
SAPA
Reynaers Aluminium Nederland
Jansen
SAB-profiel bv
Aliplast Aluminium Systems
Kingspan Light & Air
ALUCOBOND®
Caparol
Tarkett BV
Kawneer
Grohe Nederland B.V.
Malaysian Timber Council
OCS | Office Cabling Systems
Swisspearl Nederland
Forster Nederland N.V.
VELUX Commercial Benelux B.V.
Sempergreen
Houthandel van Dam
Aluprof Nederland BV
QbiQ Wall Systems
Forbo Flooring
Schüco Nederland
Cedral
Sto Isoned bv
Triflex bv
Gorter Luiken BV
wienerberger
DUCO Ventilation & Sun Control
BEWI IsoBouw
ROCKWOOL B.V.
Mview+
Rockfon (ROCKWOOL B.V.)
Gira Nederland B.V.
Kingspan Geïsoleerde Panelen
GEZE Benelux  B.V.
Renson
Metaglas Groep
ABB | Busch-Jaeger
Jung | Hateha B.V.
Knauf B.V.
Saint-Gobain Glass Benelux
Faay Vianen B.V.
objectflor
Boon Edam Nederland B.V.
Hunter Douglas Architectural
VOLA Nederland BV
Forbo Eurocol Nederland B.V.
EQUITONE gevelpanelen
Holonite B.V.
Tata Steel Colorcoat®
Architectenweb
Over ons
Contact

© 2002 - 2026 Architectenweb BV / Voorwaarden / Privacy / Disclaimer / Sitemap
Annuleren
OK
Sluiten
Doorgaan
Inloggen
Maak een gratis persoonlijk account aan