Projecten
Producten
Bedrijven
Vacatures
Agenda
Awards
Podcasts
more_horiz
Videos
Magazine
Thema's
Favorieten
Profiel
Uitloggen
Abonneer je nu op onze nieuwsbrieven!
Abonneren
Nee, bedankt
Ja, denk met me mee rond de
materialisering van mijn project
Producten
Copyright: Petra Appelhof
Copyright: opZoom architecten
Copyright: Klaas Tuin
Copyright: Klaas Tuin
Copyright: Klaas Tuin
Copyright: opZoom architecten
Copyright: opZoom architecten
Copyright: opZoom architecten
Copyright: Petra Appelhof
Copyright: opZoom architecten
Copyright: Klaas Tuin
Copyright: opZoom architecten
Copyright: opZoom architecten
Copyright: Klaas Tuin
Producttags
AAN
UIT
Romvlvs & Remvs
18 januari 2021
0
0
0
0
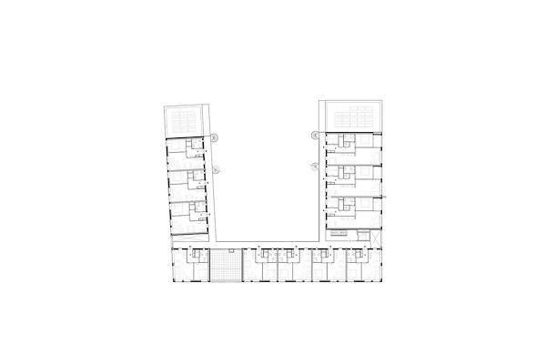
Nieuwbouw van 130 NOM sociale huurappartementen in twee woongebouwen (
Romvlvs en Remvs
) aan de Vleutensebaan, Leidsche Maan, Utrecht. In opdracht van Veluwezoom Verkerk en Portaal.
Aan de Vleutensebaan, in het deelgebied Leidsche Maan in Leidsche Rijn heeft opZoom twee stedelijke bouwblokken ontworpen. De 130 appartementen zijn specifiek ontworpen als Nul Op de Meter (NOM) woningen. Het volume is zo opgebouwd dat het aftrapt aan de zuidzijde. Op deze wijze is het mogelijk om op een woongebouw van zes bouwlagen voldoende PV-panelen te plaatsen.
Naast de gemiddeld negen panelen per appartement wordt er via het stadsverwarmingsnet duurzaam opgewekte warmte geleverd. Samen met een optimaal geïsoleerde schil vormt dit het NOM energieconcept van de woningen.
De structuur van het gebouw is zo opgezet dat er binnen het ontwerp nog kon worden geschoven in de mix van kleine en middelgrote appartementen. Dit heeft ons in staat gesteld om de door Portaal gewenste mix gedurende het ontwerpproces te optimaliseren.
De noordelijk gevels krijgen een opbouw die door hun asymmetrie reageren op de naastgelegen blokken en de golvende lijnen van de stadsas. De verhoogde plint met de verdiepte entree van het westelijk blok en de grote opening in het oostelijk blok doen mee in het creëren van dit gewenste effect.
De metselwerk gevels zijn helder opgebouwd met een eenvoudig raster, maar kennen daarbinnen veel variatie op verschillende schaalniveaus. Een hoge opbouw van metselwerk vormt de beëindiging van beide gebouwen, waarachter de zonnepanelen zijn opgenomen. De benodigde ventilatieopeningen in deze bovenrand vormen een letterlijke verwijzing naar de architectuur van de Amsterdamse school die als referentiebeeld vanuit de architectonische randvoorwaarden is meegegeven. In de zijstraten wordt de overgang naar de achterliggende laagbouw gemaakt door een verlaging van het gebouwvolume. De detaillering van de gevels met afwisselend hekwerken en glazen schermen zorgt voor de gewenste horizontaliteit en variatie. Deze architectuur loopt deels door aan de binnenzijde waar groene hoven voorzien in een collectieve en beschutte buitenruimte.
Stel jezelf kort voor! Dan weet het betreffende bedrijf wie hun model gedownload heeft.
Wil je niet bij elke download jouw gegevens in hoeven voeren?
Klik dan hier om in te loggen
.
Heb je nog geen account?
Maak dan hier een gratis account aan
.
Voornaam
Achternaam
E-mailadres
Downloaden
Wanneer je modellen downloadt op Architectenweb.nl worden relevante gegevens van jou – zoals jouw naam en e-mailadres – met het betreffende bedrijf gedeeld. Meer hierover lees je in ons
privacybeleid
.
Locatie
Trefwoorden
opzoom architecten bv
leidsche maan
nul op de meter
utrecht
duurzaam
woongebouw
natuurinclusief
nom
huurappartementen
opZoom architecten
Neem contact op
Projectdata
Staat van realisatie
Niet van toepassing
Oplevering
2020
Plaats
Utrecht
Meewerkende partijen
Architect
opZoom architecten
Projectarchitect
Johan Blokland, Bastiaan Buurman
Ontwerpteam
Klaas Tuin, Marcel Plomp, Martijn Kempkens, Hein de Werd
Opdrachtgever
Veluwezoom Verkerk, Portaal
Aannemer
Veluwezoom Verkerk
Fotograaf
Petra Appelhof, Klaas Tuin
Neem contact op met
opZoom architecten
Je bent momenteel niet ingelogd. Hierdoor is het alleen mogelijk om meer informatie per e-mail op te vragen. Wil je liever gebeld worden of documentatie per post ontvangen?
Klik dan hier om in te loggen
.
Heb je nog geen account?
Maak dan hier een gratis account aan
.
Voornaam
Achternaam
E-mailadres
Opmerkingen
Bij iedere aanvraag worden relevante gegevens van jou gedeeld met het betreffende bedrijf. Meer hierover lees je in ons
privacybeleid
.
Ja, denk met me mee rond de
materialisering van mijn project
Meer projecten van opZoom architecten
Overbos Arnhem
opZoom architecten
Waalstaete Arnhem
opZoom architecten
De Grote Zwaan, Nijmegen
opZoom architecten
Villa van Hout
opZoom architecten
Leven in Lankforst nieuwbouw
opZoom architecten
(Ver)nieuwbouw Ridderstraat Culemborg
opZoom architecten
Villa Klingelbeek in Arnhem
opZoom architecten
Buurthuis De Leemhof Gendt
opZoom architecten
De Nieuwe Buut Nijmegen
opZoom architecten
Folly de Ooggetuige
opZoom architecten
Heilaarstaete Princenhage Breda
opZoom architecten
Leven in Lankforst Nijmegen
opZoom architecten
Kopgebouw Schuytgraaf
opZoom architecten
Bongerd en Dijcke, Waalsprong
opZoom architecten
De Kijkers, Arnhem
opZoom architecten
Interieurontwerp Wijkcentrum Bakermat, Arnhem
opZoom architecten
Supermarkt stationsgebied Nunspeet
opZoom architecten
Schuytse Schans Arnhem
opZoom architecten
Lingedijk Tiel
opZoom architecten
Heidepark Nijmegen
opZoom architecten
Buitengewoon(d)
opZoom architecten
Amaliahof Culemborg
opZoom architecten
Diezerstraat Zwolle
opZoom architecten
Broekgraaf Leerdam
opZoom architecten
Soetegaerde – Woenderskamp
opZoom architecten
Zelfstandig wonen in Torckdael, Wageningen
opZoom architecten
Bibliotheek Oost-Achterhoek Lichtenvoorde
opZoom architecten
Verduurzaming portiekwoningen Huissen
opZoom architecten
Keizershoeve Ewijk
opZoom architecten
Binnenstedelijk ensemble TransZoom
opZoom architecten
Wonen op de Set
opZoom architecten
Nieuwe Kerk - Herwaardering van een Rijksmonument
opZoom architecten
Circulair metselwerk Nieuwmarkt Lichtenvoorde
opZoom architecten
De Stadstuin
opZoom architecten
Sloop en herontwikkeling aan de Hofstraat
opZoom architecten
Verduurzaming en revitalisatie van Kleine Oord
opZoom architecten
Pius Woerden
opZoom architecten
Bunschoterhof Ede
opZoom architecten
Saronix en Lookwartier
opZoom architecten
Zorgappartementen De Oogst en De Elst
opZoom architecten
Nieuw Erf
opZoom architecten
Woonpark Veenderhorst
opZoom architecten
De Plantsoensingel
opZoom architecten
Wellness Villa de Paddestoel
opZoom architecten
Witte woningen
opZoom architecten
De Boulevard
opZoom architecten
Zuiderlicht College
opZoom architecten
Nieuwmarkt Zuid
opZoom architecten
Bouw van Jou
opZoom architecten
De Reünie
opZoom architecten
Doorstroomvoorziening
opZoom architecten
ZZG Herstelcentrum Dekkerswald
opZoom architecten
Villa Feline
opZoom architecten
Kapel Onder De Bogen
opZoom architecten
Kulturhus Sonnenburgh
opZoom architecten
Overbos Arnhem
opZoom architecten
Waalstaete Arnhem
opZoom architecten
De Grote Zwaan, Nijmegen
opZoom architecten
Villa van Hout
opZoom architecten
Leven in Lankforst nieuwbouw
opZoom architecten
(Ver)nieuwbouw Ridderstraat Culemborg
opZoom architecten
Villa Klingelbeek in Arnhem
opZoom architecten
Buurthuis De Leemhof Gendt
opZoom architecten
De Nieuwe Buut Nijmegen
opZoom architecten
Folly de Ooggetuige
opZoom architecten
Heilaarstaete Princenhage Breda
opZoom architecten
Leven in Lankforst Nijmegen
opZoom architecten
Kopgebouw Schuytgraaf
opZoom architecten
Bongerd en Dijcke, Waalsprong
opZoom architecten
De Kijkers, Arnhem
opZoom architecten
Interieurontwerp Wijkcentrum Bakermat, Arnhem
opZoom architecten
Supermarkt stationsgebied Nunspeet
opZoom architecten
Schuytse Schans Arnhem
opZoom architecten
Lingedijk Tiel
opZoom architecten
Heidepark Nijmegen
opZoom architecten
Buitengewoon(d)
opZoom architecten
Amaliahof Culemborg
opZoom architecten
Diezerstraat Zwolle
opZoom architecten
Broekgraaf Leerdam
opZoom architecten
Soetegaerde – Woenderskamp
opZoom architecten
Zelfstandig wonen in Torckdael, Wageningen
opZoom architecten
Bibliotheek Oost-Achterhoek Lichtenvoorde
opZoom architecten
Verduurzaming portiekwoningen Huissen
opZoom architecten
Keizershoeve Ewijk
opZoom architecten
Binnenstedelijk ensemble TransZoom
opZoom architecten
Wonen op de Set
opZoom architecten
Nieuwe Kerk - Herwaardering van een Rijksmonument
opZoom architecten
Circulair metselwerk Nieuwmarkt Lichtenvoorde
opZoom architecten
De Stadstuin
opZoom architecten
Sloop en herontwikkeling aan de Hofstraat
opZoom architecten
Verduurzaming en revitalisatie van Kleine Oord
opZoom architecten
Pius Woerden
opZoom architecten
Bunschoterhof Ede
opZoom architecten
Saronix en Lookwartier
opZoom architecten
Zorgappartementen De Oogst en De Elst
opZoom architecten
Nieuw Erf
opZoom architecten
Woonpark Veenderhorst
opZoom architecten
De Plantsoensingel
opZoom architecten
Wellness Villa de Paddestoel
opZoom architecten
Witte woningen
opZoom architecten
De Boulevard
opZoom architecten
Zuiderlicht College
opZoom architecten
Nieuwmarkt Zuid
opZoom architecten
Bouw van Jou
opZoom architecten
De Reünie
opZoom architecten
Doorstroomvoorziening
opZoom architecten
ZZG Herstelcentrum Dekkerswald
opZoom architecten
Villa Feline
opZoom architecten
Kapel Onder De Bogen
opZoom architecten
Kulturhus Sonnenburgh
opZoom architecten
Toon alles
Andere Projecten
Nieuwbouw hal BPA Blueprint Automation
Houthandel van Dam
Appartement Tilburg
Houthandel van Dam
Luxe appartementen de Haaf
Houthandel van Dam
New Brooklyn – Almere Poort
VBI
Obèche Noir toegepast op Appartmenten Maassluis
Houthandel van Dam
Renovatie kantoorpand Houthandel Van Dam
Houthandel van Dam
Huis van de Gemeente Voorst
Kawneer
Rumah Kechik, Malacca
Malaysian Timber Council
Plus Ultra III - EUROLACKE Poedercoatings
EUROLACKE
Energiezuinig gebouwd IKC 's-Heer Arendskerke
wienerberger
Duurzame houten gevelbekleding woning in Sappemeer
Foreco Houtproducten
BDO kantoor Breda
ULMA Architectural Solutions
Ga naar het projecten-overzicht
Voor een optimale gebruikservaring plaatst Architectenweb functionele cookies. Wat de verschillende cookies precies doen leggen we uit in een
overzicht
. Cookies van social media kun je optioneel
aanzetten
.
Akkoord
Instellingen
Annuleren
OK
Sluiten
Doorgaan
Inloggen
Maak een gratis persoonlijk account aan
Feedback
Feedback
Wij horen graag jouw feedback. Laat je reactie achter en eventueel jouw e-mail adres.
Reactie
Verstuur