Abonneer je nu op onze nieuwsbrieven!
Abonneren
Nee, bedankt
Ja, denk met me mee rond de
materialisering van mijn project
Producten
Copyright: Klaas Tuin
Copyright: Klaas Tuin
Copyright: Klaas Tuin
Copyright: Klaas Tuin
Copyright: Klaas Tuin
Copyright: Klaas Tuin
Copyright: Klaas Tuin
Copyright: opZoom architecten bv
Copyright: opZoom architecten bv
Copyright: opZoom architecten bv
ProducttagsAANUIT

Pius Woerden

14 november 2019
30 betaalbare huurappartementen rond een ruim binnenhof met een jaren ’50 Bossche School-school, bij het historische centrum van Woerden.

Stedenbouwkundige inpassing

De 30 appartementen zijn in twee haaks op elkaar staande bouwblokken ondergebracht en vormen samen met de oude PiusX school en gymzaal een ‘gesloten’ bouwblok in drie lagen met groen binnenhof. De woningen liggen vol in het groen. De appartementen op de begane grond hebben alle hun entree via een kleine voortuin aan de straat of aan de openbare parkzone en hun ruime achtertuinen grenzen aan het meer besloten groene binnentuin met twee monumentale bomen.

Daar waar de twee blokken elkaar ontmoeten ligt, extra geaccentueerd, de hoofdentree met lift en trappenhuis voor de appartementen op de verdieping. De galerijen liggen op noord aan de straat en aan de oostzijde ter plaatse van het binnenhof. Deze appartementen hebben hun balkons of op zuid aan het binnenhof of in de avondzon aan de parkzone. De diepte van de nieuwbouw hebben we zo kunnen optimaliseren, dat de school nog prominenter en vrijer aan de doorgaande Rembrandtlaan komt te staan.

Architectonische uitwerking
Pius vormt, in haar verscheidenheid, een architectonische eenheid met de jaren ‘50 Pius X school en vormt de schakel tussen de school en de recent opgeleverde nieuwbouw. Het fris-stoere project is met haar horizontale doorlopende betonnen belijning, in drie lagen zonder kap, een abstracte ‘backdrop’ voor de oude school. De gevelvlakken tussen het beton zijn of verdiepingshoog gevuld met metselwerkvlakken en -penanten, kozijnen, betonnen kolommen, opengewerkte staalplaat, of vormen de galerijen en balkons met stalen hekken die op een eigentijdse manier knipogen naar de jaren ’50. ‘x’-jes en ‘+’-jes, een verwijzing naar de X in Pius X, komen in verschillende subtiele gedaanten in de details van het metselwerk, de hekken en frames terug. De horizontale belijning van de galerijen en balkons loopt helemaal rondom door en maken de gevels alzijdig, zonder voor- of achterkant. De kopgevels zijn steeds verbijzonderd en opengewerkt met kozijnen, balkons en de koppen van de galerijen. De driedelingen in deze gevels verwijzen naar de driedelingen in de gevel van de oude school.

De materialisering en detaillering is rijk in eenduidigheid en kwaliteit. Het metselwerk is bronskleurig gemêleerd, een vormbak in halfsteens verband, passend bij de oude school en tevens een overgang naar het metselwerk van de recente nieuwbouw. De kozijnen, deuren, draaiende delen, hekken, schermen bij dit metselwerk zijn geelbruin van kleur. Het metselwerk van de binnengevels van de galerijen is cremewit van kleur, fris en licht, met een bijpassende lichtbeige kozijnen, ramen en deuren. Een zinkgrijze daklijst in staal of aluminium maakt de gevels helemaal af.

Functionaliteit
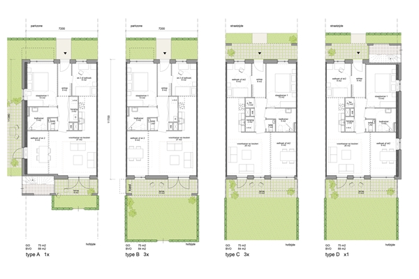
In ons ontwerp hebben we het woontechnisch en technisch programma van GroenWest geïmplementeerd. Echter, elke locatie biedt weer zijn eigen kansen en mogelijkheden. Voortbordurend op het feit dat het plan een wisseling van de woningentrees aan de parkzone in zich had, zijn we tot één helder en functioneel plattegrondconcept gekomen, waarbinnen verschillende woonopties kunnen worden gerealiseerd. Binnen een beukmaat van 7m20 kan men ‘wonen over de breedte’ met de woon- en eetkamer aan de tuin- of balkonzijde. Of men kan bijna binnen dezelfde setting gaan ‘wonen over de diepte’, of over de diepte met een ‘plus’ (inclusief entreehal) met de woonkamer aan de tuin of balkon en de eethoek aan de straat of galerij. Zo kan men vanuit het woon- en eetgedeelte uitkijken op de wat drukkere straat en parkzone, èn het rustiger binnenhof. Op de hoek van de Jan van Goyenstraat en de parkzone hebben we daarnaast nog een bijzondere hoekwoning ontworpen, waarbij men, met slechts een paar meters meer, ‘overhoeks’ kan wonen. 

Stel jezelf kort voor! Dan weet het betreffende bedrijf wie hun model gedownload heeft.
Wil je niet bij elke download jouw gegevens in hoeven voeren?
Klik dan hier om in te loggen.

Heb je nog geen account? Maak dan hier een gratis account aan.
Voornaam
Achternaam
E-mailadres
Downloaden
Wanneer je modellen downloadt op Architectenweb.nl worden relevante gegevens van jou – zoals jouw naam en e-mailadres – met het betreffende bedrijf gedeeld. Meer hierover lees je in ons privacybeleid.

Locatie

Neem contact op met opZoom architecten

Je bent momenteel niet ingelogd. Hierdoor is het alleen mogelijk om meer informatie per e-mail op te vragen. Wil je liever gebeld worden of documentatie per post ontvangen? Klik dan hier om in te loggen.
Heb je nog geen account? Maak dan hier een gratis account aan.
Voornaam
Achternaam
E-mailadres
Opmerkingen
Bij iedere aanvraag worden relevante gegevens van jou gedeeld met het betreffende bedrijf. Meer hierover lees je in ons privacybeleid.
Ja, denk met me mee rond de
materialisering van mijn project

Meer projecten van opZoom architecten

opZoom architecten
opZoom architecten
opZoom architecten
opZoom architecten
opZoom architecten
opZoom architecten
opZoom architecten
opZoom architecten
opZoom architecten
opZoom architecten
opZoom architecten
opZoom architecten
opZoom architecten
opZoom architecten
opZoom architecten
opZoom architecten
opZoom architecten
opZoom architecten
opZoom architecten
opZoom architecten
opZoom architecten
opZoom architecten
opZoom architecten
opZoom architecten
opZoom architecten
opZoom architecten
opZoom architecten
opZoom architecten
opZoom architecten
opZoom architecten
opZoom architecten
opZoom architecten
opZoom architecten
opZoom architecten
Toon alles
KUBUS | Specialist in Archicad
SAPA
Reynaers Aluminium Nederland
Jansen
SAB-profiel bv
Aliplast Aluminium Systems
Kingspan Light & Air
ALUCOBOND®
Caparol
Tarkett BV
Kawneer
Grohe Nederland B.V.
Malaysian Timber Council
OCS | Office Cabling Systems
Swisspearl Nederland
Forster Nederland N.V.
VELUX Commercial Benelux B.V.
Sempergreen
Houthandel van Dam
Aluprof Nederland BV
QbiQ Wall Systems
Forbo Flooring
Schüco Nederland
Cedral
Sto Isoned bv
Triflex bv
Gorter Luiken BV
wienerberger
DUCO Ventilation & Sun Control
BEWI IsoBouw
ROCKWOOL B.V.
Mview+
Rockfon (ROCKWOOL B.V.)
Gira Nederland B.V.
Kingspan Geïsoleerde Panelen
GEZE Benelux  B.V.
Renson
Metaglas Groep
ABB | Busch-Jaeger
Jung | Hateha B.V.
Knauf B.V.
Saint-Gobain Glass Benelux
Faay Vianen B.V.
objectflor
Boon Edam Nederland B.V.
Hunter Douglas Architectural
VOLA Nederland BV
Forbo Eurocol Nederland B.V.
EQUITONE gevelpanelen
Holonite B.V.
Kronospan
Tata Steel Colorcoat®
Architectenweb
Over ons
Contact

© 2002 - 2026 Architectenweb BV / Voorwaarden / Privacy / Disclaimer / Sitemap
Annuleren
OK
Sluiten
Doorgaan
Inloggen
Maak een gratis persoonlijk account aan