Projecten
Producten
Bedrijven
Vacatures
Agenda
Awards
Podcasts
more_horiz
Videos
Magazine
Favorieten
Profiel
Uitloggen
Abonneer je nu op onze nieuwsbrieven!
Abonneren
Nee, bedankt
Ja, denk met me mee rond de
materialisering van mijn project
Producten
Producttags
AAN
UIT
Oosterhesselenstraat, Morgenstond Den Haag Zuidwest
6 januari 2016
0
0
0
0
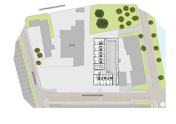
Het gebied tussen de Dedemsvaartweg en de Hoogeveenlaan in Den Haag Zuid-West is ingrijpend geherstructureerd. De oorspronkelijke bebouwing van 4-laagse portiekflats met slecht onderhouden binnenterreinen is vervangen door een gedifferentieerder aanbod van grote appartementen en laagbouwwoningen. Het ontwerp voor de appartementen aan de Oosterhesselenstraat vormt het sluitstuk van deze herstructurering.
De locatie kenmerkt zich door een vrije situering van gebouwen omringd door veel groen. Samen met het KPN-gebouw, dat met de achterzijde aan het gebied grenst, vormt dit plan een nieuwe stedenbouwkundige eenheid met een alzijdige uitstraling naar de omgeving.
Het plan bestaat uit 34 appartementen in een vierlaags L-vormig bouwvolume met woningen die optimaal op de zon en de omgeving zijn georiënteerd. Het gebouw is eenvoudig van opzet: twee haaks op elkaar staande bouwdelen, gescheiden door een royaal transparant trappenhuis. Op het binnenterrein zijn behalve de bergingen ook parkeerplaatsen gepland. Er is gebruik gemaakt van een natuurlijk hoogteverschil in het terrein, waardoor de parkeerplaatsen lager liggen dan de begane grondwoningen en daardoor enigszins uit het zicht blijven.
Het gebouw is rijk gedetailleerd met veel glas, overstekken en luifels in witte prefab beton. Grote erkers in de kopgevels benadrukken de alzijdigheid van het gebouw en geven de woningen een mooie overhoekse oriëntatie. De oranjerode baksteengevels krijgen een ambachtelijke uitstraling, met rollagen en een speciaal metselverband. Hierdoor ontstaat een decoratief metselwerkpatroon dat verwijst naar de vroeg-naoorlogse wederopbouwarchitectuur van deze wijk.
Fotografie Jannes Linders
Stel jezelf kort voor! Dan weet het betreffende bedrijf wie hun model gedownload heeft.
Wil je niet bij elke download jouw gegevens in hoeven voeren?
Klik dan hier om in te loggen
.
Heb je nog geen account?
Maak dan hier een gratis account aan
.
Voornaam
Achternaam
E-mailadres
Downloaden
Wanneer je modellen downloadt op Architectenweb.nl worden relevante gegevens van jou – zoals jouw naam en e-mailadres – met het betreffende bedrijf gedeeld. Meer hierover lees je in ons
privacybeleid
.
Locatie
Trefwoorden
herstructurering naoorlogse wijken
Steenhuis Bukman Architecten
Neem contact op
Projectdata
Staat van realisatie
Voltooid
Start bouw
2015
Plaats
Den Haag
Neem contact op met
Steenhuis Bukman Architecten
Je bent momenteel niet ingelogd. Hierdoor is het alleen mogelijk om meer informatie per e-mail op te vragen. Wil je liever gebeld worden of documentatie per post ontvangen?
Klik dan hier om in te loggen
.
Heb je nog geen account?
Maak dan hier een gratis account aan
.
Voornaam
Achternaam
E-mailadres
Opmerkingen
Bij iedere aanvraag worden relevante gegevens van jou gedeeld met het betreffende bedrijf. Meer hierover lees je in ons
privacybeleid
.
Ja, denk met me mee rond de
materialisering van mijn project
Meer projecten van Steenhuis Bukman Architecten
Haringlocatie, Delft
Steenhuis Bukman Architecten
Talmaweg, Barendrecht
Steenhuis Bukman Architecten
Operaplein, Amersfoort
Steenhuis Bukman Architecten
Parkweelde 3 (fase 1) in Amersfoort
Steenhuis Bukman Architecten
De Entree, RijswijkBuiten
Steenhuis Bukman Architecten
Bomenwijk Delft
Steenhuis Bukman Architecten
Parkrand Zestienhoven, Rotterdam
Steenhuis Bukman Architecten
Luxe woonhuizen De Driehoek, Park Zestienhoven
Steenhuis Bukman Architecten
Mr. Lohmanstraat, Barendrecht
Steenhuis Bukman Architecten
130 Watt, Oude Noorden
Steenhuis Bukman Architecten
Plesmanbuurt, Amsterdam-Slotervaart
Steenhuis Bukman Architecten
Zeemeeuw fase 2, Scheveningen Duindorp
Steenhuis Bukman Architecten
Heart and Soul, vernieuwing Bijlmermeer
Steenhuis Bukman Architecten
Orkide, woongebouw voor Turkse ouderen
Steenhuis Bukman Architecten
Bomenwijk Delft, Deelplan 1 + 2
Steenhuis Bukman Architecten
Marnixstraat
Steenhuis Bukman Architecten
Woonzorgcentrum Overschie
Steenhuis Bukman Architecten
Bomenwijk
Steenhuis Bukman Architecten
Revitalisering wijk Kruiskamp
Steenhuis Bukman Architecten
Duinstrip Scheveningen
Steenhuis Bukman Architecten
Bospark Emmermeer
Steenhuis Bukman Architecten
Herstructurering Aireydorp
Steenhuis Bukman Architecten
Waterdrieblad, Breda
Steenhuis Bukman Architecten
Basisschool De Fontein, Ypenburg
Steenhuis Bukman Architecten
Middeldijkerplein, Carnisselande Barendrecht
Steenhuis Bukman Architecten
Haringlocatie, Delft
Steenhuis Bukman Architecten
Talmaweg, Barendrecht
Steenhuis Bukman Architecten
Operaplein, Amersfoort
Steenhuis Bukman Architecten
Parkweelde 3 (fase 1) in Amersfoort
Steenhuis Bukman Architecten
De Entree, RijswijkBuiten
Steenhuis Bukman Architecten
Bomenwijk Delft
Steenhuis Bukman Architecten
Parkrand Zestienhoven, Rotterdam
Steenhuis Bukman Architecten
Luxe woonhuizen De Driehoek, Park Zestienhoven
Steenhuis Bukman Architecten
Mr. Lohmanstraat, Barendrecht
Steenhuis Bukman Architecten
130 Watt, Oude Noorden
Steenhuis Bukman Architecten
Plesmanbuurt, Amsterdam-Slotervaart
Steenhuis Bukman Architecten
Zeemeeuw fase 2, Scheveningen Duindorp
Steenhuis Bukman Architecten
Heart and Soul, vernieuwing Bijlmermeer
Steenhuis Bukman Architecten
Orkide, woongebouw voor Turkse ouderen
Steenhuis Bukman Architecten
Bomenwijk Delft, Deelplan 1 + 2
Steenhuis Bukman Architecten
Marnixstraat
Steenhuis Bukman Architecten
Woonzorgcentrum Overschie
Steenhuis Bukman Architecten
Bomenwijk
Steenhuis Bukman Architecten
Revitalisering wijk Kruiskamp
Steenhuis Bukman Architecten
Duinstrip Scheveningen
Steenhuis Bukman Architecten
Bospark Emmermeer
Steenhuis Bukman Architecten
Herstructurering Aireydorp
Steenhuis Bukman Architecten
Waterdrieblad, Breda
Steenhuis Bukman Architecten
Basisschool De Fontein, Ypenburg
Steenhuis Bukman Architecten
Middeldijkerplein, Carnisselande Barendrecht
Steenhuis Bukman Architecten
Toon alles
Andere Projecten
De stad van Aedes: waar werken wonen wordt
Tétris Design & Build
Nieuwbouw Residentie ZICHT Venlo
Knauf Insulation
Light House
Studioninedots
Nieuwbouw Slingeland Ziekenhuis Doetinchem
Knauf Insulation
Fraké Noir gevelbekleding op sanitairgebouw
Houthandel van Dam
The Family Delft
Houthandel van Dam
Houtlook lamellen voor aantrekkelijke nieuwbouw
Renson
De Toerist in Breda
DUCO Ventilation & Sun Control
Solarlux vouwwanden - Zuidkade Scheveningen
Solarlux Nederland B.V.
Multifunctioneel gebouw met aluminium vliesgevel
Aliplast Aluminium Systems
Van gesloten gevel naar transparant visitekaartje
Rockpanel
Den Hartogh Basecamp (Video)
Schüco Nederland
Ga naar het projecten-overzicht
Voor een optimale gebruikservaring plaatst Architectenweb functionele cookies. Wat de verschillende cookies precies doen leggen we uit in een
overzicht
. Cookies van social media kun je optioneel
aanzetten
.
Akkoord
Instellingen
Annuleren
OK
Sluiten
Doorgaan
Inloggen
Maak een gratis persoonlijk account aan
Feedback
Feedback
Wij horen graag jouw feedback. Laat je reactie achter en eventueel jouw e-mail adres.
Reactie
Verstuur