Projecten
Producten
Bedrijven
Vacatures
Agenda
Awards
Podcasts
more_horiz
Videos
Magazine
Favorieten
Profiel
Uitloggen
Abonneer je nu op onze nieuwsbrieven!
Abonneren
Nee, bedankt
Ja, denk met me mee rond de
materialisering van mijn project
Producten
luchtfoto Kruiskamp met Parkweelde 3 (fase 1)
Copyright: Jannes Linders
luchtfoto Parkweelde 3 (fase 1)
Copyright: Jannes Linders
foto Parkweelde 3 (fase 1)
Copyright: Jannes Linders
foto Parkweelde 3 (fase 1)
Copyright: Jannes Linders
foto Parkweelde 3 (fase 1)
Copyright: Jannes Linders
foto Parkweelde 3 (fase 1)
Copyright: Jannes Linders
foto Parkweelde 3 (fase 1)
Copyright: Jannes Linders
foto Parkweelde 3 (fase 1)
Copyright: Jannes Linders
foto Parkweelde 3 (fase 1)
Copyright: Jannes Linders
foto Parkweelde 3 (fase 1)
Copyright: Jannes Linders
foto Parkweelde 3 (fase 1)
Copyright: Jannes Linders
foto Parkweelde 3 (fase 1)
Copyright: Jannes Linders
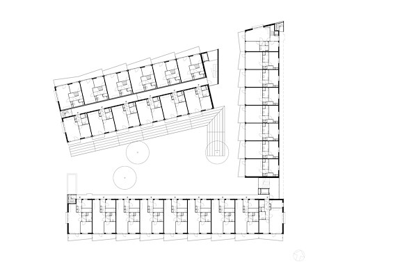
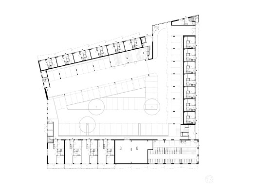
Plattegrond begane grond blokken A1, B1 en B2
Copyright: Steenhuis Bukman Architecten
Plattegrond 1e verdieping blokken A1, B1 en B2
Copyright: Steenhuis Bukman Architecten
Plattegrond 2e en 3e verdieping blokken A1, B1 en B2
Copyright: Steenhuis Bukman Architecten
Producttags
AAN
UIT
Parkweelde 3 (fase 1) in Amersfoort
10 december 2024
0
0
0
0
Parkweelde 3 (fase 1) bestaat uit vier woongebouwen van woningcorporatie De Alliantie met 214 woningen in de sociale huur en middenhuur. Het plan maakt onderdeel uit van de grotere vernieuwingsopgave in de wijk Kruiskamp en zorgt voor meer woningen, een grotere woningdifferentiatie en een verrijking van de openbare ruimte. De uitstraling wordt bepaald door zorgvuldig gedetailleerde architectuur en tijdloze materialisatie in metselwerk, beton en glas. Duurzame gebouwinstallaties en maatregelen voor klimaatadaptatie en biodiversiteit dragen bij aan de toekomstbestendigheid.
Het grotere geheel
Parkweelde 3 is een vervolgproject in de aanpak van de Van Randwijklaan e.o. in Kruiskamp. Deze buurt kwam al in de ‘Vogelaar-periode’ in het nieuws als problematisch (woningtypologie en –differentiatie, beheer woningen en openbare ruimte, bewonerssamenstelling), waarna gekozen is voor een deel sloop-nieuwbouw en verbetering van de woonomgeving.
Parkweelde 2 en 3 zijn invullingen van het stedenbouwkundig plan ter verdichting van de Magelhaenstraat e.o., waarbij:
- nieuwe blokken ‘grammaticaal’ terugkomen op de footprint van bestaande blokken;
- een (geluids)front naar de inmiddels veel drukkere Ringweg Kruiskamp wordt toegevoegd;
- parkeren uit de openbare ruimte van de Vasco da Gamastraat wordt gehaald;
- de gestapelde blokken aan de westzijde van de Magelhaenstraat worden vervangen door laagbouw.
Nieuwe opgave
Tegelijkertijd wordt een zeer aanzienlijke woningverdichting doorgevoerd. Was de Kruiskamp bij aanleg nog een ontspannen ‘buitenwijk’, nu ligt de wijk zeer centraal en direct bij het oude stadscentrum. Een heel aantrekkelijke woonlocatie. Daarbij is gekozen voor een mix van diverse woningtypes: grotere en kleinere woningen voor verschillende doelgroepen, in bereikbare- en middenhuur.
Naast het weer groen maken van de centrale openbare ruimte speelt klimaatadaptie een belangrijke rol: stond Kruiskamp voor de aanleg van de Afsluitdijk al regelmatig onder water, nu is de opgave van waterberging in dit laaggelegen stuk van de stad weer actueel. Waterretentie onder het parkeren en aanleg van wadi’s in het groen binnengebied maken het project klimaatbestendig. Begroeide pergola’s van circulaire hergebruikte materialen zorgen voor groen en verkoeling.
Respect voor de Amersfoortse traditie: Zuiderhoek
In de architectuur is gezocht naar aansluiting bij de voor Amersfoort specifieke en architectonisch rijke woningbouw van David Zuiderhoek in de periode dat de wijk werd aangelegd. Dit is met de stedenbouw uitgebreid geanalyseerd in het beeldkwaliteitsplan van Steenhuis Bukman Architecten. Ook de samenhang met de inmiddels gerealiseerde nieuwbouw van Kruiskamp was uiteraard van belang.
Door intelligent gebruik te maken van hoekverdraaingen, hoogteverschillen en taps toelopende balkons ontstaat een dynamische compositie. De stapeling van verschillende typologiën is in de gevel leesbaar en verrijkt het gevelbeeld. Zorgvuldige materialisatie leidt tot een uitstraling met hoge kwaliteit.
Stel jezelf kort voor! Dan weet het betreffende bedrijf wie hun model gedownload heeft.
Wil je niet bij elke download jouw gegevens in hoeven voeren?
Klik dan hier om in te loggen
.
Heb je nog geen account?
Maak dan hier een gratis account aan
.
Voornaam
Achternaam
E-mailadres
Downloaden
Wanneer je modellen downloadt op Architectenweb.nl worden relevante gegevens van jou – zoals jouw naam en e-mailadres – met het betreffende bedrijf gedeeld. Meer hierover lees je in ons
privacybeleid
.
Locatie
Trefwoorden
architectuur
galerij
middenhuur
natuurinclusief
woningbouw
sociale woningbouw
leefbaarheid
baksteen
sociale huur
balkon
huur
revitalisatie
Steenhuis Bukman Architecten
Neem contact op
Projectdata
Staat van realisatie
Voltooid
Start ontwerpproces
2020
Start bouw
2022
Oplevering
2024
Ingebruikname
2024
Plaats
Amersfoort
Meewerkende partijen
Architect
Steenhuis Bukman Architecten
Opdrachtgever
De Alliantie
Aannemer
Nijhuis Bouw B.V.
Constructeur
ingenieursgroep Emmen
Adviseurs installaties E & W
Sweco Architects
Fotograaf
Jannes Linders
Leveranciers
Personenlift
Mitsubishi Elevator Europe
Overig
Vivaro
Neem contact op met
Steenhuis Bukman Architecten
Je bent momenteel niet ingelogd. Hierdoor is het alleen mogelijk om meer informatie per e-mail op te vragen. Wil je liever gebeld worden of documentatie per post ontvangen?
Klik dan hier om in te loggen
.
Heb je nog geen account?
Maak dan hier een gratis account aan
.
Voornaam
Achternaam
E-mailadres
Opmerkingen
Bij iedere aanvraag worden relevante gegevens van jou gedeeld met het betreffende bedrijf. Meer hierover lees je in ons
privacybeleid
.
Ja, denk met me mee rond de
materialisering van mijn project
Meer projecten van Steenhuis Bukman Architecten
Haringlocatie, Delft
Steenhuis Bukman Architecten
Talmaweg, Barendrecht
Steenhuis Bukman Architecten
Operaplein, Amersfoort
Steenhuis Bukman Architecten
De Entree, RijswijkBuiten
Steenhuis Bukman Architecten
Bomenwijk Delft
Steenhuis Bukman Architecten
Parkrand Zestienhoven, Rotterdam
Steenhuis Bukman Architecten
Luxe woonhuizen De Driehoek, Park Zestienhoven
Steenhuis Bukman Architecten
Mr. Lohmanstraat, Barendrecht
Steenhuis Bukman Architecten
Oosterhesselenstraat, Morgenstond Den Haag Zuidwest
Steenhuis Bukman Architecten
130 Watt, Oude Noorden
Steenhuis Bukman Architecten
Plesmanbuurt, Amsterdam-Slotervaart
Steenhuis Bukman Architecten
Zeemeeuw fase 2, Scheveningen Duindorp
Steenhuis Bukman Architecten
Heart and Soul, vernieuwing Bijlmermeer
Steenhuis Bukman Architecten
Orkide, woongebouw voor Turkse ouderen
Steenhuis Bukman Architecten
Bomenwijk Delft, Deelplan 1 + 2
Steenhuis Bukman Architecten
Marnixstraat
Steenhuis Bukman Architecten
Woonzorgcentrum Overschie
Steenhuis Bukman Architecten
Bomenwijk
Steenhuis Bukman Architecten
Revitalisering wijk Kruiskamp
Steenhuis Bukman Architecten
Duinstrip Scheveningen
Steenhuis Bukman Architecten
Bospark Emmermeer
Steenhuis Bukman Architecten
Herstructurering Aireydorp
Steenhuis Bukman Architecten
Waterdrieblad, Breda
Steenhuis Bukman Architecten
Basisschool De Fontein, Ypenburg
Steenhuis Bukman Architecten
Middeldijkerplein, Carnisselande Barendrecht
Steenhuis Bukman Architecten
Haringlocatie, Delft
Steenhuis Bukman Architecten
Talmaweg, Barendrecht
Steenhuis Bukman Architecten
Operaplein, Amersfoort
Steenhuis Bukman Architecten
De Entree, RijswijkBuiten
Steenhuis Bukman Architecten
Bomenwijk Delft
Steenhuis Bukman Architecten
Parkrand Zestienhoven, Rotterdam
Steenhuis Bukman Architecten
Luxe woonhuizen De Driehoek, Park Zestienhoven
Steenhuis Bukman Architecten
Mr. Lohmanstraat, Barendrecht
Steenhuis Bukman Architecten
Oosterhesselenstraat, Morgenstond Den Haag Zuidwest
Steenhuis Bukman Architecten
130 Watt, Oude Noorden
Steenhuis Bukman Architecten
Plesmanbuurt, Amsterdam-Slotervaart
Steenhuis Bukman Architecten
Zeemeeuw fase 2, Scheveningen Duindorp
Steenhuis Bukman Architecten
Heart and Soul, vernieuwing Bijlmermeer
Steenhuis Bukman Architecten
Orkide, woongebouw voor Turkse ouderen
Steenhuis Bukman Architecten
Bomenwijk Delft, Deelplan 1 + 2
Steenhuis Bukman Architecten
Marnixstraat
Steenhuis Bukman Architecten
Woonzorgcentrum Overschie
Steenhuis Bukman Architecten
Bomenwijk
Steenhuis Bukman Architecten
Revitalisering wijk Kruiskamp
Steenhuis Bukman Architecten
Duinstrip Scheveningen
Steenhuis Bukman Architecten
Bospark Emmermeer
Steenhuis Bukman Architecten
Herstructurering Aireydorp
Steenhuis Bukman Architecten
Waterdrieblad, Breda
Steenhuis Bukman Architecten
Basisschool De Fontein, Ypenburg
Steenhuis Bukman Architecten
Middeldijkerplein, Carnisselande Barendrecht
Steenhuis Bukman Architecten
Toon alles
Andere Projecten
Fraké Noir gevelbekleding op sanitairgebouw
Houthandel van Dam
The Family Delft
Houthandel van Dam
Houtlook lamellen voor aantrekkelijke nieuwbouw
Renson
De Toerist in Breda
DUCO Ventilation & Sun Control
Solarlux vouwwanden - Zuidkade Scheveningen
Solarlux Nederland B.V.
Multifunctioneel gebouw met aluminium vliesgevel
Aliplast Aluminium Systems
Van gesloten gevel naar transparant visitekaartje
Rockpanel
Den Hartogh Basecamp (Video)
Schüco Nederland
Architectuur met een speels karakter
Caparol
Brandvertragende houten gevelbekleding Hortus Ludi
Foreco Houtproducten
Brouwerij Duvel Moortgat, Breendonk
Jansen
Porsche Zentrum München Süd | Germany
ALUCOBOND®
Ga naar het projecten-overzicht
Voor een optimale gebruikservaring plaatst Architectenweb functionele cookies. Wat de verschillende cookies precies doen leggen we uit in een
overzicht
. Cookies van social media kun je optioneel
aanzetten
.
Akkoord
Instellingen
Annuleren
OK
Sluiten
Doorgaan
Inloggen
Maak een gratis persoonlijk account aan
Feedback
Feedback
Wij horen graag jouw feedback. Laat je reactie achter en eventueel jouw e-mail adres.
Reactie
Verstuur