Projecten
Producten
Bedrijven
Vacatures
Agenda
Awards
Podcasts
more_horiz
Videos
Magazine
Favorieten
Profiel
Uitloggen
Abonneer je nu op onze nieuwsbrieven!
Abonneren
Nee, bedankt
Ja, denk met me mee rond de
materialisering van mijn project
Producten
Copyright: Jannes Linders
Copyright: Jannes Linders
Copyright: Jannes Linders
Copyright: Jannes Linders
Copyright: Jannes Linders
Copyright: Jannes Linders
Copyright: Jannes Linders
Copyright: Jannes Linders
doorsnede woongebouw met gezondheidscentrum
Copyright: Steenhuis Bukman Architecten
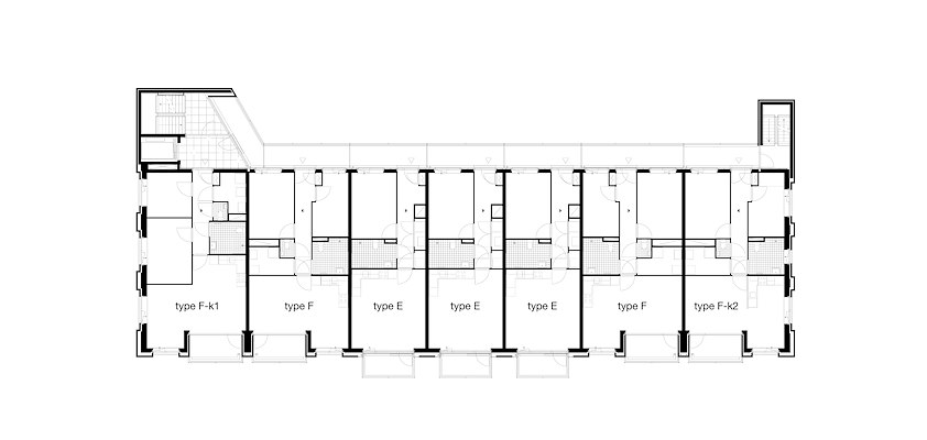
plattegrond sociale-huurappartementen
Copyright: Steenhuis Bukman Architecten
plattegrond koopappartementen
Copyright: Steenhuis Bukman Architecten
situatietekening
Copyright: Steenhuis Bukman Architecten
Producttags
AAN
UIT
De Entree, RijswijkBuiten
5 december 2024
0
0
0
0
Daar waar de Parksingel en ’t Haantje samenkomen, markeren twee robuuste appartementengebouwen letterlijk ‘De Entree’ van Parkrijk, een woonbuurt in RijswijkBuiten. De blokken zijn als één ensemble ontworpen, inclusief het tussenliggende groene Atalantaplein. Het project vormt samen met 18 nieuwe herenhuizen het laatste deel van een grotere ontwikkeling waar Steenhuis Bukman Architecten meerdere deelplannen ontworpen heeft. Het bureau was daarbij tevens supervisor van een deelgebied met conceptwoningen, waarbij het erom ging deze goed in het beeld van de wijk te verankeren.
Het hoogste blok bestaat uit 32 luxe koopappartementen, ontworpen in opdracht van Harnaschpolder CV (VolkerWessels Vastgoed & AM). Dit woongebouw heeft zeven lagen met ruime driekamerappartementen met grote balkons. Het naastgelegen zeslaagse gebouw bevat 28 sociale huurwoningen voor senioren en mensen met een lichte zorgindicatie, voor opdrachtgever Vidomes. Het zijn comfortabele twee- en driekamerappartementen met een levensloopbestendige indeling (WoonKeur basiseisen nieuwbouw) en balkons op het zuidwesten. Op de onderste twee bouwlagen van dit blok bevindt zich Gezondheidscentrum RijswijkBuiten, een groot voorzieningencentrum van ca. 1.600 m2 met apotheek, huisartsenpost, tandarts en fysiotherapie. De opdrachtgever hiervan is Intercontinental Estate.
De architectuur van De Entree kenmerkt zich door hoogwaardige materialisatie en zorgvuldig vormgegeven details. De gemetselde gevels zijn verrijkt met sprongen, vlakken en penanten in verschillende tinten baksteen en voegwerk. De gebruikte materialen baksteen, beton, glas en staal behouden door de tijd heen hun uitstraling en verouderen mooi. De robuuste volumes, krachtige vormgeving, hoogwaardige materialen en zorgvuldige detaillering geven De Entree haar onderscheidend karakter.
Duurzaamheid staat centraal in het ontwerp van De Entree. Het project is energiezuinig en voorzien van hoogwaardige isolatie, individuele bodemwarmtepompen en zonnepanelen. Vanzelfsprekend is er ook veel aandacht besteed aan de integratie van natuur in de gebouwde omgeving: er is rekening gehouden met de huisvesting van beschermde diersoorten zoals vleermuizen en gierzwaluwen om de lokale biodiversiteit te ondersteunen. De nestkasten zijn in met name de gevels toegepast die vanwege industriegeluid van het nabijgelegen TNO (deels) doof uitgevoerd moesten worden.
De grondgebonden woningen in Parkrijk kennen een soortgelijke variatie en detaillering als de appartementengebouwen, met veel plastiek in de gevels, diepe negges, veel glas, luifels en kaders. De architectuur is geïnspireerd op de vroeg twintigste-eeuwse architectuur van de Rijkswijkse buurt Leeuwendael en de Haagse School.
De Entree is een mooi voorbeeld van hoe Steenhuis Bukman Architecten in dergelijke opgaves te werk gaat en kwalitatieve woonomgevingen creëert. Gebouwen en woonomgeving sluiten naadloos op elkaar aan en vormen samen één architectonisch en stedenbouwkundig geheel waarin functionaliteit, duurzaamheid, natuur en inclusiviteit gelijk opgaan.
Het project De Entree is gebouwd door Lithos Bouw & Ontwikkeling, de overige plandelen door Boele & Van Eesteren en BAM Wonen.
Stel jezelf kort voor! Dan weet het betreffende bedrijf wie hun model gedownload heeft.
Wil je niet bij elke download jouw gegevens in hoeven voeren?
Klik dan hier om in te loggen
.
Heb je nog geen account?
Maak dan hier een gratis account aan
.
Voornaam
Achternaam
E-mailadres
Downloaden
Wanneer je modellen downloadt op Architectenweb.nl worden relevante gegevens van jou – zoals jouw naam en e-mailadres – met het betreffende bedrijf gedeeld. Meer hierover lees je in ons
privacybeleid
.
Locatie
Trefwoorden
woningbouw
duurzaam
gezondheidscentrum
sociale huur
natuurinclusief
energiezuinig
woningcorporatie
woongebouw
eengezinswoningen
appartementen
koopappartementen
Steenhuis Bukman Architecten
Neem contact op
Projectdata
Staat van realisatie
Voltooid
Start ontwerpproces
2019
Start bouw
2022
Oplevering
2024
Ingebruikname
2024
Plaats
Rijswijk
Meewerkende partijen
Architect
Steenhuis Bukman Architecten
Opdrachtgever
Harnaschpolder CV, Vidomes, Intercontinental Estate
Aannemer
Lithos Bouw BV
Constructeur
Pieters Bouwtechniek B.V.
Fotograaf
Jannes Linders
Installateur
Giesbers installatietechniek, Rijndorp installaties
Leveranciers
Overig
Timmerfabriek Mekenkamp
Neem contact op met
Steenhuis Bukman Architecten
Je bent momenteel niet ingelogd. Hierdoor is het alleen mogelijk om meer informatie per e-mail op te vragen. Wil je liever gebeld worden of documentatie per post ontvangen?
Klik dan hier om in te loggen
.
Heb je nog geen account?
Maak dan hier een gratis account aan
.
Voornaam
Achternaam
E-mailadres
Opmerkingen
Bij iedere aanvraag worden relevante gegevens van jou gedeeld met het betreffende bedrijf. Meer hierover lees je in ons
privacybeleid
.
Ja, denk met me mee rond de
materialisering van mijn project
Meer projecten van Steenhuis Bukman Architecten
Haringlocatie, Delft
Steenhuis Bukman Architecten
Talmaweg, Barendrecht
Steenhuis Bukman Architecten
Operaplein, Amersfoort
Steenhuis Bukman Architecten
Parkweelde 3 (fase 1) in Amersfoort
Steenhuis Bukman Architecten
Bomenwijk Delft
Steenhuis Bukman Architecten
Parkrand Zestienhoven, Rotterdam
Steenhuis Bukman Architecten
Luxe woonhuizen De Driehoek, Park Zestienhoven
Steenhuis Bukman Architecten
Mr. Lohmanstraat, Barendrecht
Steenhuis Bukman Architecten
Oosterhesselenstraat, Morgenstond Den Haag Zuidwest
Steenhuis Bukman Architecten
130 Watt, Oude Noorden
Steenhuis Bukman Architecten
Plesmanbuurt, Amsterdam-Slotervaart
Steenhuis Bukman Architecten
Zeemeeuw fase 2, Scheveningen Duindorp
Steenhuis Bukman Architecten
Heart and Soul, vernieuwing Bijlmermeer
Steenhuis Bukman Architecten
Orkide, woongebouw voor Turkse ouderen
Steenhuis Bukman Architecten
Bomenwijk Delft, Deelplan 1 + 2
Steenhuis Bukman Architecten
Marnixstraat
Steenhuis Bukman Architecten
Woonzorgcentrum Overschie
Steenhuis Bukman Architecten
Bomenwijk
Steenhuis Bukman Architecten
Revitalisering wijk Kruiskamp
Steenhuis Bukman Architecten
Duinstrip Scheveningen
Steenhuis Bukman Architecten
Bospark Emmermeer
Steenhuis Bukman Architecten
Herstructurering Aireydorp
Steenhuis Bukman Architecten
Waterdrieblad, Breda
Steenhuis Bukman Architecten
Basisschool De Fontein, Ypenburg
Steenhuis Bukman Architecten
Middeldijkerplein, Carnisselande Barendrecht
Steenhuis Bukman Architecten
Haringlocatie, Delft
Steenhuis Bukman Architecten
Talmaweg, Barendrecht
Steenhuis Bukman Architecten
Operaplein, Amersfoort
Steenhuis Bukman Architecten
Parkweelde 3 (fase 1) in Amersfoort
Steenhuis Bukman Architecten
Bomenwijk Delft
Steenhuis Bukman Architecten
Parkrand Zestienhoven, Rotterdam
Steenhuis Bukman Architecten
Luxe woonhuizen De Driehoek, Park Zestienhoven
Steenhuis Bukman Architecten
Mr. Lohmanstraat, Barendrecht
Steenhuis Bukman Architecten
Oosterhesselenstraat, Morgenstond Den Haag Zuidwest
Steenhuis Bukman Architecten
130 Watt, Oude Noorden
Steenhuis Bukman Architecten
Plesmanbuurt, Amsterdam-Slotervaart
Steenhuis Bukman Architecten
Zeemeeuw fase 2, Scheveningen Duindorp
Steenhuis Bukman Architecten
Heart and Soul, vernieuwing Bijlmermeer
Steenhuis Bukman Architecten
Orkide, woongebouw voor Turkse ouderen
Steenhuis Bukman Architecten
Bomenwijk Delft, Deelplan 1 + 2
Steenhuis Bukman Architecten
Marnixstraat
Steenhuis Bukman Architecten
Woonzorgcentrum Overschie
Steenhuis Bukman Architecten
Bomenwijk
Steenhuis Bukman Architecten
Revitalisering wijk Kruiskamp
Steenhuis Bukman Architecten
Duinstrip Scheveningen
Steenhuis Bukman Architecten
Bospark Emmermeer
Steenhuis Bukman Architecten
Herstructurering Aireydorp
Steenhuis Bukman Architecten
Waterdrieblad, Breda
Steenhuis Bukman Architecten
Basisschool De Fontein, Ypenburg
Steenhuis Bukman Architecten
Middeldijkerplein, Carnisselande Barendrecht
Steenhuis Bukman Architecten
Toon alles
Andere Projecten
MFC Feanwâlden
KHV Architecten B.V.
Parkeergarage De Caai in Eindhoven
Alucol
Lichtstad Architecten: bouwen aan blijvende ideeën
KUBUS | Specialist in Archicad
Horecapaviljoen Vakantiepark Eigen Wijze
KHV Architecten B.V.
Ontwikkeling Kornputkwartier
KHV Architecten B.V.
IKEA Restaurant, Frankfurt
objectflor
Gevelsteen vormt monumentaal ontwerp
Steenbakkerij Vande Moortel
Nieuw kantoorgebouw
SAPA
Kindcentrum Kampen
Holonite B.V.
BDO kantoor Breda
ULMA Architectural Solutions
Transformatie Appartementencomplex De Karel 2.0
Knauf B.V.
Studentenhuisvesting the Cube in Utrecht
Kronospan
Ga naar het projecten-overzicht
Voor een optimale gebruikservaring plaatst Architectenweb functionele cookies. Wat de verschillende cookies precies doen leggen we uit in een
overzicht
. Cookies van social media kun je optioneel
aanzetten
.
Akkoord
Instellingen
Annuleren
OK
Sluiten
Doorgaan
Inloggen
Maak een gratis persoonlijk account aan
Feedback
Feedback
Wij horen graag jouw feedback. Laat je reactie achter en eventueel jouw e-mail adres.
Reactie
Verstuur