Projecten
Producten
Bedrijven
Vacatures
Agenda
Awards
Podcasts
more_horiz
Videos
Magazine
Thema's
Favorieten
Profiel
Uitloggen
Abonneer je nu op onze nieuwsbrieven!
Abonneren
Nee, bedankt
Ja, denk met me mee rond de
materialisering van mijn project
Producten
Producttags
AAN
UIT
De Dijken 10
26 april 2012
0
0
0
0
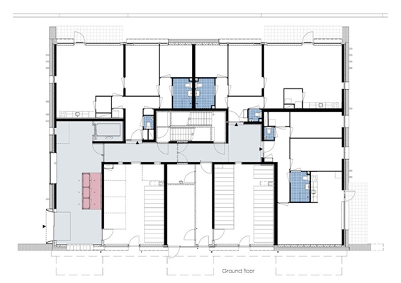
In de jongste wijk van Den Haag, Leidschenveen, liggen de vier appartementenblokken van De Dijken 10, ontworpen door HVE architecten. In overleg met de opdrachtgever heeft HVE architecten al vroeg in het ontwerpproces het aaneengesloten, langgerekte bouwvolume gewijzigd naar vier vrijstaande volumes. Hierdoor is een optimale visuele relatie gerealiseerd tussen de parken voor en achter het project.
De ontstane open ruimten tussen de appartementenblokken zijn in overleg met de bewoners ingericht als thematuinen. Van de vier volumes, die specifiek ontworpen zijn als seniorenwoningen, is één bestemd voor sociale huur en de andere drie voor vrije sector. Het plan telt in totaal 81 appartementen. Ondanks de hoge woondichtheid is een prettig en ontspannen woonmilieu ontstaan.
De architectonische vormgeving kenmerkt zich door een heldere en verfijnde detaillering en materiaalgebruik. De onderbouw van de appartementenblokken is vormgegeven met steenkorven, gevuld met zandkleurige keien. Deze gaan over in tuinmuren die het plangebied omzomen en daarmee een scheiding vormen tussen de collectieve binnenterreinen en de openbare ruimte. De bovenbouw is uitgevoerd in een rode keramische tegel die qua kleur aansluit bij de overwegend rood/bruine baksteen van de wijk. In de langsrichting van het project wordt de bovenbouw gekenmerkt door de horizontale terracotta banden, die refereren naar één van de kenmerken van de Nieuwe Haagse School architectuur uit de jaren 30. Door deze geleding ontstaat een menselijke schaal en luchtigheid, waardoor het volume van blokken gerelativeerd wordt. De gevels in de dwarsrichting contrasteren door een grotere geslotenheid met een verticaal karakter. Er ontstaat een dynamiek die de alzijdigheid van het plan benadrukt en maximaal benut.
De gemeenschappelijke binnenruimten van de woonblokken zijn terughoudend uitgevoerd met stuc en natuursteen. Verrassend zijn de verspringende vides en ruimten ter plaatse van de wachtruimten voor de liften op de verdiepingen. De entreehal en de verdiepingen zijn hierdoor ruimtelijk met elkaar verbonden en de normaliter puur functionele algemene verkeersruimte wordt ineens een onverwachte beleving voor bewoners en bezoekers.
Stel jezelf kort voor! Dan weet het betreffende bedrijf wie hun model gedownload heeft.
Wil je niet bij elke download jouw gegevens in hoeven voeren?
Klik dan hier om in te loggen
.
Heb je nog geen account?
Maak dan hier een gratis account aan
.
Voornaam
Achternaam
E-mailadres
Downloaden
Wanneer je modellen downloadt op Architectenweb.nl worden relevante gegevens van jou – zoals jouw naam en e-mailadres – met het betreffende bedrijf gedeeld. Meer hierover lees je in ons
privacybeleid
.
Locatie
Trefwoorden
natuursteen
appartementen
blokken
steenkorven
ruimtelijk
tuinmuren
thematuinen
woonmilieu
HVE Architecten b.v.
Neem contact op
Projectdata
Staat van realisatie
Voltooid
Start bouw
2010
Plaats
Den Haag
Bruto m
2
9800
Neem contact op met
HVE Architecten b.v.
Je bent momenteel niet ingelogd. Hierdoor is het alleen mogelijk om meer informatie per e-mail op te vragen. Wil je liever gebeld worden of documentatie per post ontvangen?
Klik dan hier om in te loggen
.
Heb je nog geen account?
Maak dan hier een gratis account aan
.
Voornaam
Achternaam
E-mailadres
Opmerkingen
Bij iedere aanvraag worden relevante gegevens van jou gedeeld met het betreffende bedrijf. Meer hierover lees je in ons
privacybeleid
.
Ja, denk met me mee rond de
materialisering van mijn project
Meer projecten van HVE Architecten b.v.
De Jaarsmahof
HVE Architecten b.v.
De Visserijschool
HVE Architecten b.v.
Levels
HVE Architecten b.v.
Stadhuis Hengelo
HVE Architecten b.v.
Nieuwbouw Basisschool Het Volle Leven
HVE Architecten b.v.
Frank is een Binck
HVE Architecten b.v.
Transformatie The Student Hotel The Hague
HVE Architecten b.v.
Seniorencomplex De Componist
HVE Architecten b.v.
Hof van Ostade
HVE Architecten b.v.
Sandtlaan Katwijk
HVE Architecten b.v.
Brede school Tesselseveld
HVE Architecten b.v.
De Raden, 195 koopwoningen
HVE Architecten b.v.
Meerkoetstraat Zwijndrecht
HVE Architecten b.v.
Centrumplan Alblasserdam, Cortgene in Alblasserdam
HVE Architecten b.v.
Restauratie Theater Diligentia
HVE Architecten b.v.
44 woningen Parkwijk
HVE Architecten b.v.
De Jaarsmahof
HVE Architecten b.v.
De Visserijschool
HVE Architecten b.v.
Levels
HVE Architecten b.v.
Stadhuis Hengelo
HVE Architecten b.v.
Nieuwbouw Basisschool Het Volle Leven
HVE Architecten b.v.
Frank is een Binck
HVE Architecten b.v.
Transformatie The Student Hotel The Hague
HVE Architecten b.v.
Seniorencomplex De Componist
HVE Architecten b.v.
Hof van Ostade
HVE Architecten b.v.
Sandtlaan Katwijk
HVE Architecten b.v.
Brede school Tesselseveld
HVE Architecten b.v.
De Raden, 195 koopwoningen
HVE Architecten b.v.
Meerkoetstraat Zwijndrecht
HVE Architecten b.v.
Centrumplan Alblasserdam, Cortgene in Alblasserdam
HVE Architecten b.v.
Restauratie Theater Diligentia
HVE Architecten b.v.
44 woningen Parkwijk
HVE Architecten b.v.
Toon alles
Andere Projecten
Campus Sportief Besteed Groep — Wubben.Chan
Wubben.Chan architecten
BDO kantoor Breda
ULMA Architectural Solutions
Toegangscontrole op een dynamisch terrein
Heras
Biobased bouwen naast Natura 2000-gebied
KUBUS | Specialist in Archicad
5Tracks - inspirerende atriums met JUNG
Jung | Hateha B.V.
Totaalrealisatie nieuwe kantoorlocatie A. Vogel
Intermontage B.V.
Sweco Wonderwoods — Duurzame kantoorinrichting
Hal2
Gare Maritime, Brussel
WEBO
De transformatie van de Lintveldebrink
Grohe Nederland B.V.
Sweco WTC Den Haag — Duurzame kantoorinrichting
Hal2
Uitbreiding Hotel Martin's Klooster, Leuven
OWA Benelux - Akoestiek & Design
RVS plinten kantoor Moore DRV
Storax
Ga naar het projecten-overzicht
Voor een optimale gebruikservaring plaatst Architectenweb functionele cookies. Wat de verschillende cookies precies doen leggen we uit in een
overzicht
. Cookies van social media kun je optioneel
aanzetten
.
Akkoord
Instellingen
Annuleren
OK
Sluiten
Doorgaan
Inloggen
Maak een gratis persoonlijk account aan
Feedback
Feedback
Wij horen graag jouw feedback. Laat je reactie achter en eventueel jouw e-mail adres.
Reactie
Verstuur