Projecten
Producten
Bedrijven
Vacatures
Agenda
Awards
Podcasts
more_horiz
Videos
Magazine
Thema's
Favorieten
Profiel
Uitloggen
Abonneer je nu op onze nieuwsbrieven!
Abonneren
Nee, bedankt
Ja, denk met me mee rond de
materialisering van mijn project
Producten
Copyright: Bart van Hoek
Copyright: HVE Architecten b.v.
Copyright: Bart van Hoek
Copyright: Bart van Hoek
Copyright: Bart van Hoek
Copyright: Bart van Hoek
Copyright: Bart van Hoek
Copyright: Bart van Hoek
Copyright: Bart van Hoek
Copyright: Bart van Hoek
Copyright: Bart van Hoek
Copyright: Bart van Hoek
Copyright: Bart van Hoek
Copyright: Bart van Hoek
Copyright: Bart van Hoek
Copyright: Bart van Hoek
Copyright: Bart van Hoek
Copyright: Bart van Hoek
Copyright: HVE Architecten b.v.
Copyright: HVE Architecten b.v.
Producttags
AAN
UIT
De Jaarsmahof
22 augustus 2023
0
0
0
0
In opdracht van de Koninklijke Haagsche Woningvereniging van 1854 heeft
HVE Architecten
op het terrein van de voormalige Jaarsma Haardenfabriek een vrijwel energieneutraal woningbouwproject ontworpen, op het kruispunt van renovatie, transformatie en nieuwbouw. De ‘Jaarsmahof’ bevat 43 woningen in de sociale huursector, die bestemd zijn voor eenpersoonshuishoudens voor maatschappelijke beroepsgroepen zoals zorg, onderwijs, politie en kunstenaars.
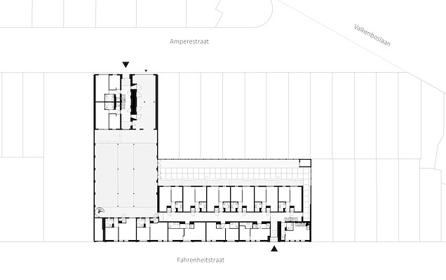
De Fahrenheitstraat
Het monumentale pand aan de Fahrenheitstraat 335 heeft van 1906 tot 1936 de Jaarsma Haardenfabriek gehuisvest. Na 1936 heeft het pand jarenlang dienst gedaan als Postkantoor, waarbij diverse aanpassingen aan het gebouw zijn gedaan. De monumentale voorgevel aan de Fahrenheitstraat is zoveel mogelijk teruggebracht naar de oorspronkelijke staat. Achter deze gevel zijn nieuwe appartementen gesitueerd, die ontsloten worden door een midden-corridor. Door de gekozen materialen, het natuurlijk licht van boven en de vides ontstaat een verrassende binnenstraat met een industrieel karakter.
De openingen van de gerestaureerde gevel definiëren de beukmaten van de appartementen, waardoor elke woning aan de Fahrenheitstraat een unieke plattegrond heeft gekregen. De façade van de Fahrenheitstraat heeft zijn oorspronkelijke ritmiek van gevelopeningen teruggekregen alsook de oorspronkelijke hoofdentree, welke nu dienst doet als hoofdentree van het gebouw. Naast de hoofdentree is tevens de voormalige kachel-showroom herbouwt en ingericht als woning.
Het binnenterrein
Het binnenterrein wordt grotendeels ingenomen door de oude fabriekshal waar de haarden werden geproduceerd. De constructie van de hal met sheddaken is na ongeveer 90 jaar weer zichtbaar gemaakt. De hal, gelegen tussen de bebouwing aan de Fahrenheitstraat en de Ampèrestraat krijgt een nieuwe bestemming als gemeenschappelijke ruimte en fietsenstalling. Op de footprint van de oude fabriek is naast de hal nieuwbouw gerealiseerd van drie bouwlagen. Deze appartementen zijn gelegen aan de gemeenschappelijke tuin.
De Ampèrestraat
Aan de Ampèrestraat is de éénlaagse bebouwing van het postkantoor gesloopt en vervangen door nieuwbouw van drie bouwlagen met een kap. Hierdoor is het gat in de gevelwand aan de Ampèrestraat aangeheeld. De toegangspoort vanaf de Ampèrestraat naar het binnenterrein heeft hetzelfde design gekregen als de voormalige poort van de haardenfabriek. In de poort zijn vier vitrines opgenomen, die door middel van historisch beeldmateriaal en twee Jaarsma kachels de connectie met het verleden versterken.
De architectuur van de nieuwe bebouwing heeft een robuust en industrieel karakter. De gevels zijn uitgevoerd in een bruin gesinterde steen en worden gedragen door een zichtbare stalen draagstructuur. De nieuwbouwelementen vormen samen met de hal en gerestaureerde gevel een nieuw ensemble, dat recht doet aan het industriële erfgoed en het hedendaagse wonen.
Stel jezelf kort voor! Dan weet het betreffende bedrijf wie hun model gedownload heeft.
Wil je niet bij elke download jouw gegevens in hoeven voeren?
Klik dan hier om in te loggen
.
Heb je nog geen account?
Maak dan hier een gratis account aan
.
Voornaam
Achternaam
E-mailadres
Downloaden
Wanneer je modellen downloadt op Architectenweb.nl worden relevante gegevens van jou – zoals jouw naam en e-mailadres – met het betreffende bedrijf gedeeld. Meer hierover lees je in ons
privacybeleid
.
Locatie
Trefwoorden
industrieel erfgoed
den haag
interieur
beng
transformatie
renovatie
nieuwbouw
woningbouw
monument
architectuur
binnenstedelijke verdichting
sociale huur
herbestemming
HVE Architecten b.v.
Neem contact op
Projectdata
Staat van realisatie
Voltooid
Start ontwerpproces
2016
Start bouw
2021
Oplevering
2023
Ingebruikname
2023
Plaats
Den Haag
Bruto m
2
2557
Netto m
2
2045
m
3
9015
Meewerkende partijen
Architect
HVE Architecten b.v.
Interieurarchitect
HVE Architecten b.v.
Projectarchitect
Gerrit van Es
Ontwerpteam
Arno Kwint, Paul Koolen
Opdrachtgever
Koninklijke Haagsche Woningvereniging van 1854
Aannemer
Niersman Bouw Haaglanden
Constructeur
Bureau Broersma Ingenieurs en Bouwadvies / Ingenieursburo IOB
Adviseurs installaties E & W
VIAC Installatie Adviseurs
Fotograaf
Bart van Hoek architectuurfotografie
Leveranciers
VIROC CEMENTGEBONDEN VEZELPLAAT
Baars & Bloemhoff
Wand en vloertegels
Mosa.
Bodem warmtepompen WPU
Itho Daaldrop
Overig
Metaglas Groep
,
Carl Stahl Architectuur
Neem contact op met
HVE Architecten b.v.
Je bent momenteel niet ingelogd. Hierdoor is het alleen mogelijk om meer informatie per e-mail op te vragen. Wil je liever gebeld worden of documentatie per post ontvangen?
Klik dan hier om in te loggen
.
Heb je nog geen account?
Maak dan hier een gratis account aan
.
Voornaam
Achternaam
E-mailadres
Opmerkingen
Bij iedere aanvraag worden relevante gegevens van jou gedeeld met het betreffende bedrijf. Meer hierover lees je in ons
privacybeleid
.
Ja, denk met me mee rond de
materialisering van mijn project
Meer projecten van HVE Architecten b.v.
De Visserijschool
HVE Architecten b.v.
Levels
HVE Architecten b.v.
Stadhuis Hengelo
HVE Architecten b.v.
Nieuwbouw Basisschool Het Volle Leven
HVE Architecten b.v.
Frank is een Binck
HVE Architecten b.v.
Transformatie The Student Hotel The Hague
HVE Architecten b.v.
Seniorencomplex De Componist
HVE Architecten b.v.
De Dijken 10
HVE Architecten b.v.
Hof van Ostade
HVE Architecten b.v.
Sandtlaan Katwijk
HVE Architecten b.v.
Brede school Tesselseveld
HVE Architecten b.v.
De Raden, 195 koopwoningen
HVE Architecten b.v.
Meerkoetstraat Zwijndrecht
HVE Architecten b.v.
Centrumplan Alblasserdam, Cortgene in Alblasserdam
HVE Architecten b.v.
Restauratie Theater Diligentia
HVE Architecten b.v.
44 woningen Parkwijk
HVE Architecten b.v.
De Visserijschool
HVE Architecten b.v.
Levels
HVE Architecten b.v.
Stadhuis Hengelo
HVE Architecten b.v.
Nieuwbouw Basisschool Het Volle Leven
HVE Architecten b.v.
Frank is een Binck
HVE Architecten b.v.
Transformatie The Student Hotel The Hague
HVE Architecten b.v.
Seniorencomplex De Componist
HVE Architecten b.v.
De Dijken 10
HVE Architecten b.v.
Hof van Ostade
HVE Architecten b.v.
Sandtlaan Katwijk
HVE Architecten b.v.
Brede school Tesselseveld
HVE Architecten b.v.
De Raden, 195 koopwoningen
HVE Architecten b.v.
Meerkoetstraat Zwijndrecht
HVE Architecten b.v.
Centrumplan Alblasserdam, Cortgene in Alblasserdam
HVE Architecten b.v.
Restauratie Theater Diligentia
HVE Architecten b.v.
44 woningen Parkwijk
HVE Architecten b.v.
Toon alles
Gerelateerde producten
Balustrades met kabelnetten in een frame
Carl Stahl Architectuur
Balustrades met kabelnetten tussen randkabels
Carl Stahl Architectuur
Methermo®XL verticale schuiframen
Metaglas Groep
Mosa - Core Collection - Terra vloertegels
Vloertegels met topfunctionaliteit voor binnen en buiten
Mosa.
Andere Projecten
Frigo-Trans GmbH Mezzaninevloer voor logistiek
Nolte Mezzanine
ABB-technologie verlicht de Burj Khalifa
ABB | Busch-Jaeger
Luxe wonen in Hamptons stijl
Holonite B.V.
Vijf keer Gorter op Jullensblok
Gorter Luiken BV
Hybride buitenruimte Catharinatoren Zaandam
Solarlux Nederland B.V.
Hilversum Nieuw Zuid
HOSPER landschapsarchitectuur
TU Delft Stadsklimaatbos
HOSPER landschapsarchitectuur
Maatwerk vanuit een concpetwoning
Innoblox
Full service voor logistiek bedrijfspand
Buro De Haan
TU Delft Campus Stevingebied
HOSPER landschapsarchitectuur
CPO Bakstayn
Time to Access
Nieuwbouw hal BPA Blueprint Automation
Houthandel van Dam
Ga naar het projecten-overzicht
Voor een optimale gebruikservaring plaatst Architectenweb functionele cookies. Wat de verschillende cookies precies doen leggen we uit in een
overzicht
. Cookies van social media kun je optioneel
aanzetten
.
Akkoord
Instellingen
Annuleren
OK
Sluiten
Doorgaan
Inloggen
Maak een gratis persoonlijk account aan
Feedback
Feedback
Wij horen graag jouw feedback. Laat je reactie achter en eventueel jouw e-mail adres.
Reactie
Verstuur