Projecten
Producten
Bedrijven
Vacatures
Agenda
Awards
Podcasts
more_horiz
Videos
Magazine
Thema's
Favorieten
Profiel
Uitloggen
Abonneer je nu op onze nieuwsbrieven!
Abonneren
Nee, bedankt
Ja, denk met me mee rond de
materialisering van mijn project
Producten
Producttags
AAN
UIT
Hof van Ostade
21 maart 2012
0
0
0
0
“We zien de gevel als de binnenwand van de openbare straat.”
Langs de Hoefkade zijn in de afgelopen 40 jaar diverse stadsvernieuwingsprojecten gerealiseerd met een verschil in woontypologie, verkavelingsopzet en de expressie van de architectuur. Van de oorspronkelijke 19e eeuwse bebouwing is weinig overgebleven en de Hoefkade laat zich nu lezen als een kralensnoer van verschillende recente ontwerpstrategieën.
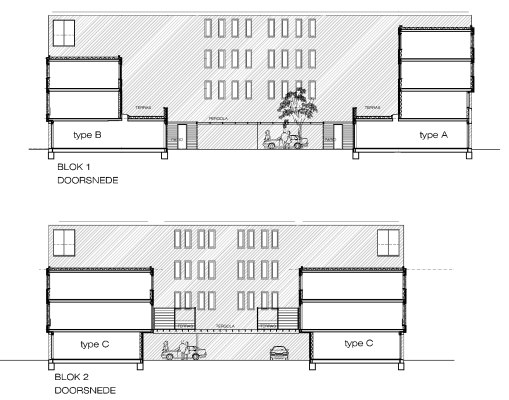
Voor de hoofdopzet van het ontwerp van de Hof van Ostade heeft HVE architecten zich laten leiden door het oorspronkelijke negentiende eeuwse stratenpatroon en de bijbehorende gesloten bouwblokken. In de verschijningsvorm van de bouwblokken wordt een hiërarchisch onderscheid gemaakt tussen hoofdstraat en zijstraten. Deze straten verschillen totaal van karakter en dit wordt in het plan onderstreept door het programma, de bouwhoogte en een subtiel verschil in materiaalgebruik. Aan de Hoefkade zijn op de begane grond winkels gesitueerd met daar boven drie verdiepingen van appartementen. Door middel van een arcade is er een overgangszone gecreëerd tussen winkels, entreehallen en de hectiek van de drukke Hoefkade. Aan de veel rustigere zijstraten van de Hoefkade zijn drie- en vierlaagse grondgebonden woningen gerealiseerd, die aan een besloten binnenterrein liggen.
De robuuste, minimalistische baksteen-gevel sluit aan op de neutrale opzet van de verkaveling. Net als de negentiende eeuwse gevels vormen de gevelopeningen een doorgaand ritme, onafhankelijk van het achterliggend programma. We zien de gevel als de binnenwand van de openbare straat. Door de geheel eigen, sterke, maar tegelijkertijd rustige uitstraling van het ontwerp voegt het plan zich moeiteloos in de bestaande structuur van diverse ontwerpstrategieën langs de Hoefkade. Het plan wordt hiermee als het ware ingeregen in het kralensnoer van stadsvernieuwingsprojecten.
Stel jezelf kort voor! Dan weet het betreffende bedrijf wie hun model gedownload heeft.
Wil je niet bij elke download jouw gegevens in hoeven voeren?
Klik dan hier om in te loggen
.
Heb je nog geen account?
Maak dan hier een gratis account aan
.
Voornaam
Achternaam
E-mailadres
Downloaden
Wanneer je modellen downloadt op Architectenweb.nl worden relevante gegevens van jou – zoals jouw naam en e-mailadres – met het betreffende bedrijf gedeeld. Meer hierover lees je in ons
privacybeleid
.
Locatie
HVE Architecten b.v.
Neem contact op
Projectdata
Staat van realisatie
Voltooid
Start bouw
2008
Plaats
Den Haag
Kosten
11900000
Neem contact op met
HVE Architecten b.v.
Je bent momenteel niet ingelogd. Hierdoor is het alleen mogelijk om meer informatie per e-mail op te vragen. Wil je liever gebeld worden of documentatie per post ontvangen?
Klik dan hier om in te loggen
.
Heb je nog geen account?
Maak dan hier een gratis account aan
.
Voornaam
Achternaam
E-mailadres
Opmerkingen
Bij iedere aanvraag worden relevante gegevens van jou gedeeld met het betreffende bedrijf. Meer hierover lees je in ons
privacybeleid
.
Ja, denk met me mee rond de
materialisering van mijn project
Meer projecten van HVE Architecten b.v.
De Jaarsmahof
HVE Architecten b.v.
De Visserijschool
HVE Architecten b.v.
Levels
HVE Architecten b.v.
Stadhuis Hengelo
HVE Architecten b.v.
Nieuwbouw Basisschool Het Volle Leven
HVE Architecten b.v.
Frank is een Binck
HVE Architecten b.v.
Transformatie The Student Hotel The Hague
HVE Architecten b.v.
Seniorencomplex De Componist
HVE Architecten b.v.
De Dijken 10
HVE Architecten b.v.
Sandtlaan Katwijk
HVE Architecten b.v.
Brede school Tesselseveld
HVE Architecten b.v.
De Raden, 195 koopwoningen
HVE Architecten b.v.
Meerkoetstraat Zwijndrecht
HVE Architecten b.v.
Centrumplan Alblasserdam, Cortgene in Alblasserdam
HVE Architecten b.v.
Restauratie Theater Diligentia
HVE Architecten b.v.
44 woningen Parkwijk
HVE Architecten b.v.
De Jaarsmahof
HVE Architecten b.v.
De Visserijschool
HVE Architecten b.v.
Levels
HVE Architecten b.v.
Stadhuis Hengelo
HVE Architecten b.v.
Nieuwbouw Basisschool Het Volle Leven
HVE Architecten b.v.
Frank is een Binck
HVE Architecten b.v.
Transformatie The Student Hotel The Hague
HVE Architecten b.v.
Seniorencomplex De Componist
HVE Architecten b.v.
De Dijken 10
HVE Architecten b.v.
Sandtlaan Katwijk
HVE Architecten b.v.
Brede school Tesselseveld
HVE Architecten b.v.
De Raden, 195 koopwoningen
HVE Architecten b.v.
Meerkoetstraat Zwijndrecht
HVE Architecten b.v.
Centrumplan Alblasserdam, Cortgene in Alblasserdam
HVE Architecten b.v.
Restauratie Theater Diligentia
HVE Architecten b.v.
44 woningen Parkwijk
HVE Architecten b.v.
Toon alles
Andere Projecten
5Tracks - inspirerende atriums met JUNG
Jung | Hateha B.V.
Totaalrealisatie nieuwe kantoorlocatie A. Vogel
Intermontage B.V.
Sweco Wonderwoods — Duurzame kantoorinrichting
Hal2
Gare Maritime, Brussel
WEBO
Sweco WTC Den Haag — Duurzame kantoorinrichting
Hal2
Uitbreiding Hotel Martin's Klooster, Leuven
OWA Benelux - Akoestiek & Design
RVS plinten kantoor Moore DRV
Storax
Nieuwbouw keuken Stark Hoogeveen
KeraStone
Transformatie van meubelzaak naar autobedrijf
Buro De Haan
Sluiseiland Arnhem
Houthandel van Dam
Waterfrontontwikkeling Westboro Beach - Ottawa(CA)
Streetlife B.V.
Samen bouwen met ruimte voor eigenheid
Innoblox
Ga naar het projecten-overzicht
Voor een optimale gebruikservaring plaatst Architectenweb functionele cookies. Wat de verschillende cookies precies doen leggen we uit in een
overzicht
. Cookies van social media kun je optioneel
aanzetten
.
Akkoord
Instellingen
Annuleren
OK
Sluiten
Doorgaan
Inloggen
Maak een gratis persoonlijk account aan
Feedback
Feedback
Wij horen graag jouw feedback. Laat je reactie achter en eventueel jouw e-mail adres.
Reactie
Verstuur