Projecten
Producten
Bedrijven
Vacatures
Agenda
Awards
Podcasts
more_horiz
Videos
Magazine
Favorieten
Profiel
Uitloggen
Abonneer je nu op onze nieuwsbrieven!
Abonneren
Nee, bedankt
Ja, denk met me mee rond de
materialisering van mijn project
Producten
Producttags
AAN
UIT
Seniorencomplex De Componist
9 juni 2014
0
0
0
0
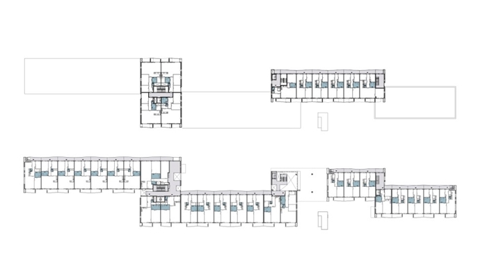
In het groene Wijndaelerplantsoen in Den Haag is in de zomer van 2013 het 55+ seniorencomplex De Componist opgeleverd. Het door HVE architecten ontworpen complex van 175 woningen bevat een mix van huurwoningen in de sociale en vrije sector en heeft ook een woongemeenschap met eigen ontmoetingsruimte. De nabijheid van zorgaanbieders, het gebruik van domotica en de inrichting van de woningen en gemeenschappelijke ruimten maken het seniorencomplex uitermate geschikt om als oudere heel lang zelfstandig te kunnen blijven wonen in een prettige woonomgeving.
Het architectonisch concept bestaat uit verschillende bouwvolumes, die qua dimensies en positie van elkaar verschillen. De compositie van deze volumes levert een gevarieerd beeld op langs de sportvelden aan de ene zijde en het bos aan de andere zijde van het complex. De bouwvolumes zijn architectonisch helder vormgegeven door middel van kaders, uitgevoerd in groengrijze leisteen. Binnen deze kaders zijn de balkons, galerijen en gevels gesitueerd.
Vanaf de kant van de sportvelden blijft het bos zichtbaar, doordat de kruinen van de bomen boven de lagere bouwvolumes uit steken. Een hoge centrale poort maakt een openbare voetgangersroute door het complex mogelijk en geeft op straatniveau direct doorzicht naar het boomrijke deel van het plantsoen. De openbare looproute vormt tevens de ontsluiting van het complex met centraal op de route de poort en een openbaar plein. Aan dit plein zijn de hoofdentrees van de diverse gebouwdelen gesitueerd. Deze poort is tevens een openbaar verblijfsgebied, dat verlicht wordt door lichtvlakken in het plafond en de wanden.
De entreepartijen, de openingen in de leistenen kaders en andere bijzondere onderdelen in het plan zijn geaccentueerd met koperkleurig zetwerk, die van grote afstand herkenbaar zijn. Deze fungeren als oriëntatiepunten in het project, die menselijke schaal en maat geven aan de bouwvolumes. De groengrijze leien en de aardetinten plint geven het plan een natuurlijke uitstraling, waardoor deze moeiteloos opgaat in de groene omgeving van het Wijndaelerplantsoen.
Stel jezelf kort voor! Dan weet het betreffende bedrijf wie hun model gedownload heeft.
Wil je niet bij elke download jouw gegevens in hoeven voeren?
Klik dan hier om in te loggen
.
Heb je nog geen account?
Maak dan hier een gratis account aan
.
Voornaam
Achternaam
E-mailadres
Downloaden
Wanneer je modellen downloadt op Architectenweb.nl worden relevante gegevens van jou – zoals jouw naam en e-mailadres – met het betreffende bedrijf gedeeld. Meer hierover lees je in ons
privacybeleid
.
Locatie
HVE Architecten b.v.
Neem contact op
Projectdata
Staat van realisatie
Voltooid
Start bouw
2013
Plaats
Den Haag
Bruto m
2
27000
m
3
81000
Neem contact op met
HVE Architecten b.v.
Je bent momenteel niet ingelogd. Hierdoor is het alleen mogelijk om meer informatie per e-mail op te vragen. Wil je liever gebeld worden of documentatie per post ontvangen?
Klik dan hier om in te loggen
.
Heb je nog geen account?
Maak dan hier een gratis account aan
.
Voornaam
Achternaam
E-mailadres
Opmerkingen
Bij iedere aanvraag worden relevante gegevens van jou gedeeld met het betreffende bedrijf. Meer hierover lees je in ons
privacybeleid
.
Ja, denk met me mee rond de
materialisering van mijn project
Meer projecten van HVE Architecten b.v.
De Jaarsmahof
HVE Architecten b.v.
De Visserijschool
HVE Architecten b.v.
Levels
HVE Architecten b.v.
Stadhuis Hengelo
HVE Architecten b.v.
Nieuwbouw Basisschool Het Volle Leven
HVE Architecten b.v.
Frank is een Binck
HVE Architecten b.v.
Transformatie The Student Hotel The Hague
HVE Architecten b.v.
De Dijken 10
HVE Architecten b.v.
Hof van Ostade
HVE Architecten b.v.
Sandtlaan Katwijk
HVE Architecten b.v.
Brede school Tesselseveld
HVE Architecten b.v.
De Raden, 195 koopwoningen
HVE Architecten b.v.
Meerkoetstraat Zwijndrecht
HVE Architecten b.v.
Centrumplan Alblasserdam, Cortgene in Alblasserdam
HVE Architecten b.v.
Restauratie Theater Diligentia
HVE Architecten b.v.
44 woningen Parkwijk
HVE Architecten b.v.
De Jaarsmahof
HVE Architecten b.v.
De Visserijschool
HVE Architecten b.v.
Levels
HVE Architecten b.v.
Stadhuis Hengelo
HVE Architecten b.v.
Nieuwbouw Basisschool Het Volle Leven
HVE Architecten b.v.
Frank is een Binck
HVE Architecten b.v.
Transformatie The Student Hotel The Hague
HVE Architecten b.v.
De Dijken 10
HVE Architecten b.v.
Hof van Ostade
HVE Architecten b.v.
Sandtlaan Katwijk
HVE Architecten b.v.
Brede school Tesselseveld
HVE Architecten b.v.
De Raden, 195 koopwoningen
HVE Architecten b.v.
Meerkoetstraat Zwijndrecht
HVE Architecten b.v.
Centrumplan Alblasserdam, Cortgene in Alblasserdam
HVE Architecten b.v.
Restauratie Theater Diligentia
HVE Architecten b.v.
44 woningen Parkwijk
HVE Architecten b.v.
Toon alles
Andere Projecten
Onderwijsgebouw Aurora, Wageningen
WEBO
Sandwichpanelenwand hygiënische afbouw
Sentho B.V.
Transformeerbare vergaderruimtes in HNK Amsterdam
BREEDVELD mobiele wandsystemen
Complete buiteninrichting kantooromgeving
Falco B.V.
TopAccess Dakluik bij Porsche Service Factory
Staka Dakluiken
Nieuwbouw villa Tegenbosch, Eindhoven, Noord-Braba
van Os Architecten
Moderne villa Alkmaar
BNLA architecten
Appartementencomplex in Purmerend
SSAB Swedish Steel BV
Office Winhov over project Pulse met Archicad
KUBUS | Specialist in Archicad
Nieuwbouw moderne bungalow, Prinsenbeek, Noord-Bra
van Os Architecten
Verbouwing villa Ruitersbos, Breda, Noord-Brabant
van Os Architecten
Nieuwbouw schuurwoning, Oosterhout, Noord-Brabant
van Os Architecten
Ga naar het projecten-overzicht
Voor een optimale gebruikservaring plaatst Architectenweb functionele cookies. Wat de verschillende cookies precies doen leggen we uit in een
overzicht
. Cookies van social media kun je optioneel
aanzetten
.
Akkoord
Instellingen
Annuleren
OK
Sluiten
Doorgaan
Inloggen
Maak een gratis persoonlijk account aan
Feedback
Feedback
Wij horen graag jouw feedback. Laat je reactie achter en eventueel jouw e-mail adres.
Reactie
Verstuur