Projecten
Producten
Bedrijven
Vacatures
Agenda
Awards
Podcasts
more_horiz
Videos
Magazine
Thema's
Favorieten
Profiel
Uitloggen
Abonneer je nu op onze nieuwsbrieven!
Abonneren
Nee, bedankt
Ja, denk met me mee rond de
materialisering van mijn project
Dijkwoningen
Copyright: BRTArchitecten
Dijkwoningen
Copyright: BRTArchitecten
Dijkwoningen
Copyright: BRTArchitecten
Dijkwoningen
Copyright: BRTArchitecten
Terpwoningen
Copyright: BRTArchitecten
Terpwoningen
Copyright: BRTArchitecten
Terpwoningen
Copyright: BRTArchitecten
Terpwoningen
Copyright: BRTArchitecten
Stolpwoningen
Copyright: BRTArchitecten
Stolpwoningen
Copyright: BRTArchitecten
BRTArchitecten onderzoekt of in traditioneel polderlandschap subtiel woningbouw ingevoegd kan worden
3 december 2025, 10:45
Kan in het traditionele Noord-Hollandse en Friese landschap, met de landschappelijke en bouwkundige elementen die daarbij horen, subtiel woningbouw ingevoegd worden? Dat onderzocht
BRTArchitecten
in opdracht van Stichting Architecten Werkgemeenschap Tauber. Het bureau kwam tot drie nieuwe, landschappelijke woonvormen: in een dijk, op een terp en in een stolp.
Het debat over woningbouw is sterk gericht op de verdichting en uitbreiding van het bestaand stedelijk gebied. Daar liggen goede redenen aan ten grondslag, erkent BRTArchitecten, maar welke kansen liggen daarbuiten? Het blijft volgens het bureau zinvol om ook alternatieven te blijven onderzoeken. Kan het open landschap tegelijkertijd behouden én geactiveerd worden?
De aanname en verwachting bij het ontwerpend onderzoek was dat er in het Noord-Hollandse en Friese landschap met haar kenmerkende stolpboerderijen, terpen en dijken veel inspiratie is te vinden voor een andere kijk op wonen. Met het verleggen van de focus op dit specifieke onderdeel van de architectuurgeschiedenis en het landschap ontstaat ook direct de vraag hoe in dit weidse, uitgestrekte en door velen gekoesterde landschap dan nieuwbouw geïntegreerd kan worden. Wat zijn de bouwkundige mogelijkheden en waar liggen de grenzen?
Wonen op het platteland
Wonen op het platteland, ongeacht of zich dit in Noord-Holland of Friesland bevindt, is vooral voorbehouden aan "avonturiers die afgelegen in de polder willen wonen, op de fiets stappen en, al dan niet elektrisch, met tegenwind naar school en werk trappen. Dit zijn niet de doorsnee locaties. Dit is wonen in Noord-West en niet in Zuid-Oost", zo stellen de architecten met gevoel voor understatement vast.
Zeker is dat elke vorm van toe te voegen architectuur zich in deze context dient te verhouden tot het landschap, de lokale bouwtraditie en tot de ruimtelijke kwaliteit die niet zelden een beschermde ruimtelijke status heeft. Het ontwerpend onderzoek door BRTArchitecten leverde drie typen woongebouwen, alsook een woonmentaliteit op.
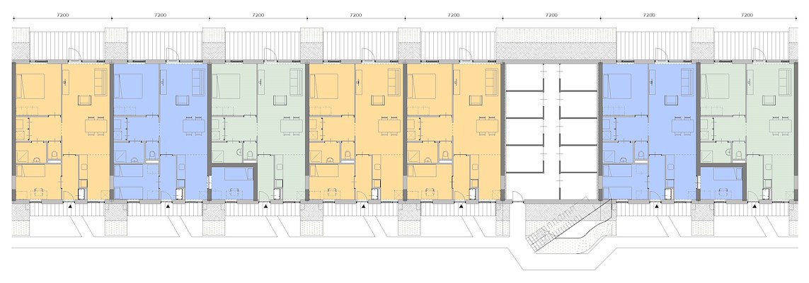
Dijk van een Woning
Dijken in het Nederlands landschap zijn herinneringen aan de kunstmatige conditie van ons land en tevens symbolen van het ingrijpen in eerdere landschappelijke situaties. Door de eeuwen zijn deze dijken ruimtebepalende lijnen en afbakeningen in het landschap geworden. BRTArchitecten heeft deze landschappelijke vanzelfsprekendheid als uitgangspunt genomen voor een nieuwe landschappelijke architectuur. De dijk is daarbij als stijlvorm ingezet. Het levert, volgens de architecten, woningbouw op die visueel en cultuurhistorisch aansluit bij de bestaande landschappelijke ruimte.
Het woningtype heeft als voordeel dat er aan beide zijden vrij uitzicht is over de polder. Een Dijk van een Woning heeft zo de kwaliteit van een doorzonwoning met ongekende zichtlijnen. De woningen zijn bereikbaar via een dijktrap waar ook de fietsenstallingen zijn ondergebracht. De doorzonwoningen met een vast stramien kunnen, al naar gelang de behoefte, als twee-, drie-, of vierkamerwoningen aangeboden worden. Duurzaam- en natuurinclusief bouwen is inherent aan deze bouwvorm en uitvoering.
Woonheuvel De Terp
Bij het ontwikkelen van het tweede type werd de vraag gesteld hoe hoog een landschap boven zichzelf mag uitsteken. Wierden, warften of terpen zijn van oudsher kunstmatige heuvels in het landschap die inmiddels een natuurlijk aanzien hebben gekregen. Terpen zijn ook kenmerkend voor het Friese en Groningse landschap. Nog voor de dijken en duinen ons beschermden tegen overstromingen, vormden terpen een toevluchtoord. Hoogtes varieerden daarbij van 2 tot 8 meter en met een diameter tot wel 350 meter waren terpen forse ingrepen in het landschap.
Woonheuvel De Terp is een adaptatie van die oorspronkelijke vorm. Het biedt ruimte aan minimaal 21 twee-, drie en vierkamerwoningen en heeft een verborgen parkeerruimte. Terpen worden in het onderzoek bovendien herkend symbolen van saamhorigheid. De woonheuvel anno 2025 zou dus in het verlengde daarvan als collectieve woonvorm of woongemeenschap kunnen fungeren. Waar collectief wonen vaak als een urbane woonvorm wordt gezien, biedt het concept ook buiten de stad veel kansen. De onderzoekers werpen wel de vraag op of het acceptabel is om nieuwe terpen aan te leggen.
Stolpwoningen
Het derde type is gebaseerd op de stolpboerderij. Dit type ontstond halverwege de 16
e
eeuw in West-Friesland uit de behoefte om grotere hoeveelheden graan en hooi inpandig op te slaan. In de plaats van de traditionele hooiberg werd een hoge schuur gebouwd. De grootte van de boerderij werd bepaald door de hoeveelheid land en het aantal koeien.
Ondanks het grootte bouwvlak van 20 bij 20 meter van de nieuwe woonvariant van de stolpboerderij oogt deze volgens de architecten kleiner en gemoedelijker door de typische lage gootlijn en de lage gevel. Dit type staat als voorheen solitair op het erf en in het groen. Parkeren vindt plaat ín de stolp. Op de plek waar ooit koeien stonden komen dan nu de 'heilige koeien', grapt het burau. Ook bij dit type is het uitzicht vanuit de 12 woningen een sterke troef.
Trefwoorden
brtarchitecten
landschappelijk wonen
noord-holland
landschap
tauber
friesland
Locatie
Best gelezen
1
PSV presenteert plannen voor uitbreiding Philips Stadion
vrijdag, 20 maart
2
Luxe appartementengebouw naast klooster Etten-Leur door Studio AAAN klaar
donderdag, 19 maart
3
Houten Stelthuis van Woonpioniers is aardbevings- en klimaatbestendig
woensdag, 18 maart
4
KAAN Architecten en De Zwarte Hond winnen tender voor Area 19 TU Eindhoven
vrijdag, 20 maart
5
BureauVanEig verbetert uitstraling Haagse rijtjeswoningen bij verduurzaming
dinsdag, 17 maart
Gerelateerde nieuwsberichten
Uitbreiding Hogeschool Leiden 'ontbrekend puzzelstukje' binnen complex
7 juli 2023
Noord-Holland ziet woningbouw toenemen, maar tempo moet omhoog
5 december 2025
Congres landschappelijk wonen
10 mei 2012
Oppositie Noord-Holland vindt plan landelijk gebied ‘slappe hap’
4 februari
Hogeschool InHolland realiseert nieuw hoofdgebouw op campus Alkmaar
18 maart
Uitbreiding Hogeschool Leiden 'ontbrekend puzzelstukje' binnen complex
7 juli 2023
Noord-Holland ziet woningbouw toenemen, maar tempo moet omhoog
5 december 2025
Congres landschappelijk wonen
10 mei 2012
Oppositie Noord-Holland vindt plan landelijk gebied ‘slappe hap’
4 februari
Hogeschool InHolland realiseert nieuw hoofdgebouw op campus Alkmaar
18 maart
Toon alles
Andere nieuwsberichten
Uitbreiding van New Museum door OMA officieel geopend
2 uur geleden
Het nieuwe volume, dat tegen het door SANAA ontworpen museumgebouw uit 2002 is geplaats, biedt onder meer ruimte aan nieuwe expositiezalen, educatiefaciliteiten en een eigen onderkomen voor de culturele ‘incubator’ van het museum NEW INC.
Vernieuwde Welstandsnota Rotterdam staat in teken van Omgevingswet, duurzaamheid en gebruiksgemak
Vandaag, 09:15
De Rotterdamse Welstandsnota uit 2012 is geactualiseerd. Daarbij waren nieuwe inzichten en regelgeving, alsmede het gebruiksgemak voor gemeente en aanvragers bepalend.
PSV presenteert plannen voor uitbreiding Philips Stadion
20 maart, 3:37
De Eindhovense club wil de capaciteit van zijn onderkomen opschroeven met maximaal 25.000 bezoekers. Om dit te bewerkstelligen, komt er een nieuwe schil rond het stadion waarin een derde ring is opgenomen.
Rijkswaterstaat staakt renovatie markante houten Krùsrak-brug in Sneek
20 maart, 11:32
Tijdens de renovatie werd duidelijk dat de constructieve veiligheid van de brug niet langer kan worden verzekerd, laat RWS weten. De uit 2008 stammende Krúsrak-brug over de rijksweg 7 is ontworpen door Onix en Archterbosch Architecten.
ACM: meer onderzoek nodig naar overname bouwer VolkerWessels
59 minuten geleden
Volgens de toezichthouder zijn er risico's rond de concurrentie door de overname in de grond-, weg- en waterbouw.
Boekholt schrapt wet die voorrang statushouders stopt
4 uur geleden
De minister werkt aan een alternatieve wet, die pas in werking treedt als er genoeg mogelijkheden zijn om statushouders aan een huis te helpen.
Friesland brengt duizenden karakteristieke boerderijen in kaart
20 maart, 2:16
Door alle informatie over de voor het landschap kenmerkende gebouwen op één plek te brengen, moet het makkelijker worden om ze te behouden.
ING: bijna de helft van de huiseigenaren stelt verduurzaming uit
20 maart, 12:18
De meeste mensen vinden dat de overheid te weinig doet om dit te stimuleren.
Rekenkamer kraakt resultaten EU-innovatiefonds voor verduurzaming
20 maart, 9:25
Het Innovatiefonds van de Europese Unie levert veel minder resultaat op dan verwacht op het gebied van verduurzaming en innovatie.
Provincie schrapt beoogde locaties windturbines in Groene Hart
19 maart, 1:35
De provincie had twaalf plekken op het oog, maar dat leidde tot maatschappelijk en politiek verzet.
Ga naar het nieuws-archief
JaapJan Berg
Redacteur
0
0
0
0
Voor een optimale gebruikservaring plaatst Architectenweb functionele cookies. Wat de verschillende cookies precies doen leggen we uit in een
overzicht
. Cookies van social media kun je optioneel
aanzetten
.
Akkoord
Instellingen
Annuleren
OK
Sluiten
Doorgaan
Inloggen
Maak een gratis persoonlijk account aan
Feedback
Feedback
Wij horen graag jouw feedback. Laat je reactie achter en eventueel jouw e-mail adres.
Reactie
Verstuur