Projecten
Producten
Bedrijven
Vacatures
Agenda
Awards
Podcasts
more_horiz
Videos
Magazine
Favorieten
Profiel
Uitloggen
Abonneer je nu op onze nieuwsbrieven!
Abonneren
Nee, bedankt
Ja, denk met me mee rond de
materialisering van mijn project
Copyright: Mooneye
Copyright: Mooneye
Copyright: Mooneye
Situatie
Copyright: West Architecten
Doorsnede
Copyright: West Architecten
Ortho buitenzijde
Copyright: West Architecten
Ortho binnenzijde
Copyright: West Architecten
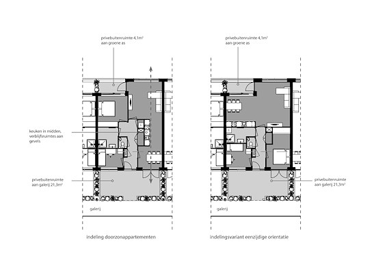
Indelingsvarianten
Copyright: West Architecten
Appartementengebouw op plek oude basisscholen in Mijdrecht
29 oktober 2025, 10:54
Op de plek van enkele gesloopte basisscholen in Mijdrecht verrijst een nieuw gebouw met dertig appartementen. Het complex, dat is ontworpen door
West Architecten
in samenwerking met
Appel Architecten
, bestaat uit verschillende typen appartementen. In het ontwerp is veel aandacht besteed aan de relatie met de omgeving en voorwaarden scheppen voor sociale ontmoeting.
Het project Hart van Hofland wordt gerealiseerd op de plek van enkele voormalige basisscholen in de wijk Hofland-Zuid, die zijn vertrokken naar een ander onderkomen in Mijdrecht. Het plan omvat woningen in verschillende groottes, van studio’s van 40 m² tot een penthouse van 110 m². Ook komt er een collectieve ruimte die flexibel te gebruiken is.
De plint vormt een belangrijke schakel tussen het gebouw en de omgeving. De woningen op het maaiveld zijn ontworpen met dubbele deuren en grote raampartijen. Geïntegreerde gevelbanken en het gevelgroen moeten de bewoners en andere mensen uitnodigen om de groene buitenruimte voor het gebouw te gaan gebruiken.
Naast de hoofdentree is een gemeenschappelijke ruimte bedacht. Deze ruimte is flexibel te gebruiken voor bijvoorbeeld feesten en partijen, als thuiswerkplek of als pakketpunt. Ook kunnen hier activiteiten voor de buurt worden georganiseerd. Door de centrale ligging kan ter hoogte van de collectieve ruimte ook een terras worden gemaakt.
De woningen zijn bestemd voor verschillende doelgroepen, al ligt de focus op senioren. Veel appartementen zijn tweezijdig georiënteerd en beschikken over buitenruimtes aan beide kanten. Voor de doorzonappartementen is gekozen voor een brede beukmaat, waardoor ze flexibel in te delen zijn. Bewoners kunnen kiezen uit meerdere indelingsvarianten. Op de verdiepingen liggen de woon- en slaapkamers van de appartementen aan de gevel, met zicht op de buitenruimte aan de voorkant.
Het project wordt ontwikkeld door BM van Houwelingen, dat de tender van de gemeente De Ronde Venen samen met West Architecten won. De bouw start naar verwachting in de eerste helft van 2027.
Trefwoorden
appel architecten
woongebouw
appartementengebouw
west architecten
mijdrecht
woningbouw
bm van houwelingen
Locatie
Best gelezen
1
AM en Amvest zoeken architecten voor herontwikkeling Draka-terrein
dinsdag, 19 mei
2
Woningbouwproject KAAP langs het IJ in Amsterdam voltooid
dinsdag, 19 mei
3
Renovatie station Leeuwarden door Movares afgerond
woensdag, 20 mei
4
Dam & Partners ontwerpt multifunctioneel gebouw in Schinkelhaven
dinsdag, 19 mei
5
Utrechtse flats gerenoveerd volgens 'chassis-carrosseriemethode'
donderdag, 21 mei
Gerelateerde nieuwsberichten
Groosman presenteert ontwerp gezondheidscentrum in Mijdrecht
24 oktober 2025
Andere nieuwsberichten
SOME architects presenteert resultaten van onderzoek naar woonwensen 55-plussers
Gisteren, 16:09
Publicatie ‘Woontitanen’ biedt inspiratie en handvatten om kloof tussen vraag en aanbod in woningaanbod voor 55-plussers te dichten.
In beeld: inschuiven dakdeel van 2,4 miljoen kilo over Vivaldipassage
Gisteren, 14:43
Bij station Amsterdam Zuid vond afgelopen week een bijzondere inschuifoperatie plaats. Ten oosten van het station werd een nieuw dakdeel met een gewicht van 2,4 miljoen kilo over de toekomstige Vivalipassage geschoven.
Brug van hergebruikte materialen over Papaverkanaal in Buiksloterham
Gisteren, 13:15
Knipscheer Infra en Rademacher / De Vries Architecten hebben de aanbesteding gewonnen voor een brug van hergebruikte materialen in de Amsterdamse wijk Buiksloterham.
OZ transformeert kantoorgebouw achter voormalig hoofdkantoor Shell tot Ypsilon Park
Gisteren, 10:41
OZ transformeert een kantoorgebouw uit de jaren zeventig aan de Wassenaarseweg in Den Haag tot een woongebouw. Ypsilon Park bestaat uit 79 appartementen en penthouses, die in grootte variëren van 75 tot 280 vierkante meter.
Amsterdam wil woningbezitters weren uit sociale huurwoning
Gisteren, 12:23
Het stadsbestuur wil daarmee duidelijk maken dat het onwenselijk is dat huizenbezitters sociale huurwoningen bezet houden.
Mogelijk minder ruimte nodig voor uitbreidingsplannen Moerdijk
Gisteren, 09:47
Het dorp Moerdijk zou in dat geval kunnen blijven bestaan, aldus de gemeente.
Museum Rotterdam ontvangt sleutels van Citykerk Het Steiger
21 mei, 3:01
Citykerk Het Steiger, een wederopbouwmonument in de Rotterdamse binnenstad, ondergaat in de komende jaren een transformatie naar onderkomen voor Museum Rotterdam, alsook naar woon- en kantoorruimte.
Naturalis: Nederlandse natuur verbetert, maar niet snel genoeg
21 mei, 1:50
Het gaat beter met de natuur in Nederland, maar niet snel genoeg om aan afspraken te voldoen.
Bouw van flexwoningen valt tegen, ziet Rekenkamer
21 mei, 9:50
De 948 miljoen euro die sinds 2021 opzij is gezet om meer flexwoningen te bouwen, is pas deels uitgegeven.
Binnenhof al bij voorbaat te klein voor alle organisaties
20 mei, 2:47
Nog voordat de verbouwing van het Binnenhof klaar is, is het complex te klein voor alle organisaties die erin moeten.
Ga naar het nieuws-archief
Ronnie Weessies
Redacteur
1
0
0
0
Voor een optimale gebruikservaring plaatst Architectenweb functionele cookies. Wat de verschillende cookies precies doen leggen we uit in een
overzicht
. Cookies van social media kun je optioneel
aanzetten
.
Akkoord
Instellingen
Annuleren
OK
Sluiten
Doorgaan
Inloggen
Maak een gratis persoonlijk account aan
Feedback
Feedback
Wij horen graag jouw feedback. Laat je reactie achter en eventueel jouw e-mail adres.
Reactie
Verstuur