Abonneer je nu op onze nieuwsbrieven!
Abonneren
Nee, bedankt
Ja, denk met me mee rond de
materialisering van mijn project
Copyright: Max Hart Nibbrig
Copyright: Max Hart Nibbrig
Copyright: Max Hart Nibbrig
Copyright: Max Hart Nibbrig
Copyright: Max Hart Nibbrig
Copyright: Max Hart Nibbrig
Copyright: Max Hart Nibbrig
Copyright: Max Hart Nibbrig
Copyright: Max Hart Nibbrig
Copyright: Max Hart Nibbrig
Copyright: Max Hart Nibbrig
Copyright: Max Hart Nibbrig
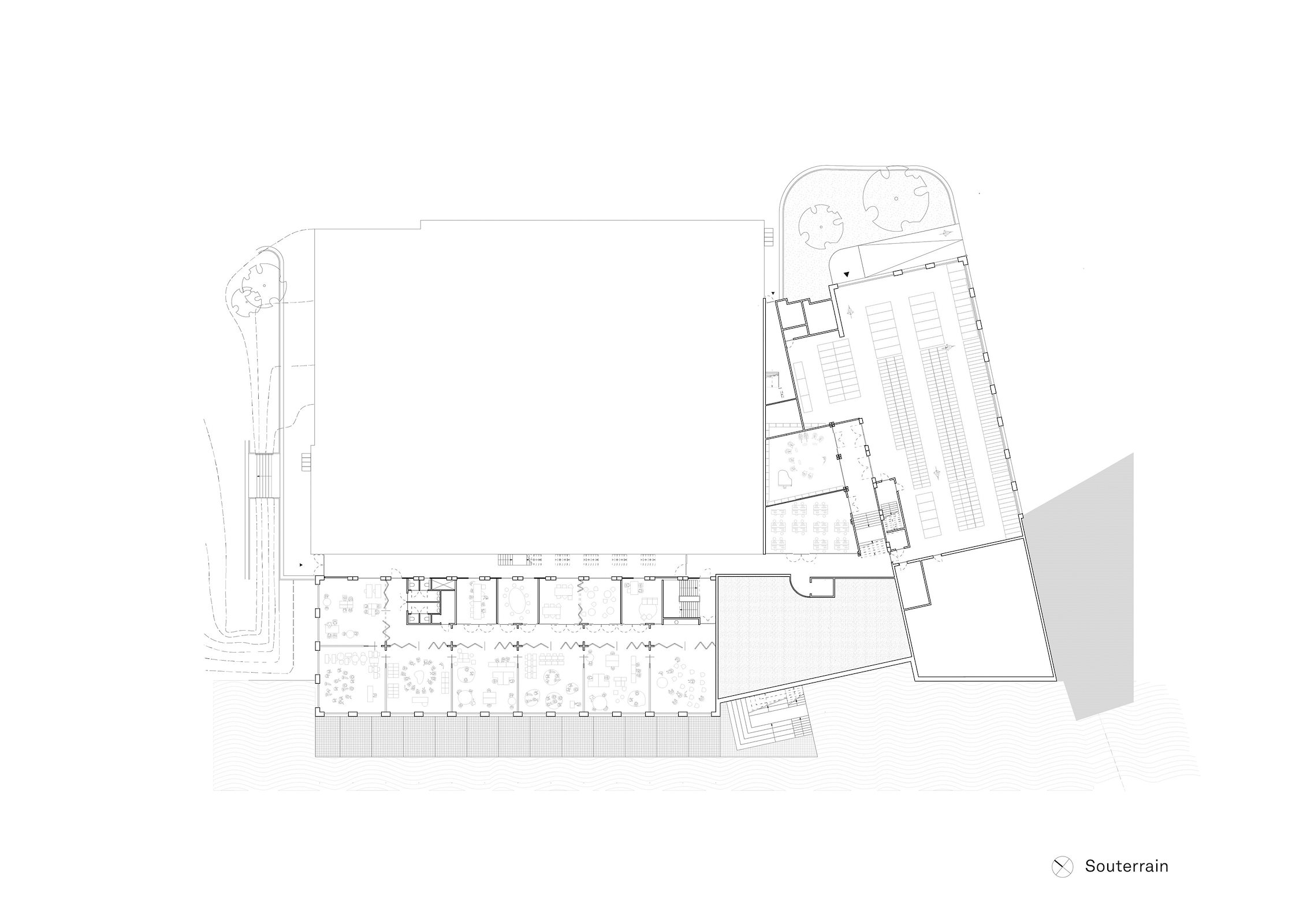
Souterrain
Copyright: Studio Ard Hoksbergen
Begane grond
Copyright: Studio Ard Hoksbergen
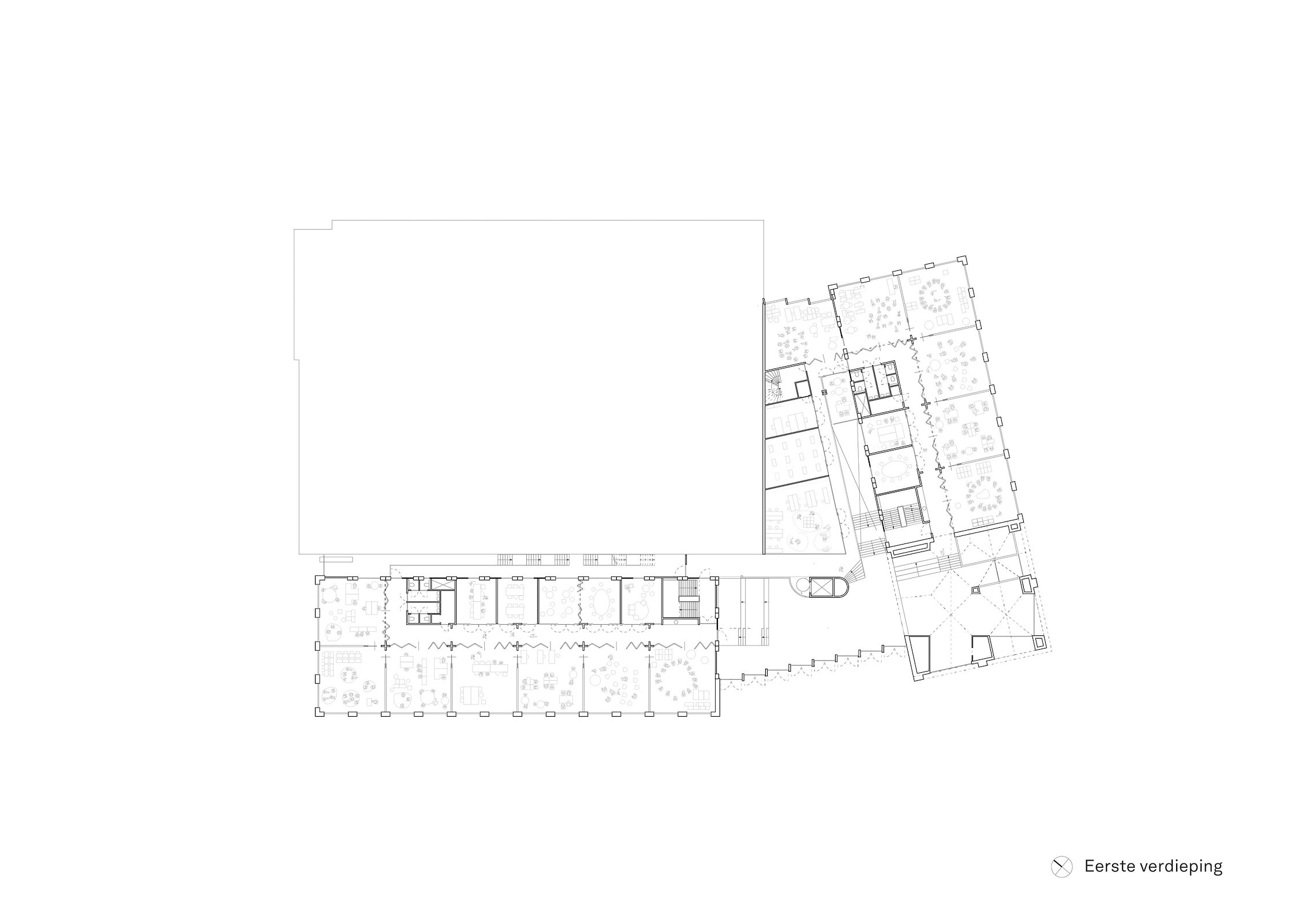
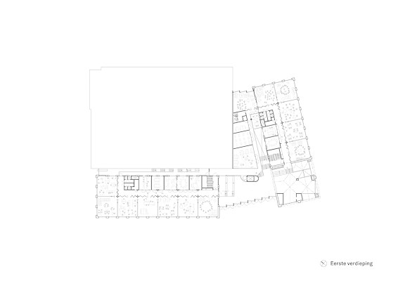
Eerste verdieping
Copyright: Studio Ard Hoksbergen
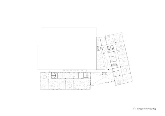
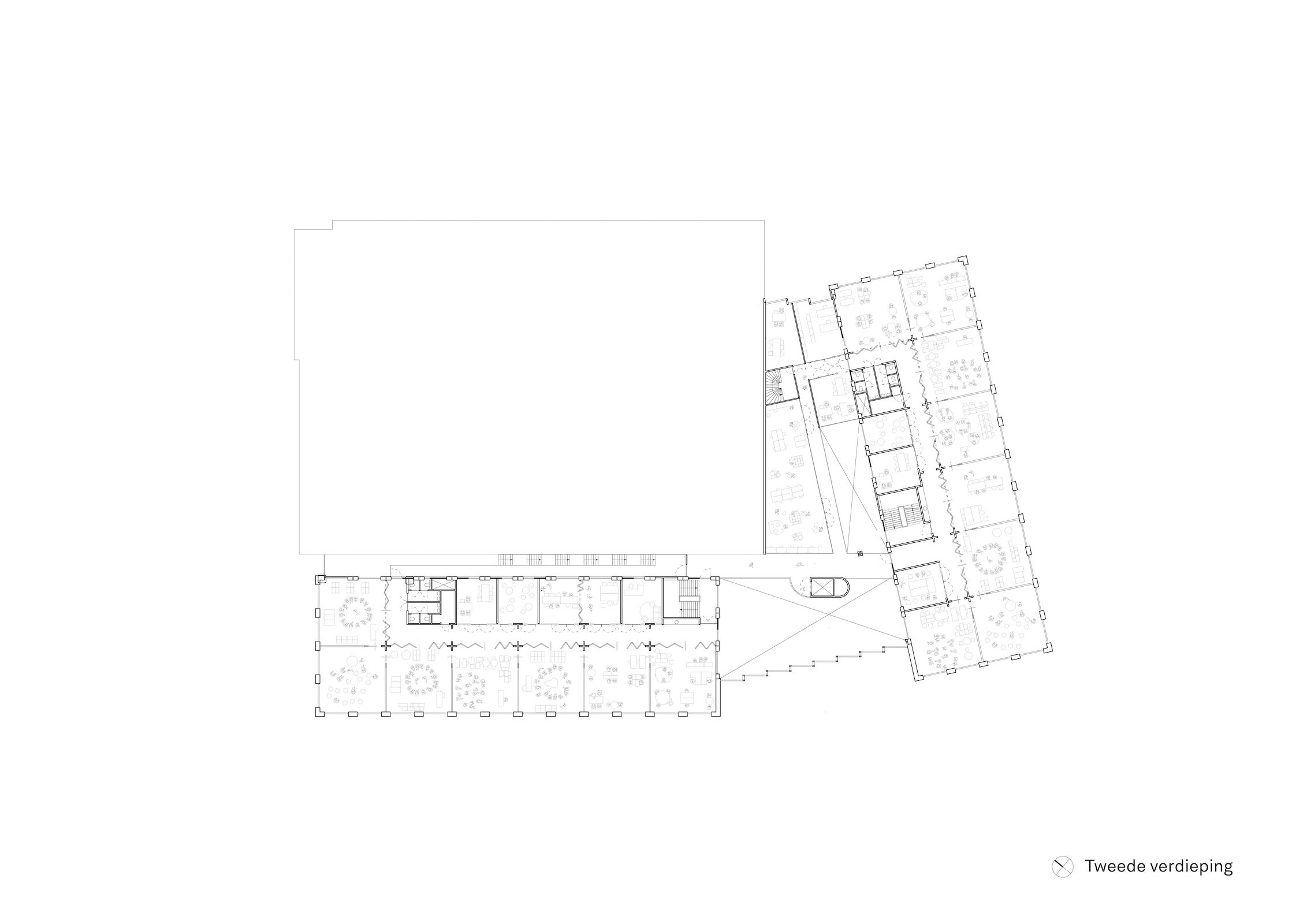
Tweede verdieping
Copyright: Studio Ard Hoksbergen
Doorsneden
Copyright: Studio Ard Hoksbergen
Situatie
Copyright: Studio Ard Hoksbergen
Oude gebouw Xplore Agora, Joop van Stigt
Copyright: Xplore Agora
Studio Ard Hoksbergen herkent en vertaalt wensen van Xplore Agora
De leerlingen van de nieuwe Xplore school in de wijk Elzenhagen in Amsterdam-Noord kunnen tevreden zijn. Geheel in de lijn van het type onderwijs dat hier gegeven wordt mochten zij hands-on meedenken met het ontwerp van hun nieuwe school. Studio Ard Hoksbergen verwerkte hun input in een zeer overtuigend en gelijktijdig eigenzinnig ontwerp. Dat wordt direct duidelijk bij het betreden van de school via een donkerrode entree waarvan het hoekige, gefacetteerde dak deels de aula insteekt. Ard Hoksbergen creëerde zo een warme, welkome ontvangst gevolgd door een tweeëneenhalve verdieping hoge aula (10 meter) die ruimtelijk, organisatorisch en conceptueel klopt. Het openen van het gebouw en het welkom heten in een school die meer wil zijn dan een verzameling lokalen is hier met een ruimtelijk gebaar zeer overtuigend samengebracht.
Dictaat
De aula is door die hoogte, met de zichtbaar gehouden houten spanten, in de eerste plaats indrukwekkend. Aan een zijde zijn, via een subtiel getande glazen gevel met warmtewerend glas, de naastgelegen sloot en de atletiekbaan van de vereniging Atos te zien. Maar de ruimte overtuigt ook doordat Ard Hoksbergen er een in beginsel complexe ruimtelijke opgave mee heeft opgelost. Hokbergen werd bij de start van zijn ontwerp namelijk geconfronteerd met een, voor een schoolgebouw, lastige L-vormige kavel. Een conditie die voor de architect toch wat als een dictaat aanvoelde. Hoksbergen haalt daarbij een uitspraak van grafisch ontwerper Irma Boom aan dat elk project een gevangenis is waar je uit wilt ontsnappen. Het gebouw in Elzenhagen moest vrij letterlijk om de eerder gebouwde nieuwe sporthal van LIAG (2023) heen gevouwen worden. Daarmee kon het stedenbouwkundig plot, waarop twee afzonderlijke bestemmingen gecombineerd zijn, gecompleteerd worden.
Nucleus
Hoksbergen bedacht de aula, naast ruimtelijk entree, als een schakelpunt en verbindingsruimte van twee ‘weglopende’ vleugels waarin lesruimtes (die hier coachgroepen heten) op twee niveaus langs lichtstraten zijn gesitueerd. Aan de aula grenzen, naast een keuken (die tevens maker space is) en een werkplek voor de conciërge, in de oksel van de twee vleugels ook de liftkolom en vijf maker spaces: tech-lab, media-lab, stilteruimte, muziekstudio en atelier. Alle voorzien van glazen binnengevels waardoor er een ongehinderd zicht is op de activiteiten in de aangrenzende ruimtes. Hier en daar is een open kast geplaatst waarin de resultaten uit maker space en atelier tentoongesteld kunnen worden. Vanuit de aula is aan de zuidzijde van het gebouw ook nog een tribunetrap naar het aangrenzende water bereikbaar. Scholieren die hun fiets in de stalling onder het gebouw zetten komen eveneens via de aula de school binnen. Het is een detail, zo geeft Hoksbergen ruiterlijk toe, dat hij afkeek van het ontwerp van Ector Hoogstad voor het Hyperion Lyceum in Amsterdam-Noord.

Met deze ruimtelijke vormgeving en indeling heeft Hoksbergen de ruimtelijke puzzel meer dan opgelost. De aula is de vanzelfsprekende en onvermijdelijke nucleus van school en ontwerp geworden. Leerlingen komen hier aan in de school, passeren de ruimte op weg naar hun coachruimtes, eten er hun lunch en verblijven er om te werken of te simpelweg te hangen. Er zijn woonkamers die minder bieden.
Gebaar
De aula wordt gecompleteerd door een keuken die in een travee naast de entree is ondergebracht. Deze ruimte is eveneens voorzien van een donkerrood plafond dat is uitgevoerd als spanplafond dat aan alle horecacriteria (hygiëne, brandvertragend) voldoet. Dat de keuken niet alleen de scholieren en leerkrachten (die hier coaches heten) bedient, maar ook voorzien is van een uitgiftepunt verraadt de zorgvuldige en doordachte wijze waarop dit gebouw is ontworpen. Bij het uitgiftepunt kunnen voorbijgangers en bewoners van de nieuwe wijk bij tijd en wijle een ijsje, koffie of een andere snack bemachtigen. Het gebaar naar de buurt symboliseert, hoe bescheiden ook, de overtuiging van school en architect om dit schoolgebouw in te willen bedden in een nieuw wijk die sociaal nog in opbouw en ontwikkeling is. Dat de school, direct na de atletiekbaan en naast een nieuw aangelegde brug (2020) in de eveneens nieuwe Elzenhagensingel, de entree van de buurt markeert maakt het gebaar ongetwijfeld kansrijk. Zelfs bewoners wiens kinderen niet op deze schooi zitten kunnen er zo letterlijk even bij stil staan.
Gezond
In de beide vleugels zijn respectievelijk drie en twee deelscholen ondergebracht. De vleugels sluiten onder een niet haakse hoek aan op de aula en zijn structureel opgebouwd met een grid van 7,5 bij 7,5 meter met een vrije overspanning van 15 meter. In de vleugels zijn de trappenhuizen en op beide verdiepingen steeds drie coachgroepen te vinden. Deze ruimtes hebben alle glazen schuifdeuren naar de aangrenzende gang en er zijn afsluitbare doorgangen tussen de ruimtes onderling. Alle lokalen hebben draai-kiepramen in het bovenste raamvlak omwille van de doorvalbeveiliging. Bij het ontwerp is de leidraad voor Frisse Scholen toegepast die helpt bij het maken van energiezuinige en gezonde scholen. Naast de coachruimtes bevindt zich in beide gevels een lichtstraat die voorkomt dat de binnenzijde van het gebouw, grenzen aan de blinde achtergevel van de sporthal, te duister wordt. De lichtstraten worden gecombineerd gebruikt als extra trappenhuis, vluchtroute en werk- en overlegplekken voor de scholieren.
Kleurkeuzes
Naast het overheersende beton heeft Hoksbergen bij zijn kleurkeuze gekozen voor varianten van de ‘Bonte Grijzen’ van de Bossche School. Die terughoudend en soberheid van kleuren heeft veel te maken met de wijze van lesgeven op deze school en, vooral, met een speciaal aspect dat bij Xplore hoort. Leerlingen mogen namelijk hun eigen meubilair (tafel en stoel) meenemen. Een keuzevrijheid die, niet verrassend, leidt tot een redelijk ratjetoe waarbij een te expressief kleurenpalet in het architectonisch ontwerp wel achterwege kan blijven. Dat veel scholieren in het vorige gebouw van Xplore kozen voor een bepaald ontwerp hoogslaper met geïntegreerd bureau van een Zweedse meubelgigant, bracht Hoksbergen er overigens toe daarmee rekening te houden bij de plafondhoogte van de coachruimtes.
Buitengevel
Vooral in het interieur overheerst in belangrijke mate het gebruikte bouwmateriaal beton. Hoksbergen ziet het materiaal nu al bijna als een relikwie. Met de stormachtige ontwikkelingen op het gebied van duurzaam en circulair bouwmateriaalgebruik zou hij het gebouw nu zeker met minder of geen beton hebben ontworpen.

Ook de buitengevel is opgebouwd van prefabbeton waarin ingestorte, schuin doorgezaagde bakstenen voor een reliëf en kleur zorgen die contrasteren met de strakke en vlakke betonnen onderlaag. In de bovenste metselwerklaag, onder de dakrand, is een ander patroon toegepast in combinatie met slanke betonnen waterspuwers en nestkasten die voor een herhalend patroon zorgen. Daarboven bevindt zich op de hoek boven de entree ook nog een dakterras dat op termijn, wederom door de scholieren, mede wordt vormgegeven.
Aanbesteding
Studio Ard Hoksbergen heeft de Xplore school kunnen ontwerpen in weerwil van een aantal condities en voorwaarden die het aanbesteden van scholen sterk bepalen. Hoewel Hoksbergen zichzelf in 2019 nadrukkelijk als schoolontwerper op de kaart zette met zijn prijswinnende ontwerp voor de basisschool Veerkracht in Amsterdam-West voldeed het bureau feitelijk niet aan het criterium van een bepaald aantal gebouwde scholen in de afgelopen jaren.

Dat Hoksbergen toch mocht meedingen met deze aanbesteding is in belangrijke mate te danken aan Jeroen Geurst die gebiedssupervisor van de wijk Elzenhagen is. Geurst zorgde ervoor dat Hoksbergen werd toegevoegd aan de lijst met meedingende bureaus. Dat Hoksbergen als winnaar uit de bus kwam bevestigt vanzelfsprekend de kwaliteit van het ontwerp en de wijze waarop de architect de opgave en de wensen van de gebruikers heeft herkend en heeft weten te vertalen. De school opent mogelijke nieuwe deuren voor het bureau wat blijkt uit het feit dat Hoksbergen inmiddels ook de aanbesteding voor een middelbare school aan het Amsterdamse Plein ‘40-‘45 won.
Droom
Voor directeur Wijsman en zijn evenzo begeesterde collega’s is het gebouw een droom die werkelijkheid is geworden. Een droom die aanvankelijk zomaar een andere vorm en locatie had kunnen krijgen. Op deze locatie was eerder namelijk een technasium van andere school behorend tot dezelfde scholenstichting ZAAM gepland. Wijsman en drie andere initiatiefnemers zijn overtuigd van de onderwijsfilosofie van Xplore die zich afzet tegen traditionele en niet flexibele schoolsystemen. Hier wordt juist nadrukkelijk uitgegaan van de eigen motivatie en oriëntatie van leerlingen bij het verkennen van manieren en mogelijkheden van leren en het bepalen van hun leerweg. Bij die geboden vrijheid passen coaches, deelscholen, coachgroepen met een beperkt aantal leerlingen. Wat tot voor kort aan het schoolconcept ontbrak was een gebouw dat tailormade voor dit type onderwijs ontworpen was.
Toch was het schoolgebouw in Amsterdam-Noord, waar Xplore voorheen in gehuisvest was, wel degelijk uit enigszins vergelijkbaar hout gesneden. Het was niemand minder dan Joop van Stigt (1934-2011) die het gebouw in 1972 ontwierp voor de Sint Rosa Huishoudschool. In de kenmerkende structuralistische stijl bedacht Van Stigt een schoolgebouw waarin mensen (leerlingen en leraren) elkaar eenvoudig konden ontmoeten, waar een flexibele indeling mogelijk was en waar de binnen- en buitenruimte met elkaar verbonden waren. De erfgoedvereniging Heemschut, die het schoolgebouw kortgeleden voordroeg als een gemeentelijk monument, roemt verder het open karakter en het vele natuurlijke licht dat door de daklichten naar binnen komt. De oude meester had ongetwijfeld echo’s van bepaalde aspecten van zijn ontwerp herkend in de nieuwbouw van Studio Ard Hoksbergen.

De Xplore school wordt half november 2025 officieel geopend.

Gerelateerde nieuwsberichten

Gerelateerde evenementen

Andere nieuwsberichten

'Zwevend huis' naar ontwerp van Benthem Crouwel in Amersfoortse wijk

1 uur geleden

Nog drie dagen om jouw suggestie voor de Architect van het Jaar 2026 in te sturen

2 uur geleden

Van Eesteren Museum organiseert expositie over architect Afaina de Jong

Gisteren, 15:24

Schoonhovens College van Geurst & Schulze architecten stimuleert vakmanschap, ontmoeting en leerprestaties

Gisteren, 14:29

RVO constateert laagste groei windenergie op land in jaren

1 uur geleden

Alsemgeest Design & Build en Ferm Architecten gaan verder als één bureau

Gisteren, 13:42

Onderzoek: Nederlander wil verduurzamen, maar vindt het duur

Gisteren, 12:26

Geld voor eigen sociale initiatieven bewoners aardbevingsgebied

Gisteren, 10:33

Tachtig Nederlandse tuindorpen behandeld in nieuwe atlas

11 mei, 4:33

Rapport: veilig Bonaire kostbaar, maar nietsdoen is veel duurder

11 mei, 10:48
JaapJan BergOnafhankelijk onderzoeker, criticus en moderator
KUBUS | Specialist in Archicad
SAPA
Reynaers Aluminium Nederland
Jansen
SAB-profiel bv
Aliplast Aluminium Systems
Kingspan Light & Air
ALUCOBOND®
Caparol
Tarkett BV
Kawneer
Grohe Nederland B.V.
Malaysian Timber Council
OCS | Office Cabling Systems
Swisspearl Nederland
Forster Nederland N.V.
VELUX Commercial Benelux B.V.
Sempergreen
Houthandel van Dam
Aluprof Nederland BV
QbiQ Wall Systems
Forbo Flooring
Schüco Nederland
Cedral
Sto Isoned bv
Triflex bv
Gorter Luiken BV
wienerberger
DUCO Ventilation & Sun Control
BEWI IsoBouw
ROCKWOOL B.V.
Mview+
Rockfon (ROCKWOOL B.V.)
Gira Nederland B.V.
Kingspan Geïsoleerde Panelen
GEZE Benelux  B.V.
Renson
Metaglas Groep
ABB | Busch-Jaeger
Jung | Hateha B.V.
Knauf B.V.
Saint-Gobain Glass Benelux
Faay Vianen B.V.
objectflor
Boon Edam Nederland B.V.
Hunter Douglas Architectural
VOLA Nederland BV
Forbo Eurocol Nederland B.V.
EQUITONE gevelpanelen
Holonite B.V.
Kronospan
Tata Steel Colorcoat®
Architectenweb
Over ons
Contact

© 2002 - 2026 Architectenweb BV / Voorwaarden / Privacy / Disclaimer / Sitemap
Annuleren
OK
Sluiten
Doorgaan
Inloggen
Maak een gratis persoonlijk account aan