Projecten
Producten
Bedrijven
Vacatures
Agenda
Awards
Podcasts
more_horiz
Videos
Magazine
Thema's
Favorieten
Profiel
Uitloggen
Nieuw
Populair
Toon alles
Architectenweb magazine #14
Architectenweb magazine #13
Publieke gebouwen
Architectenweb magazine #12
Kantoren
Architectenweb magazine #11
Scholen
Architectenweb magazine #10
Zorg
Architectenweb magazine #14
Architectenweb magazine #10
Zorg
Architectenweb magazine #12
Kantoren
Architectenweb magazine #13
Publieke gebouwen
Architectenweb magazine #6
Transformatie en Renovatie
Om direct naar je favorieten te kunnen gaan is het nodig om eerst in te loggen.
Nieuw
Architectenweb Awards 2025
Architectenweb Awards 2024
Architectenweb Awards 2023
Architectenweb Awards 2022
Architectenweb Awards 2021
Architectenweb Awards 2020
Architectenweb Awards 2019
Architectenweb Awards 2018
Om direct naar je favorieten te kunnen gaan is het nodig om eerst in te loggen.
Nieuw
Populair
Favorieten
Toon alles
Vakwerk Architecten
Nominatie voor de prijs voor Architect van het Jaar 2025
Sanne van Manen
Nominatie voor de prijs voor Architect van het Jaar 2025
KSA
Nominatie voor de prijs voor Architect van het Jaar 2025
KRFT
Nominatie voor de prijs voor Architect van het Jaar 2025
Joost Ector
Nominatie voor de prijs voor Architect van het Jaar 2025
Prijsuitreiking Architectenweb Awards 2024
Impressie van een feestelijke avond
Martens, Willems & Humblé Architecten
Nominatie voor de prijs voor Architect van het Jaar 2024
Uitreiking van Architectenweb Awards 2020
Impressie van de prijsuitreiking via Zoom
De Zwarte Hond
Nominatie voor de prijs voor Architect van het Jaar 2024
Avond met De Zwarte Hond
Symposium
Om direct naar je favorieten te kunnen gaan is het nodig om eerst in te loggen.
Nieuw
Populair
Categorieën
Favorieten
Toon alles
Brandpreventie Academy BV
Cay Circulaire Keukens
Circulaire keukens en pantry's
Studio Kirsten Reith
Interieurontwerp
Studio175
Interieuradvies in regio Utrecht
Orange Automatic Doors
Indoorwrap
De specialist in Keukenwrappen
Cay Circulaire Keukens
Circulaire keukens en pantry's
Studio Kirsten Reith
Interieurontwerp
Studio175
Interieuradvies in regio Utrecht
Interior & Co
Orange Automatic Doors
Indoorwrap
De specialist in Keukenwrappen
Architecten
Architectuur
Mobiliteit en infrastructuur
Stedenbouw en landschapsarchitectuur
Leveranciers
Gevels
Daken
Ramen en deuren
Trappen, liften en balustrades
Binnenwanden
Vloeren
Plafonds
Verlichting
Sanitair
Projectinrichting
Installaties
Constructies
Buitenruimte
Software
Adviseurs
Bestekschrijvers
Bouwmanagement
Installatie adviseurs E
Bouwfysica
Calculators
Installatie adviseurs G/W
Bouwkundig tekenwerk
Constructeurs
Lichtadviseurs
Adviseur beveiliging
Juristen
Intermediairs, Payrolling
Aannemers
Overig
Presentatie
Instellingen / onderwijs
Overig
Om direct naar je favorieten te kunnen gaan is het nodig om eerst in te loggen.
Nieuw
Populair
Favorieten
Toon alles
Gesprek met Stephan Sliepenbeek over hoogbouw in Amstel III
Gesprek met Ellen van Bueren over gebiedsontwikkeling en hoogbouw
Gesprek met Ma Yansong over ontwerpen die emotie oproepen
Gesprek met Paul de Ruiter over innovatieve en duurzame hoogbouw
Gesprek met Pi de Bruijn over zijn ontwerpen voor de Tweede Kamer toen en nu
Gesprek met Ellen van Bueren over gebiedsontwikkeling en hoogbouw
Gesprek met Oresti Sarafopoulos over het ontwerpen van een kantoorgebouw met bijna geen installaties
Gesprek met Stijn Steenbakkers over verdichting en hoogbouw in Eindhoven
Gesprek met Pi de Bruijn over zijn ontwerpen voor de Tweede Kamer toen en nu
Gesprek met Paul de Ruiter over innovatieve en duurzame hoogbouw
Om direct naar je favorieten te kunnen gaan is het nodig om eerst in te loggen.
Nieuw
Populair
Categorieën
Favorieten
Toon alles
Renovatieproject Ockenburghstraat
Aluminium kozijnen: de isolerende oplossing
Den Hartogh Basecamp
Werkplekken met verhoogd risico - Laboratoria
FÆnslet
ASML Gebouw 3
Prinsenpark, Rotterdam
IVY, Amsterdam
IKC De Brug
Houthavens, Amsterdam
Architectuur
Woningbouw
Zorg
Hotels
Restaurants en café’s
Winkels
Sportgebouwen
Culturele gebouwen
Overheidsgebouwen
Scholen
Kantoren
Bedrijfsgebouwen
Paviljoens en kunst
Overig
Mobiliteit en infrastructuur
Trein- en metrostations
Luchthavens
Busstations
Parkeergarages
Fietsparkeren
Wegen
Bruggen
Water
Energie
Tankstations en laadstations
Waterzuivering en afvalverwerking
Overig
Stedenbouw en landschapsarchitectuur
Regionale visies
Gebiedsvisies
Plannen stedelijk weefsel
Amusementsparken en dierentuinen
Lichtontwerpen
Openbare ruimte
Pleinen
Parken
Tuinen
Speelplaatsen
Uitkijktorens
Overige (bijv. begraafplaatsen)
Om direct naar je favorieten te kunnen gaan is het nodig om eerst in te loggen.
Nieuw
Populair
Categorieën
Favorieten
Toon alles
Flux-totaalaanbod vraaggestuurde Renson WTW-ventilatie
Compacte wand- en plafondmontage voor alle debieten
Wie denkt er aan slopen tijdens bouwen?
Kies voor de toekomst, kies voor circulair isoleren!
StoTherm Wood: cementvrij gevelsysteem met houtvezelisolatie
Biobased gevelisolatie met natuurlijke prestaties
Lambda: sleutel tot betere isolatie en energie-efficiëntie
Rockfit en Rockvent: betere lambda-waarde, beter isolerend
SlimFix RenoPro
Waterkerende na-isolatie zonder koudebruggen
Digital Prints
Meer mogelijkheden in gekleurd staal
Element+ H-I
Hout - Aluminium Elementgevel
Vierkante vluchtroutearmaturen voor grote ruimtes
Zichtbare veiligheid van alle kanten
Schüco Zonweringsysteem Integralmaster in FWS
Bescherming tegen zon, verblinding en privacy – verborgen en volledig geïntegreerd
GROHE Cubeo: kranen voor elke badkamer
Stijlvol en duurzaam design voor jarenlang plezier
Gevels
Gevelbekleding
Vliesgevels
Zonwering buiten
Isolatie
Gevelconstructies
Signing
Overig
Daken
Dakafwerkingen
Dakisolatie
Dakconstructies
Dakranden, dakgoten en HWA's
Dakramen
Lichtkoepels
Lichtstraten
Schoorstenen
Overig
Dakluiken
Ramen en deuren
Raam- en deursystemen / kozijnen
Vliesgevels
Hang- en sluitwerk
Beveiliging en luiken
Dorpels en vensterbanken
Lateien
Roosters
Glas
Dakramen
Dakkoepels
Lichtstraten
Zonwering buiten
Zonwering binnen
Buitendeuren
Binnendeuren
Postvakken en brievenbussen
Overig
Dakluiken
Trappen, liften en balustrades
Trappen
Roltrappen
Liften
Balustrades en hekwerken
Galerijen
Binnenwanden
Binnenwanden
Wandafwerking
Vloeren
Constructieve vloeren
Verhoogde vloeren
Vloerafwerkingen
Overig
Plafonds
Tegels
Lineair
Grill
Open en roosters
Naadloos
Eilanden en baffles
Plafondafwerkingen
Ophangsystemen
Overig
Klimaatplafonds
Verlichting
Binnenverlichting
Buitenverlichting
Sanitair
Kranen en douchesets
Wastafels
Douchewanden en douchebakken
Baden
Waterclosets
Accessoires
Overig
Projectinrichting
Stoelen
Banken
Tafels
Kasten
Balies
Vrijstaande wanden
Keukens
Accessoires
Overig
Cabines
Interieurbeplanting
Stoffering
Installaties
Verwarming, koeling en ventilatie
Elektrotechnische installaties
Schakelmateriaal
Domotica
Deurcommunicatie
Beveiliging
Liften
Onderhoudsinstallaties
Overig
Brandbeveiliging
Constructies
Draagconstructies
Funderingen en kelders
Overig
Brandbeveiliging
Buitenruimte
Bestratingen en verhardingen
Afwateringen
Terreinafscheidingen en geluidsschermen
Buitenmeubilair
Fietsparkeren
Terrassen
Terrasoverkappingen
Bruggen
Accessoires
Overig
Beplanting
Sport- en speeltoestellen
Software
Tekenen 2D
Modelleren 3D / BIM
Visualisatie / rendering
Parametrisch ontwerpen
Bouwfysica
Draagconstructie
Overig
Virtual Reality
Cloudoplossingen
Om direct naar je favorieten te kunnen gaan is het nodig om eerst in te loggen.
Nieuw
Populair
Favorieten
Toon alles
LIAG over duurzaamheid centraal in project
Online
Zomerwandelingen Nieuwe Stad op Zondag 2025
Amsterdam
Prefab beurs - 7 t/m 9 oktober 2025
Brabanthallen 's-Hertogenbosch
Boekpresentatie en panelgesprek met Floor Milikows
Prins Hendrikkade 600, 1011 VX Amsterdam
Architects Table ’25: Lunch & Inspiratie in HAUT Amsterdam
ATAG LIVE – HAUT gebouw, Spaklerweg 10F, 1096 BA Amsterdam (tegenover metrostation Spaklerweg)
Architects Table ’25: Lunch & Inspiratie in HAUT Amsterdam
ATAG LIVE – HAUT gebouw, Spaklerweg 10F, 1096 BA Amsterdam (tegenover metrostation Spaklerweg)
Ontdek het seminarieprogramma van Architect@Work Amsterdam
De Kromhouthal, Gedempt Hamerkanaal 231, Amsterdam
LIAG over duurzaamheid centraal in project
Online
1.Lectures HouseEurope! Renovate, don’t speculate
Pakhuis de Zwijger
Carbon Stories: Architects taking sustainable initiatives
Keilepand Rotterdam
Om direct naar je favorieten te kunnen gaan is het nodig om eerst in te loggen.
Nieuw
Toon alles
Design
Duurzaamheid
Gevel
Infrastructuur
Interieur
Kantoren
Leisure
Openbare ruimte
Publieke gebouwen
Scholen
Transformatie en Renovatie
Woningbouw
Zorg
Om direct naar je favorieten te kunnen gaan is het nodig om eerst in te loggen.
Nieuw
Populair
Toon alles
Bouwkundig projectleider (per direct)
Revit Modelleur / bouwkundige (per direct)
BIM/REVIT-modelleur
Bureaumanager
Nederlandstalige projectleider
Medior Technisch Interieurtekenaar
Junior Architect gezocht!
wUrck zoekt junior Architect
Project Architect
Shift zoekt medior/senior architect
Assistent Ontwerper & vakidioot
Architect
Om direct naar je favorieten te kunnen gaan is het nodig om eerst in te loggen.
Het Streek Lyceum, Ede, Atelier van Berlo en Ector Hoogstad Architecten
Copyright: Marcel van der Burg i.o.v. Atelier van Berlo en Ector Hoogstad Architecten
Het Streek Lyceum, Ede, Atelier van Berlo en Ector Hoogstad Architecten, entree
Copyright: Marcel van der Burg i.o.v. Atelier van Berlo en Ector Hoogstad Architecten
Het Streek Lyceum, Ede, Atelier van Berlo en Ector Hoogstad Architecten, colonnade
Copyright: Marcel van der Burg i.o.v. Atelier van Berlo en Ector Hoogstad Architecten
Het Streek Lyceum, Ede, Atelier van Berlo en Ector Hoogstad Architecten
Copyright: Marcel van der Burg i.o.v. Atelier van Berlo en Ector Hoogstad Architecten
Het Streek Lyceum, Ede, Atelier van Berlo en Ector Hoogstad Architecten
Copyright: Marcel van der Burg i.o.v. Atelier van Berlo en Ector Hoogstad Architecten
Het Streek Lyceum, Ede, Atelier van Berlo en Ector Hoogstad Architecten, aula
Copyright: Marcel van der Burg i.o.v. Atelier van Berlo en Ector Hoogstad Architecten
Het Streek Lyceum, Ede, Atelier van Berlo en Ector Hoogstad Architecten, aula en entree
Copyright: Marcel van der Burg i.o.v. Atelier van Berlo en Ector Hoogstad Architecten
Het Streek Lyceum, Ede, Atelier van Berlo en Ector Hoogstad Architecten, trap
Copyright: Marcel van der Burg i.o.v. Atelier van Berlo en Ector Hoogstad Architecten
Het Streek Lyceum, Ede, Atelier van Berlo en Ector Hoogstad Architecten, wand in aula
Copyright: Marcel van der Burg i.o.v. Atelier van Berlo en Ector Hoogstad Architecten
Het Streek Lyceum, Ede, Atelier van Berlo en Ector Hoogstad Architecten, interieur
Copyright: Marcel van der Burg i.o.v. Atelier van Berlo en Ector Hoogstad Architecten
Het Streek Lyceum, Ede, Atelier van Berlo en Ector Hoogstad Architecten, interieur
Copyright: Marcel van der Burg i.o.v. Atelier van Berlo en Ector Hoogstad Architecten
Het Streek Lyceum, Ede, Atelier van Berlo en Ector Hoogstad Architecten, interieur
Copyright: Marcel van der Burg i.o.v. Atelier van Berlo en Ector Hoogstad Architecten
Het Streek Lyceum, Ede, Atelier van Berlo en Ector Hoogstad Architecten
Copyright: Marcel van der Burg i.o.v. Atelier van Berlo en Ector Hoogstad Architecten
Het Streek Lyceum, Ede, Atelier van Berlo en Ector Hoogstad Architecten, exterieur
Copyright: Marcel van der Burg i.o.v. Atelier van Berlo en Ector Hoogstad Architecten
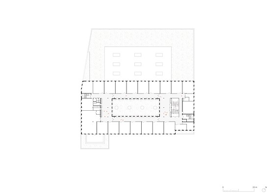
Het Streek Lyceum, Ede, Atelier van Berlo en Ector Hoogstad Architecten, plattegrond begane grond
Copyright: Atelier van Berlo en Ector Hoogstad Architecten
Het Streek Lyceum, Ede, Atelier van Berlo en Ector Hoogstad Architecten, plattegrond eerste verdieping
Copyright: Atelier van Berlo en Ector Hoogstad Architecten
Het Streek Lyceum, Ede, Atelier van Berlo en Ector Hoogstad Architecten, doorsnede
Copyright: Atelier van Berlo en Ector Hoogstad Architecten
Atelier van Berlo en Ector Hoogstad Architecten breiden scholengemeenschap uit
2 uur geleden
In Ede hebben
Atelier van Berlo
en
Ector Hoogstad Architecten
een nieuw gebouw voor het
Het Streek Lyceum
ontworpen. Het ontwerp is erop gericht om ontmoeting, gezondheid en verbondenheid binnen de schoolgemeenschap te stimuleren.
Relatie met wijk
Centraal in het ontwerp staat dan ook een royale aula die beoogd is als sociaal en ruimtelijk hart van het gebouw. Ook de verbinding met omliggende de wijk was een belangrijk aandachtspunt. Het gebouw is zorgvuldig gepositioneerd tussen de omliggende woonwijk en de bestaande campus. De twee- en vierlaagse volumes van het nieuwe Technasium vormen de verbindende elementen tussen school en wijk. Door de gevel uit te voeren in licht baksteen en door de terugliggende houten vlakken, ontstaat een gelaagd reliëf en een ritmische uitstraling die goed aansluiten op de schaal van de omgeving. Het uitstekende volume van glas en aluminium zorgt voor een extra sculpturaal gebaar. Het beantwoordt tevens het glooiende verloop van het terrein waarop de school staat.
De centrale aula wordt door scholieren en leerkrachten bereikt via de entree die zich in een hoge, ietwat terug gelegde, glazen gevel bevindt. Hiervoor is met een colonnade een overgangszone naar het voorliggende plein en een accentuering van het entreegebied gecreëerd. Achter de glazen gevel bevindt zich een ruime entreehal, die naadloos overgaat in de aula. Daar zijn ook een ronde balie en een centrale trap die toegang biedt tot alle verdiepingen te vinden.
Multifunctionele aula
De lichte aula is, volgens de architecten, niet minder dan het kloppend hart van het schoolleven dat zich hier afspeelt. Door te spelen met hoogteverschillen, zithoekjes en zichtlijnen biedt de aula een gevarieerd palet aan ruimtelijke ervaringen. Er is aan veel kleinschalige en besloten plekken gedacht waar scholieren elkaar kunnen ontmoeten of kunnen verblijven in een tussenuur. Een hoge, multifunctionele houten wand, met daarin openingen en uitsparingen, is eveneens een prominent element in deze ruimte. Hij leent zich voor diverse vormen van gebruik. De grootste opening vormt een toneel dat bewust gelijkvloers is gehouden.
De ruime zitkuil die ervoor ligt biedt zowel zitplekken als ruimte voor een voorstelling of presentatie. Een loopbrug met balkon op het achtertoneel is eveneens bruikbaar voor presentaties of zelfs theaterscenes. Achter de houten wand zijn verschillende functies te vinden, zoals een uitgiftepunt voor de keuken, ruimte voor de conciërge ruimte en diverse werkplekken voor leerlingen en docenten. De eikenhouten bekleding geeft de aula een warme uitstraling.
Ruimte voor ontmoeting
Met die sfeer en inrichting van de aula kan ook ingespeeld worden op ander, multifunctioneel gebruik ervan, buiten schooltijd. Dit deel van school is namelijk ook beschikbaar voor, bijvoorbeeld, kerkdiensten, theatervoorstellingen en sportevenementen. Door de grote glazen pui en de situering van deze ruimte er direct achter is het gebruik door omwonenden en bezoekers laagdrempelig en uitnodigend. Het spreekwoordelijk (sport)zaaltje achteraf waar de buurt bijeen kan komen behoort in dit deel van Ede tot het verleden. Er zijn overigens wel degelijk gymzalen. Die zijn in het midden van het gebouw gepositioneerd, waardoor een compacte hoofdvorm mogelijk is geworden.
De dynamiek zet zich na en naast de aula voort in de rest van het gebouw. Rondom de aula ligt een ring van verkeersroutes die is gecombineerd met werkplekken voor leerlingen. De gangen zijn daarmee zowel verbindingsroutes als verblijfsruimte. Op de bovenste twee verdiepingen liggen de lokalen, werkplekken en de leerlingpleinen rondom een patio. Hier valt er ook veel daglicht in het gebouw binnen Elk vak of cluster heeft verder een eigen zone in het gebouw. Door de plaatsing van de levendige kunstlokalen aan de straatzijde is herhaald een poging gedaan om de relatie tussen school en wijk extra aandacht te geven.
Circulair ontwerp
Het Streek Lyceum is eveneens een slim en circulair gebouw. Duurzaamheid speelde, naast de ruimtelijke kwaliteit, een belangrijke rol in het ontwerp. Het compacte bouwvolume, de diepe penanten in de gevel, zonnepanelen en de gasloze installatie dragen bij aan een energiezuinig gebouw. Als gezonde ‘Frisse School’, met veel aandacht voor daglicht, CO
2
-gestuurde ventilatie en uitzicht op groen, gaat het gebouw een bijdrage proberen te leveren aan de gezondheid en het welzijn van zowel leerlingen, leraren als medewerkers.
Het streven naar duurzaamheid blijkt ook uit het feit dat het ontwerp tot stand is gekomen in nauwe samenwerking met zowel leerlingen als medewerkers. Zij dachten actief mee over de indeling van hun school. Verder werd een workshop over kleuren georganiseerd en mochten buurtbewoners de boomsoorten kiezen die grenzen aan hun tuin.
Dry-Stack
Het Streek Lyceum is het eerste gebouw van vier verdiepingen dat is gerealiseerd in Dry-stack. Dat is een systeem waarbij baksteen op een cementloze en dus circulaire manier is toegepast. De bakstenen gevel is hierdoor in de toekomst volledig herbruikbaar. De bakstenen werden daarbij letterlijk en toch wel wat onconventioneel aan de lateien vastgeschroefd. Met het zichtbaar laten van die schroeven hebben Atelier van Berlo en Ector Hoogstad Architecten een voortdurende herinnering aan die circulariteit en hergebruik willen achterlaten. Materialen uit het gesloopte oude schoolgebouw werden verder hergebruikt bij de inrichting van de buitenruimte, bijvoorbeeld in de vorm van een insectenhotel.
Trefwoorden
ede
ector hoogstad architecten
schoolgebouw
atelier van berlo
Locatie
Best gelezen
1
Na renovatie en verduurzaming heeft Aquarium van Artis zijn helderheid terug
donderdag, 25 september
2
Rapport: rijke Amsterdammers leven steeds vaker apart van rest
dinsdag, 30 september
3
Kabinet wil wijken erbij op 127 plekken in Nederland
maandag, 29 september
4
Architectenweb symposium: klein maar fijn wonen?
donderdag, 2 oktober
5
Leiden wil verhoogd busstation naast treinperrons centraal station
dinsdag, 30 september
Gerelateerde nieuwsberichten
Atelier van Berlo publiceert onderzoek voor toekomstbestendige woningmarkt
6 maart
Bouw wooncomplex Nelson View in Amsterdam Zuidoost van start
4 december 2024
Nieuwe Gezichten: Atelier van Berlo
20 oktober 2022
Ector Hoogstad Architecten en Atelier Van Berlo ontwerpen nieuwbouw Het Streek
28 januari 2021
Nieuw gebouw met laboratoria en kantoren voor Leiden Bio Science Park
19 april 2024
MindLabs in Tilburgse Spoorzone officieel geopend
27 september 2023
Ector Hoogstad ontwerpt nieuwbouw Technische Natuurwetenschappen TU Delft
7 augustus 2023
Ector Hoogstad presenteert opgeleverd ChemTech Centre in Nootdorp
12 mei 2023
Atelier van Berlo publiceert onderzoek voor toekomstbestendige woningmarkt
6 maart
Bouw wooncomplex Nelson View in Amsterdam Zuidoost van start
4 december 2024
Nieuwe Gezichten: Atelier van Berlo
20 oktober 2022
Ector Hoogstad Architecten en Atelier Van Berlo ontwerpen nieuwbouw Het Streek
28 januari 2021
Nieuw gebouw met laboratoria en kantoren voor Leiden Bio Science Park
19 april 2024
MindLabs in Tilburgse Spoorzone officieel geopend
27 september 2023
Ector Hoogstad ontwerpt nieuwbouw Technische Natuurwetenschappen TU Delft
7 augustus 2023
Ector Hoogstad presenteert opgeleverd ChemTech Centre in Nootdorp
12 mei 2023
Toon alles
Andere nieuwsberichten
Architectenweb symposium: klein maar fijn wonen?
1 uur geleden
Woensdag 15 oktober 2025 organiseert Architectenweb samen met Hogeschool van Amsterdam, MORE Architecture, UFO Urbanism en Pakhuis de Zwijger een symposium rond de opkomst van grootschalige wooncomplexen met kleine woningen en gedeelde voorzieningen.
EGM architecten voltooit duurzame renovatie rijksmonument Moreelsepark
Gisteren, 13:20
De hoogwaardige renovatie van Utrechts kantoorpand brengt monumentale architectuur en Paris Proof-ambitie samen
Nudus en Proof of the sum geselecteerd voor groot laboratoriumgebouw Groningen
Gisteren, 11:00
Een team met onder meer Nudus en Proof of the sum is geselecteerd voor het ontwerp van het nieuwe Centraal Laboratorium voor Diagnostiek en Research (CLDR) op de Healthy Ageing Campus in Groningen.
Nieuwe editie van DigiBouw vindt plaats op 19 en 20 november in Utrecht
Gisteren, 09:59
AI, robotisering, parametrisch ontwerpen en bouwen, verandermanagement, veiligheid, open standaarden, BIM, slimme bouwlogistiek, CO2-reductie op de bouwplaats… dat zijn de thema’s die aan bod komen bij DigiBouw.
Zuid-Holland wil in ‘oogstjaar’ 2026 plannen uitvoeren
Gisteren, 15:16
De provincie investeert onder meer in infrastructuur, woningbouw, natuur en versterking van kleine kernen.
Rijk schrijft aanbesteding uit voor nieuwe marinierskazerne
Gisteren, 14:27
Eind 2031 wil het Korps Mariniers vanuit zijn huidige kazerne in Doorn verhuizen naar een nieuw onderkomen op de bestaande Defensielocatie Kamp Nieuw-Milligen vlakbij Apeldoorn.
Landschapstriënnale 2026 strijkt neer in Arnhem
Gisteren, 11:57
Het thema van de komende editie van de manifestatie is ‘Op Waterbasis’.
Veelzijdig ontwerper Mathieu Bruls verzorgt 21e Peutz-lezing
30 september, 3:05
Bruls (1960) is een veelzijdig ontwerper, die naast gebouwen en stedenbouwkundige plannen onder meer interieurs, meubels en tentoonstellingen ontwerpt.
Rekenkamer betwijfelt of miljoenen voor Woningbouwimpuls nuttig waren
30 september, 12:03
Het is ‘twijfelachtig’ of honderden miljoenen euro's overheidsgeld hebben geleid tot meer woningen, schrijft de Rekenkamer.
Rapport: rijke Amsterdammers leven steeds vaker apart van rest
30 september, 9:44
Het wel of niet bezitten van een woning zorgt voor een steeds grotere welvaartskloof tussen Amsterdammers.
Ga naar het nieuws-archief
0
0
0
0
Voor een optimale gebruikservaring plaatst Architectenweb functionele cookies. Wat de verschillende cookies precies doen leggen we uit in een
overzicht
. Cookies van social media kun je optioneel
aanzetten
.
Akkoord
Instellingen
Annuleren
OK
Sluiten
Doorgaan
Inloggen
Maak een gratis persoonlijk account aan
Feedback
Feedback
Wij horen graag jouw feedback. Laat je reactie achter en eventueel jouw e-mail adres.
Reactie
Verstuur