Projecten
Producten
Bedrijven
Vacatures
Agenda
Awards
Podcasts
more_horiz
Videos
Magazine
Thema's
Favorieten
Profiel
Uitloggen
Copyright: ExMaterials
Copyright: ExMaterials
Copyright: ExMaterials
Copyright: ExMaterials
Copyright: ExMaterials
Copyright: ExMaterials
Copyright: ExMaterials
Bouwkundig 3D-model
Copyright: ExMaterials
Constructief 3D-model
Copyright: ExMaterials
ExMaterials ontwerpt multifunctioneel gebouw voor voedselbos Kaatsheuvel
25 februari, 12:19
De Stichting Juniper gaat ongeveer twintig hectare aan grasvlakten in Kaatsheuvel omvormen tot een voedselbos. Als onderdeel van dit project wordt ook het terrein van een voormalige intensieve veehouderij herontwikkeld. Zo komt er naar ontwerp van
ExMaterials
een multifunctioneel gebouw met onder meer een expositieruimte, een lunchroom en woningen voor de gezinnen die het voedselbos gaan onderhouden.
Dit gebouw wordt gebouwd op de plek van een voormalige koeienstal van de boerderij. Het gebouw wordt gerealiseerd met behulp van circulaire bouwmethoden. Daarnaast worden biobased materialen als CLT, kalkhennep en vlas toegepast. Ook krijgen materialen van de te slopen koeienstal een nieuw leven in het toekomstige gebouw.
De bestaande boerderij van de Mauritshoeve wordt gerenoveerd, waarbij het de bedoeling is dat het woongedeelte wordt omgevormd tot een gezinswoning voor jongeren die tijdelijk of langdurig niet in de oorspronkelijke thuissituatie kunnen blijven. De voormalige kalverstal wordt verbouwd tot een opslagruimte.
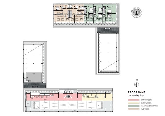
De voormalige koeienstal maakt plaats voor het gebouw naar ontwerp van ExMaterials. Het gebouw gaat onderdak bieden aan twee woningen voor gezinnen die het voedselbos onderhouden, twee gastenverblijven, een ontvangst- en expositieruimte en een openbare lunchroom en landwinkel waar producten uit het voedselbos worden aangeboden.
Traditionele vierkantsboerderij
Het ontwerp is een moderne interpretatie van een traditionele vierkantsboerderij, legt ExMaterials uit. Tegelijk is de vorm ontstaan door de spanten uit de koeienstal opnieuw te gebruiken. Door de spanten gespiegeld toe te passen in de nieuwe hoeven, valt er volgens het bureau voldoende direct zonlicht in de binnentuin en kan de dakhelling richting het zuiden optimaal worden benut met zonnepanelen.
Omdat het terrein grenst aan het Natura 2000-gebied Loonse en Drunense duinen zijn er speciale eisen aan het project gesteld om het project mogelijk te maken. Het gebouw krijgt een hoofddraagconstructie van 183 m3 CLT, afkomstig uit duurzaam beheerde bossen. In de Nederlandse bossen zou deze hoeveelheid hout binnen 1 minuut en 12 seconden weer zijn aangegroeid, meldt ExMaterials. In het hout ligt ongeveer 164.700 kg CO2 opgeslagen.
Het dak wordt voorzien van vlasisolatie en de wanden op de begane grond bestaan uit kalkhennep. Deze natuurlijke materialen slaan CO2 op en dragen door hun vochtregulerende eigenschappen bij aan een gezond binnenklimaat.
Koeienrekken als fietsenstalling
Behalve de stalen spanten worden meer materialen uit de gesloopte stal hergebruikt. Zo fungeren de oude koeienrekken straks als fietsenstalling voor de Mauritshoeve, wordt verguisd puin toegepast onder de halfverharde paden rondom het gebouw en komen vrijgekomen klinkers terug in de lunchroom en landwinkel.
Er wordt nog gewerkt aan het binnenhalen van de benodigde vergunning, maar het plan is dat de bouw eind dit jaar van start gaat. BanBouw fungeert als hoofdaannemer, BreedID is de constructeur en Mobius consult verzorgt het installatieadvies.
Trefwoorden
banbouw
natura 2000
voedselbos
exmaterials
boerderij
stichting juniper
kaatsheuvel
Best gelezen
1
Spectaculaire overkapping voor vernieuwd Arnhems busstation Kronenburg
maandag, 3 november
2
Groot Egyptisch Museum naar ontwerp van Heneghan Peng en West 8 officieel geopend
maandag, 3 november
3
NOAHH ontwerpt nieuw zwembad in Noordersportpark Haarlem
dinsdag, 4 november
4
Vakwerk Architecten uitgeroepen tot Architect van het Jaar 2025
woensdag, 5 november
5
De waarde voor de toekomst (slot)
vrijdag, 31 oktober
Andere nieuwsberichten
Foto's uitreiking Architectenweb Awards 2025
Gisteren, 20:45
Op woensdagavond 5 november 2025 zijn in het Keilepand in Rotterdam de Architectenweb Awards 2025 uitgereikt. Architectuurfotograaf Jan Paul Mioulet / DAPh maakte een beeldverslag van deze feestelijke avond.
BDG en LAP ontwerpen plan met 24 woningen op plek oud zwembad Bilthoven
Gisteren, 14:03
Op de plek van het oude zwembad Brandenburg in Bilthoven worden 24 woningen gerealiseerd. De woningen worden in blokken verspreid over het terrein, georiënteerd op het omringende groen ingerichte landschap.
Vakwerk Architecten uitgeroepen tot Architect van het Jaar 2025
5 november, 10:00
Tijdens de uitreiking van de Architectenweb Awards 2025, op woensdagavond 5 november 2025 in het Keilepand in Rotterdam, is Vakwerk Architecten uitgeroepen tot Architect van het Jaar 2024.
Fenix, kunstmuseum over migratie, is Publiek gebouw van het Jaar 2025
5 november, 9:55
Fenix, kunstmuseum over migratie, ontworpen door MAD, Bureau Polderman en EGM architecten, is op de prijsuitreiking van de Architectenweb Awards 2025 uiteroepen tot Publiek gebouw van het Jaar 2025.
Provincies focussen op agrarisch natuurbeheer tegen stikstof
Gisteren, 15:11
De betrokken partijen hebben daarover afspraken gemaakt, maar benadrukken dat steun van de rijksoverheid nodig blijft.
Corporatiewoning harder geraakt door klimaatverandering
Gisteren, 10:46
Bewoners van de onderzochte woningen hebben bijvoorbeeld vaker last van hittestress door warme nachten en krijgen vaker te maken met wateroverlast bij hevige buien.
Arons en Gelauff benoemt drie associates
4 november, 12:05
Eva Heldeweg, Gijs Beckman en Thom Zijlstra zijn benoemd tot associate partner bij Arons en Gelauff architecten.
DigiBouw 2025 – enkele tips
4 november, 11:14
Op 19 en 20 november 2025 vindt in het Beatrixgebouw van de Jaarbeurs in Utrecht de tweede editie van DigiBouw plaats. Enkele tips voor sessies die voor architecten van toegevoegde waarde zijn.
Limburg trekt vijftig miljoen uit voor woningbouw bij intercitystations
3 november, 5:13
De provincie Limburg trekt vijftig miljoen euro uit voor de plannen om tot 2040 ruim 30.000 woningen in de buurt van intercitystations te bouwen.
Corporaties lenen voor het eerst honderd miljard bij Waarborgfonds
3 november, 9:51
Daarmee kunnen woningcorporaties volgens koepel Aedes bouwdoelen voor de komende jaren halen en sociale huurwoningen verduurzamen.
Ga naar het nieuws-archief
Ronnie Weessies
Redacteur
2
0
0
0
Voor een optimale gebruikservaring plaatst Architectenweb functionele cookies. Wat de verschillende cookies precies doen leggen we uit in een
overzicht
. Cookies van social media kun je optioneel
aanzetten
.
Akkoord
Instellingen
Annuleren
OK
Sluiten
Doorgaan
Inloggen
Maak een gratis persoonlijk account aan
Feedback
Feedback
Wij horen graag jouw feedback. Laat je reactie achter en eventueel jouw e-mail adres.
Reactie
Verstuur