Abonneer je nu op onze nieuwsbrieven!
Abonneren
Nee, bedankt
Ja, denk met me mee rond de
materialisering van mijn project
Exterieur
Copyright: 2by4-architects
Exterieur
Copyright: 2by4-architects
Toegang aan lange zijde
Copyright: 2by4-architects
Toegang aan korte zijde
Copyright: 2by4-architects
Dakconstructie
Copyright: 2by4-architects
Terras tussen twee gebouwdelen
Copyright: 2by4-architects
Terras met deels open dak
Copyright: 2by4-architects
Omloop op eerste verdieping
Copyright: 2by4-architects
Uitzicht op Brielse Meer
Copyright: 2by4-architects
Aanzicht in het donker
Copyright: 2by4-architects
Copyright: 2by4-architects
Copyright: 2by4-architects
Copyright: 2by4-architects
Copyright: 2by4-architects
Copyright: 2by4-architects
Copyright: 2by4-architects

Multifunctionele accommodatie van 2by4-architects gereed

12 oktober 2023, 19:37
Lakeside is ontworpen door het Rotterdamse bureau 2by4-architects dat met een zorglocatie (Hof Kromwege) in Vlissingen en een aantal vakantiewoningen op hetzelfde Roompot Resort in Brielle al eerder in deze regio ontwierp.

In de nieuwe accommodatie zijn verschillende functies ondergebracht die gericht zijn op het vakantieresort, variërend van een winkel, restaurant, hotelaccommodatie en fietsenverhuur. Daarnaast bevinden zich in het gebouw ook een kinderopvang en congresruimtes die meer de stad en haar inwoners bedienen.

Expressie
In het ontwerp heeft 2by4-architects gestreefd naar een versmelting van traditionele en moderne stijlelementen. Zo is gezocht naar een uitstraling die zowel uitnodigend is als aansluit bij lokale bouwtradities. De combinatie van een modern en sculpturaal gebaar in de vorm van een grote houten luifel met de toepassing van een houten gevel is daar een goede illustratie van.

Door de toepassing van strakke lijnen en glazen gevels neigt het gebouw echter geenszins naar een historiserende stijl. Door zijn krachtige expressie vormt het eerder een contrast met de vaak eeuwenoude gebouwen in de omgeving.

Podium
Dat uitgesproken gebaar wordt nog verder versterkt door de verhoogde positie van het gebouw. De begane grond van het tweelaagse gebouw gaat grotendeels schuil achter aarden wallen die met gras begroeid zijn. Op een aantal plekken openen de wallen zich om voor een toegang of een raampartij met openslaande deuren ter hoogte van de kinderopvang. De wallen zijn, volgens de architecten, verwijzingen naar de historische citadelmuur van de oude stad.

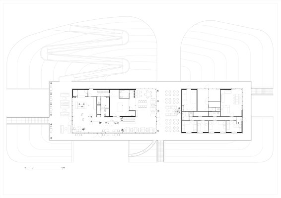
Op de begane grond zijn, naast de kinderopvang, de ruimte voor fietsverhuur, kleedkamers en een opslagruimte ondergebracht. Op de eerste verdieping, die uit twee delen met een open tussenruimte bestaat, bevinden zich de horeca, keuken, personeels- of multifunctionele ruimtes die ook als hotelaccommodatie dienst kunnen doen.

De bovenste verdieping is via twee lange trappen aan de korte zijde, een korte trap aan de lange zijde en een hellingbaan aan de andere lange zijde toegankelijk. Het ontwerp voor het de wallen en het omliggende groen werd gemaakt Snoek Puur Groen. In het gebouw zelf zijn ook nog een trap en lift aangebracht.

De met gras begroeide wallen vormen een podium voor het bovenste deel van het gebouw, maar bieden ook ruimte voor spelende kinderen van de kinderdagopvang, zitplekken voor de horeca of yogalessen. Gasten kunnen hier te midden van modern comfort de nabijheid van de geschiedenis ervaren, uitkijken over het resort of over het naastgelegen Brielse Meer.

Multifunctioneel
Door de aanwezigheid van een aantal multifunctionele ruimtes biedt het gebouw mogelijkheden om er, bijvoorbeeld, conferenties, bruiloften en andere speciale gelegenheden zoals vergaderingen, workshops of feestelijke diners te organiseren. Het interieur werd mede ontworpen door HD+VK.

Door het flexibele ontwerp kunnen de ruimtes zelfs gedurende de dag worden aangepast en getransformeerd naar gelang de wensen veranderen. Het compacte karakter van het gebouw draagt verder bij aan de overzichtelijkheid en een heldere routing. Ook de glazen gevels, die grotendeels volledig geopend kunnen worden, dragen bij aan de helderheid en transparantie. Bezoekers kunnen zo genieten van een panoramisch uitzicht.

Prominent dak
Het forse dak, dat een licht knik aan de bovenzijde heeft, draagt in belangrijke mate bij aan de visuele herkenbaarheid en aantrekkingskracht van het gebouw. De zwarte, houten panelen creëren een duidelijk contrast met de glazen en lichtgekleurde houten gevel van de eerste verdieping.

Door een aantal uitsparingen in het dak ontstaat er verder, gedurende een zonnige dag, een spel van licht en schaduwen op het terras en de omgang van de eerste verdieping. Het dak vormt ook het verbindende element tussen de twee losse gebouwdelen op deze verdieping.

Op het dak draagt de daar aangelegde vegetatie bij aan de biodiversiteit en helpt bij waterretentie. Het gebouw is verder energieneutraal en heeft een kleine ecologische voetafdruk.

Rust
Waar de programma’s op eerste verdieping het contact met de omgeving aangaan zijn de programma’s op de begane grond juist ingetogen en bieden meer sereniteit en rust. Op de begane grond geven vier inhammen in de wallen de verschillende entrees aan. Hierdoor ontstaan er minder conflicten tussen de verschillende gebruikers van en functies in het gebouw. De inhammen benadrukken tenslotte de verschillende zichtassen in en vanuit het gebouw.

Gerelateerde nieuwsberichten

Andere nieuwsberichten

'Stuttende' en contrasterende installatie voor Besiendershuis Nijmegen

1 mei, 3:52

Specht architectuur en stedenbouw toont met meergeneratiehofje alledaagse woongemeenschappelijkheid

1 mei, 2:25

Mobiliteitshub van gerecycled tropisch hardhout voor Tholen

1 mei, 11:41

Kleurrijke textielinstallatie van Simone Post voor entreegebied Centraal Museum

1 mei, 9:05

Verzet natuurorganisaties tegen stroomkabel via Schiermonnikoog

1 mei, 4:39

ING: huizenprijzen stijgen dit jaar niet verder door hoger aanbod

1 mei, 1:03

TenneT mag datacenteraansluiting uitstellen om vol stroomnet

1 mei, 10:11

Brabant investeert 1,4 miljoen in waterfilter in Vlaanderen

30 april, 3:51

Rli: klimaat, vervuiling en groei bedreigen beschikbaarheid drinkwater

30 april, 12:20

ABN AMRO: huurwetaanpassingen stoppen uittocht beleggers niet

30 april, 9:04
JaapJan BergRedacteur
KUBUS | Specialist in Archicad
SAPA
Reynaers Aluminium Nederland
Jansen
SAB-profiel bv
Aliplast Aluminium Systems
Kingspan Light & Air
ALUCOBOND®
Caparol
Tarkett BV
Kawneer
Grohe Nederland B.V.
Malaysian Timber Council
OCS | Office Cabling Systems
Swisspearl Nederland
Forster Nederland N.V.
VELUX Commercial Benelux B.V.
Sempergreen
Houthandel van Dam
Aluprof Nederland BV
QbiQ Wall Systems
Forbo Flooring
Schüco Nederland
Cedral
Sto Isoned bv
Triflex bv
Gorter Luiken BV
wienerberger
DUCO Ventilation & Sun Control
BEWI IsoBouw
ROCKWOOL B.V.
Mview+
Rockfon (ROCKWOOL B.V.)
Gira Nederland B.V.
Kingspan Geïsoleerde Panelen
GEZE Benelux  B.V.
Renson
Metaglas Groep
ABB | Busch-Jaeger
Jung | Hateha B.V.
Knauf B.V.
Saint-Gobain Glass Benelux
Faay Vianen B.V.
objectflor
Boon Edam Nederland B.V.
Hunter Douglas Architectural
VOLA Nederland BV
Forbo Eurocol Nederland B.V.
EQUITONE gevelpanelen
Holonite B.V.
Kronospan
Tata Steel Colorcoat®
Architectenweb
Over ons
Contact

© 2002 - 2026 Architectenweb BV / Voorwaarden / Privacy / Disclaimer / Sitemap
Annuleren
OK
Sluiten
Doorgaan
Inloggen
Maak een gratis persoonlijk account aan