Projecten
Producten
Bedrijven
Vacatures
Agenda
Awards
Podcasts
more_horiz
Videos
Magazine
Favorieten
Profiel
Uitloggen
Abonneer je nu op onze nieuwsbrieven!
Abonneren
Nee, bedankt
Ja, denk met me mee rond de
materialisering van mijn project
Copyright: Architectuur MAKEN
Copyright: Architectuur MAKEN
Copyright: Architectuur MAKEN
Copyright: Architectuur MAKEN
Copyright: Architectuur MAKEN
Copyright: Architectuur MAKEN
Copyright: Architectuur MAKEN
Copyright: Architectuur MAKEN
Copyright: Architectuur MAKEN
Copyright: Architectuur MAKEN
Copyright: Architectuur MAKEN
Copyright: Architectuur MAKEN
Copyright: Architectuur MAKEN
Copyright: Architectuur MAKEN
Copyright: Architectuur MAKEN
Copyright: Architectuur MAKEN
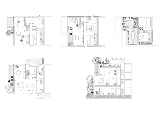
Houten woongebouw vormt nieuwe beëindiging bouwblok aan Kaappark
11 april 2023, 12:12
Aan de rand van het Kaappark in Rotterdam is onlangs woongebouw De Houten Kop opgeleverd. Het door
Architectuur MAKEN
ontworpen houten gebouw bestaat uit drie gestapelde appartementen en vormt de nieuwe beƫindiging van een bestaand bouwblok. De gevel aan de kopse kant opent zich met grote vensters richting het park.
Daarmee sluit het blok beter aan op het park dan in de oude situatie, toen het werd beƫindigd met een gesloten wand. Bovendien hebben de bewoners van de Houten Kop uitzicht op het Kaappark en de verdere omgeving (met beeldbepalende elementen zoals SS Rotterdam). De leefruimtes grenzen aan het park en worden dankzij de grote ramen voorzien van veel daglicht.
Om goed aan te sluiten op het naastgelegen bouwblok zijn de lijnen van dit blok doorgetrokken in het nieuwe gebouw. Ook sluit de borstweringshoogte van de daktuin aan op de dakrand van het bestaande gebouw. Om de Houten Kop ook te laten passen bij het rode metselwerk van het blok, is de gevel afgewerkt met rode houten delen.
Het houten casco van cross laminated timber (CLT) is geprefabriceerd en op de bouwplaats in slechts vier dagen in elkaar gezet. Op die manier werd de overlast voor omwonenden geminimaliseerd. De zijgevels van de Houten Kop, die meer gericht zijn op de omliggende woningen, hebben een gesloten karakter. Het gebouw opent zich aan de āparkzijdeā, waar zich ook de balkons bevinden.
Vrijwel het volledige gebouw is van het hout gemaakt. Massief houten vloeren van CLT zijn gecombineerd met houtskeletbouw wanden en een houten gevelbekleding. Doordat de vloeren aan de onderzijde niet afgewerkt zijn is het CLT in de gehele woningen zichtbaar.
Nectarrijke beplanting
Het gebruikte groen binnen het project is eveneens afgestemd op de directe omgeving. Op basis van onderzoek van een ecoloog naar de lokale flora en fauna is onder meer voor nectarrijke beplanting gekozen. Deze trekt insecten aan en die zorgen er weer voor dat er vogels en vleermuizen worden gelokt. De bomen die op elke verdieping zijn gezet zijn vrucht- of besdragend en bieden beschutting voor de vogels. Bij de keuze voor de beplanting is tevens aan het esthetische aspect gedacht, door te kiezen voor variatie in bladvorm, kleur en silhouet.
De Houten Kop, een cpo-project, behoort tot de nominaties voor de Rotterdam Architectuur Prijs 2023.
Trefwoorden
hout
woongebouw
rotterdam
katendrecht
clt
woningbouw
cross laminated timber
architectuur maken
Locatie
Best gelezen
1
Woontoren Front door Monadnock wint tiende Architectuurprijs Nijmegen
donderdag, 9 april
2
Spoorwegverleden inspireert ontwerp woonblok Wisselspoor 10 in Utrecht
woensdag, 8 april
3
Rotterdam mag woningen gaan bouwen aan de Parkhaven
woensdag, 8 april
4
KOW wint met Marker Woods tender voor nieuwe wijk Eschmarkerveld
woensdag, 8 april
5
RED Company vraagt vergunning aan voor productie- en onderzoeksfaciliteit Lilly
dinsdag, 7 april
Gerelateerde nieuwsberichten
Transformatie Rotterdams pakhuis Santos tot designwarenhuis gestart
10 januari 2022
Krijn Geevers en Katrien van Dijk benoemd tot associate bij Architectuur Maken
29 november 2024
Nederlands Fotomuseum verhuist naar voormalig pakhuis Santos
14 juli 2023
Bouw woonblok KOER in Rotterdam-Zuid van start
9 september 2022
Hans Wilschut fotografeert gerenoveerd en opgetopt pakhuis Santos
18 juni 2024
Architectuur Maken
8 september 2022
Studio Architectuur Maken ontwerpt festivalhart uit geleende materialen voor Rotterdam Architectuur Maand
13 juni 2025
Omgevingsvergunning voor twee woontorens op Katendrecht Rotterdam onherroepelijk
2 april 2025
Houten woongebouwen op kloostercomplex Nijmegen
10 april 2020
Startsein gegeven voor bouw De Scharnier op Katendrecht
29 september 2025
MAD presenteert ontwerp voor Danshuis Rotterdam
9 maart 2023
Hoogste punt blikvanger migratiemuseum Fenix bereikt
9 september 2024
Nominaties Rotterdam Architectuurprijs 2023 bekend
3 april 2023
Nederlands Fotomuseum heropent in februari 2026
10 september 2025
Driehoekige uitkijktoren symboliseert verbinding tussen landschappen
3 oktober 2022
Architectuur Maken ā genomineerd voor prijs Architect van het Jaar 2022
14 september 2022
Realisatie woningbouwproject De Bund op Katendrecht van start
16 december 2025
Dubbellezing met Robert Winkel (Mei) en Nina Aalbers (ArchitectuurMaken) in Keilepand
16 mei 2024
Architectuur Maken en Arcadis ontwerpen negentig woningen op Brediusterrein Muiden
27 juli 2022
Gebouw door Kraaijvanger Architects markeert scharnierpunt Katendrecht
8 december 2022
Circulair bouwen vereist breed draagvlak in het ontwerpteam (2)
18 februari
Circulair bouwen wordt belemmerd door het huidige economische systeem en beperkte garanties (3)
19 februari
Circulair bouwen vraagt om āopenā ontwerpen (1)
17 februari
Eigentijds waterfront voor Oud-Beijerland door team van RoosRos
19 januari 2021
Tien ontwerpen geselecteerd voor Buitenplaats Koningsweg
24 december 2021
Binckhorst krijgt 36 meter hoog woongebouw in CLT
2 september 2024
Raad Rotterdam wil helderheid over al jaren braakliggend pretpark
19 februari 2024
Omgevingsvergunning nieuwbouwproject Groei! onherroepelijk
31 maart 2025
Kinderdagverblijf met duurzaam karakter en natuurlijke uitstraling
13 februari 2025
Transformatie Rotterdams pakhuis Santos tot designwarenhuis gestart
10 januari 2022
Krijn Geevers en Katrien van Dijk benoemd tot associate bij Architectuur Maken
29 november 2024
Nederlands Fotomuseum verhuist naar voormalig pakhuis Santos
14 juli 2023
Bouw woonblok KOER in Rotterdam-Zuid van start
9 september 2022
Hans Wilschut fotografeert gerenoveerd en opgetopt pakhuis Santos
18 juni 2024
Architectuur Maken
8 september 2022
Studio Architectuur Maken ontwerpt festivalhart uit geleende materialen voor Rotterdam Architectuur Maand
13 juni 2025
Omgevingsvergunning voor twee woontorens op Katendrecht Rotterdam onherroepelijk
2 april 2025
Houten woongebouwen op kloostercomplex Nijmegen
10 april 2020
Startsein gegeven voor bouw De Scharnier op Katendrecht
29 september 2025
MAD presenteert ontwerp voor Danshuis Rotterdam
9 maart 2023
Hoogste punt blikvanger migratiemuseum Fenix bereikt
9 september 2024
Nominaties Rotterdam Architectuurprijs 2023 bekend
3 april 2023
Nederlands Fotomuseum heropent in februari 2026
10 september 2025
Driehoekige uitkijktoren symboliseert verbinding tussen landschappen
3 oktober 2022
Architectuur Maken ā genomineerd voor prijs Architect van het Jaar 2022
14 september 2022
Realisatie woningbouwproject De Bund op Katendrecht van start
16 december 2025
Dubbellezing met Robert Winkel (Mei) en Nina Aalbers (ArchitectuurMaken) in Keilepand
16 mei 2024
Architectuur Maken en Arcadis ontwerpen negentig woningen op Brediusterrein Muiden
27 juli 2022
Gebouw door Kraaijvanger Architects markeert scharnierpunt Katendrecht
8 december 2022
Circulair bouwen vereist breed draagvlak in het ontwerpteam (2)
18 februari
Circulair bouwen wordt belemmerd door het huidige economische systeem en beperkte garanties (3)
19 februari
Circulair bouwen vraagt om āopenā ontwerpen (1)
17 februari
Eigentijds waterfront voor Oud-Beijerland door team van RoosRos
19 januari 2021
Tien ontwerpen geselecteerd voor Buitenplaats Koningsweg
24 december 2021
Binckhorst krijgt 36 meter hoog woongebouw in CLT
2 september 2024
Raad Rotterdam wil helderheid over al jaren braakliggend pretpark
19 februari 2024
Omgevingsvergunning nieuwbouwproject Groei! onherroepelijk
31 maart 2025
Kinderdagverblijf met duurzaam karakter en natuurlijke uitstraling
13 februari 2025
Toon alles
Andere nieuwsberichten
Restauratie Atlasbeeld op dak Koninklijk Paleis Amsterdam afgerond
10 april, 3:38
Het beeld op het fronton van het paleis was in juli van zijn plek gehaald voor een uitgebreide onderhoudsbeurt in Antwerpen.
Nieuw zitgebied Lounge 2 Schiphol geïnspireerd door overgangsfase in oeuvre Mondriaan
10 april, 2:16
Op luchthaven Schiphol is de derde en laatste fase van door Beyond Space ontworpen zitgebieden opgeleverd. Net als de eerste twee fases van het project is dit gedeelte geïnspireerd door het werk van Mondriaan, maar dan uit een eerdere periode.
SeARCH en Heutink Groep winnen tender voor woongebouw Sluisbuurt
10 april, 11:15
Gebouw Radius biedt plek aan zoān honderd appartementen, een stadskamer, een binnentuin, daktuinen en andere gemeenschappelijke ruimtes. Het gebouw wordt gerealiseerd van natuurlijke materialen als hout, stampleem en leemsteen.
Woontoren Front door Monadnock wint tiende Architectuurprijs Nijmegen
9 april, 10:00
āFront is een optimistisch icoon, gemaakt met lef, dat ambachtelijkheid en vakmanschap uitstraaltā, stelt de jury in zijn rapport.
Grote en kleine gemeenten balen van bouwregels Zuid-Holland
10 april, 4:31
Grote en kleine gemeenten in Zuid-Holland hebben hun zorgen geuit over nieuwe regels van de provincie, die volgens hen de woningbouw belemmeren.
Twijfels in Zuid-Holland over halen van doelen landelijk gebied
10 april, 12:18
De meeste partijen in de Zuid-Hollandse politiek hebben twijfels over de plannen die in zestien deelgebieden zijn gemaakt voor de aanpak van het landelijk gebied.
Huurprijzen stijgen harder dan koopwoningprijzen
10 april, 9:31
Volgens Huurwoningen.nl en Pararius moesten nieuwe huurders in het eerste kwartaal gemiddeld 21,12 euro per vierkante meter per maand neerleggen.
ABN AMRO: investeringen defensie vergroten druk op bouwcapaciteit
9 april, 12:29
Kazernes, opslagplaatsen en oefenterreinen dingen om dezelfde aannemers, ingenieurs en installateurs die ook nodig zijn voor bijvoorbeeld woningbouw.
Europa kent 831 miljoen euro subsidie toe aan Utrechtse projecten
9 april, 9:27
Het gaat onder meer om projecten tegen oververhitting van gebouwen, slimmer gebruik van energie en het hergebruik van materialen en grondstoffen.
Rotterdam mag woningen gaan bouwen aan de Parkhaven
8 april, 3:38
De Raad van State maakte woensdag bekend dat alle bezwaren tegen het bestemmingsplan zijn verworpen.
Ga naar het nieuws-archief
Ronnie Weessies
Redacteur
0
0
0
0
Voor een optimale gebruikservaring plaatst Architectenweb functionele cookies. Wat de verschillende cookies precies doen leggen we uit in een
overzicht
. Cookies van social media kun je optioneel
aanzetten
.
Akkoord
Instellingen
Annuleren
OK
Sluiten
Doorgaan
Inloggen
Maak een gratis persoonlijk account aan
Feedback
Feedback
Wij horen graag jouw feedback. Laat je reactie achter en eventueel jouw e-mail adres.
Reactie
Verstuur