Projecten
Producten
Bedrijven
Vacatures
Agenda
Awards
Podcasts
more_horiz
Videos
Magazine
Favorieten
Profiel
Uitloggen
Abonneer je nu op onze nieuwsbrieven!
Abonneren
Nee, bedankt
Ja, denk met me mee rond de
materialisering van mijn project
Copyright: SDK Vastgoed
Copyright: SDK Vastgoed
Copyright: SDK Vastgoed
Copyright: SDK Vastgoed
Copyright: SDK Vastgoed
Copyright: SDK Vastgoed
Copyright: S&P Landscape Architecture
Copyright: S&P Landscape Architecture
Copyright: LEVS architecten
Situatie
Copyright: LEVS architecten
Buurtaansluiting
Copyright: LEVS architecten
Volumeconcept
Copyright: LEVS architecten
Volumeconcept
Copyright: LEVS architecten
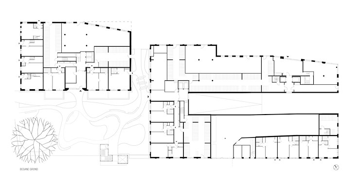
Begane grond
Copyright: LEVS architecten
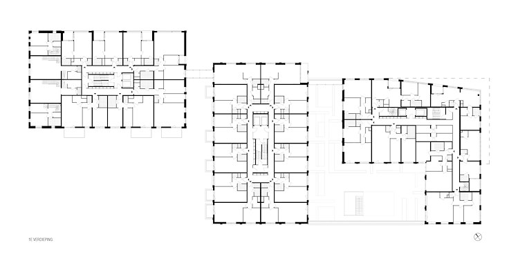
Eerste verdieping
Copyright: LEVS architecten
Achtste verdieping
Copyright: LEVS architecten
Groenconcept
Copyright: S&P Landscape Architecture
Duurzaamheidsconcept
Copyright: S&P Landscape Architecture
Concept collectiviteit
Copyright: S&P Landscape Architecture
Bouw woningbouwproject Groot Hartje bij Philips Stadion gestart
29 april 2022, 14:47
Op een nieuwbouwlocatie vlak naast het Philips Stadion in Eindhoven is gestart met de bouw van Groot Hartje. Het door
LEVS architecten
ontworpen project bestaat uit drie volumes met in totaal 264 woningen en een aantal commerciële voorzieningen in de plint. Het plan wordt naar ontwerp van
S&P Landscape Architecture
rijkelijk voorzien van groen.
Het plan heeft een zeer hoge dichtheid aan woningen en bevindt zich toch al op een ‘dichte’ locatie, waar zich behalve het PSV-stadion meerdere woongebouwen en de buurt Philipsdorp zich bevinden. Daarnaast ligt het project in de loop van het stadscentrum naar Strijp S, aan het spoor en boven de ondergrondse parkeergage van het genoemde voetbalstadion. De toegang tot deze parkeergarage is opgenomen in het ontwerp.
Het blok sluit aan op de middelhoge woongebouwen naast het stadion. De sterke stedelijke wand langs de straat schermt een geluidsluw binnengebied af. Door het plan op te splitsen in drie losse gebouwdelen krijgt het plan een overzichtelijke schaal en ontstaat ruimte voor rustige tuinen, laten de architecten weten. Op de kop staan vier stadwoningen, die de aansluiting met de aangrenzende Lijsterbesbuurt markeren.
Subtiel terugliggende vlakken
In het gevelontwerp is met minimale ingrepen voor variatie en samenhang gezorgd, bijvoorbeeld door de subtiel terugliggende vlakken in het metselwerk, horizontale betonnen banden in een deel van het plan en een regelmatige verdeling van de balkons.
De stadswoningen aan de kop richting de Lijsterbesbuurt hebben gevels van groen keramiek. Met twee tinten groen hebben de architecten op de gevel het patroon van een barcode ontworpen, die doorzet in het hekwerk rond de tuin. De barcode codeert voor ‘040 De Jonghlaan,’ een samentrekking van het Eindhovense netnummer en de straatnaam.
Drie ‘landschappen’
Het groenplan van S&P is opgedeeld in drie ‘landschappen’. Op de hoek van het plan komt een door het ‘barcode’-hek omheinde openbare parktuin rond een bestaande plataan. Een niveau hoger ligt een tuin voor de bewoners, met een glazen kas en genoeg ruimte voor de bewoners om gezamenlijk te gebruiken naar eigen inzicht. Het derde ‘landschap’ loopt met klimplanten langs de gevels omhoog naar sedumdaken waar water wordt opgevangen en vastgehouden.
De oplevering van het 22.000 vierkante meter bvo omvattend Groot Hartje staat gepland voor het eerste kwartaal van 2024. LEVS en S&P werken in opdracht van SDK Vastgoed en Amvest. Het woonprogramma is opgedeeld in 201 middeldure huurwoningen en 63 koopwoningen.
Trefwoorden
levs architecten
eindhoven
philips stadion
woningbouw
s&p landscape architecture
Locatie
Best gelezen
1
Woontoren Front door Monadnock wint tiende Architectuurprijs Nijmegen
donderdag, 9 april
2
Architect Cees Dam op 93-jarige leeftijd overleden
dinsdag, 14 april
3
SeARCH en Heutink Groep winnen tender voor woongebouw Sluisbuurt
vrijdag, 10 april
4
Powerhouse Company wint aanbesteding voor verbouwing Vista College Maastricht
dinsdag, 14 april
5
Tien bureaus geselecteerd voor tweede ronde nieuwbouw De Meervaart
woensdag, 15 april
Gerelateerde nieuwsberichten
PSV presenteert plannen voor uitbreiding Philips Stadion
20 maart
LEVS architecten – genomineerd voor prijs Architect van het Jaar 2024
23 september 2024
LEVS architecten
1 september 2024
Bouw van project Fusion in Amsterdam Zuidoost gestart
5 maart 2025
LEVS architecten publiceert boek Carbon-based Design
2 februari 2023
Raad van State verwerpt bezwaren tegen woontorens op Stationsplein Eindhoven
26 januari 2023
Weg vrij voor realisatie woningbouwproject Nieuw Bergen in centrum Eindhoven
25 november 2022
LEVS verdicht wederopbouwbuurt met woningbouwproject Dickensplaats
4 oktober 2022
LEVS ontwikkelt ontwerpmethodiek om CO2-uitstoot projecten te verminderen
28 september 2022
Don Murphy benoemd tot nieuwe supervisor voor centrum Eindhoven
15 september 2022
Lofts in een loods op Cruquiuseiland
12 juli 2022
PSV presenteert plannen voor uitbreiding Philips Stadion
20 maart
LEVS architecten – genomineerd voor prijs Architect van het Jaar 2024
23 september 2024
LEVS architecten
1 september 2024
Bouw van project Fusion in Amsterdam Zuidoost gestart
5 maart 2025
LEVS architecten publiceert boek Carbon-based Design
2 februari 2023
Raad van State verwerpt bezwaren tegen woontorens op Stationsplein Eindhoven
26 januari 2023
Weg vrij voor realisatie woningbouwproject Nieuw Bergen in centrum Eindhoven
25 november 2022
LEVS verdicht wederopbouwbuurt met woningbouwproject Dickensplaats
4 oktober 2022
LEVS ontwikkelt ontwerpmethodiek om CO2-uitstoot projecten te verminderen
28 september 2022
Don Murphy benoemd tot nieuwe supervisor voor centrum Eindhoven
15 september 2022
Lofts in een loods op Cruquiuseiland
12 juli 2022
Toon alles
Gerelateerde podcasts
Gesprek met Jurriaan van Stigt over carbon-based design
2 maart 2023
Gerelateerde video's
LEVS architecten
Nominatie voor de prijs voor Architect van het Jaar 2024
Andere nieuwsberichten
Anterieure overeenkomst voor bouw woontoren The Four in Eindhoven
Vandaag, 13:26
Naar verwachting wordt beging volgend jaar gestart met de bouw van woontoren The Four in Eindhoven. De door Mecanoo ontworpen toren op de zogeheten Vierlanderlocatie in Fellenoord bestaat uit 306 woningen.
Jury maakt shortlist Prix de Rome Architectuur 2026 bekend
Vandaag, 09:30
Dérive (Hedwig van der Linden and Kevin Westerveld), Maarten Plomp en Iris van der Wal, Namelok (Wiegert Ambagts en Kaj van Boheemen) en Slodka x Zatta (Izabela Slodka en Federica Zatta) zijn de kanshebbers voor deze editie van de prijs.
Woontoren Front vervult meerdere rollen in Hart van de Waalsprong
Gisteren, 16:31
Vorige week werd de door Monadnock ontworpen woontoren Front onderscheiden met de Architectuurprijs Nijmegen. Het achthoekige gebouw in Lent markeert het centrum van de stadsuitbreiding Hart van de Waalsprong.
Bijzonder erfgoed Fundatie van Renswoude Utrecht gered
Gisteren, 15:29
Hendrick de Keyser Monumenten heeft de Fundatie van Renswoude in Utrecht, een bijzonder goed bewaard ensemble uit de 18e eeuw, verworven. Hiermee blijven gebouw, historisch interieur en collectie als een geheel behouden.
Architecten voor restauratie en herbestemming Rivièrahal gekozen
Vandaag, 12:00
Voor de grootscheepse restauratie en herbestemming van de Rivièrahal in de Rotterdamse Diergaarde Blijdorp zijn Mecanoo en BiermanHenket geselecteerd.
Bewoners aardbevingsgebied Groningen blijven kritisch op herstel
Vandaag, 10:34
Door de complexiteit en onzekerheid van het jarenlange proces ervaren mensen stress en frustratie.
ING: optoppen en splitsen van woningen steeds minder haalbaar
Gisteren, 13:22
Het kabinet-Jetten gaat naar verwachting het doel van 15.000 extra woningen per jaar uit verbouwingen niet halen, stelt ING.
Geen rechtszaak over subsidie ministerie aan Van Gogh Museum
Gisteren, 10:02
De zaak draait om geld dat het museum nodig zegt te hebben voor een renovatie.
AFM: funderingsproblemen bij bijna 220.000 woningen
14 april, 1:25
De huizen van bijna een half miljoen woningeigenaren hebben een hoog risico op funderingsproblemen of een mogelijke kwetsbare fundering.
Oprichter omgevallen vastgoedconcern Evergrande bekent schuld
14 april, 9:17
Evergrande was ooit de grootste projectontwikkelaar van China, maar kwam in de problemen toen het zijn schulden niet kon terugbetalen.
Ga naar het nieuws-archief
Ronnie Weessies
Redacteur
1
0
0
0
Voor een optimale gebruikservaring plaatst Architectenweb functionele cookies. Wat de verschillende cookies precies doen leggen we uit in een
overzicht
. Cookies van social media kun je optioneel
aanzetten
.
Akkoord
Instellingen
Annuleren
OK
Sluiten
Doorgaan
Inloggen
Maak een gratis persoonlijk account aan
Feedback
Feedback
Wij horen graag jouw feedback. Laat je reactie achter en eventueel jouw e-mail adres.
Reactie
Verstuur