Projecten
Producten
Bedrijven
Vacatures
Agenda
Awards
Podcasts
more_horiz
Videos
Magazine
Favorieten
Profiel
Uitloggen
Abonneer je nu op onze nieuwsbrieven!
Abonneren
Nee, bedankt
Ja, denk met me mee rond de
materialisering van mijn project
Copyright: Thijs Wolzak
Copyright: Thijs Wolzak
Copyright: Thijs Wolzak
Copyright: Thijs Wolzak
Copyright: Thijs Wolzak
Copyright: Thijs Wolzak
Copyright: Thijs Wolzak
Copyright: Thijs Wolzak
Copyright: Thijs Wolzak
Copyright: Thijs Wolzak
Copyright: Thijs Wolzak
Copyright: Moke Architecten
Copyright: Moke Architecten
Situatie
Copyright: Moke Architecten
Axonometrie
Copyright: Moke Architecten
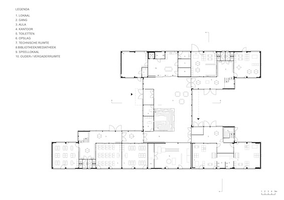
Begane grond
Copyright: Moke Architecten
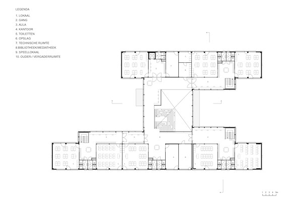
Verdieping
Copyright: Moke Architecten
Wit is bestaand, blauw is de uitbreiding
Copyright: Moke Architecten
Nieuwe uitstraling voor verbouwde school in Osdorp
25 juni 2021, 16:19
In Amsterdam-Osdorp is naar ontwerp van
Moke Architecten
een basisschool verbouwd. Het pand uit de jaren zestig van de vorige eeuw heeft een totaal nieuwe uitstraling gekregen, met behoud van de oorspronkelijke structuur. De oude betonnen gevel van basisschool De Wereldburger is voorzien van metalen en houten bekleding.
De metalen bekleding benadrukt de oorspronkelijke structuur, terwijl het hout de school een frisser en prettig uitstraling geeft. De grote raampartijen maken het gebouw open en licht en geven volgens architect Gianni Cito het gevoel dat je buiten staat. “Zeker aan de parkzijde is dat van grote toegevoegde waarde”, vertelt Cito over de school die aan het Stadspark Osdorp staat.
In het hele gebouw is veel hout toegepast, zoals voor de kapstokken, trappen, kasten en keukens. Hout is een natuurlijk, goed te bewerken materiaal met een warme uitstraling. Dat sluit naadloos aan op de prettige leeromgeving die we willen creëren. De drie meter brede gangen, met volop ruimte voor rustige leerplekken, dragen hier ook aan bij”, zegt Cito.
De school is tevens uitgebreid met een houten aula en klaslokalen. Een houten podiumtrap, die zich tevens leent voor optredens en vieringen, vormt de blikvanger in de nieuwe ruimte. Het hout dat voor de aula en trap is gebruikt, is afkomstig uit een afgebroken gymzaal elders in de stad. Verder zijn in het gebouw onder meer hergebruikte houten plafonds, wasbakken en deuren te vinden.
Trefwoorden
moke architecten
hout
amsterdam
school
amsterdam nieuw-west
osdorp
gianni cito
de wereldburger
Locatie
Best gelezen
1
Woontoren Front door Monadnock wint tiende Architectuurprijs Nijmegen
donderdag, 9 april
2
Spoorwegverleden inspireert ontwerp woonblok Wisselspoor 10 in Utrecht
woensdag, 8 april
3
Rotterdam mag woningen gaan bouwen aan de Parkhaven
woensdag, 8 april
4
RED Company vraagt vergunning aan voor productie- en onderzoeksfaciliteit Lilly
dinsdag, 7 april
5
KOW wint met Marker Woods tender voor nieuwe wijk Eschmarkerveld
woensdag, 8 april
Gerelateerde nieuwsberichten
Woningbouwproject SUHA in Amsterdamse wijk Osdorp opgeleverd
31 oktober 2023
Circulaire renovatie voor drie portiekflats in Osdorp
18 december 2023
Moke Architecten ontwerpt nieuwe havengebouwen tegenover Muiderslot
16 december 2021
Moke Architecten benoemt twee associates
13 maart 2024
Woongebouw De Baak in Amsterdam Nieuw-West officieel geopend
12 mei 2023
Van oud schoolgebouw naar buurtgebouw met breed sociaal programma
11 maart 2025
Met South Dock is herontwikkeling Pontkade NDSM-terrein voltooid
2 augustus 2023
'Sociaal ensemble' door Arons en Gelauff vervangt verouderde portiekflats Amsterdam Nieuw-West
15 juli 2024
Startsein voor bouw woontoren voor jongeren Opportuna
1 mei 2023
Voormalige school in Osdorp verbouwd tot sociale broedplaats
20 februari 2023
Winnaars NRP Gulden Feniks 2022 bekend
14 november 2022
Amsterdam kiest wederom voor nieuwbouw De Meervaart in de Sloterplas
27 oktober 2022
Negen nominaties voor NRP Gulden Feniks 2022
3 oktober 2022
Team met OZ en Flux wint aanbesteding multifunctioneel project Lelylaan
11 juli 2022
Stedelijke vernieuwing Westelijke Tuinsteden belicht in manifestatie SuperWest
29 juni 2022
Gouden A.A.P. 2022 toegekend aan Namenmonument en basisschool
19 mei 2022
Amsterdam en ontwikkelaar tekenen overeenkomst voor Verhalenhuis
28 maart 2022
Nominaties Gouden A.A.P. 2022 bekend
5 maart 2022
Klassiek schoolgebouw gerenoveerd naar ontwerp van 9graden architectuur
29 november 2021
Amsterdam start aanbesteding multifunctioneel gebouw Lelylaan
21 juli 2021
Jurgen ten Hoeve derde partner bij Moke Architecten
12 juli 2021
Bouwstart in Benin van groot conferentieoord naar ontwerp Moke Architecten
8 april 2021
Moke Architecten ontwerpt woontoren in centrum Zoetermeer
2 april 2021
Alle locaties weer op tafel voor nieuwbouw De Meervaart
1 april 2021
Moke Architecten presenteert concept erotisch centrum
14 december 2020
Winkel- en wooncomplex De Gaard in Utrecht uitgebreid en opgefrist
13 juli 2020
Startsein SuHa-blokken Amsterdam Osdorp gegeven
19 mei 2020
Bouw Pontkade Fase 3 op NDSM-terrein gestart
18 februari 2020
Chinees hotel in Amsterdam Osdorp geopend
2 oktober 2017
Gebouw De Hood in Osdorp geopend
5 april 2011
Basisschool St. Lukas (Mecanoo) geopend
21 januari 2011
Far West ontvangt De Groene Speld
10 december 2010
Woningbouwproject SUHA in Amsterdamse wijk Osdorp opgeleverd
31 oktober 2023
Circulaire renovatie voor drie portiekflats in Osdorp
18 december 2023
Moke Architecten ontwerpt nieuwe havengebouwen tegenover Muiderslot
16 december 2021
Moke Architecten benoemt twee associates
13 maart 2024
Woongebouw De Baak in Amsterdam Nieuw-West officieel geopend
12 mei 2023
Van oud schoolgebouw naar buurtgebouw met breed sociaal programma
11 maart 2025
Met South Dock is herontwikkeling Pontkade NDSM-terrein voltooid
2 augustus 2023
'Sociaal ensemble' door Arons en Gelauff vervangt verouderde portiekflats Amsterdam Nieuw-West
15 juli 2024
Startsein voor bouw woontoren voor jongeren Opportuna
1 mei 2023
Voormalige school in Osdorp verbouwd tot sociale broedplaats
20 februari 2023
Winnaars NRP Gulden Feniks 2022 bekend
14 november 2022
Amsterdam kiest wederom voor nieuwbouw De Meervaart in de Sloterplas
27 oktober 2022
Negen nominaties voor NRP Gulden Feniks 2022
3 oktober 2022
Team met OZ en Flux wint aanbesteding multifunctioneel project Lelylaan
11 juli 2022
Stedelijke vernieuwing Westelijke Tuinsteden belicht in manifestatie SuperWest
29 juni 2022
Gouden A.A.P. 2022 toegekend aan Namenmonument en basisschool
19 mei 2022
Amsterdam en ontwikkelaar tekenen overeenkomst voor Verhalenhuis
28 maart 2022
Nominaties Gouden A.A.P. 2022 bekend
5 maart 2022
Klassiek schoolgebouw gerenoveerd naar ontwerp van 9graden architectuur
29 november 2021
Amsterdam start aanbesteding multifunctioneel gebouw Lelylaan
21 juli 2021
Jurgen ten Hoeve derde partner bij Moke Architecten
12 juli 2021
Bouwstart in Benin van groot conferentieoord naar ontwerp Moke Architecten
8 april 2021
Moke Architecten ontwerpt woontoren in centrum Zoetermeer
2 april 2021
Alle locaties weer op tafel voor nieuwbouw De Meervaart
1 april 2021
Moke Architecten presenteert concept erotisch centrum
14 december 2020
Winkel- en wooncomplex De Gaard in Utrecht uitgebreid en opgefrist
13 juli 2020
Startsein SuHa-blokken Amsterdam Osdorp gegeven
19 mei 2020
Bouw Pontkade Fase 3 op NDSM-terrein gestart
18 februari 2020
Chinees hotel in Amsterdam Osdorp geopend
2 oktober 2017
Gebouw De Hood in Osdorp geopend
5 april 2011
Basisschool St. Lukas (Mecanoo) geopend
21 januari 2011
Far West ontvangt De Groene Speld
10 december 2010
Toon alles
Andere nieuwsberichten
Restauratie Atlasbeeld op dak Koninklijk Paleis Amsterdam afgerond
Gisteren, 15:38
Het beeld op het fronton van het paleis was in juli van zijn plek gehaald voor een uitgebreide onderhoudsbeurt in Antwerpen.
Nieuw zitgebied Lounge 2 Schiphol geïnspireerd door overgangsfase in oeuvre Mondriaan
Gisteren, 14:16
Op luchthaven Schiphol is de derde en laatste fase van door Beyond Space ontworpen zitgebieden opgeleverd. Net als de eerste twee fases van het project is dit gedeelte geïnspireerd door het werk van Mondriaan, maar dan uit een eerdere periode.
SeARCH en Heutink Groep winnen tender voor woongebouw Sluisbuurt
Gisteren, 11:15
Gebouw Radius biedt plek aan zo’n honderd appartementen, een stadskamer, een binnentuin, daktuinen en andere gemeenschappelijke ruimtes. Het gebouw wordt gerealiseerd van natuurlijke materialen als hout, stampleem en leemsteen.
Woontoren Front door Monadnock wint tiende Architectuurprijs Nijmegen
9 april, 10:00
“Front is een optimistisch icoon, gemaakt met lef, dat ambachtelijkheid en vakmanschap uitstraalt”, stelt de jury in zijn rapport.
Grote en kleine gemeenten balen van bouwregels Zuid-Holland
Gisteren, 16:31
Grote en kleine gemeenten in Zuid-Holland hebben hun zorgen geuit over nieuwe regels van de provincie, die volgens hen de woningbouw belemmeren.
Twijfels in Zuid-Holland over halen van doelen landelijk gebied
Gisteren, 12:18
De meeste partijen in de Zuid-Hollandse politiek hebben twijfels over de plannen die in zestien deelgebieden zijn gemaakt voor de aanpak van het landelijk gebied.
Huurprijzen stijgen harder dan koopwoningprijzen
Gisteren, 09:31
Volgens Huurwoningen.nl en Pararius moesten nieuwe huurders in het eerste kwartaal gemiddeld 21,12 euro per vierkante meter per maand neerleggen.
ABN AMRO: investeringen defensie vergroten druk op bouwcapaciteit
9 april, 12:29
Kazernes, opslagplaatsen en oefenterreinen dingen om dezelfde aannemers, ingenieurs en installateurs die ook nodig zijn voor bijvoorbeeld woningbouw.
Europa kent 831 miljoen euro subsidie toe aan Utrechtse projecten
9 april, 9:27
Het gaat onder meer om projecten tegen oververhitting van gebouwen, slimmer gebruik van energie en het hergebruik van materialen en grondstoffen.
Rotterdam mag woningen gaan bouwen aan de Parkhaven
8 april, 3:38
De Raad van State maakte woensdag bekend dat alle bezwaren tegen het bestemmingsplan zijn verworpen.
Ga naar het nieuws-archief
Ronnie Weessies
Redacteur
1
0
0
0
Voor een optimale gebruikservaring plaatst Architectenweb functionele cookies. Wat de verschillende cookies precies doen leggen we uit in een
overzicht
. Cookies van social media kun je optioneel
aanzetten
.
Akkoord
Instellingen
Annuleren
OK
Sluiten
Doorgaan
Inloggen
Maak een gratis persoonlijk account aan
Feedback
Feedback
Wij horen graag jouw feedback. Laat je reactie achter en eventueel jouw e-mail adres.
Reactie
Verstuur