Projecten
Producten
Bedrijven
Vacatures
Agenda
Awards
Podcasts
more_horiz
Videos
Magazine
Thema's
Favorieten
Profiel
Uitloggen
Copyright: René de Wit
Copyright: René de Wit
Copyright: René de Wit
Copyright: René de Wit
Copyright: René de Wit
Copyright: René de Wit
Copyright: René de Wit
Copyright: René de Wit
Copyright: René de Wit
Copyright: René de Wit
Copyright: René de Wit
Copyright: René de Wit
Copyright: René de Wit
Copyright: René de Wit
Copyright: René de Wit
Copyright: René de Wit
Copyright: René de Wit
Copyright: René de Wit
Copyright: René de Wit
Copyright: René de Wit
Copyright: René de Wit
Copyright: René de Wit
Copyright: Denkkamer
Copyright: Denkkamer
Copyright: Denkkamer
Copyright: Denkkamer
Copyright: Denkkamer
Volglazen kantoorgebouw met ferme luifels
26 oktober 2020, 11:26
Bij een rotonde in de N272 waar de weg toegang geeft tot de Gemertse bedrijventerreinen Wolfveld en Smartpark is een nieuw kantoorgebouw voor Van Dijk Groep gerealiseerd. Het ontwerp van
Denkkamer
valt op door de volglazen gevels met afgeronde hoeken en flink uitkragende luifels.
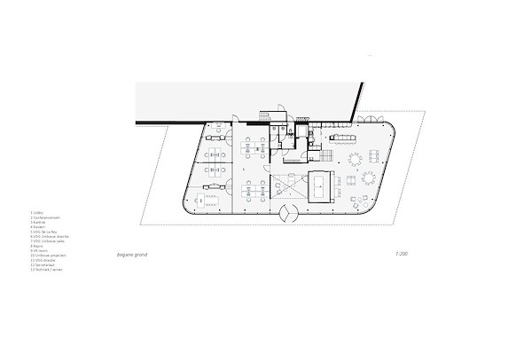
Het nieuwe hoofdkantoor voor Van Dijk Groep (VDG) biedt ruimte aan een aantal met name bouwgerelateerde ondernemingen, die deel uitmaken van het concern. Het ontwerp van Denkkamer en de plaatsing van de afzonderlijke ondernemingen in de nieuwbouw volgen uit de afzonderlijke behoeftes en ambities, legt het architectenbureau uit.
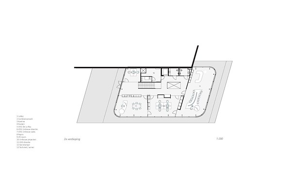
Verspringende lagen
VDG De La Roy bevindt zich op de begane grond, direct bij de productiefaciliteit in de hal waar het kantoorgebouw tegenaan is geplaatst. De eerste verdieping is groter van oppervlakte, zodat Unibouw de ruimte heeft om in zijn geheel vanaf één laag te opereren.
De tweede verdieping heeft de kleinste oppervlakte. Deze laag vormt als het ware een penthouse, aldus Denkkamer, met ruimte voor Unigoed, Uniebeheer en de directie van VDG.
Het kantoorpand is op een hoek tegen de productiehal geschoven en volgt in de plattegrond de oriëntatie van de gevels op deze hoek. Het kantoorgebouw heeft daardoor een parallellogram als plattegrond voor elke verdieping. De gevels bestaan, waar het pand niet de hal raakt, geheel uit glas. De hoeken zijn daarbij afgerond.
Contact en uitzicht
Aan de noordzijde bevindt zich midden in de lange gevel de hoofdentree. Medewerkers van de diverse bedrijven, de directie, klanten en gasten betreden alle het gebouw via deze entree. De achterliggende lobby en kantine bieden een omgeving om elkaar informeel te ontmoeten en kennis uit te wisselen.
In het hart van het gebouw is een vide gerealiseerd, die vanaf de entree ruimtelijk en visueel contact maakt met de lagen erboven. Achter de centraal geplaatste trappen, tegen de hal geschoven, bevinden zich de ondersteunende functies zoals keuken, toiletten, garderobe en dergelijke.
De werk- en ontmoetingsplekken zijn zoveel mogelijk langs de glazen gevel geplaatst, zodat ze maximaal profiteren van daglicht en uitzicht. Het interieur is een ontwerp van
STRK
.
Doorlopende lijnen
Uitkragende luifels beschermen de kantoorruimten tegen zonlicht en voorkomen overmatige opwarming van het interieur, legt Denkkamer uit. Tegelijkertijd kaderen de luifels het panoramische zicht vanuit de kantoren over de provinciale weg en richting het bosgebied ten noorden van het gebouw.
Aan de onderzijde zijn de luifels afgewerkt met thermisch gemodificeerd hout en aan de bovenzijde zijn ze voorzien van kunstgras. De voorzijde van de luifels is voorzien van geanodiseerd aluminiumcomposiet. De luifels zetten zich als verdiept liggende band door in de gevel van de productiehal, waardoor kantoorgebouw en hal een eenheid vormen.
Trefwoorden
glas
denkkamer architectuur & onderzoek
kantoorgebouw
denkkamer
gevel
strk
gemert
Locatie
Best gelezen
1
Realisatie woongebouw Atlas I naast Essalammoskee in Rotterdam-Zuid gestart
woensdag, 10 december
2
Pixelgevel van MVRDV versterkt uitstraling modulaire woontorens in Singapore
maandag, 8 december
3
Kollhoff & Pols realiseert 58 woningen in monumentale panden Den Haag
dinsdag, 9 december
4
Architecten tonen voorstellen voor woningbouw in tussenruimtes Wallengebied
donderdag, 11 december
5
Gebouwen niet slopen, maar langzaam laten rijpen
donderdag, 11 december
Gerelateerde nieuwsberichten
Respectvolle renovatie door Heyligers van modernistisch kantoorpand
17 februari 2021
Circulariteit is leidraad bij renovatie WTCB-kantoorgebouw in Zaventem
19 april 2021
Kantoorgebouw van Denkkamer kraagt over de geluidswal
13 oktober 2020
Installatie vermeerdert waarde champignonkwekerij
29 september 2016
Nieuw Dura Vermeer Inspiration Centre is “duurzaam en gezond”
15 oktober 2020
Bouw The Joan Amsterdam van start gegaan
8 oktober 2020
Door OMA ontworpen gebouw voor Axel Springer Berlijn geopend
6 oktober 2020
Barcode Architects ontwerpt nieuw kantoor SDK en Stam + De Koning
30 september 2020
Van fabriekshal tot kantooromgeving met behoud van licht en ruimte
29 september 2020
Dam & Partners ontwerpt houten kantoorgebouw op Zuidas
28 september 2020
AAArchitecten ontwerpt duurzaam hoofdkantoor Brabantia
17 september 2020
DPG Media verhuist naar hybride houten kantoorgebouw Amsterdam
14 september 2020
Studio Prototype ontwerpt kantoorgebouw in zakendistrict Schiphol
26 augustus 2020
Ingetogen kantoor geïnspireerd op lokale boerderijen
20 augustus 2020
Gevarieerd en flexibel gebouw voor Canon Production Printing
19 augustus 2020
Kristallijne toren speelt met reflectie en transparantie
6 augustus 2020
Beeldbepalend hoofdkantoor in groene omgeving
29 juli 2020
Nieuw kantoorgebouw als schakel tussen stad en Strijp-S
1 juli 2020
Broekbakema organiseert webinar ‘vitaliteit op de werkvloer’
10 maart 2021
Respectvolle renovatie door Heyligers van modernistisch kantoorpand
17 februari 2021
Circulariteit is leidraad bij renovatie WTCB-kantoorgebouw in Zaventem
19 april 2021
Kantoorgebouw van Denkkamer kraagt over de geluidswal
13 oktober 2020
Installatie vermeerdert waarde champignonkwekerij
29 september 2016
Nieuw Dura Vermeer Inspiration Centre is “duurzaam en gezond”
15 oktober 2020
Bouw The Joan Amsterdam van start gegaan
8 oktober 2020
Door OMA ontworpen gebouw voor Axel Springer Berlijn geopend
6 oktober 2020
Barcode Architects ontwerpt nieuw kantoor SDK en Stam + De Koning
30 september 2020
Van fabriekshal tot kantooromgeving met behoud van licht en ruimte
29 september 2020
Dam & Partners ontwerpt houten kantoorgebouw op Zuidas
28 september 2020
AAArchitecten ontwerpt duurzaam hoofdkantoor Brabantia
17 september 2020
DPG Media verhuist naar hybride houten kantoorgebouw Amsterdam
14 september 2020
Studio Prototype ontwerpt kantoorgebouw in zakendistrict Schiphol
26 augustus 2020
Ingetogen kantoor geïnspireerd op lokale boerderijen
20 augustus 2020
Gevarieerd en flexibel gebouw voor Canon Production Printing
19 augustus 2020
Kristallijne toren speelt met reflectie en transparantie
6 augustus 2020
Beeldbepalend hoofdkantoor in groene omgeving
29 juli 2020
Nieuw kantoorgebouw als schakel tussen stad en Strijp-S
1 juli 2020
Broekbakema organiseert webinar ‘vitaliteit op de werkvloer’
10 maart 2021
Toon alles
Andere nieuwsberichten
Faculteit ITC Universiteit Twente onderscheiden met Abe Bonnema Architectuurprijs 2025
Gisteren, 17:30
Vrijdag ontving Civic Architects de prijs en het bijbehorend geldbedrag van 50.000 euro uit handen van Ed Nijpels, voorzitter van de ir. Abe Bonnema Stichting.
MVRDV werkt aan renovatie boeddhistisch klooster in Franse Dordogne
Gisteren, 11:37
Naar ontwerp van MVRDV en het plaatselijke architectenbureau MoonWalkLocal ondergaat het boeddhistische klooster Plum Village in de Franse Dordogne een grote renovatie.
Studio for New Realities ontwerpt twee woongebouwen in District U
Gisteren, 10:00
De transformatie van het voormalige Unilever-terrein in Vlaardingen gaat een nieuwe fase in nu gestart is met de bouw van de eerste woningbouwprojecten.
Wanden uit leemsteen verbinden woning met Limburgs landschap
Gisteren, 09:00
In de landelijke omgeving van Weert, in het noorden van Limburg, heeft De Nieuwe Context een woning ontworpen waar wanden uit leemsteenblokken de verbinding tussen binnen en buiten manifest maken.
RIVM: verbeterde luchtkwaliteit leidde tot afname sterfte
Gisteren, 12:27
Een verbeterde luchtkwaliteit heeft ervoor gezorgd dat er tussen 1995 en 2019 een kwart minder mensen zijn overleden na dagen met verhoogde concentraties van luchtverontreinigende stoffen.
Zuid-Holland: met dubbel agrarisch ruimtegebruik stroom voor 700.000 huizen
Gisteren, 11:06
De provincie heeft laten uitzoeken waar de combinatie van landbouw en zonnepanelen in theorie mogelijk is.
Miljarden extra nodig voor aanleg landelijk waterstofnetwerk
11 december, 3:13
Volgens de Algemene Rekenkamer zijn de verwachte opstartverliezen meer dan drie keer zo hoog als het beschikbare subsidiebedrag van 750 miljoen euro.
Brussel wil snellere vergunningen voor elektriciteitsprojecten
11 december, 1:39
De Europese Commissie wil dat elektriciteitsnetwerken van lidstaten beter op elkaar aansluiten.
Zeeland stopt samenwerking met aannemers over aanpak Zeelandbrug
10 december, 1:56
Volgens de provincie heeft de aannemerscombinatie een kostenraming gepresenteerd die fors boven het eerder vastgestelde budget van 5,5 miljoen euro ligt.
Verbreding Betuwelijn in Duitsland duurt nog minstens tien jaar
10 december, 12:30
De bedoeling is dat er in Duitsland meer dan zeventig kilometer spoor bijkomt, elf stations worden omgebouwd en 47 viaducten en bruggen worden aangepast.
Ga naar het nieuws-archief
Robert Muis
Redacteur
1
0
0
0
Voor een optimale gebruikservaring plaatst Architectenweb functionele cookies. Wat de verschillende cookies precies doen leggen we uit in een
overzicht
. Cookies van social media kun je optioneel
aanzetten
.
Akkoord
Instellingen
Annuleren
OK
Sluiten
Doorgaan
Inloggen
Maak een gratis persoonlijk account aan
Feedback
Feedback
Wij horen graag jouw feedback. Laat je reactie achter en eventueel jouw e-mail adres.
Reactie
Verstuur