Projecten
Producten
Bedrijven
Vacatures
Agenda
Awards
Podcasts
more_horiz
Videos
Magazine
Thema's
Favorieten
Profiel
Uitloggen
Nieuw
Populair
Toon alles
Architectenweb magazine #14
Architectenweb magazine #13
Publieke gebouwen
Architectenweb magazine #12
Kantoren
Architectenweb magazine #11
Scholen
Architectenweb magazine #10
Zorg
Architectenweb magazine #14
Architectenweb magazine #10
Zorg
Architectenweb magazine #12
Kantoren
Architectenweb magazine #13
Publieke gebouwen
Architectenweb magazine #6
Transformatie en Renovatie
Om direct naar je favorieten te kunnen gaan is het nodig om eerst in te loggen.
Nieuw
Architectenweb Awards 2025
Architectenweb Awards 2024
Architectenweb Awards 2023
Architectenweb Awards 2022
Architectenweb Awards 2021
Architectenweb Awards 2020
Architectenweb Awards 2019
Architectenweb Awards 2018
Om direct naar je favorieten te kunnen gaan is het nodig om eerst in te loggen.
Nieuw
Populair
Favorieten
Toon alles
Vakwerk Architecten
Nominatie voor de prijs voor Architect van het Jaar 2025
Sanne van Manen
Nominatie voor de prijs voor Architect van het Jaar 2025
KSA
Nominatie voor de prijs voor Architect van het Jaar 2025
KRFT
Nominatie voor de prijs voor Architect van het Jaar 2025
Joost Ector
Nominatie voor de prijs voor Architect van het Jaar 2025
Prijsuitreiking Architectenweb Awards 2024
Impressie van een feestelijke avond
Martens, Willems & Humblé Architecten
Nominatie voor de prijs voor Architect van het Jaar 2024
Uitreiking van Architectenweb Awards 2020
Impressie van de prijsuitreiking via Zoom
De Zwarte Hond
Nominatie voor de prijs voor Architect van het Jaar 2024
Avond met De Zwarte Hond
Symposium
Om direct naar je favorieten te kunnen gaan is het nodig om eerst in te loggen.
Nieuw
Populair
Categorieën
Favorieten
Toon alles
Brandpreventie Academy BV
Cay Circulaire Keukens
Circulaire keukens en pantry's
Studio Kirsten Reith
Interieurontwerp
Studio175
Interieuradvies in regio Utrecht
Orange Automatic Doors
Indoorwrap
De specialist in Keukenwrappen
Cay Circulaire Keukens
Circulaire keukens en pantry's
Studio Kirsten Reith
Interieurontwerp
Studio175
Interieuradvies in regio Utrecht
Interior & Co
Orange Automatic Doors
Indoorwrap
De specialist in Keukenwrappen
Architecten
Architectuur
Mobiliteit en infrastructuur
Stedenbouw en landschapsarchitectuur
Leveranciers
Gevels
Daken
Ramen en deuren
Trappen, liften en balustrades
Binnenwanden
Vloeren
Plafonds
Verlichting
Sanitair
Projectinrichting
Installaties
Constructies
Buitenruimte
Software
Adviseurs
Bestekschrijvers
Bouwmanagement
Installatie adviseurs E
Bouwfysica
Calculators
Installatie adviseurs G/W
Bouwkundig tekenwerk
Constructeurs
Lichtadviseurs
Adviseur beveiliging
Juristen
Intermediairs, Payrolling
Aannemers
Overig
Presentatie
Instellingen / onderwijs
Overig
Om direct naar je favorieten te kunnen gaan is het nodig om eerst in te loggen.
Nieuw
Populair
Favorieten
Toon alles
Gesprek met Stephan Sliepenbeek over hoogbouw in Amstel III
Gesprek met Ellen van Bueren over gebiedsontwikkeling en hoogbouw
Gesprek met Ma Yansong over ontwerpen die emotie oproepen
Gesprek met Paul de Ruiter over innovatieve en duurzame hoogbouw
Gesprek met Pi de Bruijn over zijn ontwerpen voor de Tweede Kamer toen en nu
Gesprek met Ellen van Bueren over gebiedsontwikkeling en hoogbouw
Gesprek met Oresti Sarafopoulos over het ontwerpen van een kantoorgebouw met bijna geen installaties
Gesprek met Stijn Steenbakkers over verdichting en hoogbouw in Eindhoven
Gesprek met Pi de Bruijn over zijn ontwerpen voor de Tweede Kamer toen en nu
Gesprek met Paul de Ruiter over innovatieve en duurzame hoogbouw
Om direct naar je favorieten te kunnen gaan is het nodig om eerst in te loggen.
Nieuw
Populair
Categorieën
Favorieten
Toon alles
Den Hartogh Basecamp
FÆnslet
Exclusieve wooneenheden
Alphen aan de Rijn - Park 100
Rivierwoning in het ritme van het Rijngebied
ASML Gebouw 3
Prinsenpark, Rotterdam
IVY, Amsterdam
IKC De Brug
Houthavens, Amsterdam
Architectuur
Woningbouw
Zorg
Hotels
Restaurants en café’s
Winkels
Sportgebouwen
Culturele gebouwen
Overheidsgebouwen
Scholen
Kantoren
Bedrijfsgebouwen
Paviljoens en kunst
Overig
Mobiliteit en infrastructuur
Trein- en metrostations
Luchthavens
Busstations
Parkeergarages
Fietsparkeren
Wegen
Bruggen
Water
Energie
Tankstations en laadstations
Waterzuivering en afvalverwerking
Overig
Stedenbouw en landschapsarchitectuur
Regionale visies
Gebiedsvisies
Plannen stedelijk weefsel
Amusementsparken en dierentuinen
Lichtontwerpen
Openbare ruimte
Pleinen
Parken
Tuinen
Speelplaatsen
Uitkijktorens
Overige (bijv. begraafplaatsen)
Om direct naar je favorieten te kunnen gaan is het nodig om eerst in te loggen.
Nieuw
Populair
Categorieën
Favorieten
Toon alles
Rook- en warmteafvoer (RWA)
Een essentieel onderdeel van gebouwontwerp
Lumiglaze – Het vlakglas van VELUX Commercial
Een nieuw tijdperk in daglichtontwerp – minimalistisch, functioneel en klaar voor de toekomst.
Akoestisch kussen.
Ervaar de ultime natuurlijke oplossing voor akoestiek problemen.
Knauf MaxSpace
Minder wand, méér ruimte. Het ideale profiel voor meer winst per m²
Veelzijdig straatmeubilair
Van openbare ruimte naar (be)leefomgeving
Digital Prints
Meer mogelijkheden in gekleurd staal
Element+ H-I
Hout - Aluminium Elementgevel
Vierkante vluchtroutearmaturen voor grote ruimtes
Zichtbare veiligheid van alle kanten
Schüco Zonweringsysteem Integralmaster in FWS
Bescherming tegen zon, verblinding en privacy – verborgen en volledig geïntegreerd
GROHE Cubeo: kranen voor elke badkamer
Stijlvol en duurzaam design voor jarenlang plezier
Gevels
Gevelbekleding
Vliesgevels
Zonwering buiten
Isolatie
Gevelconstructies
Signing
Overig
Daken
Dakafwerkingen
Dakisolatie
Dakconstructies
Dakranden, dakgoten en HWA's
Dakramen
Lichtkoepels
Lichtstraten
Schoorstenen
Overig
Dakluiken
Ramen en deuren
Raam- en deursystemen / kozijnen
Vliesgevels
Hang- en sluitwerk
Beveiliging en luiken
Dorpels en vensterbanken
Lateien
Roosters
Glas
Dakramen
Dakkoepels
Lichtstraten
Zonwering buiten
Zonwering binnen
Buitendeuren
Binnendeuren
Postvakken en brievenbussen
Overig
Dakluiken
Trappen, liften en balustrades
Trappen
Roltrappen
Liften
Balustrades en hekwerken
Galerijen
Binnenwanden
Binnenwanden
Wandafwerking
Vloeren
Constructieve vloeren
Verhoogde vloeren
Vloerafwerkingen
Overig
Plafonds
Tegels
Lineair
Grill
Open en roosters
Naadloos
Eilanden en baffles
Plafondafwerkingen
Ophangsystemen
Overig
Klimaatplafonds
Verlichting
Binnenverlichting
Buitenverlichting
Sanitair
Kranen en douchesets
Wastafels
Douchewanden en douchebakken
Baden
Waterclosets
Accessoires
Overig
Projectinrichting
Stoelen
Banken
Tafels
Kasten
Balies
Vrijstaande wanden
Keukens
Accessoires
Overig
Cabines
Interieurbeplanting
Stoffering
Installaties
Verwarming, koeling en ventilatie
Elektrotechnische installaties
Schakelmateriaal
Domotica
Deurcommunicatie
Beveiliging
Liften
Onderhoudsinstallaties
Overig
Brandbeveiliging
Constructies
Draagconstructies
Funderingen en kelders
Overig
Brandbeveiliging
Buitenruimte
Bestratingen en verhardingen
Afwateringen
Terreinafscheidingen en geluidsschermen
Buitenmeubilair
Fietsparkeren
Terrassen
Terrasoverkappingen
Bruggen
Accessoires
Overig
Beplanting
Sport- en speeltoestellen
Software
Tekenen 2D
Modelleren 3D / BIM
Visualisatie / rendering
Parametrisch ontwerpen
Bouwfysica
Draagconstructie
Overig
Virtual Reality
Cloudoplossingen
Om direct naar je favorieten te kunnen gaan is het nodig om eerst in te loggen.
Nieuw
Populair
Favorieten
Toon alles
LIAG over duurzaamheid centraal in project
Online
Zomerwandelingen Nieuwe Stad op Zondag 2025
Amsterdam
Prefab beurs - 7 t/m 9 oktober 2025
Brabanthallen 's-Hertogenbosch
Boekpresentatie en panelgesprek met Floor Milikows
Prins Hendrikkade 600, 1011 VX Amsterdam
Architects Table ’25: Lunch & Inspiratie in HAUT Amsterdam
ATAG LIVE – HAUT gebouw, Spaklerweg 10F, 1096 BA Amsterdam (tegenover metrostation Spaklerweg)
Architects Table ’25: Lunch & Inspiratie in HAUT Amsterdam
ATAG LIVE – HAUT gebouw, Spaklerweg 10F, 1096 BA Amsterdam (tegenover metrostation Spaklerweg)
Ontdek het seminarieprogramma van Architect@Work Amsterdam
De Kromhouthal, Gedempt Hamerkanaal 231, Amsterdam
LIAG over duurzaamheid centraal in project
Online
1.Lectures HouseEurope! Renovate, don’t speculate
Pakhuis de Zwijger
Carbon Stories: Architects taking sustainable initiatives
Keilepand Rotterdam
Om direct naar je favorieten te kunnen gaan is het nodig om eerst in te loggen.
Nieuw
Toon alles
Design
Duurzaamheid
Gevel
Infrastructuur
Interieur
Kantoren
Leisure
Openbare ruimte
Publieke gebouwen
Scholen
Transformatie en Renovatie
Woningbouw
Zorg
Om direct naar je favorieten te kunnen gaan is het nodig om eerst in te loggen.
Nieuw
Populair
Toon alles
Bouwkundig projectleider (per direct)
Revit Modelleur / bouwkundige (per direct)
BIM/REVIT-modelleur
Bureaumanager
Nederlandstalige projectleider
Medior Technisch Interieurtekenaar
Junior Architect gezocht!
wUrck zoekt junior Architect
Project Architect
Shift zoekt medior/senior architect
Assistent Ontwerper & vakidioot
Architect
Om direct naar je favorieten te kunnen gaan is het nodig om eerst in te loggen.
Copyright: Sergio Grazia
Copyright: Sergio Grazia
Copyright: Sergio Grazia
Copyright: Sergio Grazia
Copyright: Sergio Grazia
Copyright: Sergio Grazia
Copyright: Sergio Grazia
Copyright: Sergio Grazia
Copyright: Sergio Grazia
Copyright: Sergio Grazia
Copyright: Sergio Grazia
Copyright: Sergio Grazia
Copyright: Sergio Grazia
Copyright: Sergio Grazia
Copyright: Sergio Grazia
Copyright: Sergio Grazia
Zuidoostgevel
Copyright: Valode & Pistre
Westoostgevel
Copyright: Valode & Pistre
Doorsnede
Copyright: Valode & Pistre
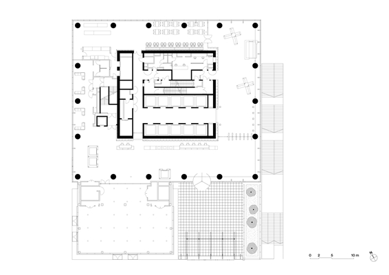
Begane grond
Copyright: Valode & Pistre
Plattegrond 27e verdieping
Copyright: Valode & Pistre
Plattegrond 37e verdieping, met openluchtruimte
Copyright: Valode & Pistre
Situatie
Copyright: Valode & Pistre
Kristallijne toren speelt met reflectie en transparantie
6 augustus 2020, 13:02
Architectenbureau
Valode & Pistre
ontwierp voor de Franse onderneming Saint Gobain een nieuw hoofdkantoor in de Parijse wijk La Défense. De architecten omschrijven de 165 meter hoge toren als een stapeling van drie kristallen. Grote kassen in het transparante gebouw vormen een van de invullingen van het steven naar uitstekende energieprestaties en gebruikerscomfort.
Het ontwerpen van een nieuwe toren in het huidige La Défense omvat het oplossen van uiteenlopende vraagstukken, leggen de architecten uit. Er zijn de functionele uitdagingen, zoals het creëren van een flexibel en efficiënt gebouw, en de technische en constructieve vraagstukken, in dit geval bijvoorbeeld de complexe bouwlocatie met veel beperkingen, aldus Valode & Pistre.
Opwindend en comfortabel
Daarnaast zijn er vragen op te lossen als de stedenbouwkundige inpassing in een omgeving die allengs transformeert van een pure zakenwijk naar een stedelijke wijk met een gemengd programma. Ook heeft Valode & Pistre moeten nadenken over het symbolische aspect, bij het ontwerpen van een hoofdkantoor voor een groot Frans concern. Niet in het minst, stelt het architectenbureau, gaat het ontwerpen van een toren over mensen en hoe het ontwerp hun beïnvloedt.
Dat geldt deels voor de emoties die de aanblik van zo’n bepalende aanwezigheid oproept, voor een andere deel wat het gebouw doet met de gebruikers ervan. Wat het bureau heeft nagestreefd, zo leggen de architecten uit: een gebouw dat gevoelens van opwinding teweegbrengt en voor de gebruikers een kwalitatief hoogwaardige omgeving biedt.
Kristallen
Het Franse concern Saint Gobain heeft zijn nieuwe hoofdkantoor eerder dit jaar betrokken; de bouw startte in 2017. De toren biedt een oppervlakte van 49.000 m
2
, verdeeld over 44 verdiepingen. De onderneming produceert en levert bouwmaterialen en –producten, maar glasproductie is de traditionele en nog altijd belangrijke activiteit. Vanzelfsprekend is de toren ontworpen en gerealiseerd in glas.
Valode & Pistre omschrijft zijn ontwerp als een combinatie van drie kristallen, die het licht vangen en verstrooien met een spel van reflectie en transparantie. De drie afgeschuinde prisma’s doen volgens de architecten ook denken, op geabstraheerde wijze, aan een voet, lichaam en hoofd. De toren wordt zo een figuur, die zijn hoofd draait en lichtjes bukt “als teken van warm welkom”.
Open en groen
Naast de architectonische driedeling kent de toren ook een programmatische verdeling. Het laagste deel bevat verschillende faciliteiten zoals publiek toegankelijke ruimten, waaronder een showroom op esplanade-niveau. Het lijf – het voornaamste deel van het gebouw – is bestemd voor kantoorruimte.
De hoogste verdiepingen, in het bovenste glazen prisma, biedt plaats aan ontvangst- en ontmoetingsruimten. Ook heeft Valode & Pistre hier bijzondere open ruimten, in de vorm van enorme vides met panoramische uitzichten gecreëerd. Grote kassen dragen bij aan de uitstraling èn de milieuprestaties van het gebouw.
Daglicht en groen zijn, naast technische en architectonische oplossingen, ingezet om de toren zowel een aangename werkomgeving als een energiezuinig gebouw te maken toren. De kantoorvloeren profiteren eveneens van een panoramisch uitzicht en genieten in hoge mate van het binnenvallend daglicht.
Voorts heeft elke kantoorvloer toegang tot een tuin. Daar staan de medewerkers in het groen en de buitenlucht, maar door glas toch beschut tegen de wind.
Trefwoorden
frankrijk
valode & pistre
hoogbouw
kantoorgebouw
gevel
la défense
glas
parijs
saint gobain
toren
kantoortoren
Locatie
Best gelezen
1
Na renovatie en verduurzaming heeft Aquarium van Artis zijn helderheid terug
donderdag, 25 september
2
Rapport: rijke Amsterdammers leven steeds vaker apart van rest
dinsdag, 30 september
3
Architectenweb symposium: klein maar fijn wonen?
donderdag, 25 september
4
Kabinet wil wijken erbij op 127 plekken in Nederland
maandag, 29 september
5
Leiden wil verhoogd busstation naast treinperrons centraal station
dinsdag, 30 september
Gerelateerde nieuwsberichten
10 kantoorgebouwen met glazen gevels en grote overstekken
2 maart 2022
Frankrijk maakt stranden, parken en bossen rookvrij
28 november 2023
Zaha Hadid Architects ontwerpt OPPO-hoofdkantoor in vier torens
28 januari 2020
Pas de deux van torenhelften rond het atrium
20 november 2019
Bouwstart voor ‘doorgesneden’ kantoortoren bij Utrecht Centraal
19 april 2019
Mecanoo ontwerpt 238 meter hoge kantoortoren in Shenzhen
21 maart 2019
UNStudio presenteert opgeleverde hoogbouw in Singapore
27 november 2018
Bouw 'groene' torens aan Jaarbeursboulevard na zomer van start
24 juni 2020
Luchtbrug doorsnijdt torens in hoogbouwcomplex OMA
13 mei 2020
MVRDV: hoofdopzet Valley tot op de millimeter gelijk gebleven
17 april 2020
De Architekten Cie. realiseert grootschalig wooncomplex in Moskou
18 maart 2020
Bouw Y-Towers Amsterdam volgende maand hervat
9 december 2019
Lee Towers in Rotterdam opgeleverd
11 november 2019
Getrapte en gedraaide woontoren voor Koeweit van OMA
24 oktober 2019
Mecanoo wint competitie Civic Cultural Centre in Shenzhen
16 juli 2019
Volglazen kantoorgebouw met ferme luifels
26 oktober 2020
Rotterdams bureau ontwerpt pure en krachtige toren voor Malta
6 april 2021
Bouw Tour Triangle in Parijs van start gegaan
11 februari 2022
Omgekeerde piramide als centraal element interieur Polette
7 maart 2022
10 kantoorgebouwen met glazen gevels en grote overstekken
2 maart 2022
Frankrijk maakt stranden, parken en bossen rookvrij
28 november 2023
Zaha Hadid Architects ontwerpt OPPO-hoofdkantoor in vier torens
28 januari 2020
Pas de deux van torenhelften rond het atrium
20 november 2019
Bouwstart voor ‘doorgesneden’ kantoortoren bij Utrecht Centraal
19 april 2019
Mecanoo ontwerpt 238 meter hoge kantoortoren in Shenzhen
21 maart 2019
UNStudio presenteert opgeleverde hoogbouw in Singapore
27 november 2018
Bouw 'groene' torens aan Jaarbeursboulevard na zomer van start
24 juni 2020
Luchtbrug doorsnijdt torens in hoogbouwcomplex OMA
13 mei 2020
MVRDV: hoofdopzet Valley tot op de millimeter gelijk gebleven
17 april 2020
De Architekten Cie. realiseert grootschalig wooncomplex in Moskou
18 maart 2020
Bouw Y-Towers Amsterdam volgende maand hervat
9 december 2019
Lee Towers in Rotterdam opgeleverd
11 november 2019
Getrapte en gedraaide woontoren voor Koeweit van OMA
24 oktober 2019
Mecanoo wint competitie Civic Cultural Centre in Shenzhen
16 juli 2019
Volglazen kantoorgebouw met ferme luifels
26 oktober 2020
Rotterdams bureau ontwerpt pure en krachtige toren voor Malta
6 april 2021
Bouw Tour Triangle in Parijs van start gegaan
11 februari 2022
Omgekeerde piramide als centraal element interieur Polette
7 maart 2022
Toon alles
Andere nieuwsberichten
EGM architecten voltooit duurzame renovatie rijksmonument Moreelsepark
Gisteren, 13:20
De hoogwaardige renovatie van Utrechts kantoorpand brengt monumentale architectuur en Paris Proof-ambitie samen
Nudus en Proof of the Sum geselecteerd voor groot laboratoriumgebouw Groningen
Gisteren, 11:00
Een team met onder meer Nudus en Proof of the Sum is geselecteerd voor het ontwerp van het nieuwe Centraal Laboratorium voor Diagnostiek en Research (CLDR) op de Healthy Ageing Campus in Groningen.
Nieuwe editie van DigiBouw vindt plaats op 19 en 20 november in Utrecht
Gisteren, 09:59
AI, robotisering, parametrisch ontwerpen en bouwen, verandermanagement, veiligheid, open standaarden, BIM, slimme bouwlogistiek, CO2-reductie op de bouwplaats… dat zijn de thema’s die aan bod komen bij DigiBouw.
Nominaties Interieur van het Jaar 2025 bekend
Gisteren, 09:00
Als onderdeel van de Architectenweb Awards 2025 wordt begin november de prijs voor Interieur van het Jaar 2025 uitgereikt. Uit de achttien inzendingen voor deze prijs heeft de jury drie projecten genomineerd.
Zuid-Holland wil in ‘oogstjaar’ 2026 plannen uitvoeren
Gisteren, 15:16
De provincie investeert onder meer in infrastructuur, woningbouw, natuur en versterking van kleine kernen.
Rijk schrijft aanbesteding uit voor nieuwe marinierskazerne
Gisteren, 14:27
Eind 2031 wil het Korps Mariniers vanuit zijn huidige kazerne in Doorn verhuizen naar een nieuw onderkomen op de bestaande Defensielocatie Kamp Nieuw-Milligen vlakbij Apeldoorn.
Landschapstriënnale 2026 strijkt neer in Arnhem
Gisteren, 11:57
Het thema van de komende editie van de manifestatie is ‘Op Waterbasis’.
Veelzijdig ontwerper Mathieu Bruls verzorgt 21e Peutz-lezing
30 september, 3:05
Bruls (1960) is een veelzijdig ontwerper, die naast gebouwen en stedenbouwkundige plannen onder meer interieurs, meubels en tentoonstellingen ontwerpt.
Rekenkamer betwijfelt of miljoenen voor Woningbouwimpuls nuttig waren
30 september, 12:03
Het is ‘twijfelachtig’ of honderden miljoenen euro's overheidsgeld hebben geleid tot meer woningen, schrijft de Rekenkamer.
Rapport: rijke Amsterdammers leven steeds vaker apart van rest
30 september, 9:44
Het wel of niet bezitten van een woning zorgt voor een steeds grotere welvaartskloof tussen Amsterdammers.
Ga naar het nieuws-archief
Robert Muis
Redacteur
0
0
0
0
Voor een optimale gebruikservaring plaatst Architectenweb functionele cookies. Wat de verschillende cookies precies doen leggen we uit in een
overzicht
. Cookies van social media kun je optioneel
aanzetten
.
Akkoord
Instellingen
Annuleren
OK
Sluiten
Doorgaan
Inloggen
Maak een gratis persoonlijk account aan
Feedback
Feedback
Wij horen graag jouw feedback. Laat je reactie achter en eventueel jouw e-mail adres.
Reactie
Verstuur