Projecten
Producten
Bedrijven
Vacatures
Agenda
Awards
Podcasts
more_horiz
Videos
Magazine
Favorieten
Profiel
Uitloggen
Abonneer je nu op onze nieuwsbrieven!
Abonneren
Nee, bedankt
Ja, denk met me mee rond de
materialisering van mijn project
Copyright: Jannes Linders
Copyright: Jannes Linders
Copyright: Jannes Linders
Copyright: Jannes Linders
Copyright: Jannes Linders
Copyright: Jannes Linders
Copyright: Jannes Linders
Copyright: Jannes Linders
Copyright: Jannes Linders
Copyright: Jannes Linders
Oude en nieuwe stedenbouwkundige situatie
Copyright: De Nijl Architecten
Stedenbouwkundig plan
Copyright: De Nijl Architecten
Inpassing in de omgeving
Copyright: De Nijl Architecten
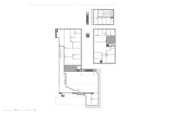
Plattegrond parkeerkelder
Copyright: De Nijl Architecten
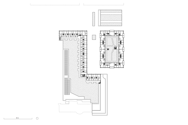
Plattegrond begane grond
Copyright: De Nijl Architecten
Plattegrond woonverdieping
Copyright: De Nijl Architecten
Copyright: De Nijl Architecten
Copyright: De Nijl Architecten
Copyright: De Nijl Architecten
Auguste Perret als inspiratie voor stadsdeelhart Anklaar
8 oktober 2020, 14:05
In Apeldoorn is onlangs het nieuwe stadsdeelhart Anklaar in gebruik genomen. Op de locatie van een oud winkelcentrum en zorgcentrum is een nieuw centrumgebied voor een aantal wijken in het noorden van de stad gerealiseerd.
De Nijl Architecten
is verantwoordelijk voor het ontwerp.
Het stadsdeelhart bestaat uit winkels, woningen, een nieuw zorgcentrum en een parkeerkelder. Aan de westkant is een groot deel van de hoogbouwflats gesloopt en vervangen door een autoluw, groen laagbouwmilieu. Aan de andere zijden zijn onder meer een betere verbinding met een naastgelegen gezondheidscentrum gerealiseerd en een bestaand woongebouw ingepast.
Le Havre
Er is gekozen voor een verbijzonderende architectuur, in een omgeving die wordt gekenmerkt door naoorlogse stedenbouw en bebouwing. Inspiratie was de
wederopbouw van de binnenstad van Le Havre
door Auguste Perret, meldt De Nijl Architecten.
De Franse architect bouwde modern, maar met een sterk gevoel voor de klassieke traditie. Hij gaf het nieuwe centrum samenhang door een ritme van vaste maatverhoudingen en terugkerende architectuurelementen met toepassing van een beperkt palet van materialen.
Op een vergelijkbare wijze is De Nijl aan de slag gegaan met stadsdeelhart Anklaar. De gevels zijn opgebouwd uit een regelmatig raster van betonnen banden en metselwerk penanten, met daartussen Franse balkons. De doorlopende lijnen boven de begane grond rijgen de winkels en woningen aan elkaar.
Lichtgele steen
Voor het gehele project is één genuanceerde, lichtgele steen gekozen, die in verschillende sorteringen is toegepast. De steen is gecombineerd met witgrijs architectonisch beton, zorgvuldig geprofileerd en gedetailleerd. Bij loggia’s en entrees zijn glazuurstenen toegepast. De paviljoens zijn als accenten tussen de bouwblokken uitgewerkt in architectonisch beton.
De lichte architectuur staat op een vlak van donkere bestrating, waarmee het stadsdeelhart zich eveneens onderscheidt van zijn omgeving. In het gehele gebied zijn groenvakken met gevarieerde beplanting en zitmogelijkheden aangebracht. Zo staan er op het marktplein grote bomen, hebben de nabijgelegen singels kademuren gekregen en is het water voorzien van groene oevers. Ook de naast het stadsdeelcentrum gelegen Sluisoordlaan is opnieuw ingericht, met een groene middenberm en een bomenlaan.
Trefwoorden
auguste perret
stadsdeelhart
winkelcentrum
stadsdeelhart anklaar
apeldoorn
anklaar
de nijl architecten
Locatie
Best gelezen
1
Genomineerden BNA Beste Gebouw van het Jaar 2026 bekend
dinsdag, 28 april
2
Architectenweb symposium: samenwerken op kantoor
dinsdag, 28 april
3
Bouwvergunning voor torens MVRDV op Tour & Taxis-terrein Brussel
donderdag, 30 april
4
MVRDV en Diamond Schmitt ontwerpen tweede gebouw voor universiteit Toronto
dinsdag, 28 april
5
Groosman heeft 'eigen' Coolse Poort in centrum Rotterdam gerenoveerd
woensdag, 29 april
Gerelateerde nieuwsberichten
Houten markthal vormt sluitstuk vernieuwing Marktplein Apeldoorn
9 januari 2025
Nieuwe Meldkamer Oost-Nederland in gebruik genomen
24 maart 2023
De Nijl Architecten presenteert eerste gebouwen Woonpark Jos van Geel
16 januari 2023
Video's: genomineerden Abe Bonnema Architectuurprijs 2021
26 november 2021
Overeenkomst voor woongebouw De Silo in Apeldoorn getekend
16 november 2021
Vijf nominaties voor Abe Bonnema Architectuurprijs 2021
13 oktober 2021
Woongebouw van Steenhuis Bukman als ankerpunt voor Apeldoornse wijk
5 mei 2021
De Nijl Architecten realiseert CPO Minidorp aan de rivier
5 augustus 2020
Standbeeld voor Hertzberger onthuld bij Centraal Beheer-gebouw
12 juli 2019
Nieuw hoofdkantoor met DC voor Welkoop
21 mei 2019
Sculpturen van Libeskind in paleistuin van Het Loo
1 april 2019
West 8 vernieuwt Marktplein Apeldoorn
21 december 2018
Cepezed ontwerpt Meldkamer Oost Nederland
10 december 2018
68 huurwoningen volgens nieuwe energienorm opgeleverd
6 april 2018
Houten markthal vormt sluitstuk vernieuwing Marktplein Apeldoorn
9 januari 2025
Nieuwe Meldkamer Oost-Nederland in gebruik genomen
24 maart 2023
De Nijl Architecten presenteert eerste gebouwen Woonpark Jos van Geel
16 januari 2023
Video's: genomineerden Abe Bonnema Architectuurprijs 2021
26 november 2021
Overeenkomst voor woongebouw De Silo in Apeldoorn getekend
16 november 2021
Vijf nominaties voor Abe Bonnema Architectuurprijs 2021
13 oktober 2021
Woongebouw van Steenhuis Bukman als ankerpunt voor Apeldoornse wijk
5 mei 2021
De Nijl Architecten realiseert CPO Minidorp aan de rivier
5 augustus 2020
Standbeeld voor Hertzberger onthuld bij Centraal Beheer-gebouw
12 juli 2019
Nieuw hoofdkantoor met DC voor Welkoop
21 mei 2019
Sculpturen van Libeskind in paleistuin van Het Loo
1 april 2019
West 8 vernieuwt Marktplein Apeldoorn
21 december 2018
Cepezed ontwerpt Meldkamer Oost Nederland
10 december 2018
68 huurwoningen volgens nieuwe energienorm opgeleverd
6 april 2018
Toon alles
Andere nieuwsberichten
'Stuttende' en contrasterende installatie voor Besiendershuis Nijmegen
Gisteren, 15:52
Bij het Besiendershuis in Nijmegen is afgelopen maand een door Frank Havermans ontworpen kunstinstallatie geopend. Het bouwwerk is gerealiseerd ter viering van het vijfhonderdjarig jubileum van het bijzondere huis in het centrum van de Keizerstad.
Specht architectuur en stedenbouw toont met meergeneratiehofje alledaagse woongemeenschappelijkheid
Gisteren, 14:25
Het meergeneratiehofje met sociale huurwoningen in Stedum is een bijdrage aan de zoektocht naar alledaagse gemeenschappelijkheid in het wonen in Nederland.
Mobiliteitshub van gerecycled tropisch hardhout voor Tholen
Gisteren, 11:41
In het Zeeuwse Tholen is een mobiliteitshub naar ontwerp van RO&AD Architecten opgeleverd. Het gebouw, dat is geheel is gemaakt van gerecycled tropisch hardhout, fungeert als knooppunt voor bussen en fietsers.
Kleurrijke textielinstallatie van Simone Post voor entreegebied Centraal Museum
Gisteren, 09:05
Voor Patchwork Post heeft ontwerper Simone Post objecten en kunstwerken uit de museumcollectie vertaald naar diverse werken in textiel.
Verzet natuurorganisaties tegen stroomkabel via Schiermonnikoog
Gisteren, 16:39
Negen natuurorganisaties maken zich grote zorgen over het plan om stroom van een nieuw windpark op de Noordzee via Schiermonnikoog aan land te brengen.
ING: huizenprijzen stijgen dit jaar niet verder door hoger aanbod
Gisteren, 13:03
Na jaren van groei is het voor het eerst in lange tijd dat een bank verwacht dat de huizenmarkt niet verder groeit.
TenneT mag datacenteraansluiting uitstellen om vol stroomnet
Gisteren, 10:11
Een projectontwikkelaar van een datacenter bij Schiphol klaagde hierover en spande een kort geding aan.
Brabant investeert 1,4 miljoen in waterfilter in Vlaanderen
30 april, 3:51
Het fosfaatfilter moet vervuild grondwater op een natuurlijke manier zuiveren voordat het naar het Nederlandse natuurgebied de Groote Meer bij Ossendrecht stroomt.
Rli: klimaat, vervuiling en groei bedreigen beschikbaarheid drinkwater
30 april, 12:20
De beschikbaarheid van drinkwater staat ernstig onder druk, waarschuwt de Raad voor de leefomgeving en infrastructuur.
ABN AMRO: huurwetaanpassingen stoppen uittocht beleggers niet
30 april, 9:04
Volgens de onderzoekers onderschat woonminister Boekholt de negatieve effecten van het huidige fiscale beleid.
Ga naar het nieuws-archief
Ronnie Weessies
Redacteur
0
0
0
0
Voor een optimale gebruikservaring plaatst Architectenweb functionele cookies. Wat de verschillende cookies precies doen leggen we uit in een
overzicht
. Cookies van social media kun je optioneel
aanzetten
.
Akkoord
Instellingen
Annuleren
OK
Sluiten
Doorgaan
Inloggen
Maak een gratis persoonlijk account aan
Feedback
Feedback
Wij horen graag jouw feedback. Laat je reactie achter en eventueel jouw e-mail adres.
Reactie
Verstuur