Projecten
Producten
Bedrijven
Vacatures
Agenda
Awards
Podcasts
more_horiz
Videos
Magazine
Thema's
Favorieten
Profiel
Uitloggen
Nieuw
Populair
Toon alles
Architectenweb magazine #14
Architectenweb magazine #13
Publieke gebouwen
Architectenweb magazine #12
Kantoren
Architectenweb magazine #11
Scholen
Architectenweb magazine #10
Zorg
Architectenweb magazine #14
Architectenweb magazine #10
Zorg
Architectenweb magazine #12
Kantoren
Architectenweb magazine #13
Publieke gebouwen
Architectenweb magazine #6
Transformatie en Renovatie
Om direct naar je favorieten te kunnen gaan is het nodig om eerst in te loggen.
Nieuw
Architectenweb Awards 2025
Architectenweb Awards 2024
Architectenweb Awards 2023
Architectenweb Awards 2022
Architectenweb Awards 2021
Architectenweb Awards 2020
Architectenweb Awards 2019
Architectenweb Awards 2018
Om direct naar je favorieten te kunnen gaan is het nodig om eerst in te loggen.
Nieuw
Populair
Favorieten
Toon alles
Vakwerk Architecten
Nominatie voor de prijs voor Architect van het Jaar 2025
Sanne van Manen
Nominatie voor de prijs voor Architect van het Jaar 2025
KSA
Nominatie voor de prijs voor Architect van het Jaar 2025
KRFT
Nominatie voor de prijs voor Architect van het Jaar 2025
Joost Ector
Nominatie voor de prijs voor Architect van het Jaar 2025
Prijsuitreiking Architectenweb Awards 2024
Impressie van een feestelijke avond
Martens, Willems & Humblé Architecten
Nominatie voor de prijs voor Architect van het Jaar 2024
Uitreiking van Architectenweb Awards 2020
Impressie van de prijsuitreiking via Zoom
De Zwarte Hond
Nominatie voor de prijs voor Architect van het Jaar 2024
Avond met De Zwarte Hond
Symposium
Om direct naar je favorieten te kunnen gaan is het nodig om eerst in te loggen.
Nieuw
Populair
Categorieën
Favorieten
Toon alles
Brandpreventie Academy BV
Cay Circulaire Keukens
Circulaire keukens en pantry's
Studio Kirsten Reith
Interieurontwerp
Studio175
Interieuradvies in regio Utrecht
Orange Automatic Doors
Indoorwrap
De specialist in Keukenwrappen
Interior & Co
Studio175
Interieuradvies in regio Utrecht
Brandpreventie Academy BV
Cay Circulaire Keukens
Circulaire keukens en pantry's
Studio Kirsten Reith
Interieurontwerp
Orange Automatic Doors
Architecten
Architectuur
Mobiliteit en infrastructuur
Stedenbouw en landschapsarchitectuur
Leveranciers
Gevels
Daken
Ramen en deuren
Trappen, liften en balustrades
Binnenwanden
Vloeren
Plafonds
Verlichting
Sanitair
Projectinrichting
Installaties
Constructies
Buitenruimte
Software
Adviseurs
Bestekschrijvers
Bouwmanagement
Installatie adviseurs E
Bouwfysica
Calculators
Installatie adviseurs G/W
Bouwkundig tekenwerk
Constructeurs
Lichtadviseurs
Adviseur beveiliging
Juristen
Intermediairs, Payrolling
Aannemers
Overig
Presentatie
Instellingen / onderwijs
Overig
Om direct naar je favorieten te kunnen gaan is het nodig om eerst in te loggen.
Nieuw
Populair
Favorieten
Toon alles
Gesprek met Stephan Sliepenbeek over hoogbouw in Amstel III
Gesprek met Ellen van Bueren over gebiedsontwikkeling en hoogbouw
Gesprek met Ma Yansong over ontwerpen die emotie oproepen
Gesprek met Paul de Ruiter over innovatieve en duurzame hoogbouw
Gesprek met Pi de Bruijn over zijn ontwerpen voor de Tweede Kamer toen en nu
Gesprek met Ellen van Bueren over gebiedsontwikkeling en hoogbouw
Gesprek met Oresti Sarafopoulos over het ontwerpen van een kantoorgebouw met bijna geen installaties
Gesprek met Stijn Steenbakkers over verdichting en hoogbouw in Eindhoven
Gesprek met Pi de Bruijn over zijn ontwerpen voor de Tweede Kamer toen en nu
Gesprek met Paul de Ruiter over innovatieve en duurzame hoogbouw
Om direct naar je favorieten te kunnen gaan is het nodig om eerst in te loggen.
Nieuw
Populair
Categorieën
Favorieten
Toon alles
Hoofdkantoor We Enable Climbers
Renovatie met respect voor oorspronkelijke ontwerp
Øbro-Hallen
Waalstaete Arnhem
The Valley
Boekweitkamp, Den Haag
Exclusieve wooneenheden
Kantoorinterieur: van Rest tot Ruimte
De Grote Zwaan, Nijmegen
Renovatieproject Ockenburghstraat
Architectuur
Woningbouw
Zorg
Hotels
Restaurants en café’s
Winkels
Sportgebouwen
Culturele gebouwen
Overheidsgebouwen
Scholen
Kantoren
Bedrijfsgebouwen
Paviljoens en kunst
Overig
Mobiliteit en infrastructuur
Trein- en metrostations
Luchthavens
Busstations
Parkeergarages
Fietsparkeren
Wegen
Bruggen
Water
Energie
Tankstations en laadstations
Waterzuivering en afvalverwerking
Overig
Stedenbouw en landschapsarchitectuur
Regionale visies
Gebiedsvisies
Plannen stedelijk weefsel
Amusementsparken en dierentuinen
Lichtontwerpen
Openbare ruimte
Pleinen
Parken
Tuinen
Speelplaatsen
Uitkijktorens
Overige (bijv. begraafplaatsen)
Om direct naar je favorieten te kunnen gaan is het nodig om eerst in te loggen.
Nieuw
Populair
Categorieën
Favorieten
Toon alles
Akoestische scheidingswand met print
Een oplossing met print waar je stil van wordt
Palazzo Collection
De Collectie waar alle sterke punten van onze gevelstenen samenkomen!
WoodFrame Slim Meranti
Profielen uit post-consumer meranti hardhout uit Nederlandse sloopprojecten, FSC Recycled
Een nieuwe generatie wandbekleding voor welzijn
Uitbreiding van Vescom Purefin
objectflor rubbervloeren nu Cradle to Cradle gecertificeerd
SaarFloor zijn bekroond met Cradle to Cradle certificaten
Akoestisch kussen.
Ervaar de ultime natuurlijke oplossing voor akoestiek problemen.
StoTherm Wood: cementvrij gevelsysteem met houtvezelisolatie
Biobased gevelisolatie met natuurlijke prestaties
Lumiglaze – Het vlakglas van VELUX Commercial
Een nieuw tijdperk in daglichtontwerp – minimalistisch, functioneel en klaar voor de toekomst.
Veelzijdig straatmeubilair
Van openbare ruimte naar (be)leefomgeving
Knauf MaxSpace
Minder wand, méér ruimte. Het ideale profiel voor meer winst per m²
Gevels
Gevelbekleding
Vliesgevels
Zonwering buiten
Isolatie
Gevelconstructies
Signing
Overig
Daken
Dakafwerkingen
Dakisolatie
Dakconstructies
Dakranden, dakgoten en HWA's
Dakramen
Lichtkoepels
Lichtstraten
Schoorstenen
Overig
Dakluiken
Ramen en deuren
Raam- en deursystemen / kozijnen
Vliesgevels
Hang- en sluitwerk
Beveiliging en luiken
Dorpels en vensterbanken
Lateien
Roosters
Glas
Dakramen
Dakkoepels
Lichtstraten
Zonwering buiten
Zonwering binnen
Buitendeuren
Binnendeuren
Postvakken en brievenbussen
Overig
Dakluiken
Trappen, liften en balustrades
Trappen
Roltrappen
Liften
Balustrades en hekwerken
Galerijen
Binnenwanden
Binnenwanden
Wandafwerking
Vloeren
Constructieve vloeren
Verhoogde vloeren
Vloerafwerkingen
Overig
Plafonds
Tegels
Lineair
Grill
Open en roosters
Naadloos
Eilanden en baffles
Plafondafwerkingen
Ophangsystemen
Overig
Klimaatplafonds
Verlichting
Binnenverlichting
Buitenverlichting
Sanitair
Kranen en douchesets
Wastafels
Douchewanden en douchebakken
Baden
Waterclosets
Accessoires
Overig
Projectinrichting
Stoelen
Banken
Tafels
Kasten
Balies
Vrijstaande wanden
Keukens
Accessoires
Overig
Cabines
Interieurbeplanting
Stoffering
Installaties
Verwarming, koeling en ventilatie
Elektrotechnische installaties
Schakelmateriaal
Domotica
Deurcommunicatie
Beveiliging
Liften
Onderhoudsinstallaties
Overig
Brandbeveiliging
Constructies
Draagconstructies
Funderingen en kelders
Overig
Brandbeveiliging
Buitenruimte
Bestratingen en verhardingen
Afwateringen
Terreinafscheidingen en geluidsschermen
Buitenmeubilair
Fietsparkeren
Terrassen
Terrasoverkappingen
Bruggen
Accessoires
Overig
Beplanting
Sport- en speeltoestellen
Software
Tekenen 2D
Modelleren 3D / BIM
Visualisatie / rendering
Parametrisch ontwerpen
Bouwfysica
Draagconstructie
Overig
Virtual Reality
Cloudoplossingen
Om direct naar je favorieten te kunnen gaan is het nodig om eerst in te loggen.
Nieuw
Populair
Favorieten
Toon alles
Prefab beurs - 7 t/m 9 oktober 2025
Brabanthallen 's-Hertogenbosch
Boekpresentatie en panelgesprek met Floor Milikowsky
Prins Hendrikkade 600, 1011 VX Amsterdam
Architects Table ’25: Lunch & Inspiratie in HAUT Amsterdam
ATAG LIVE – HAUT gebouw, Spaklerweg 10F, 1096 BA Amsterdam (tegenover metrostation Spaklerweg)
Inspiratiedag @ Sempergreen – Gevelgroen
Defensieweg 1, 3984 LR Odijk
Architectenweb symposium: klein maar fijn wonen?
Pakhuis de Zwijger
Architects Table ’25: Lunch & Inspiratie in HAUT Amsterdam
ATAG LIVE – HAUT gebouw, Spaklerweg 10F, 1096 BA Amsterdam (tegenover metrostation Spaklerweg)
Ontdek het seminarieprogramma van Architect@Work Amsterdam
De Kromhouthal, Gedempt Hamerkanaal 231, Amsterdam
DigiBouw 2025 – hét event voor digitalisering in de bouwsector
Expozaal van het Beatrixgebouw in Utrecht
Prefab beurs - 7 t/m 9 oktober 2025
Brabanthallen 's-Hertogenbosch
Boekpresentatie en panelgesprek met Floor Milikowsky
Prins Hendrikkade 600, 1011 VX Amsterdam
Om direct naar je favorieten te kunnen gaan is het nodig om eerst in te loggen.
Nieuw
Toon alles
Design
Duurzaamheid
Gevel
Infrastructuur
Interieur
Kantoren
Leisure
Openbare ruimte
Publieke gebouwen
Scholen
Transformatie en Renovatie
Woningbouw
Zorg
Om direct naar je favorieten te kunnen gaan is het nodig om eerst in te loggen.
Nieuw
Populair
Toon alles
Mulderblauw zoekt een architect
Mulderblauw zoekt een projectleider
WE zoekt senior architect
Junior PR & Communicatie medewerker
stagiair bouwkunde Amsterdam
Medior architect
Junior Architect (NL/EN)
Architect
De Academie van Bouwkunst Amsterdam zoekt twee onderzoekers voor lectoraat
Studio Nauta zoekt projectleider
Junior Ontwerper
Site Practice zoekt medior architect met 3-6 jaar ervaring (Amsterdam)
Om direct naar je favorieten te kunnen gaan is het nodig om eerst in te loggen.
Copyright: Jeroen Verrecht
Copyright: Jeroen Verrecht
Copyright: Jeroen Verrecht
Copyright: Jeroen Verrecht
Copyright: Jeroen Verrecht
Copyright: Jeroen Verrecht
Copyright: Jeroen Verrecht
Copyright: Jeroen Verrecht
Copyright: Jeroen Verrecht
Copyright: Jeroen Verrecht
Copyright: Jeroen Verrecht
Copyright: Jeroen Verrecht
Copyright: Jeroen Verrecht
Copyright: Jeroen Verrecht
Copyright: Jeroen Verrecht
Copyright: Jeroen Verrecht
Copyright: Jeroen Verrecht
Copyright: Jeroen Verrecht
Copyright: Jeroen Verrecht
Copyright: Jeroen Verrecht
Copyright: Jeroen Verrecht
Copyright: Jeroen Verrecht
Stoplap, circa 1836
Copyright: Collectie Cooper Hewitt
Aanzicht
Copyright: Jeanne Dekkers Architectuur, Zoetmulder
Aanzicht
Copyright: Jeanne Dekkers Architectuur, Zoetmulder
Gevelopties
Copyright: Jeanne Dekkers Architectuur, Zoetmulder
Isometrie, doorsnede
Copyright: Jeanne Dekkers Architectuur, Zoetmulder
Isometrie, ijsbuffer
Copyright: Jeanne Dekkers Architectuur, Zoetmulder
Isometrie,ijsbuffer
Copyright: Jeanne Dekkers Architectuur, Zoetmulder
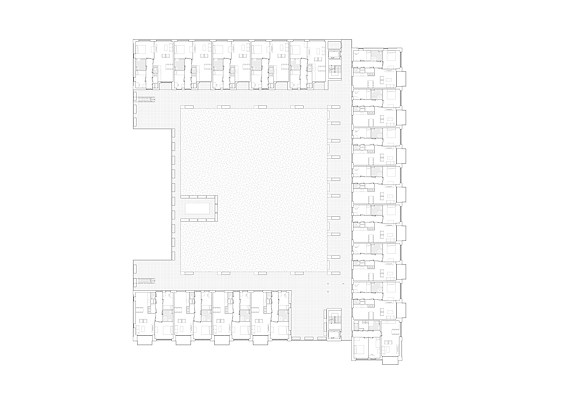
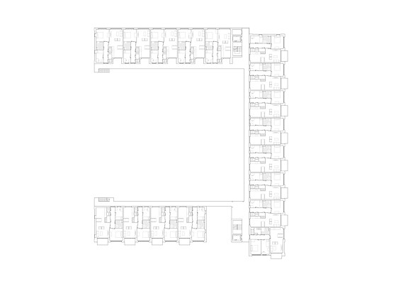
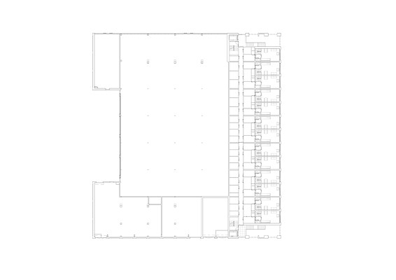
Begane grond
Copyright: Jeanne Dekkers Architectuur, Zoetmulder
Eerste verdieping
Copyright: Jeanne Dekkers Architectuur, Zoetmulder
Tweede verdieping
Copyright: Jeanne Dekkers Architectuur, Zoetmulder
Derde verdieping
Copyright: Jeanne Dekkers Architectuur, Zoetmulder
Eerste gebouw in gebiedsontwikkeling Westerschans Goes gerealiseerd
6 oktober 2020, 16:13
Als eerste fase van een nieuw woon-, werk- en verblijfsgebied aan de rand van het centrum van Goes is een appartementengebouw met winkelruimte gerealiseerd.
Jeanne Dekkers Architectuur
en
Zoetmulder
ontwierpen een gebouw met diverse geledingen en een opvallende gevel, waarvan het metselwerk is geïnspireerd op de Zeeuwse stoplap.
De Westerschans in Goes grenst direct aan het historische centrum, de Ringbaan en het Havenkanaal. Voor het gehele Westerschans-gebied hebben Jeanne Dekkers Architectuur en Zoetmulder gezamenlijk het stedenbouwkundig inpassingsplan ontworpen.
Deze ontwikkeling bestaat uit drie bouwblokken met een gevarieerd programma van sociale woningbouw, koopappartementen, zorgwoningen, commerciële ruimten, horeca, een supermarkt en een hotel, vertellen de architecten. Westerschans 1A vormt de eerste fase en bestaat uit 83 sociale huurwoningen, 13 kadewoningen, een grote supermarkt en winkelruimte.
Geleding
Het appartementengebouw is gesitueerd aan de zuidkant van de Westerschans en heeft een alzijdig voorkomen. De toren vormt een hoogteaccent langs het kanaal en geeft van verre identiteit aan de Westerschans.
Tegelijkertijd hebben de architecten met concentratie van het programma ervoor gezorgd dat het gebouw verder een bescheiden hoogte heeft. Verschillende geledingen delen het volume verder en zorgen voor een prettige schaal. Een opening aan de zuidkant biedt een interessante doorkijk richting de binnenstad.
Kadewoningen
Op de begane grond is een nieuw type woning geïntroduceerd, aldus de beide bureaus: de kadewoning. Dit betreft een woning in een halve beukmaat met twee verdiepingen. Daardoor zijn er langs de autovrije kade maar liefst dertien voordeuren, wat zal bijdragen een de levendigheid.
Aan de kade worden de pilasters op de begane grond beëindigd met een gemetseld zitbankje of een plantenbak. Deze ingebouwde inrichtingselementen bakenen een semi-private ruimte voor de kadewoningen af en moeten het gebruik en de inrichting door de bewoners verder stimuleren.
Materialisatie
De materialisatie verbindt zowel de gebouwdelen onderling als het gebouw met de openbare ruimte rondom. De zandgele hoofdmaterialisatie is afgeleid van de zandgele IJsselstenen uit het oude centrum van Goes. Ze vormen een zacht contrast met de grijsbruine kleur van de secundaire elementen zoals hekwerken, kozijnen, beplating en bruine baksteen.
Opvallend zijn de baksteenpatronen op de gevel: ze zijn afgeleid van de typisch Zeeuwse stoplappatronen. De geborduurde stoplappen tonen gegolfde en hoekige patronen die zich laten associëren met halfsteens baksteenpatronen.
Verbinding met locatie
Toegepast in grote vlakken geven de patronen levendigheid aan de gesloten gevels van de supermarkt in de plint. De overkragende kop van het gebouw heeft een groot patroonvlak dat een accent geeft aan een lange zichtas vanaf de Ringweg.
Aan de kade hebben de pilasters een eenvoudig opgaand patroon van enkele stenen, die refereert aan de eenvoudige enkelsteeks rand om de Zeeuwse stoplap. Door de stoplappatronen te gebruiken als inspiratie hebben de architecten de nieuwbouw op een bijzondere manier verbonden met de geschiedenis en identiteit van de plek.
IJsbuffer
Westerschans 1A is aangesloten op een ijsbuffer als systeem voor warmte- en koudeopslag. De ijsbuffer bestaat uit een groot bronvat met een diameter van 15 meter, gevuld met ijs, in combinatie met zonnecollectoren en pv-cellen op het dak. Door middel van faseverschil wordt het gebouw verwarmd en gekoeld.
Trefwoorden
jeanne dekkers architectuur
appartementengebouw
metselwerk
gevel
zoetmulder
woningbouw
goes
westerschans
Locatie
Best gelezen
1
Rijk schrijft aanbesteding uit voor nieuwe marinierskazerne
woensdag, 1 oktober
2
Architectenweb symposium: klein maar fijn wonen?
donderdag, 2 oktober
3
Leiden wil verhoogd busstation naast treinperrons centraal station
dinsdag, 30 september
4
Plan Spot belooft Lelystad bruisend centrumgebied
vrijdag, 3 oktober
5
Nominaties Interieur van het Jaar 2025 bekend
woensdag, 1 oktober
Gerelateerde nieuwsberichten
Limburgs Museum start renovatie naar ontwerp Jeanne Dekkers
8 december 2020
Appartementen met golvende buitenruimten in Westerschans-gebied Goes
25 mei 2021
Nieuwe Bibliotheek Goes weerspiegelt stad en omgeving
6 oktober 2021
Radius krijgt interieur uit geoogste en natuurlijke materialen
25 april 2022
Renovatie entreegebied Limburgs Museum afgerond
13 september 2022
Zoetmulder en Jeanne Dekkers Architectuur ontwerpen biobased kindcentrum
9 februari 2023
Zoetmulder maakt winnende visie voor IKC in Woerdense Verlaat
17 mei 2023
Nieuw zorgcluster in Goes naar ontwerp van buroSALT in gebruik genomen
11 september 2024
Zoetmulder en Schoots architecten ontwerpen kindcentrum voor Meerstad
14 september 2023
Folly in de ruïnes van een afgebrande kerk
6 mei 2020
Nieuw Utrechts zwembad met demontabel dak
24 april 2013
Bouw Kellebeek College Roosendaal is gestart
13 november 2012
Mick Eekhout en Jeanne Dekkers geridderd
1 mei 2012
Uitbreiding Limburgs Museum klaar
23 april 2012
Brede school op Amsterdamse IJburg geopend
9 maart 2012
Nieuwbouw voor cultureel centrum Belfeld
16 februari 2012
Deltares krijgt nieuw kantoorgebouw in Delft
15 februari 2012
Verbouwing stadshal Leeuwarden gestart
18 januari 2012
Appartementengebouw met oog voor gemeenschap
23 februari 2021
Herontwikkeling Gasthuiskwartier Den Bosch nadert derde fase
13 april 2021
Limburgs Museum start renovatie naar ontwerp Jeanne Dekkers
8 december 2020
Appartementen met golvende buitenruimten in Westerschans-gebied Goes
25 mei 2021
Nieuwe Bibliotheek Goes weerspiegelt stad en omgeving
6 oktober 2021
Radius krijgt interieur uit geoogste en natuurlijke materialen
25 april 2022
Renovatie entreegebied Limburgs Museum afgerond
13 september 2022
Zoetmulder en Jeanne Dekkers Architectuur ontwerpen biobased kindcentrum
9 februari 2023
Zoetmulder maakt winnende visie voor IKC in Woerdense Verlaat
17 mei 2023
Nieuw zorgcluster in Goes naar ontwerp van buroSALT in gebruik genomen
11 september 2024
Zoetmulder en Schoots architecten ontwerpen kindcentrum voor Meerstad
14 september 2023
Folly in de ruïnes van een afgebrande kerk
6 mei 2020
Nieuw Utrechts zwembad met demontabel dak
24 april 2013
Bouw Kellebeek College Roosendaal is gestart
13 november 2012
Mick Eekhout en Jeanne Dekkers geridderd
1 mei 2012
Uitbreiding Limburgs Museum klaar
23 april 2012
Brede school op Amsterdamse IJburg geopend
9 maart 2012
Nieuwbouw voor cultureel centrum Belfeld
16 februari 2012
Deltares krijgt nieuw kantoorgebouw in Delft
15 februari 2012
Verbouwing stadshal Leeuwarden gestart
18 januari 2012
Appartementengebouw met oog voor gemeenschap
23 februari 2021
Herontwikkeling Gasthuiskwartier Den Bosch nadert derde fase
13 april 2021
Toon alles
Andere nieuwsberichten
Realisatieovereenkomst voor hoogbouwcomplex De Sax op Wilhelminapier getekend
Gisteren, 16:16
VOF PhilHavana en BAM Bouw en Techniek hebben een realisatieovereenkomst getekend voor hoogebouwcomplex De Sax op de Wilhelminapier in Rotterdam.Het door MVRDV ontworpen woningbouwproject bestaat uit twee torens die worden verbonden door een 'balk'.
Online tool CarbonSpace berekent materiaalgebonden CO2-uitstoot vanaf eerste schets
Gisteren, 15:09
MVRDV heeft een openbare online tool gelanceerd die de materiaalgebonden CO2-uitstoot van bouwprojecten vanaf de eerste schets berekent. CarbonSpace heeft als doel om architecten inzicht te geven in de impact van hun projecten op het klimaat.
Stationsomgeving Bunnik transformeert naar toekomstbestendig woon- en werkgebied
Gisteren, 13:08
Het masterplan door SVP Architectuur en Stedenbouw, OKRA landschapsarchitecten en CROSS Architecture krijgt groen licht van gemeente.
Winnaars Groninger Architectuurprijs 2025 bekendgemaakt
Gisteren, 11:17
Zowel de vak- als publieksjury van de Groninger Architectuurprijs 2025 wees twee gedeelde winnaars aan, waarbij Dudok aan het Diep door de beide jury’s als winnaar werd gekozen.
Mona Keijzer lonkt naar investeerders op vastgoedbeurs in München
1 uur geleden
"We moeten 1,6 miljoen woningen bouwen. Daarvoor hebben we buitenlandse investeerders nodig", stelt de demissionair minister.
Jongeren debatteren in het Nieuwe Instituut met Kamerleden over wonen
Gisteren, 14:26
Tot de thema’s die worden besproken, behoren betaalbaarheid, het creëren van meer woningen en de betrokkenheid van jongeren bij deze plannen.
GL-PvdA wil komende tien jaar 36 miljard uitgeven aan woningbouw
Gisteren, 10:10
Het grootste deel van het geld, 33 miljard euro, moet gaan naar publieke investeringen in de woningbouw.
Kamer wil dat Keijzer afziet van versoepelingen huurwet
3 oktober, 12:11
Sinds de huurwet - tegen de zin van Keijzer - van kracht werd, waarschuwen verhuurders dat daardoor het aanbod aan betaalbare huurwoningen afneemt.
Steden vrezen voor woningbouw door nieuwe regels netcongestie
2 oktober, 4:25
Amsterdam, Den Haag, Rotterdam en Utrecht vrezen dat de bouw van nieuwe woningen stil komt te liggen door netcongestie.
Dienst Toeslagen: plan voor wonen op vakantieparken onuitvoerbaar
2 oktober, 1:06
Het kabinetsplan om permanent wonen in vakantiehuisjes mogelijk te maken, is volgens de Dienst Toeslagen onuitvoerbaar.
Ga naar het nieuws-archief
Robert Muis
Redacteur
2
0
0
0
Voor een optimale gebruikservaring plaatst Architectenweb functionele cookies. Wat de verschillende cookies precies doen leggen we uit in een
overzicht
. Cookies van social media kun je optioneel
aanzetten
.
Akkoord
Instellingen
Annuleren
OK
Sluiten
Doorgaan
Inloggen
Maak een gratis persoonlijk account aan
Feedback
Feedback
Wij horen graag jouw feedback. Laat je reactie achter en eventueel jouw e-mail adres.
Reactie
Verstuur