Projecten
Producten
Bedrijven
Vacatures
Agenda
Awards
Podcasts
more_horiz
Videos
Magazine
Thema's
Favorieten
Profiel
Uitloggen
Copyright: Lucas van der Wee
Copyright: Lucas van der Wee
Copyright: Lucas van der Wee
Copyright: Lucas van der Wee
Copyright: Lucas van der Wee
Copyright: Lucas van der Wee
Copyright: Lucas van der Wee
Copyright: Lucas van der Wee
Copyright: Lucas van der Wee
Copyright: Lucas van der Wee
Copyright: Lucas van der Wee
Copyright: Lucas van der Wee
Copyright: Lucas van der Wee
Copyright: cepezed
Copyright: cepezed
Copyright: cepezed
Copyright: cepezed
Copyright: cepezed
Copyright: cepezed
Strak en ingetogen bedrijfsgebouw voor efficiëntie en merkuitstraling
8 oktober 2019, 10:29
De internationaal opererende onderneming Lan Handling Technologies heeft onlangs een nieuw, open en efficiënt bedrijfsgebouw in Berkel-Enschot betrokken. Voor een ‘state of the art’ gebouw heeft
cepezed
de opgave integraal aangepakt in een samenwerking tussen de verschillende cepezed-disciplines, zo meldt het bureau.
Lan ontwerpt en assembleert handling- en verpakkingssystemen en maakt deze bedrijfsklaar voor klanten in onder meer de voedings- en farmaceutische industrie. De Brabantse vestiging van het internationale bedrijf werkte vanuit twee huurpanden op verschillende locaties in Tilburg.
Omdat die panden inmiddels te klein waren en niet voldeden aan hedendaagse wensen, is een nieuwe, eigen huisvesting ontwikkeld. Die biedt meer ruimte en draagt bij aan de bedrijfsefficiëntie; bovendien biedt het nieuwe gebouw fijnere werkplekken en draagt de nieuwbouw bij aan de uitstraling van de onderneming, meldt cepezed.
Communicatie
In tegenstelling tot de verouderde, gesloten structuur van de eerdere panden heeft de nieuwbouw een open en transparant karakter, legt het architectenbureau uit. Dit verkort de communicatielijnen, onder andere tussen de ontwerpers op kantoor en de monteurs op de assemblagevloer.
De open en laagdrempelige opzet is tevens een middel voor communicatie met de klanten. “Klanten komen vaak op bezoek en alle medewerkers hebben direct klantcontact”, verklaart cepezed. “De assemblagevloer functioneert zo ook meteen als showroom voor de expertise van Lan.” De situering langs de Tilburgse ringweg, ter hoogte van Berkel-Enschot, maakt het nieuwe pand eveneens tot een visitekaartje.
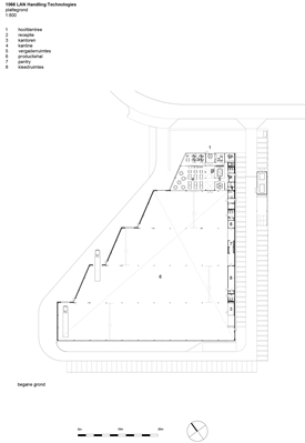
Driehoek
Het nieuwe gebouw biedt 1.500 m
2
kantoorruimte en 5.000 m
2
hallen. De driehoekige vorm van de kavel heeft in belangrijke mate de opzet mede bepaald. Langs de buitenrand ligt als eenrichtingsroute een verkeersring; daaraan zijn de parkeerplaatsen en de mogelijkheden voor expeditie gesitueerd. Voor het overige is het perceel geheel bebouwd.
Het gebouw bestaat uit vijf geschakelde beuken van elk ruim 10 meter hoog en 18 meter diep. Doordat ze in lengte teruglopen, heeft het gebouw aan de schuine kavelrand een zaagtandstructuur. Hierin bevinden zich de overhead-deuren voor de expeditie.
Openheid
De kortste bouwstrook ligt langs de ontsluitingsweg; hier zijn de kantoren gesitueerd. Het drielaags volume heeft aan twee zijden volledig glazen gevels. Het grootste deel van het kantooroppervlak bestaat uit open vloeren; ze hebben direct zichtcontact met de assemblagehal.
Op de begane grond zijn onder meer afsluitbare kantoren voor vertrouwelijke functies en de kantine gesitueerd. Voorts bevat het kantoorvolume bijvoorbeeld kamers voor team meetings of conference calls en instructieruimten voor klanten. In het volume heeft cepezed een royale vide ontworpen.
Facilitaire strook en hallen
Langs de lange rechte zijde van de driehoek ligt een facilitaire zone met onder meer toiletten, technische ruimten en kleedruimten. De zone werkt verbindend en schept eenheid tussen de hallen en kantoren, leggen de architecten uit.
De overige vier beuken vormen de hallen. Ze hebben overwegend gesloten gevels, maar ontvangen daglicht via transparante stroken in de gevels en via het kantoorvolume. De hallen, met verschillende lengtes, zijn eenvoudig aan te passen aan andere werkprocessen of doeleinden; zelfs zijn ze gemakkelijk af te stoten of afzonderlijk te verhuren, aldus cepezed.
Ingetogen en gestileerd
Het architectenbureau heeft het nieuwe gebouw een strakke en ingetogen uitstraling gegeven met bijvoorbeeld een gevelafwerking van zwarte damwandprofielplaten. Dat is gecombineerd met een verfijnde detaillering. De industriële sectionaaldeuren heeft het bureau achter de gevelbekleding weggewerkt.
Het interieur is strak en basaal. De facilitaire zone heeft, als een echo van de buitengevel, een zwarte wandafwerking. De kantoren zijn voorzien van gevlinderd betonnen vloeren en wit meubilair. Door de sprinklerinstallatie was brandcompartimentering niet nodig en heeft cepezed het gebouw daadwerkelijk zo open mogelijk kunnen houden.
Transparante rode wanden scheiden de kantoren en de facilitaire zone. Ze geven een kleuraccent, dat bovendien aansluit bij de kleurstelling van het Lan-logo. De terughoudende vormgeving, strakke stilering en opvallende gevel-signing sluiten bovendien aan bij de zusterbedrijven van Lan binnen het Hydratec-concern, waardoor de nieuwbouw bijdraagt aan een herkenbare merkuitstraling, aldus cepezed.
Trefwoorden
interieur
kantoorgebouw
bedrijfsgebouw
cepezed
tilburg
Locatie
Best gelezen
1
Rotterdam verleent bouwvergunning voor Schieblokken
vrijdag, 28 november
2
MORE Architecture en Studio Nauta ontwerpen woontoren midden op Katendrecht
donderdag, 27 november
3
Gemeenteraad stelt gebiedsvisie voor Bussum-Zuid vast
donderdag, 27 november
4
Schiphol investeert tien miljard in nieuwe terminal en andere infrastructuur
woensdag, 26 november
5
Dolmen – mysterieus object aan de rand van de Veluwe
vrijdag, 28 november
Gerelateerde nieuwsberichten
Lister buildings en cepezed samen in modulaire woningbouw met hout
20 februari 2020
Flexibel bedrijfsverzamelgebouw met laboratoria geopend op Utrecht Science Park
17 oktober 2023
cepezed realiseert natuurinclusieve nieuwbouw op campus TU Delft
23 september 2019
Cepezed transformeert voormalige Shell-campus Rijswijk
7 augustus 2019
Ook flexplek voor burgemeester in gemeentehuis Woerden
14 juni 2019
Cepezed realiseert vierde gebouw op eigen terrein
14 mei 2019
Team cepezed wint tender Eenheidsbureau politie Den Haag
8 mei 2019
Nieuw busstation Tilburg in gebruik genomen
29 april 2019
Bouw nieuwe pier op Schiphol duurt langer
18 april 2019
Nieuw gebouw voor Utrecht Science Park van cepezed
17 april 2019
cepezed brengt eerste beelden ontwerp VU-onderzoeksgebouw naar buiten
15 april 2019
Cepezed ontwerpt Meldkamer Oost Nederland
10 december 2018
Nieuw archiefdepot in Amsterdam-Noord voltooid
6 november 2019
Van Big Data tot BIM – architectenlezingen op Gevel 2020
16 januari 2020
Aanneemovereenkomst voor nieuw VU-gebouw getekend
26 maart 2020
Voormalige kantoorkolos is luxueus woongebouw in het park
24 juni 2020
Voormalige Willem II-kazerne Tilburg wordt woongebied
9 juli 2020
Nieuw leven voor oud Tilburgs pakhuis als woongebouw
24 augustus 2020
Cepezed ontwerpt lab- en kantoorgebouw voor nieuw Medical Business Park Amsterdam
16 februari 2021
Lister buildings en cepezed samen in modulaire woningbouw met hout
20 februari 2020
Flexibel bedrijfsverzamelgebouw met laboratoria geopend op Utrecht Science Park
17 oktober 2023
cepezed realiseert natuurinclusieve nieuwbouw op campus TU Delft
23 september 2019
Cepezed transformeert voormalige Shell-campus Rijswijk
7 augustus 2019
Ook flexplek voor burgemeester in gemeentehuis Woerden
14 juni 2019
Cepezed realiseert vierde gebouw op eigen terrein
14 mei 2019
Team cepezed wint tender Eenheidsbureau politie Den Haag
8 mei 2019
Nieuw busstation Tilburg in gebruik genomen
29 april 2019
Bouw nieuwe pier op Schiphol duurt langer
18 april 2019
Nieuw gebouw voor Utrecht Science Park van cepezed
17 april 2019
cepezed brengt eerste beelden ontwerp VU-onderzoeksgebouw naar buiten
15 april 2019
Cepezed ontwerpt Meldkamer Oost Nederland
10 december 2018
Nieuw archiefdepot in Amsterdam-Noord voltooid
6 november 2019
Van Big Data tot BIM – architectenlezingen op Gevel 2020
16 januari 2020
Aanneemovereenkomst voor nieuw VU-gebouw getekend
26 maart 2020
Voormalige kantoorkolos is luxueus woongebouw in het park
24 juni 2020
Voormalige Willem II-kazerne Tilburg wordt woongebied
9 juli 2020
Nieuw leven voor oud Tilburgs pakhuis als woongebouw
24 augustus 2020
Cepezed ontwerpt lab- en kantoorgebouw voor nieuw Medical Business Park Amsterdam
16 februari 2021
Toon alles
Andere nieuwsberichten
Arcadis en BEEL Architecten ontwerpen gebouw voor imec in Leuven
19 minuten geleden
Het onderzoekscentrum voor nano-elektronica en digitale technologie imec laat een nieuw kantoor- en labgebouw op zijn campus in Leuven realiseren.
Duizenden cd's en hoesjes krijgen nieuw leven in hotelkamer
2 uur geleden
In het pas geopende nieuwe onderkomen van culturele ontmoetingsplek De Groene Afslag in Crailo heeft Abelen Architectuur een bijzondere hotelkamer ontworpen. Het interieur van de CD-Room is gemaakt van duizenden oude cd’s.
Gemeente Haarlemmermeer kiest plan Ons Erf voor deelgebied Lincolnpark Hoofddorp
Vandaag, 11:09
Bij het plan zijn vier architectenbureaus betrokken: White Arkitekter, Space&Matter, Atlas Architects, SeARCH. DS Landschapsarchitecten verzorgt het landschapsontwerp.
BRTArchitecten onderzoekt of in traditioneel polderlandschap subtiel woningbouw ingevoegd kan worden
Vandaag, 10:45
In opdracht van Stichting Architecten Werkgemeenschap Tauber onderzocht BRTArchitecten drie mogelijke alternatieve woontypologieën voor in het traditionele polderlandschap in het noorden van het land.
Wang Shu en Lu Wenyu worden curator Architectuurbiënnale van Venetië in 2027
1 uur geleden
De Chinese architecten en docenten verzorgen de artistieke leiding van de twintigste editie van de Venetiaanse architectuurmanifestatie.
Verduurzaming Nederland moet veel eerlijker, vindt adviesraad
4 uur geleden
De verduurzaming van Nederland dreigt vast te lopen, doordat grote groepen mensen de voordelen mislopen en daardoor het draagvlak afbrokkelt, stelt de RLi.
Gelderland wil duurzame ‘havenhub’ aanleggen bij IJzendoorn
Gisteren, 13:13
Bij een Clean Energy Hub kunnen binnenvaartschepen schonere brandstoffen zoals bio-LNG bunkeren en groene stroom laden.
Schoof ziet actiepunten in klimaatadvies burgerberaad
Gisteren, 10:22
De demissionair premier herkent de wens van het kabinet voor een ‘haalbaar en betaalbaar’ klimaatbeleid in de aanbevelingen van 175 burgers.
Besluit over verdwijnen dorp Moerdijk halfjaar uitgesteld
1 december, 3:27
Het Rijk en de provincie Noord-Brabant willen pas in juni een besluit nemen over uitbreiding van het haven- en industriegebied in Moerdijk.
Amsterdam overweegt hogere toeristenbelasting in herbestemming panden te stoppen
1 december, 10:30
Het stadsbestuur overweegt de toeristenbelasting te verhogen als de landelijke btw-verhoging niet leidt tot een daling van het aantal toeristenovernachtingen.
Ga naar het nieuws-archief
Robert Muis
Redacteur
0
0
0
0
Voor een optimale gebruikservaring plaatst Architectenweb functionele cookies. Wat de verschillende cookies precies doen leggen we uit in een
overzicht
. Cookies van social media kun je optioneel
aanzetten
.
Akkoord
Instellingen
Annuleren
OK
Sluiten
Doorgaan
Inloggen
Maak een gratis persoonlijk account aan
Feedback
Feedback
Wij horen graag jouw feedback. Laat je reactie achter en eventueel jouw e-mail adres.
Reactie
Verstuur