Projecten
Producten
Bedrijven
Vacatures
Agenda
Awards
Podcasts
more_horiz
Videos
Magazine
Favorieten
Profiel
Uitloggen
Abonneer je nu op onze nieuwsbrieven!
Abonneren
Nee, bedankt
Ja, denk met me mee rond de
materialisering van mijn project
Copyright: Ronald Schouten
Copyright: Ronald Schouten
Copyright: Ronald Schouten
Copyright: Ronald Schouten
Copyright: Ronald Schouten
Copyright: Ronald Schouten
Copyright: Ronald Schouten
Copyright: Ronald Schouten
Copyright: Ronald Schouten
Copyright: Ronald Schouten
Copyright: Ronald Schouten
Copyright: Ronald Schouten
Copyright: Ronald Schouten
Copyright: Ronald Schouten
Copyright: Ronald Schouten
Copyright: Ronald Schouten
Copyright: HER architecten
Copyright: HER architecten
Copyright: HER architecten
Oude bakkerij met containers getransformeerd tot broedplaats in Haarlem
8 februari 2018, 12:09
Aan het Spaarne in Haarlem is een oude industriële hal naar ontwerp van
HER architecten
door toevoeging van zestig zeecontainers getransformeerd tot broedplaats voor kleine en startende bedrijven.
Net ten noorden van de binnenstad van Haarlem liggen aan het Spaarne verschillende industriële hallen die ooit gebruikt werden door het concern Figee. Naast het enorme pand dat ooit dienst deed als stoommachinefabriek staat een kleiner en nieuwer pand waar voorheen kranen gebouwd werden, en dat tot 2016 dienst deed als bakkerij.
Het is een deel van de Waarderpolder dat langzaam weer in beweging komt. De enorme stoommachinefabriek is zojuist verkocht aan een ontwikkelaar die belooft het pand verder te ontwikkelen en de gemeente Haarlem gaat een nieuwe fietsbrug bouwen die het industrieterrein, via het ook deels getransformeerde terrein van Droste, met de binnenstad verbindt.
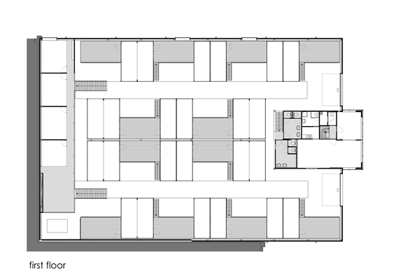
Een kleine stad
De voormalige bakkerij, een industriële hal van 1400 m
2
, is naar ontwerp van HER architecten, in samenwerking met Juan Nibbelink, getransformeerd tot broedplaats voor kleine en startende bedrijven. Hiertoe heeft het bureau zestig zeecontainers in de ruimte geplaatst, ontsloten via ‘straten’ en ‘pleinen’. “Dit onder de noemer BakkeRij, verwijzend naar de vorige functie maar ook naar een rij met bakken”, aldus het bureau.
Door het schakelen en stapelen van de zeecontainers zijn er spannende werk-, verkeers- en verblijfsruimtes ontstaan. De containers, elk voorzien van eigen ventilatie- data- en elektriciteitsaansluiting, zijn aan de verkeersruimte voorzien van volledig glazen wanden waardoor de eigen inrichting van de containers, de eigen identiteit van de diverse bedrijfjes herkenbaar is. De groene kleur van de containers en de consistente signing zorgen voor rust eenheid van het geheel.
De units variëren in grootte van 14 tot 28 m
2
. De bedrijven kunnen daarnaast ook gebruik maken van een grote hoeveelheid gedeelde ruimte ,met zitjes, vergaderruimtes en een koffie en lunchfaciliteit; het Figeecafé.
Circulair ontwerp
Binnen zijn ontwerp heeft HER architecten zoveel mogelijk gebruik gemaakt van circulaire principes. Het concept biedt allereerst een grote mate van flexibiliteit. De zeecontainers zijn verplaatsbaar en aanpasbaar aan toekomstige behoeftes of zelfs eenvoudig geheel uit te plaatsen, zodat er zonder sloopwerkzaamheden weer een generieke lege industriële hal beschikbaar is.
Daarnaast is hergebruik een belangrijk thema in het ontwerp. Naast het hergebruik van de hal en de zeecontainers zelf, hebben kantoorvloeren uit slooppanden in de BakkeRIJ een tweede leven gevonden als terrasvloeren. In het kader van een beperking van het energieverbruik wordt de hal op een semi-buitenruimte klimaat gehouden. Gebruikers kunnen in de containers gebruikmaken van bijverwarming middels zuinige elektrische infrarood matten.
De BakkeRij is sinds de opening in korte tijd volledig gevuld met ruim vijftig kleine bedrijven.
Trefwoorden
her architecten
haarlem
Best gelezen
1
Genomineerden BNA Beste Gebouw van het Jaar 2026 bekend
dinsdag, 28 april
2
Architectenweb symposium: samenwerken op kantoor
dinsdag, 28 april
3
MVRDV en Diamond Schmitt ontwerpen tweede gebouw voor universiteit Toronto
dinsdag, 28 april
4
Bouwvergunning voor torens MVRDV op Tour & Taxis-terrein Brussel
donderdag, 30 april
5
Groosman heeft 'eigen' Coolse Poort in centrum Rotterdam gerenoveerd
woensdag, 29 april
Gerelateerde nieuwsberichten
Renovatie en uitbreiding bedrijfspand met CLT-casco achter metselwerkmuren
2 augustus 2024
FARO ontwerpt woongebouw in Slachthuisbuurt Haarlem
17 mei 2019
Woningbouw op locatie Blauwe Wetering Haarlem
7 februari 2020
Nieuw leven voor kantoorgebouw naast station Haarlem
5 juli 2018
Waarschijnlijk toch college in de Haarlemse Koepel
11 januari 2018
Tender Raaks III Haarlem gegund aan HBB Groep
2 januari 2018
Bouw 188 huurwoningen De Entree in Haarlem kan starten
29 november 2017
Nieuwe Bavo in Haarlem heeft zijn kleur terug
3 maart 2016
Ellipsvormige blokken in woonpark Haarlem
28 oktober 2015
't Melkhuisje in Haarlem officieel geopend
27 augustus 2015
Haarlemmers 3D-printen eigen stad
25 maart 2015
Woonblok in Haarlem met speciaal hekwerk
4 maart 2015
Renovatie en uitbreiding bedrijfspand met CLT-casco achter metselwerkmuren
2 augustus 2024
FARO ontwerpt woongebouw in Slachthuisbuurt Haarlem
17 mei 2019
Woningbouw op locatie Blauwe Wetering Haarlem
7 februari 2020
Nieuw leven voor kantoorgebouw naast station Haarlem
5 juli 2018
Waarschijnlijk toch college in de Haarlemse Koepel
11 januari 2018
Tender Raaks III Haarlem gegund aan HBB Groep
2 januari 2018
Bouw 188 huurwoningen De Entree in Haarlem kan starten
29 november 2017
Nieuwe Bavo in Haarlem heeft zijn kleur terug
3 maart 2016
Ellipsvormige blokken in woonpark Haarlem
28 oktober 2015
't Melkhuisje in Haarlem officieel geopend
27 augustus 2015
Haarlemmers 3D-printen eigen stad
25 maart 2015
Woonblok in Haarlem met speciaal hekwerk
4 maart 2015
Toon alles
Andere nieuwsberichten
'Stuttende' en contrasterende installatie voor Besiendershuis Nijmegen
Gisteren, 15:52
Bij het Besiendershuis in Nijmegen is afgelopen maand een door Frank Havermans ontworpen kunstinstallatie geopend. Het bouwwerk is gerealiseerd ter viering van het vijfhonderdjarig jubileum van het bijzondere huis in het centrum van de Keizerstad.
Specht architectuur en stedenbouw toont met meergeneratiehofje alledaagse woongemeenschappelijkheid
Gisteren, 14:25
Het meergeneratiehofje met sociale huurwoningen in Stedum is een bijdrage aan de zoektocht naar alledaagse gemeenschappelijkheid in het wonen in Nederland.
Mobiliteitshub van gerecycled tropisch hardhout voor Tholen
Gisteren, 11:41
In het Zeeuwse Tholen is een mobiliteitshub naar ontwerp van RO&AD Architecten opgeleverd. Het gebouw, dat is geheel is gemaakt van gerecycled tropisch hardhout, fungeert als knooppunt voor bussen en fietsers.
Kleurrijke textielinstallatie van Simone Post voor entreegebied Centraal Museum
Gisteren, 09:05
Voor Patchwork Post heeft ontwerper Simone Post objecten en kunstwerken uit de museumcollectie vertaald naar diverse werken in textiel.
Verzet natuurorganisaties tegen stroomkabel via Schiermonnikoog
Gisteren, 16:39
Negen natuurorganisaties maken zich grote zorgen over het plan om stroom van een nieuw windpark op de Noordzee via Schiermonnikoog aan land te brengen.
ING: huizenprijzen stijgen dit jaar niet verder door hoger aanbod
Gisteren, 13:03
Na jaren van groei is het voor het eerst in lange tijd dat een bank verwacht dat de huizenmarkt niet verder groeit.
TenneT mag datacenteraansluiting uitstellen om vol stroomnet
Gisteren, 10:11
Een projectontwikkelaar van een datacenter bij Schiphol klaagde hierover en spande een kort geding aan.
Brabant investeert 1,4 miljoen in waterfilter in Vlaanderen
30 april, 3:51
Het fosfaatfilter moet vervuild grondwater op een natuurlijke manier zuiveren voordat het naar het Nederlandse natuurgebied de Groote Meer bij Ossendrecht stroomt.
Rli: klimaat, vervuiling en groei bedreigen beschikbaarheid drinkwater
30 april, 12:20
De beschikbaarheid van drinkwater staat ernstig onder druk, waarschuwt de Raad voor de leefomgeving en infrastructuur.
ABN AMRO: huurwetaanpassingen stoppen uittocht beleggers niet
30 april, 9:04
Volgens de onderzoekers onderschat woonminister Boekholt de negatieve effecten van het huidige fiscale beleid.
Ga naar het nieuws-archief
1
0
0
0
Voor een optimale gebruikservaring plaatst Architectenweb functionele cookies. Wat de verschillende cookies precies doen leggen we uit in een
overzicht
. Cookies van social media kun je optioneel
aanzetten
.
Akkoord
Instellingen
Annuleren
OK
Sluiten
Doorgaan
Inloggen
Maak een gratis persoonlijk account aan
Feedback
Feedback
Wij horen graag jouw feedback. Laat je reactie achter en eventueel jouw e-mail adres.
Reactie
Verstuur