Projecten
Producten
Bedrijven
Vacatures
Agenda
Awards
Podcasts
more_horiz
Videos
Magazine
Favorieten
Profiel
Uitloggen
Abonneer je nu op onze nieuwsbrieven!
Abonneren
Nee, bedankt
Ja, denk met me mee rond de
materialisering van mijn project
Copyright: Cosmin Dragomir
Copyright: Cosmin Dragomir
Copyright: Cosmin Dragomir
Copyright: Cosmin Dragomir
Copyright: Cosmin Dragomir
Copyright: Cosmin Dragomir
Copyright: Cosmin Dragomir
Copyright: Cosmin Dragomir
Copyright: Cosmin Dragomir
Copyright: Cosmin Dragomir
Copyright: Cosmin Dragomir
Copyright: Cosmin Dragomir
Copyright: Cosmin Dragomir
Copyright: Cosmin Dragomir
Copyright: Cosmin Dragomir
Copyright: Cosmin Dragomir
Nieuw leven voor Roemeens cultuurpaleis
9 augustus 2016, 16:33
De Roemeense gemeente Blaj heeft een nieuw multifunctioneel gebouw in haar voormalige cultuurpaleis. Architect
Vlad Sebastian Rusu
heeft het door brand geruïneerde bouwwerk gerenoveerd, met de oorspronkelijke tekeningen uit 1930 als uitgangspunt.
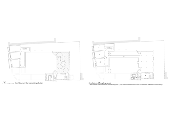
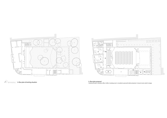
Het Palatul Cultural is oorspronkelijk een ontwerp van de architect Victor Smigelschi uit Boekarest. In de vroege jaren 1960 kreeg het gebouw een nieuwe functie als bioscoop, waartoe veranderingen aan de grote zaal werden doorgevoerd. In die periode zijn ook kleine functionele veranderingen aangebracht om op de eerste verdieping onder meer een museum en bibliotheek te kunnen huisvesten.
Nieuwe functie in oud ontwerp
Een grote brand ruïneerde in 1995 een groot deel van het cultuurpaleis. In 2012 besloot het gemeentebestuur om het cultuurpaleis te herbouwen en nieuw leven in te blazen. Het gebouw moest een multifunctionele hal krijgen en zowel met dag- als kunstlicht kunnen worden verlicht. Ook zou de regionale afdeling van de Roemeense Academie hierin haar hoofdzetel krijgen.
Architect Vlad Sebastian Rusu vond in het nationale archief tekeningen die aan de Smigelschi werden toegeschreven en twee beelden waarop het gebouw kort na de opening te zien is. Over het originele interieur van de grote zaal was niets te vinden.
Op basis van het historisch onderzoek en met technische expertise besloot Rusu het ruimtelijk en functionele ontwerp de oorspronkelijke tekeningen uit 1930 te laten volgen. Dat betekende onder meer het verwijderen van latere toevoegingen.
Materiaal
Dit heeft onder meer geleid tot een sobere, ruimtelijke grote zaal, die eenvoudig aanpasbaar is voor uiteenlopende evenementen, variërend van theatervoorstellingen en concerten tot conferenties en exposities. Via nieuwe, bedienbare daklichten kan desgewenst extra daglicht binnenvallen.
In de grote zaal is het golvende balkon hersteld. De ruwe bakstenen muren domineren de grote zaal. Met het expressieve metselwerk in het zicht en andere reversibele ontwerpkeuzes, zoals de metalen dakconstructie en het verlaagde plafond, wil Rusu bezoekers herinneren aan de brand.
Ook de luiken, deuren en een deel van de lijsten hebben de ruwe uitstraling van CorTen-staal deuren. In contrast hiermee staat het gladde, witte stucwerk rond deuren en luiken en voor de wanden in de verkeerszones. Het project heeft verder de installatie van nieuwe elektriciteits-, verwarmings- en ventilatiesystemen en sanitair omvat.
Exterieur
Het exterieur is eveneens gerenoveerd, inclusief de deuren van de hoofdingang. Vlad Sebastian Rusu heeft tevens een ontwerp gemaakt voor de inrichting van het bijbehorende hof.
Trefwoorden
vlad sebastian rusu
herbestemming
roemenië
renovatie
leisure
victor smigelschi
cultuurpaleis
palatul cultural
blaj
Locatie
Best gelezen
1
Bouw van twee woontorens De Havenmeesters in Den Haag gestart
vrijdag, 3 april
2
Máxima heropent vernieuwde boulevard van Scheveningen
vrijdag, 3 april
3
Studio AAAN zoekt met Hillehuis aansluiting bij architectuur Beijerlandselaan
vrijdag, 3 april
4
Spoorwegverleden inspireert ontwerp woonblok Wisselspoor 10 in Utrecht
woensdag, 8 april
5
RED Company vraagt vergunning aan voor productie- en onderzoeksfaciliteit Lilly
dinsdag, 7 april
Gerelateerde nieuwsberichten
Rijke historie richtinggevend bij renovatie Krasnapolsky
20 juni 2016
Italië investeert miljard in behoud erfgoed
2 mei 2016
Drie varianten voor renovatie Binnenhof
26 april 2016
KAAN Architecten wint opdracht Paleis Het Loo
8 april 2016
Moderne museumuitbreiding herstelt historisch plein
17 februari 2016
Rijke historie richtinggevend bij renovatie Krasnapolsky
20 juni 2016
Italië investeert miljard in behoud erfgoed
2 mei 2016
Drie varianten voor renovatie Binnenhof
26 april 2016
KAAN Architecten wint opdracht Paleis Het Loo
8 april 2016
Moderne museumuitbreiding herstelt historisch plein
17 februari 2016
Toon alles
Andere nieuwsberichten
Woontoren Front door Monadnock wint tiende Architectuurprijs Nijmegen
Gisteren, 22:00
“Front is een optimistisch icoon, gemaakt met lef, dat ambachtelijkheid en vakmanschap uitstraalt”, stelt de jury in zijn rapport.
Architectenweb symposium: samenwerken op kantoor
Gisteren, 16:50
Op dinsdagavond 12 mei 2026 organiseert Architectenweb in samenwerking met YNNO en Pakhuis de Zwijger een symposium rond de ontwikkeling om kantooromgevingen nadrukkelijker in te richten op onderlinge samenwerking.
Padelhal vormt nieuwe kop van sportcomplex in Bussum
Gisteren, 13:47
In Bussum is onlangs een padelhal naar ontwerp van Vocus architecten in gebruik genomen. Het volume vormt een uitbreiding van het bestaande sportcomplex van S&W Premium HealthClub.
Cityförster wint eerste prijs in competitie stadsvernieuwingsproject Boedapest
Gisteren, 11:10
Cityförster heeft in samenwerking met Coldefy, Treibhaus, Spora Architects en Markó & Placemakers, de eerste prijs gewonnen bij een prijsvraag voor een masterplan voor een van de meest prestigieuze stadsvernieuwingsprojecten in Europa.
ABN AMRO: investeringen defensie vergroten druk op bouwcapaciteit
Gisteren, 12:29
Kazernes, opslagplaatsen en oefenterreinen dingen om dezelfde aannemers, ingenieurs en installateurs die ook nodig zijn voor bijvoorbeeld woningbouw.
Europa kent 831 miljoen euro subsidie toe aan Utrechtse projecten
Gisteren, 09:27
Het gaat onder meer om projecten tegen oververhitting van gebouwen, slimmer gebruik van energie en het hergebruik van materialen en grondstoffen.
Rotterdam mag woningen gaan bouwen aan de Parkhaven
8 april, 3:38
De Raad van State maakte woensdag bekend dat alle bezwaren tegen het bestemmingsplan zijn verworpen.
Pensioenfonds ABP investeert fors in huurwoningen senioren
8 april, 9:34
Pensioenfonds ABP en vermogensbeheerder CBRE Investment Management investeren 350 miljoen in de bouw van nieuwe huurwoningen voor senioren.
Nieuw keurmerk voor inspectie- en adviesbedrijven binnenklimaat
7 april, 2:00
Met onder meer vastgestelde meetprotocollen moet het keurmerk een kwaliteitsimpuls aan de betreffende markt geven.
Kabinet trekt enkele miljarden uit voor nieuw windpark op zee
7 april, 10:06
Vanaf 2032 moet het windpark één gigawatt stroom gaan leveren, genoeg voor ongeveer een miljoen huishoudens.
Ga naar het nieuws-archief
0
0
0
0
Voor een optimale gebruikservaring plaatst Architectenweb functionele cookies. Wat de verschillende cookies precies doen leggen we uit in een
overzicht
. Cookies van social media kun je optioneel
aanzetten
.
Akkoord
Instellingen
Annuleren
OK
Sluiten
Doorgaan
Inloggen
Maak een gratis persoonlijk account aan
Feedback
Feedback
Wij horen graag jouw feedback. Laat je reactie achter en eventueel jouw e-mail adres.
Reactie
Verstuur