Projecten
Producten
Bedrijven
Vacatures
Agenda
Awards
Podcasts
more_horiz
Videos
Magazine
Favorieten
Profiel
Uitloggen
Abonneer je nu op onze nieuwsbrieven!
Abonneren
Nee, bedankt
Ja, denk met me mee rond de
materialisering van mijn project
Copyright: LEVS architecten
Copyright: LEVS architecten
Copyright: LEVS architecten
Copyright: LEVS architecten
Copyright: LEVS architecten
Copyright: LEVS architecten
Copyright: LEVS architecten
Copyright: LEVS architecten
Copyright: LEVS architecten
Copyright: LEVS architecten
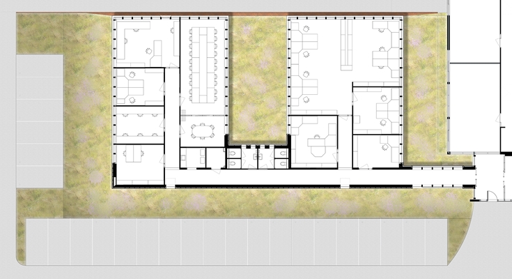
Copyright: Plattegrond. LEVS architecten
Copyright: Doorsnede. LEVS architecten
Copyright: Details. LEVS architecten
Robuuste uitbreiding demonstreert vakmanschap
7 juni 2016, 11:16
In opdracht van Bouwbedrijf De Nijs maakte
LEVS architecten
een ontwerp voor de uitbreiding van het bestaande kantoor in Warmenhuizen. Twee nieuwe, robuuste paviljoens zijn door de Nijs zelf gebouwd en afgelopen weekeinde geopend.
Geheel in lijn met de bedrijfsopvattingen van
Bouwbedrijf M.J. de Nijs en Zonen
maakte LEVS voor de kantooruitbreiding een puur ontwerp met ambachtelijke details. De uitvoering is meteen een proeve van kunnen van de West-Friese bouwers. De houtmaten voor de kozijnen hebben de robuustheid en directheid van het bouwbedrijf zelf, aldus LEVS.
Hout en Cor-Ten-staal
De paviljoens hebben een houten gevel op een Cor-Ten-stalen plint; ze liggen deels verzonken in een groene wal. Op het met wilde grassen begroeide dak staat, verborgen onder een Cor-Ten-stalen kap, een luchtgekoelde warmte-koudepomp.
In de corridor die het bestaande kantoor verbindt met de nieuwe paviljoens zijn de ramen laag geplaatst, waardoor een gesloten wand ‘zweeft’ boven de vloer. Hierop presenteert De Nijs op ooghoogte zijn recent opgeleverde projecten. Twee dramatische openingen in de gevel zorgen voor extra daglicht bij de entrees naar de paviljoens.
Eén paviljoen biedt ruimte aan de bouwpartners van De Nijs om gezamenlijk aan BIM-projecten te werken. Het andere paviljoen is het nieuwe administratieve centrum van de onderneming. De centraal gelegen overlegruimten maken snelle interactie mogelijk.
Lang traject
Het project kent een lange geschiedenis, vertelt LEVS. Het architectenbureau won in 2009 de selectie voor het realiseren van een nieuw kantoorgebouw. De specialiteiten van het bedrijf – vakmanschap, elegante betonconstructies en fraaie houten puien en gevels – waren in het ontwerp verwerkt.
In de loop der tijd is het ontwerp herhaaldelijk aangepast, in navolging van de werkwijze en organisatie van De Nijs. Echter, het uiteindelijk gerealiseerde plan, goed voor een kantooruitbreiding van 600 m2, is volgens het architectenbureau nog net zo eigen en ambachtelijk als het oorspronkelijke ontwerp.
Trefwoorden
warmenhuizen
kantoor
levs architecten
cor-ten-staal
gevel
bouwbedrijf m.j. de nijs en zonen
hout
corten staal
Locatie
Best gelezen
1
Anterieure overeenkomst voor bouw woontoren The Four in Eindhoven
donderdag, 16 april
2
Tien bureaus geselecteerd voor tweede ronde nieuwbouw De Meervaart
woensdag, 15 april
3
Voormalig hoofdkantoor Ferro in M4H verbouwd tot bedrijfsverzamelgebouw
woensdag, 15 april
4
Architecten voor restauratie en herbestemming Rivièrahal gekozen
donderdag, 16 april
5
De ondergrondse strijd om een duurzamere stad
donderdag, 16 april
Gerelateerde nieuwsberichten
Architecten_Lab ontwerpt expogebouw in industriële context
29 augustus 2023
Robuuste woongebouwen aan de waterkant in Kaag
6 februari 2020
LEVS wint selectie seniorenwoningen Etten-Leur
6 juli 2016
Fries erfgoed in een duurzaam collectiecentrum
11 mei 2016
Ontwerp De Scheepmaker Haarlem gepresenteerd
19 januari 2016
LEVS ontwerpt buurt in Russisch Vidnoje
13 januari 2016
LEVS ontwerpt woongebouw in Amsterdam-Noord
12 januari 2016
Architecten_Lab ontwerpt expogebouw in industriële context
29 augustus 2023
Robuuste woongebouwen aan de waterkant in Kaag
6 februari 2020
LEVS wint selectie seniorenwoningen Etten-Leur
6 juli 2016
Fries erfgoed in een duurzaam collectiecentrum
11 mei 2016
Ontwerp De Scheepmaker Haarlem gepresenteerd
19 januari 2016
LEVS ontwerpt buurt in Russisch Vidnoje
13 januari 2016
LEVS ontwerpt woongebouw in Amsterdam-Noord
12 januari 2016
Toon alles
Andere nieuwsberichten
JagerJanssen bouwt vervallen clubhuis om tot sportpaviljoen Steeds Hooger
1 uur geleden
Voor de Rotterdamse voetbalvereniging Steeds Hooger heeft JagerJanssen architecten een vervallen clubgebouw aan het Melanchtonpark vernieuwd.
Vera Yanovshtchinsky neemt na dertig jaar afscheid van bureau
3 uur geleden
Ze geeft het stokje door aan Sjoerd Beerends, die als zakelijk partner de afgelopen acht jaar het bureau Vera Yanovshtchinsky architecten mede heeft vormgegeven. Het bureau gaat verder onder de naam VYA architectuur en stedenbouw.
LEVS publiceert duurzaamheidsanalyse eigen projecten
Gisteren, 14:45
Met de Rapportage Duurzaamheid 2021–2025 heeft het bureau 43 projecten uit de afgelopen vijf jaar getoetst aan de Paris Proof normen.
Nominaties Rotterdam Architectuurprijs 2026 bekend
Gisteren, 09:00
Zowel de jury als het publiek heeft de keuze uit tien projecten, die zijn geselecteerd uit 36 inzendingen. De winnaars worden op 12 juni bekendgemaakt in het Nhow Hotel in Rotterdam.
Onvoltooid attractiepark Rotterdam geveild voor 6,5 miljoen euro
2 uur geleden
Ondernemer Hennie van der Most heeft meer dan tien jaar gewerkt aan de bouw van het park aan de Doklaan in Rotterdam.
'Amsterdamse RAI gaat binnen paar weken in de verkoop'
Vandaag, 10:50
De nieuwe aandeelhouder moet de portemonnee trekken voor de bouw van woningen en kantoren op het RAI-terrein, meldt het FD.
Minister wil Lelystad Airport openen in oktober 2027
Gisteren, 12:24
Het vliegveld heeft nog geen natuurvergunning, maar Vincent Karremans werkt ‘parallel’ aan de andere zaken die nog moeten worden geregeld voordat vakantievluchten vanuit Flevoland kunnen beginnen.
Boekholt wil minder strenge huurwet, hogere huren mogelijk
Gisteren, 10:15
Verhuurders moeten meer kunnen vragen voor dure huurhuizen, nieuwbouw en huizen zonder tuin of balkon.
Woningbouwzaken krijgen langer voorrang bij Raad van State
17 april, 4:49
Om het huizentekort tegen te gaan, blijft de Raad van State woningbouwzaken met voorrang behandelen.
Inspectie positief over verbetering sociale veiligheid TU Delft
17 april, 11:36
De TU Delft heeft aanzienlijke stappen gezet om de sociale veiligheid voor medewerkers te verbeteren.
Ga naar het nieuws-archief
0
0
0
0
Voor een optimale gebruikservaring plaatst Architectenweb functionele cookies. Wat de verschillende cookies precies doen leggen we uit in een
overzicht
. Cookies van social media kun je optioneel
aanzetten
.
Akkoord
Instellingen
Annuleren
OK
Sluiten
Doorgaan
Inloggen
Maak een gratis persoonlijk account aan
Feedback
Feedback
Wij horen graag jouw feedback. Laat je reactie achter en eventueel jouw e-mail adres.
Reactie
Verstuur